Casco 2-slaapkamerappartement van 109 m² op het 2de verdiep – Residentie Sint Amandus
€ 348.818
Een pand van Morpho vastgoed
Favoriet
Jouw zoektocht
Jouw scoretabel voor dit pand
Aan het laden...
Jouw geplande bezichtigingen
Aan het laden...
Overzicht
- 95 m² bewoonbaar
- 109 m² grond
- 2 Slaapkamer(s)
- 1 Badkamer(s)
- 1 Toilet(ten)
Beschrijving
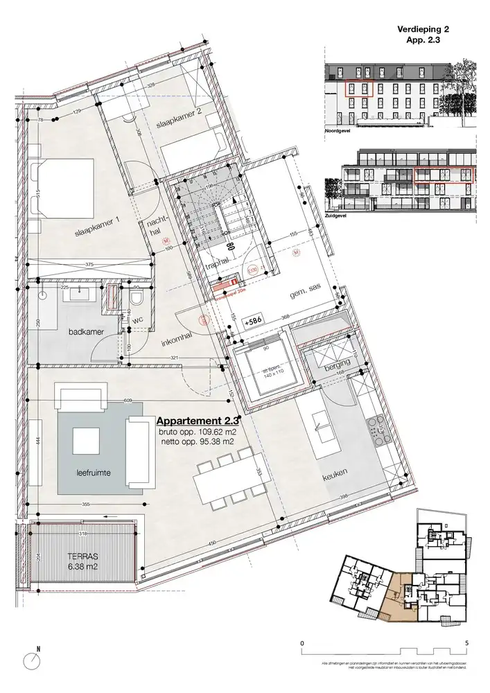
In het nieuwbouwproject Residentie Sint Amandus in het centrum van Zwevegem bevindt zich dit 2-slaapkamerappartement op het 2de verdiep met een ruime terras (6,38 m²) en een bewoonbare oppervlakte van 95,38 m². Een interessante opportuniteit voor wie ruimte wenst te combineren met volledige afwerkingsvrijheid.
Het appartement wordt casco opgeleverd, waardoor u zelf de afwerking kan bepalen volgens uw eigen smaak, budget en woonstijl. U kiest materialen, keuken, badkamer en vloeren volledig op maat. Ideaal voor wie persoonlijk wil afwerken of gericht wil investeren zonder standaardafwerking.
De indeling voorziet een ruime leefruimte met plaats voor een open keuken en eetgedeelte, aangevuld met 2 volwaardige slaapkamers, een badkamer, aparte toilet en voldoende mogelijkheden voor praktische bergruimte.
Gelegen in een recente residentie met ondergrondse parking, fietsenstalling en meerdere toegangen woont u hier centraal én comfortabel.
Troeven
• 95,38 m² bewoonbare oppervlakte en een ruime terras van 6,38 m²
• Gelegen op het 2de verdiep
• 2 volwaardige slaapkamers
• Casco oplevering met volledige afwerkingsvrijheid
• Centrale ligging in Zwevegem
• Ondergrondse autostaanplaatsen beschikbaar - afzonderlijk aan te kopen.
Interesse? Bel ons via 050 50 12 12 voor meer informatie of een afspraak.
Het appartement wordt casco opgeleverd, waardoor u zelf de afwerking kan bepalen volgens uw eigen smaak, budget en woonstijl. U kiest materialen, keuken, badkamer en vloeren volledig op maat. Ideaal voor wie persoonlijk wil afwerken of gericht wil investeren zonder standaardafwerking.
De indeling voorziet een ruime leefruimte met plaats voor een open keuken en eetgedeelte, aangevuld met 2 volwaardige slaapkamers, een badkamer, aparte toilet en voldoende mogelijkheden voor praktische bergruimte.
Gelegen in een recente residentie met ondergrondse parking, fietsenstalling en meerdere toegangen woont u hier centraal én comfortabel.
Troeven
• 95,38 m² bewoonbare oppervlakte en een ruime terras van 6,38 m²
• Gelegen op het 2de verdiep
• 2 volwaardige slaapkamers
• Casco oplevering met volledige afwerkingsvrijheid
• Centrale ligging in Zwevegem
• Ondergrondse autostaanplaatsen beschikbaar - afzonderlijk aan te kopen.
Interesse? Bel ons via 050 50 12 12 voor meer informatie of een afspraak.
Energie
- E-peil: E0
- Beglazing: Onbekend
Op de kaart

Financieel
| Prijs |
|---|
Bijkomende info
Gebouw
| Staat | Nieuw |
|---|---|
| Bewoonbaar (m²) | 95 |
| Verdieping | 2 |
| Badkamers | 1 |
| Slaapkamers | 2 |
| Verdiepingen | 0 |
| Garages | 0 |
| Parkeerplaatsen | 0 |
| Toiletten | 1 |
Faciliteiten
| Septische tank | Nee |
|---|
Perceel
| Overstromingsgevoelig | Geen |
|---|---|
| Totale oppervlakte (m²) | 109 |
| Bebouwde oppervlakte (m²) | 0 |
| Oppervlakte terras (m²) | 0 |
| Oriëntatie tuin | Zuid |
Vergunning
| Verkavelingsvergunning | Geen beschikbaar |
|---|
Uitrusting
| Investeringspand | Nee |
|---|---|
| Parking | Nee |
| Garage | Nee |
| Opslagruimte | Ja |
| Terras | Ja |
| Lift | Nee |
| Rioolaansluiting | Nee |
| Gasaansluiting | Ja |
| Wateraansluiting | Ja |
| Elektriciteitsaansluiting | Ja |
| Internetaansluiting | Nee |
| Telefoonaansluiting | Nee |
| Zonnepanelen | Nee |
| Zonneboiler | Nee |
| Alarm | Nee |
| Videofoon | Nee |
| Grondwaterput | Nee |
Appartementsblok
| Lift | Nee |
|---|---|
| Intercom | Ja |
Een pand van
Morpho vastgoed
Uw regionale vastgoedmakelaar met een verrassend aanpak !
Een woning huren, kopen of verkopen in regio Brugge? Met een doorgedreven service begeleidt Morpho Vastgoedboetiek jou doorheen heel je vastgoedavontuur. Bij ons geen gedoe, wel to the point advies, vakkennis en een stevige portie enthousiasme!
Een woning bezichtigen, de waarde ervan bepalen, adverteren en verkopen … het zijn de basisskills van elke makelaar. Wat ons vastgoedkantoor dan uniek maakt?
Wij zien elke vastgoedtransactie als een metamorfose. Net zoals een rups een vlinder wordt, ontpopt een nieuwe thuis zich als een fris begin om mooie herinneringen te creëren. Onze naam Morpho werd immers niet zomaar gekozen.
App 2.3
Leer meer over vastgoed
23 March 2026
Op Spotto zoeken als een pro: 10 slimme tips
21 March 2026
Hoeveel kan ik lenen om een huis te kopen?
01 March 2026
Wanneer heb ik een bouwvergunning of omgevingsvergunning nodig?
17 February 2026