> Te koop > Wevelgem > Huis > Nieuw te bouwen alleenstaande woning te Wevelgem.

Nieuw te bouwen alleenstaande woning te Wevelgem.

€ 497.013

8560 Wevelgem

Een pand van Your Home

Volledige aanbod

Jouw zoektocht

Jouw scoretabel voor dit pand
Aan het laden...
Aan het laden...
Jouw geplande bezichtigingen
Aan het laden...
Aan het laden...

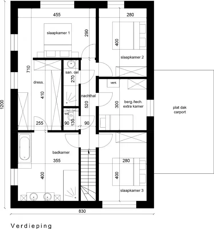
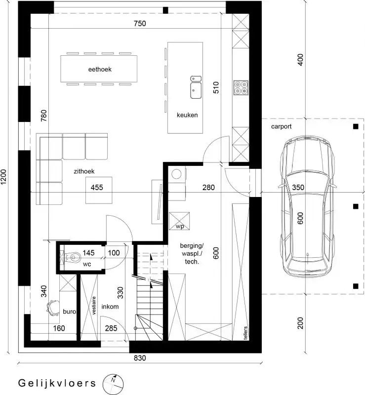
Overzicht


  • 3 Slaapkamer(s)
  • 2 Badkamer(s)
  • 2 Toilet(ten)
  • 1 Living(s)

Beschrijving


Wist je dat wij je richting geven met onze voorbeeldwoningen, maar dat je alles nog kan veranderen naargelang stijl en eigen wens? Naast de esthetische, architecturale kant geven wij je ook kennis mee van het hedendaagse wooncomfort. Want Your Home, dat is samen bouwen.

Wil je graag alles eens persoonlijk overlopen? Neem gerust eens contact op met ons. Wij helpen je graag verder.

Mail naar aanvraag@yourhome.be of bel 056 755 788

Referentie: YH_LA_NTB_20251023

Energie


Financieel


Prijs € 497.013

Bijkomende info


Gebouw
Badkamers 2
Slaapkamers 3
Keukens 1
Leefruimtes 1
Toiletten 2

Een pand van


Your Home
Logo van makelaar: Your Home
Your Home - Samen bouwen
Your Home is een persoonlijke bouwpartner voor zij die dromen van een nieuwbouwwoning of totaalrenovatie. Wij vertalen jouw bouwdroom in een woning die perfect bij jou past. Van bouwen op maat tot totaalrenovatie, het kan allemaal!
Logo van makelaar: Your Home
1103425
Nieuw te bouwen alleenstaande woning te Wevelgem. foto {{pictureIndex}}

Nieuw te bouwen alleenstaande woning te Wevelgem.

€ 497.013

8560 Wevelgem

Bezoek het pand

Vul jouw contactgegevens hieronder in en de makelaar contacteert je.

Leer meer over vastgoed

24 April 2026
Duurzaam gelegen woning? Check je Mobiscore
23 March 2026
Op Spotto zoeken als een pro: 10 slimme tips
21 March 2026
Hoeveel kan ik lenen om een huis te kopen?
01 March 2026
Wanneer heb ik een bouwvergunning of omgevingsvergunning nodig?