Hedendaagse gezinswoningen in het landelijke Pervijze
Een pand van Caenen Nieuwpoort
Favoriet
Jouw zoektocht
Jouw scoretabel voor dit pand
Aan het laden...
Jouw geplande bezichtigingen
Aan het laden...
Beschrijving
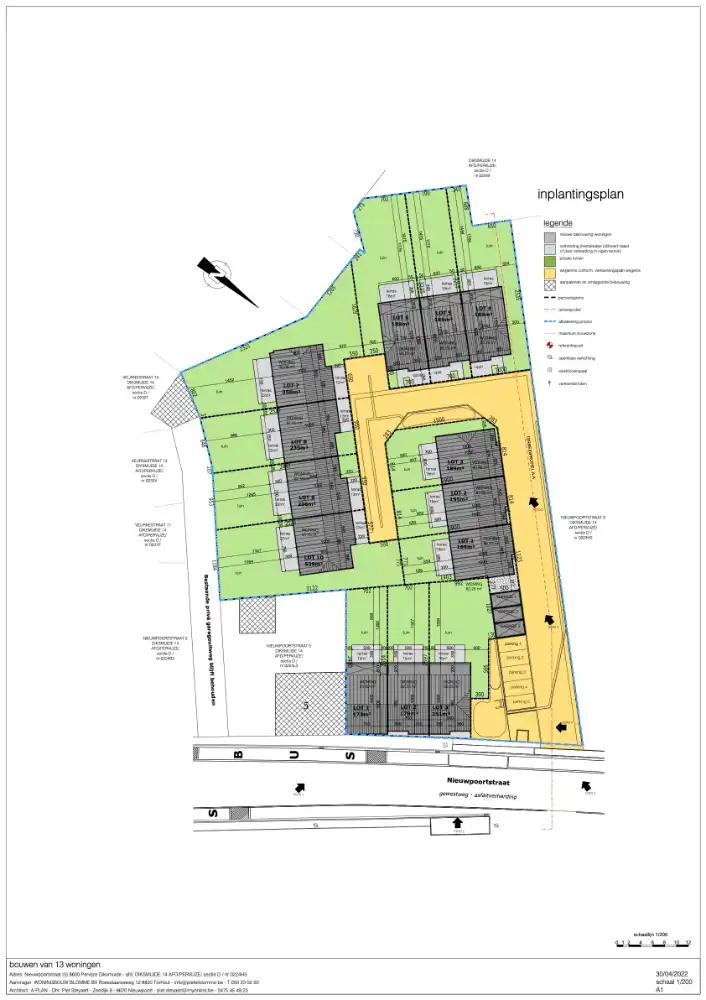
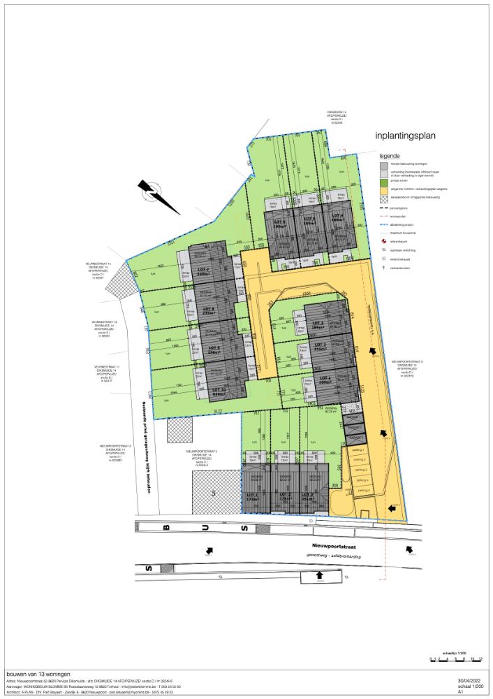
De verkaveling aan de Nieuwpoortstraat in Pervijze bestaat uit 13 Energiezuinige (E-30) gezinswoningen met vlotte verbinding naar Diksmuide, Veurne en Nieuwpoort.
Bouwbedrijf Pieter Blomme heeft reeds meer dan 25 jaar ervaring in het bouwen van woningbouw in West-Vlaanderen en is uitgegroeid tot een dynamisch bedrijf waarbij de klanten centraal staan.
Eerlijkheid, prijs en kwaliteit liggen bij hen hoog in het vaandel.
Voor alle woningen met verkoop op plan werken ze onder de Wet Breyne en met een voltooiingswaarborg.
In deze verkaveling heeft u de keuze uit een halfopen of gesloten gezinswoning in landelijke stijl.
De loten A1-2-3 en de loten A7-8-9-10 bestaan uit één bouwlaag en dak en zijn voorzien van garage en 4 slaapkamers.
De loten A4-5-6 en de loten B1-2-3 bestaan uit twee bouwlagen en dak en zijn voorzien van garage en 3 of 4 slaapkamers. Hier kan desgewenst mits meerkost een vaste trap naar de zolder worden voorzien voor het inrichten van extra kamers.
De woningen worden afgewerkt conform het lastenboek, u heeft als koper veel inspraak bij afwerking.
Vraag meer informatie of maak een afspraak om de plannen te ontdekken bij ons op kantoor!
Vraag ook uw bezoek aan de modelwoning!
Bouwbedrijf Pieter Blomme heeft reeds meer dan 25 jaar ervaring in het bouwen van woningbouw in West-Vlaanderen en is uitgegroeid tot een dynamisch bedrijf waarbij de klanten centraal staan.
Eerlijkheid, prijs en kwaliteit liggen bij hen hoog in het vaandel.
Voor alle woningen met verkoop op plan werken ze onder de Wet Breyne en met een voltooiingswaarborg.
In deze verkaveling heeft u de keuze uit een halfopen of gesloten gezinswoning in landelijke stijl.
De loten A1-2-3 en de loten A7-8-9-10 bestaan uit één bouwlaag en dak en zijn voorzien van garage en 4 slaapkamers.
De loten A4-5-6 en de loten B1-2-3 bestaan uit twee bouwlagen en dak en zijn voorzien van garage en 3 of 4 slaapkamers. Hier kan desgewenst mits meerkost een vaste trap naar de zolder worden voorzien voor het inrichten van extra kamers.
De woningen worden afgewerkt conform het lastenboek, u heeft als koper veel inspraak bij afwerking.
Vraag meer informatie of maak een afspraak om de plannen te ontdekken bij ons op kantoor!
Vraag ook uw bezoek aan de modelwoning!
Energie
Op de kaart

Financieel
Bijkomende info
Een pand van
Caenen Nieuwpoort
Uw vastgoedmakelaar te Nieuwpoort
Caenen, één van de belangrijkste professionele vastgoedspelers aan de Belgische Kust en het hinterland, waar u al decennialang op kan vertrouwen.
Leer meer over vastgoed
23 March 2026
Op Spotto zoeken als een pro: 10 slimme tips
21 March 2026
Hoeveel kan ik lenen om een huis te kopen?
01 March 2026
Wanneer heb ik een bouwvergunning of omgevingsvergunning nodig?
17 February 2026