KORTEMARK: Penthouse 3.01 met 2 comfortabele slaapkamers, 2 ensuite-badkamers en 111,60m² uitgestrekt zitterras gelegen op de derde verdieping van Nieuwbouwresidentie Mila en Nora
€ 530.403
Een pand van Domicill Vastgoed
Favoriet
Jouw zoektocht
Jouw scoretabel voor dit pand
Aan het laden...
Jouw geplande bezichtigingen
Aan het laden...
Overzicht
- 152 m² bewoonbaar
- 272 m² grond
- 2 Slaapkamer(s)
- 2 Badkamer(s)
- 2 Toilet(ten)
Beschrijving
KORTEMARK: Penthouse 3.01 met 2 comfortabele slaapkamers, 2 ensuite-badkamers en 111.6m² uitgestrekt zitterras gelegen op de derde verdieping van Nieuwbouwresidentie Mila en Nora
Deze kleinschalige nieuwbouwresidentie is centraal gelegen nabij het station en op wandelafstand van de Markt in Kortemark. Met de E403 op 8,5 km geniet het project een uitstekende bereikbaarheid. In de onmiddellijke buurt vindt u er onder andere scholen, sporthal, natuur- en recreatiedomein Krekemeersen, warenhuizen, bakkerij, slagerij, apotheek, bank ...
“Residentie Mila en Nora” bestaat uit 2 inkomhallen en 4 verdiepingen. De gelijkvloerse verdieping bevat 6 dubbele garageboxen, 5 enkele garageboxen en 5 autostaanplaatsen. In de eerste en tweede verdieping vinden we per verdieping 5 villa-appartementen. De dakverdieping bestaat uit 1 luxe-penthouse.
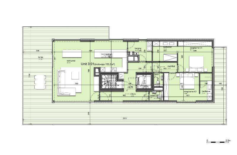
Deze penthouse wordt afgewerkt met de nodige precisie. De grote raampartijen, de royale bewoonbare oppervlakte van 153,2m² en het uitgestrekt zitterras van maar liefst 111.6m² zorgen voor een zalig luchtig gevoel. De open keuken en de ensuite-badkamers worden uitgerust met alle hedendaags comfort.
Penthouse 3.01 is gelegen op de derde verdieping en is als volgt ingedeeld:
- Inkomhal met gastentoilet en onmiddellijke toegang tot traphal en lift
- Ruime leefruimte voorzien van grote raampartijen
- Kwalitatieve open keuken voorzien van alle hedendaags comfort
- Technische berging (10,8m²)
- Nachthal met individueel toilet en toegang tot 2 uiterst comfortabele slaapkamers
- Elke slaapkamer heeft een eigen ensuite-badkamer
Mogelijkheid tot aankopen van een enkele/dubbele garagebox en/of een autostandplaats in het gebouw.
TECHNISCH :
- Centrale verwarming op aardgas met condenserende wandketel
- Hoog-rendementsbeglazing met isolerende PVC-beraming
- Thermische isolatie conform EPB-regelgeving
- Ventilatiesysteem conform EPB-regelgeving
- Brandwerende en inbraakveilige Inkomdeur
- Conforme elektriciteit
Bel Nik (T. 0472 38 97 46) vrijblijvend op voor meer informatie. Wij begeleiden u graag met de glimlach op zoek naar uw droomwoning & commercieel pand.
Deze kleinschalige nieuwbouwresidentie is centraal gelegen nabij het station en op wandelafstand van de Markt in Kortemark. Met de E403 op 8,5 km geniet het project een uitstekende bereikbaarheid. In de onmiddellijke buurt vindt u er onder andere scholen, sporthal, natuur- en recreatiedomein Krekemeersen, warenhuizen, bakkerij, slagerij, apotheek, bank ...
“Residentie Mila en Nora” bestaat uit 2 inkomhallen en 4 verdiepingen. De gelijkvloerse verdieping bevat 6 dubbele garageboxen, 5 enkele garageboxen en 5 autostaanplaatsen. In de eerste en tweede verdieping vinden we per verdieping 5 villa-appartementen. De dakverdieping bestaat uit 1 luxe-penthouse.
Deze penthouse wordt afgewerkt met de nodige precisie. De grote raampartijen, de royale bewoonbare oppervlakte van 153,2m² en het uitgestrekt zitterras van maar liefst 111.6m² zorgen voor een zalig luchtig gevoel. De open keuken en de ensuite-badkamers worden uitgerust met alle hedendaags comfort.
Penthouse 3.01 is gelegen op de derde verdieping en is als volgt ingedeeld:
- Inkomhal met gastentoilet en onmiddellijke toegang tot traphal en lift
- Ruime leefruimte voorzien van grote raampartijen
- Kwalitatieve open keuken voorzien van alle hedendaags comfort
- Technische berging (10,8m²)
- Nachthal met individueel toilet en toegang tot 2 uiterst comfortabele slaapkamers
- Elke slaapkamer heeft een eigen ensuite-badkamer
Mogelijkheid tot aankopen van een enkele/dubbele garagebox en/of een autostandplaats in het gebouw.
TECHNISCH :
- Centrale verwarming op aardgas met condenserende wandketel
- Hoog-rendementsbeglazing met isolerende PVC-beraming
- Thermische isolatie conform EPB-regelgeving
- Ventilatiesysteem conform EPB-regelgeving
- Brandwerende en inbraakveilige Inkomdeur
- Conforme elektriciteit
Bel Nik (T. 0472 38 97 46) vrijblijvend op voor meer informatie. Wij begeleiden u graag met de glimlach op zoek naar uw droomwoning & commercieel pand.
Energie
- E-peil: E0
- Beglazing: Onbekend
Op de kaart

Financieel
| Prijs |
|---|
Bijkomende info
Gebouw
| Bewoonbaar (m²) | 152 |
|---|---|
| Verdieping | 3 |
| Badkamers | 2 |
| Slaapkamers | 2 |
| Verdiepingen | 0 |
| Garages | 0 |
| Parkeerplaatsen | 0 |
| Toiletten | 2 |
Faciliteiten
| Septische tank | Nee |
|---|
Perceel
| Totale oppervlakte (m²) | 272 |
|---|---|
| Bebouwde oppervlakte (m²) | 0 |
| Oppervlakte terras (m²) | 111 |
Vergunning
| Verkavelingsvergunning | Geen beschikbaar |
|---|
Uitrusting
| Investeringspand | Nee |
|---|---|
| Parking | Nee |
| Garage | Nee |
| Opslagruimte | Ja |
| Terras | Ja |
| Lift | Nee |
| Rioolaansluiting | Nee |
| Gasaansluiting | Nee |
| Wateraansluiting | Nee |
| Elektriciteitsaansluiting | Nee |
| Internetaansluiting | Nee |
| Telefoonaansluiting | Nee |
| Zonnepanelen | Nee |
| Zonneboiler | Nee |
| Alarm | Nee |
| Videofoon | Nee |
| Grondwaterput | Nee |
Appartementsblok
| Lift | Nee |
|---|---|
| Intercom | Nee |
Een pand van
Domicill Vastgoed
Domicill Vastgoed
We zijn EEN TEAM GEDREVEN VASTGOEDMAKELAARS en bieden méér waarde in vastgoed en projecten.
We helpen kopers en verkopers aan hun warme thuis door hen volledig te ontzorgen.
Ook investeerders kunnen bij ons terecht. Voor hen komt er binnenkort een volledig platform online.
Mila en Nora 3.01
Leer meer over vastgoed
23 March 2026
Op Spotto zoeken als een pro: 10 slimme tips
21 March 2026
Hoeveel kan ik lenen om een huis te kopen?
01 March 2026
Wanneer heb ik een bouwvergunning of omgevingsvergunning nodig?
17 February 2026