Magazijn 290m² te huur
€ 391.419
Een pand van OREON PROPERTIES
Overzicht
- 290 m² bewoonbaar
Beschrijving
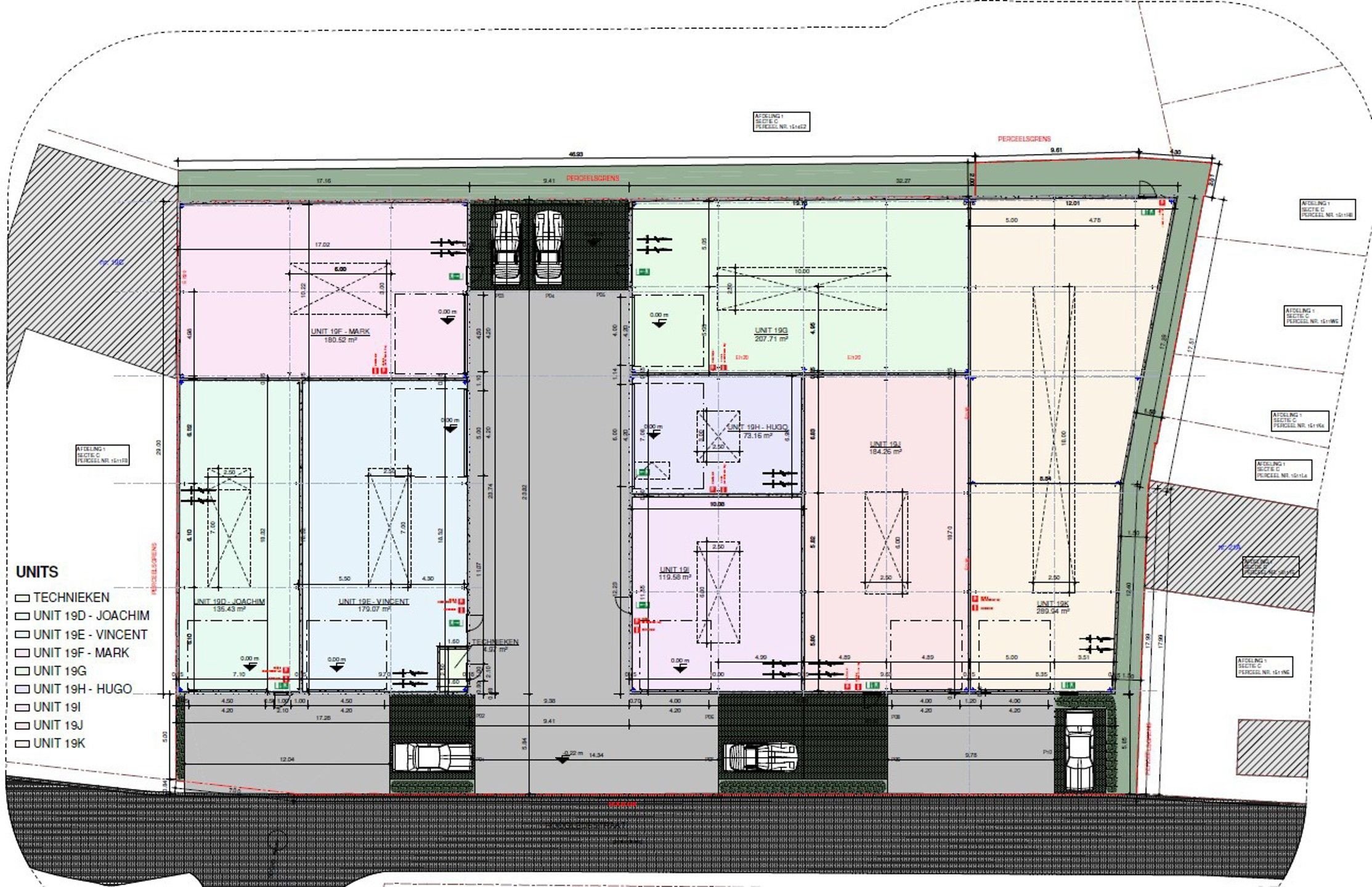
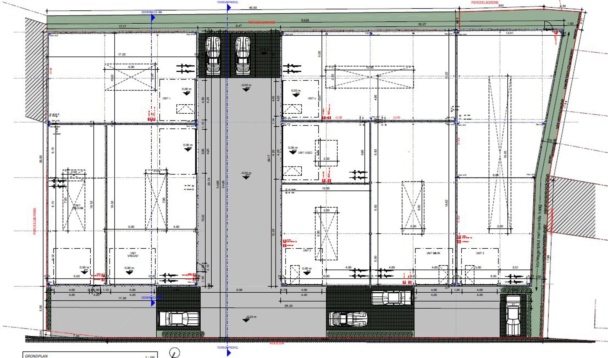
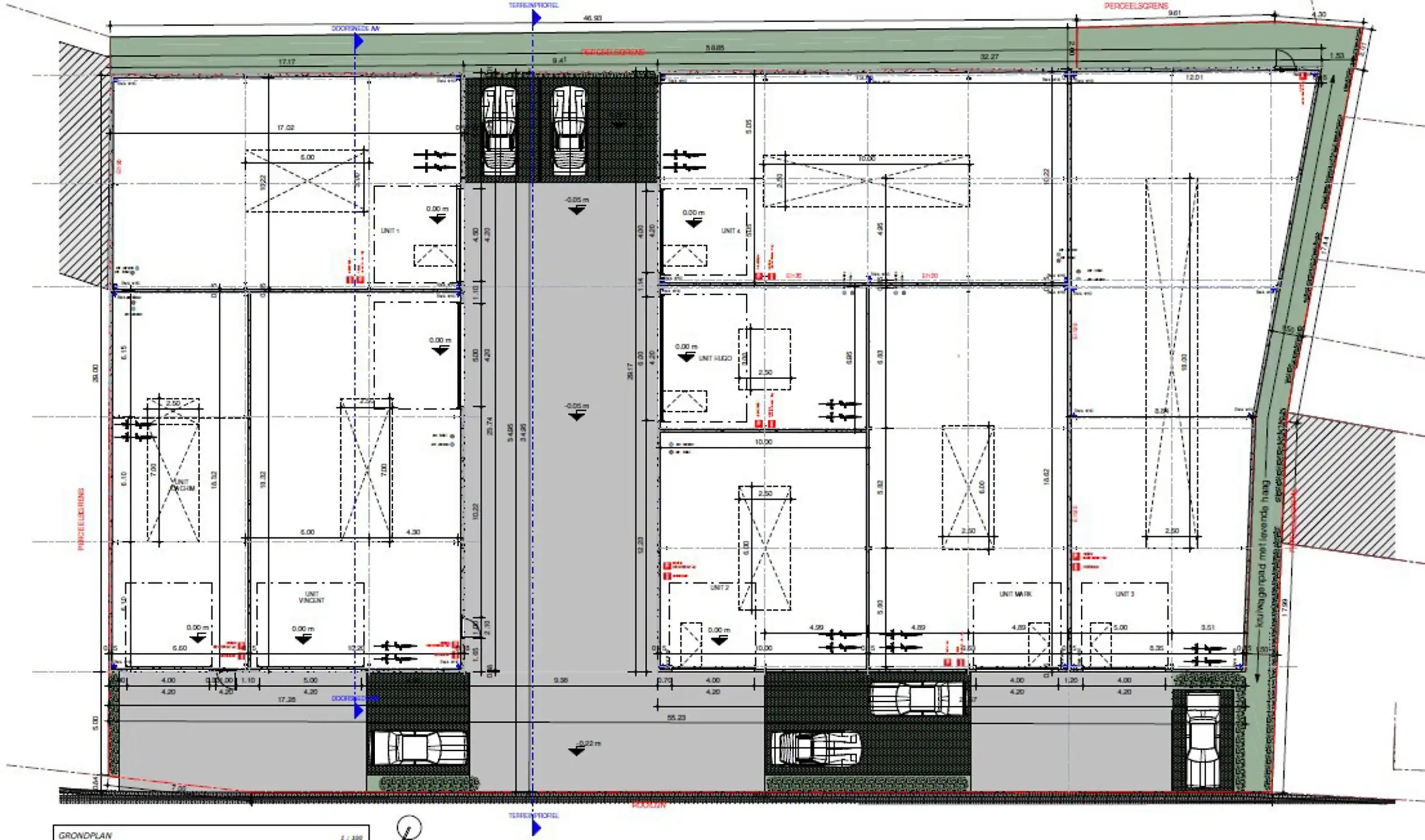
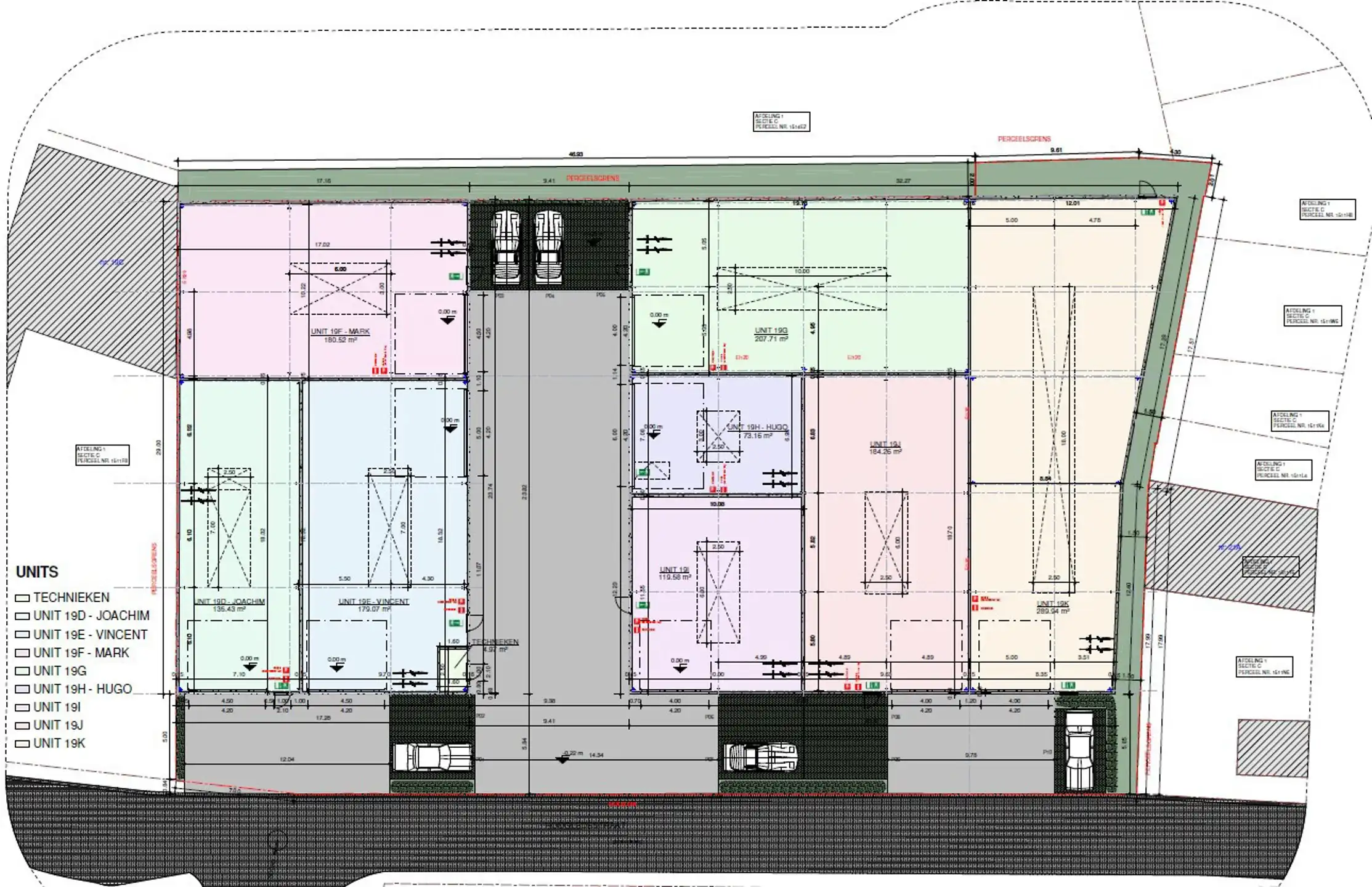
Magazijn te huur 290m² in het nieuwe bedrijventerrein ‘Cortemarck Park'
ALGEMEEN
Het nieuwe bedrijventerrein ‘Cortemarck Park’ bevindt zich op het grondgebied
Kortemark, gelegen te West-Vlaanderen, Hoogledestraat 19 D - K.
Het KMO-park situeert zich in een zijstraat van de Hoogledestraat op een
boogscheut van de Staatsbaan (N35, Lichtervelde-Diksmuide).
Vlotte bereikbaarheid via de N35 met aansluiting naar E32 tussen Torhout en
Roeselare alsook naar E403 richting Brugge en Kortrijk.
Elke unit is opgebouwd uit een kwalitatief afgewerkte bedrijfsruimte zonder
tussenkolommen geschikt voor groothandel, productie of stockage, eventueel met
bijhorende, afgescheiden handels- of bureauruimte.
De bedrijvenunits worden casco verkocht,
Kenmerken
- Staalconstructie
- Betonpanelen van 15 cm
- Casco
- Hoogte 6,30m
- Lichtstraat
- Sectionaal poort
- Niet-verwarmde magazijnen
- Geen tussenkolommen
- Volle betonpanelen
- Automatische sectionaalpoort
- Bijhorende parkeerplaatsen
- Vermogen elektriciteit: 40A 3x400V
- Brandklasse B
Nutsvoorzieningen
Per unit is het volgende voorzien:
- Elektriciteitskabel vanuit tellerlokaal tot in unit
- Waterleiding tot in unit
- Internetkabel vanuit tellerlokaal tot in unit
- Bekabeling voor branddetectie
Volgens de richtlijnen van de betrokken nutsmaatschappijen wordt de mogelijkheid
voorzien voor aansluiting van water, elektriciteit en data (Proximus):
- 40A 3N400V, aansluiting tot binnen de unit.
Er is geen gasaansluiting voorzien.
De parkeerplaatsen worden voorzien in grasdallen op betonpuin.
FINANCIEEL
Unit K : 289,94m² aan 1350€/m²
+ Parking 1 plaats 2.500€
TOTALE PRIJS 393.919.€
* casco afwerking
* kosten nutsvoorzieningen niet inbegrepen €9.070€
(+meterkast,opmetingsplan,basisate unit en parking,postinterventiedossier en brandcentrale inbegrepen)
* alle prijzen exclusief BTW en reguliere kosten
Het nieuwe bedrijventerrein ‘Cortemarck Park’ bevindt zich op het grondgebied
Kortemark, gelegen te West-Vlaanderen, Hoogledestraat 19 D - K.
Het KMO-park situeert zich in een zijstraat van de Hoogledestraat op een
boogscheut van de Staatsbaan (N35, Lichtervelde-Diksmuide).
Vlotte bereikbaarheid via de N35 met aansluiting naar E32 tussen Torhout en
Roeselare alsook naar E403 richting Brugge en Kortrijk.
Elke unit is opgebouwd uit een kwalitatief afgewerkte bedrijfsruimte zonder
tussenkolommen geschikt voor groothandel, productie of stockage, eventueel met
bijhorende, afgescheiden handels- of bureauruimte.
De bedrijvenunits worden casco verkocht,
Kenmerken
- Staalconstructie
- Betonpanelen van 15 cm
- Casco
- Hoogte 6,30m
- Lichtstraat
- Sectionaal poort
- Niet-verwarmde magazijnen
- Geen tussenkolommen
- Volle betonpanelen
- Automatische sectionaalpoort
- Bijhorende parkeerplaatsen
- Vermogen elektriciteit: 40A 3x400V
- Brandklasse B
Nutsvoorzieningen
Per unit is het volgende voorzien:
- Elektriciteitskabel vanuit tellerlokaal tot in unit
- Waterleiding tot in unit
- Internetkabel vanuit tellerlokaal tot in unit
- Bekabeling voor branddetectie
Volgens de richtlijnen van de betrokken nutsmaatschappijen wordt de mogelijkheid
voorzien voor aansluiting van water, elektriciteit en data (Proximus):
- 40A 3N400V, aansluiting tot binnen de unit.
Er is geen gasaansluiting voorzien.
De parkeerplaatsen worden voorzien in grasdallen op betonpuin.
FINANCIEEL
Unit K : 289,94m² aan 1350€/m²
+ Parking 1 plaats 2.500€
TOTALE PRIJS 393.919.€
* casco afwerking
* kosten nutsvoorzieningen niet inbegrepen €9.070€
(+meterkast,opmetingsplan,basisate unit en parking,postinterventiedossier en brandcentrale inbegrepen)
* alle prijzen exclusief BTW en reguliere kosten
Energie
Op de kaart

Financieel
| Prijs |
|---|
Berekening kosten
Je aankoopkosten? Die heb je snel berekent via de knop hieronder.
Bijkomende info
Gebouw
| Bewoonbaar (m²) | 290 |
|---|---|
| Badkamers | 0 |
| Slaapkamers | 0 |
| Parkeerplaatsen | 0 |
Faciliteiten
| Type vloer |
|---|
Perceel
| Tuin oppervlakte (m²) | 0 |
|---|
Vergunning
| Vergunning | Geen beschikbaar |
|---|---|
| Verkavelingsvergunning | Geen beschikbaar |
Uitrusting
| Parking | Nee |
|---|---|
| Garage | Nee |
| Tuin | Nee |
| Terras | Nee |
Een pand van
OREON PROPERTIES
Oreon Properties
Vastgoedmakelaar Oreon Properties is uw expert op het vlak van (ver)huur of (ver)koop van kantoren, logistiek of industrieel vastgoed, investeren in vastgoed en vastgoedbeheer. Investeerders en ondernemingen die op zoek zijn naar kantoren, logistiek of industrieel vastgoed kunnen bij Oreon Properties aankloppen voor professioneel advies op maat en begeleiding bij al hun investeringen en vastgoedtransacties.
Leer meer over vastgoed
04 January 2026
Zoek je een kantoor, een magazijn of… iets ertussenin? Bedrijfsvastgoed uitgelegd
05 November 2024
Bedrijfsvastgoed in transitie: ontdek de toekomst van werkplekken
16 October 2024
Opbrengsteigendom: een slim pad naar passief inkomen en vermogensgroei
09 September 2024