> Te koop > Kortemark > Huis > Nieuw te bouwen alleenstaande woning te Kortemark.
Nieuw

Nieuw te bouwen alleenstaande woning te Kortemark.

€ 585.294

8610 Kortemark

Een pand van Your Home

Volledige aanbod

Jouw zoektocht

Jouw scoretabel voor dit pand
Aan het laden...
Aan het laden...

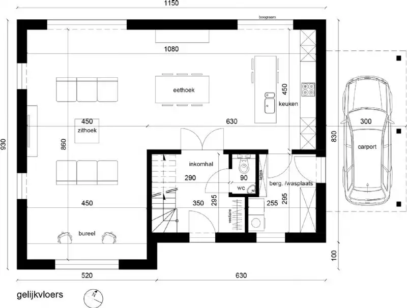
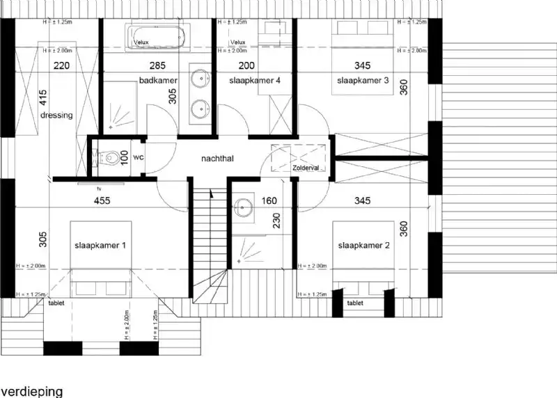
Overzicht


  • 4 Slaapkamer(s)
  • 2 Badkamer(s)
  • 2 Toilet(ten)
  • 1 Living(s)

Beschrijving


Zie je jezelf al staan voor deze voorbeeldwoning? Perfect. Wij luisteren naar jouw behoeftes en budget én ontwerpen zo een woning op maat. Dat klopt, deze woning is volledig te personaliseren volgens eigen stijl. Geen vaststaand ontwerp, wel een eigen thuis die kadert binnen jouw budget. Wij helpen je met onze expertise en kennis zodat jouw wooncomfort niet te kort schiet.

Begint het ook al te kriebelen? Neem dan gerust contact op voor meer informatie.

Mail naar aanvraag@yourhome.be of bel 056 755 788

Referentie: YH_CH_NTB_20260123

Energie


Financieel


Prijs € 585.294

Bijkomende info


Gebouw
Badkamers 2
Slaapkamers 4
Keukens 1
Leefruimtes 1
Toiletten 2

Een pand van


Your Home
Logo van makelaar: Your Home
Your Home - Samen bouwen
Your Home is een persoonlijke bouwpartner voor zij die dromen van een nieuwbouwwoning of totaalrenovatie. Wij vertalen jouw bouwdroom in een woning die perfect bij jou past. Van bouwen op maat tot totaalrenovatie, het kan allemaal!
Logo van makelaar: Your Home
1103775
Nieuw te bouwen alleenstaande woning te Kortemark. foto {{pictureIndex}}

Nieuw te bouwen alleenstaande woning te Kortemark.

€ 585.294

8610 Kortemark

Bezoek het pand

Vul jouw contactgegevens hieronder in en de makelaar contacteert je.

Leer meer over vastgoed

Nieuw
23 March 2026
Op Spotto zoeken als een pro: 10 slimme tips
Nieuw
21 March 2026
Hoeveel kan ik lenen om een huis te kopen?
01 March 2026
Wanneer heb ik een bouwvergunning of omgevingsvergunning nodig?
17 February 2026
Hoe breng ik een bod uit op een woning?