Jouw zoektocht
Jouw scoretabel voor dit pand
Aan het laden...
Jouw geplande bezichtigingen
Aan het laden...
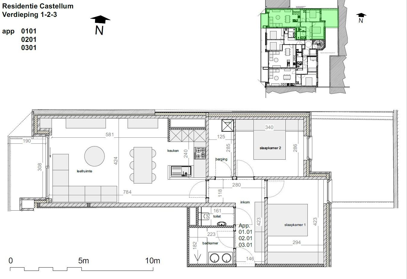
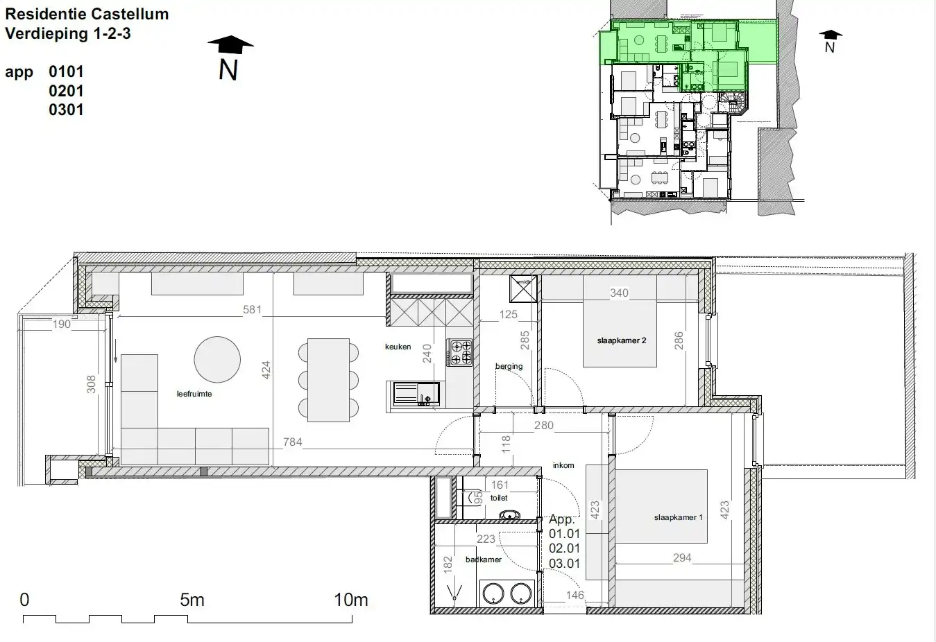
Overzicht
- 83 m² bewoonbaar
- 89 m² grond
- 2 Slaapkamer(s)
- 1 Badkamer(s)
- 1 Toilet(ten)
Beschrijving
CENTRAAL GELEGEN NIEUWBOUWPROJECT OP 50M VAN HET MARKTPLEIN VAN DE PANNE.
Op 50m van het marktplein van De Panne en gelegen in een rustige straat ligt ons nieuwbouwproject "Castellum". Residentie "Castellum" telt 10 appartementen en 2 penthouseappartementen. Er zijn twee parkeerplaatsen beschikbaar.
De appartementen worden afgewerkt met kwalitatieve materialen en aandacht voor de nieuwste trends. Deze nieuwbouwappartementen zijn perfect om zelf in te wonen of als investering om te verhuren. Ze beschikken over een mooi terras. De grote raampartijen zorgen voor een overvloed aan zonlicht. De appartementen hebben een woonoppervlakte tussen de 75m² en 86m². Verkoop onder btw-stelsel en registratie op de grondwaarde. E-peil 40. Prijzen vanaf 255.000 EUR.
Troeven van deze residentie : centrale en rustige ligging, dichtbij openbaar vervoer, kleinschalige residentie, hoogwaardige afwerking op maat van de klant.
Op 50m van het marktplein van De Panne en gelegen in een rustige straat ligt ons nieuwbouwproject "Castellum". Residentie "Castellum" telt 10 appartementen en 2 penthouseappartementen. Er zijn twee parkeerplaatsen beschikbaar.
De appartementen worden afgewerkt met kwalitatieve materialen en aandacht voor de nieuwste trends. Deze nieuwbouwappartementen zijn perfect om zelf in te wonen of als investering om te verhuren. Ze beschikken over een mooi terras. De grote raampartijen zorgen voor een overvloed aan zonlicht. De appartementen hebben een woonoppervlakte tussen de 75m² en 86m². Verkoop onder btw-stelsel en registratie op de grondwaarde. E-peil 40. Prijzen vanaf 255.000 EUR.
Troeven van deze residentie : centrale en rustige ligging, dichtbij openbaar vervoer, kleinschalige residentie, hoogwaardige afwerking op maat van de klant.
Energie
![]() |
- Energieverbruik: 40 kWh/m²/jaar
- E-peil: E0
- Beglazing: Standaard dubbel
Op de kaart

Financieel
| Prijs |
|---|
Bijkomende info
Gebouw
| Bouwjaar | 2023 |
|---|---|
| Bouwcertificaat | Nee |
| Bewoonbaar (m²) | 83 |
| Verdieping | 1 |
| Badkamers | 1 |
| Slaapkamers | 2 |
| Verdiepingen | 4 |
| Garages | 0 |
| Parkeerplaatsen | 0 |
| Toiletten | 1 |
Faciliteiten
| Beglazing | Standaard dubbel |
|---|---|
| Septische tank | Nee |
Perceel
| Overstromingsgevoelig | Geen |
|---|---|
| Totale oppervlakte (m²) | 89 |
| Bebouwde oppervlakte (m²) | 0 |
| Oppervlakte terras (m²) | 0 |
| Oriëntatie tuin | West |
Vergunning
| Verkavelingsvergunning | Geen beschikbaar |
|---|
Uitrusting
| Investeringspand | Nee |
|---|---|
| Parking | Nee |
| Garage | Nee |
| Opslagruimte | Ja |
| Terras | Ja |
| Lift | Ja |
| Rioolaansluiting | Nee |
| Gasaansluiting | Ja |
| Wateraansluiting | Ja |
| Elektriciteitsaansluiting | Ja |
| Internetaansluiting | Nee |
| Telefoonaansluiting | Nee |
| Zonnepanelen | Nee |
| Zonneboiler | Nee |
| Alarm | Nee |
| Videofoon | Nee |
| Grondwaterput | Nee |
Appartementsblok
| Aantal verdiepingen | 4 |
|---|---|
| Lift | Ja |
| Intercom | Nee |
Leer meer over vastgoed
23 March 2026
Op Spotto zoeken als een pro: 10 slimme tips
21 March 2026
Hoeveel kan ik lenen om een huis te kopen?
01 March 2026
Wanneer heb ik een bouwvergunning of omgevingsvergunning nodig?
17 February 2026
