Residentie Doornpanne G1
Een pand van Immo De Panne
Favoriet
Jouw zoektocht
Jouw scoretabel voor dit pand
Aan het laden...
Jouw geplande bezichtigingen
Aan het laden...
Overzicht
- 2284 m² grond
- 1 Garage(s)
Beschrijving
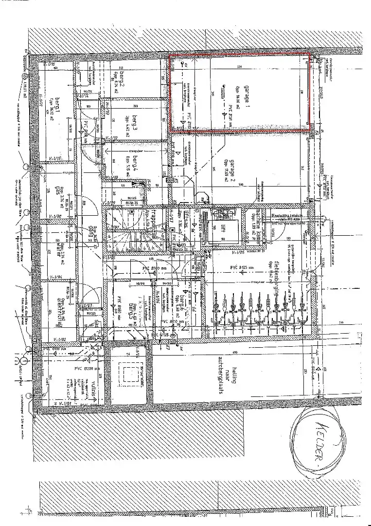
Garagebox in een kleine residentie in het centrum van De Panne, vlakbij de markt.
Garagebox: Lengte: ± 5m80 Breedte: ± 3m12 Hoogte: ± 2m88
Garagepoort: Breedte: ± 2m38 Hoogte: ± 2m06
Verlichting en elektriciteit voorzien in de garage.
Meer info en documenten op www.immodepanne.be
Garagebox: Lengte: ± 5m80 Breedte: ± 3m12 Hoogte: ± 2m88
Garagepoort: Breedte: ± 2m38 Hoogte: ± 2m06
Verlichting en elektriciteit voorzien in de garage.
Meer info en documenten op www.immodepanne.be
Energie
- Verwarming: Geen
- Beglazing: Onbekend
Op de kaart

Downloads
Financieel
| Prijs | |
|---|---|
| Kadastraal inkomen (niet geïndexeerd) | € 81 |
Berekening kosten
Je aankoopkosten? Die heb je snel berekend via de knop hieronder.
Bijkomende info
Gebouw
| Bouwjaar | 2012 |
|---|---|
| Staat | Goed onderhouden |
| Is beschermd | Nee |
| Verdieping | -1 |
Faciliteiten
| Luiken | Nee |
|---|---|
| Primair verwarmingstype | Geen verwarming |
| Brandstof primaire verwarming | Geen |
| Warm water type | Geen verwarming |
Perceel
| Overstromingsgevoelig | Geen |
|---|---|
| P-score | A |
| G-score | A |
| Voorkeurrecht | Nee |
| Totale oppervlakte (m²) | 2284 |
Vergunning
| Vergunning | Vergunning beschikbaar |
|---|---|
| Verkavelingsvergunning | Geen beschikbaar |
| Bouwovertreding | Geen |
| Bouwovertreding dagvaardiging | Geen |
| Type gebied | Stedelijk |
Uitrusting
| Meerdere eigenaars | Nee |
|---|---|
| Geschikt als kangoeroewoning | Nee |
| Geschikt voor rolstoelgebruikers | Nee |
| Geschikt voor praktijk | Nee |
| Volledig onderkelderd | Nee |
| Parking | Nee |
| Garage | Ja |
| Thuiskantoor | Nee |
| Kelder | Nee |
| Zolder | Nee |
| Opslagruimte | Nee |
| Tuin | Nee |
| Terras | Nee |
| Lift | Nee |
| Rioolaansluiting | Nee |
| Gasaansluiting | Nee |
| Wateraansluiting | Nee |
| Elektriciteitsaansluiting | Ja |
| TV aansluiting | Nee |
| Internetaansluiting | Nee |
| Zonnepanelen | Nee |
| Zonneboiler | Nee |
| Alarm | Nee |
| Zwembad | Nee |
| Jacuzzi | Nee |
| Toonzaal | Nee |
| Ventilatie | Nee |
Een pand van
Immo De Panne
Niet zomaar een agentschap ...
Mevrouw, Mijnheer,
Immo De Panne is niet zomaar een agentschap. Bij Uw eerste bezoek valt dit snel op want ons jong dynamisch team dat oprechtheid en correctheid in hun hart draagt is steeds ter uwer beschikking.
Ons team streeft naar een no-nonsens mentaliteit en levert correcte en volledige informatie af. Ons kantoor werd ingericht op het principe van Home Office en het interieur is nieuw en gezellig net als onze aanpak.
We houden van persoonlijk contact met onze klanten en helpen U vrijblijvend zoeken naar de woning van Uw dromen. Dit is Immo De Panne, een kantoor waar iedereen gelijkwaardig behandeld wordt.
Immo De Panne, Uw sleutel tot succes
Vriendelijke Groeten
Frédéric Delrive
Zaakvoerde
Doornpanne G1
Leer meer over vastgoed
23 March 2026
Op Spotto zoeken als een pro: 10 slimme tips
21 March 2026
Hoeveel kan ik lenen om een huis te kopen?
01 March 2026
Wanneer heb ik een bouwvergunning of omgevingsvergunning nodig?
17 February 2026