Nieuw
Nieuw woonproject in Koekelare - ruime bouwkavels op toplocatie
Een pand van Vastgoed Sinnaeve
Favoriet
Jouw zoektocht
Jouw scoretabel voor dit pand
Aan het laden...
Jouw geplande bezichtigingen
Aan het laden...
Overzicht
- 611 m² grond
- 1 Tuin
Overstromingsgevaar perceel
Beschrijving
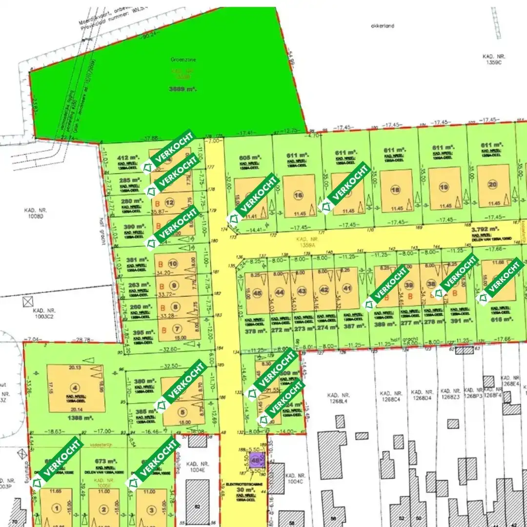
Langs de Hovaerestraat (rechts naast huisnummer 70) in Koekelare realiseren ze deze nieuwe verkaveling waar lot 20 te koop is. Je woont er op een boogscheut van het centrum, op wandelafstand van winkels (supermarkt op 650m, bakkerij op 500m), scholen (basisschool en middelbare school op 1 km) en openbaar vervoer (bushalte op 700m). Even uitwaaien in de natuur? Dat kan in het nabijgelegen Koekelarebos en Arboretum.
Dit villaperceel voor open bebouwing heeft een oppervlakte van 611m² (lot 20) groot. De grootte van de percelen en de ruime stedenbouwkundige voorschriften (één of twee bouwlagen, vlak of hellend dak) bieden tal van mogelijkheden. Hier bouwen ze jouw nieuwe, energiezuinige woning volledig op maat, tegen een vaste prijs.
Contacteer ons voor meer info of een afspraak. Of vraag jouw gratis inspiratieboek: 250 pagina's boordevol woonideeën.
Dit villaperceel voor open bebouwing heeft een oppervlakte van 611m² (lot 20) groot. De grootte van de percelen en de ruime stedenbouwkundige voorschriften (één of twee bouwlagen, vlak of hellend dak) bieden tal van mogelijkheden. Hier bouwen ze jouw nieuwe, energiezuinige woning volledig op maat, tegen een vaste prijs.
Contacteer ons voor meer info of een afspraak. Of vraag jouw gratis inspiratieboek: 250 pagina's boordevol woonideeën.
Energie
- Verwarming: Geen
- Beglazing: Onbekend
Op de kaart

Financieel
| Prijs | |
|---|---|
| Kadastraal inkomen (niet geïndexeerd) | € 0 |
| Kadastraal inkomen (geïndexeerd) | € 0 |
Berekening kosten
Je aankoopkosten? Die heb je snel berekend via de knop hieronder.
Bijkomende info
Gebouw
| Is beschermd | Nee |
|---|
Perceel
| Overstromingsgevoelig | Geen |
|---|---|
| P-score | D |
| Voorkeurrecht | Nee |
| Totale oppervlakte (m²) | 611 |
Vergunning
| Bouwovertreding dagvaardiging | Geen |
|---|---|
| Type gebied | Stedelijk |
Uitrusting
| Meerdere eigenaars | Nee |
|---|---|
| Rioolaansluiting | Nee |
| Gasaansluiting | Nee |
| Wateraansluiting | Nee |
| Elektriciteitsaansluiting | Nee |
| TV aansluiting | Nee |
| Internetaansluiting | Nee |
Een pand van
Vastgoed Sinnaeve
Uw partner voor verkoop en verhuur
Bij Vastgoed Sinnaeve geniet u van persoonlijke service en professionele begeleiding bij elk aspect van uw vastgoeddossier.
Of u nu wilt kopen, verkopen, huren of verhuren – wij zorgen voor een totaaloplossing, op maat van uw situatie.
Met kantoren in Koekelare, Roeselare, Middelkerke en Brugge zijn we altijd dichtbij.
Contacteer ons vandaag nog voor een vrijblijvende kennismaking.
Uw vastgoed, onze zorg.
7428
Leer meer over vastgoed
23 March 2026
Op Spotto zoeken als een pro: 10 slimme tips
21 March 2026
Hoeveel kan ik lenen om een huis te kopen?
01 March 2026
Wanneer heb ik een bouwvergunning of omgevingsvergunning nodig?
17 February 2026