In optie
Nieuw woonproject in Koekelare - ruime bouwkavels op toplocatie
€ 119.060,48
Een pand van Vastgoed Sinnaeve
Overzicht
- 616 m² grond
- 1 Tuin
Overstromingsgevaar perceel
Beschrijving
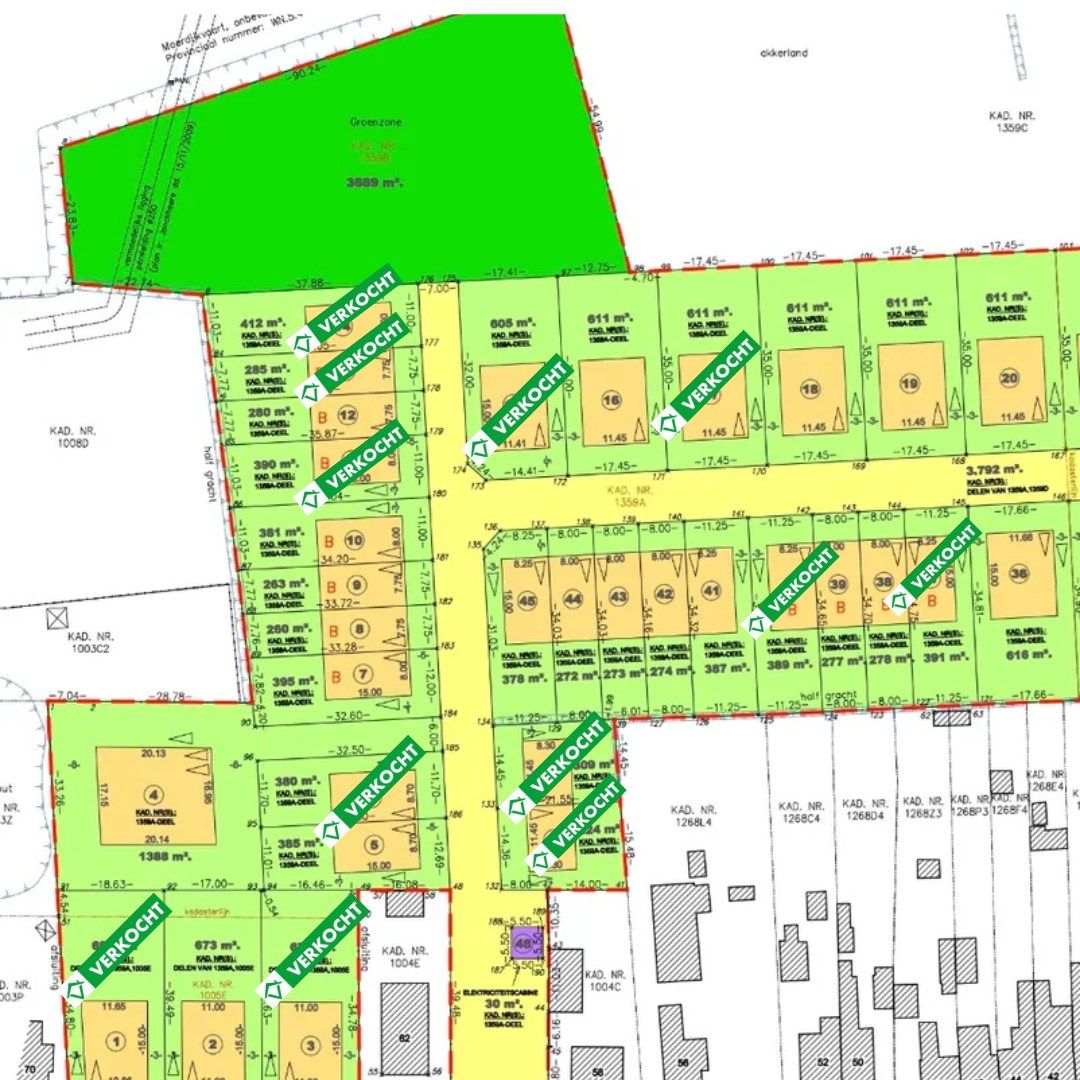
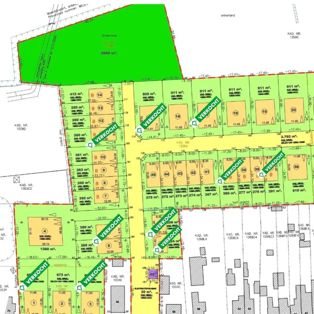
Langs de Hovaerestraat (rechts naast huisnummer 70) in Koekelare realiseren ze deze nieuwe verkaveling waar lot 36 te koop is. Je woont er op een boogscheut van het centrum, op wandelafstand van winkels (supermarkt op 650m, bakkerij op 500m), scholen (basisschool en middelbare school op 1 km) en openbaar vervoer (bushalte op 700m). Even uitwaaien in de natuur? Dat kan in het nabijgelegen Koekelarebos en Arboretum.
Dit villaperceel voor open bebouwing heeft een oppervlakte van 616m² (lot 36) groot. De grootte van de percelen en de ruime stedenbouwkundige voorschriften (één of twee bouwlagen, vlak of hellend dak) bieden tal van mogelijkheden. Hier bouwen ze jouw nieuwe, energiezuinige woning volledig op maat, tegen een vaste prijs.
Contacteer ons voor meer info of een afspraak. Of vraag jouw gratis inspiratieboek: 250 pagina's boordevol woonideeën.
Dit villaperceel voor open bebouwing heeft een oppervlakte van 616m² (lot 36) groot. De grootte van de percelen en de ruime stedenbouwkundige voorschriften (één of twee bouwlagen, vlak of hellend dak) bieden tal van mogelijkheden. Hier bouwen ze jouw nieuwe, energiezuinige woning volledig op maat, tegen een vaste prijs.
Contacteer ons voor meer info of een afspraak. Of vraag jouw gratis inspiratieboek: 250 pagina's boordevol woonideeën.
Energie
- Verwarming: Geen
- Beglazing: Onbekend
Op de kaart

Financieel
| Prijs | |
|---|---|
| Kadastraal inkomen (niet geïndexeerd) | € 0 |
| Kadastraal inkomen (geïndexeerd) | € 0 |
Berekening kosten
Je aankoopkosten? Die heb je snel berekent via de knop hieronder.
Bijkomende info
Gebouw
| Is beschermd | Nee |
|---|
Perceel
| Overstromingsgevoelig | Geen |
|---|---|
| P-score | D |
| Voorkeurrecht | Nee |
| Totale oppervlakte (m²) | 616 |
Vergunning
| Bouwovertreding dagvaardiging | Geen |
|---|---|
| Type gebied | Stedelijk |
Uitrusting
| Meerdere eigenaars | Nee |
|---|---|
| Rioolaansluiting | Nee |
| Gasaansluiting | Nee |
| Wateraansluiting | Nee |
| Elektriciteitsaansluiting | Nee |
| TV aansluiting | Nee |
| Internetaansluiting | Nee |
Een pand van
Vastgoed Sinnaeve
Uw partner voor verkoop en verhuur
Bij Vastgoed Sinnaeve geniet u van persoonlijke service en professionele begeleiding bij elk aspect van uw vastgoeddossier.
Of u nu wilt kopen, verkopen, huren of verhuren – wij zorgen voor een totaaloplossing, op maat van uw situatie.
Met kantoren in Koekelare, Roeselare, Middelkerke en Brugge zijn we altijd dichtbij.
Contacteer ons vandaag nog voor een vrijblijvende kennismaking.
Uw vastgoed, onze zorg.
7432
Leer meer over vastgoed
Nieuw
24 November 2025
Uitgezocht voor jouw gemeente: Hoeveel stijgt de waarde van je woning door een renovatie?
22 October 2025
Hoeveel kan ik lenen om een huis te kopen?
11 June 2025
Huis kopen met bouwovertreding? Dit moet je weten
11 May 2025