Nieuw
Moderne tijdloze woning te koop te Koekelare
€ 396.584
Een pand van Vastgoed Sinnaeve
Overzicht
- 395 m² grond
- 4 Slaapkamer(s)
- 2 Badkamer(s)
- 2 Toilet(ten)
- 1 Tuin
Overstromingsgevaar perceel
Beschrijving
Langs de Hovaerestraat (lot 7) in Koekelare realiseren ze deze moderne, tijdloze woning. Je woont er op een boogscheut van het centrum, op wandelafstand van winkels, scholen en openbaar vervoer. Even uitwaaien in de natuur? Dat kan in het nabijgelegen Koekelarebos en Arboretum.
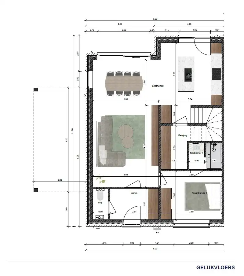
Deze verrassend ruime, energiezuinige nieuwbouwwoning omvat: een inkomhal met toilet, een ruime woon- en eetkamer met veel lichtinval, aansluitend een -naar eigen keuze ingerichte- open keuken - badkamer en slaapkamer. Op de verdieping: 3 slaapkamers, een badkamer (met bad, inloopdouche en dubbele wastafel), een afzonderlijk toilet en een zolderverdieping op verdiep 2. Je kiest zelf de afwerkingsmaterialen voor keuken, badkamer, vloeren en binnendeuren. Zo kan je precies wonen zoals jij het zelf wilt. De woning heeft een ruime tuin om volop te genieten!
Het gebruik van een warmtepomp, in combinatie met vloerverwarming en zonnepanelen zorgt ervoor dat jouw toekomstige energiefactuur onder controle blijft (E10).
Een kijkje nemen? Contacteer ons voor meer informatie.
Deze prijs is exclusief de bijkomende kosten. Op de bouwgrond betaal je registratierechten (12% in Vlaanderen) en ereloon notaris. Op de constructie 21 % btw
Deze verrassend ruime, energiezuinige nieuwbouwwoning omvat: een inkomhal met toilet, een ruime woon- en eetkamer met veel lichtinval, aansluitend een -naar eigen keuze ingerichte- open keuken - badkamer en slaapkamer. Op de verdieping: 3 slaapkamers, een badkamer (met bad, inloopdouche en dubbele wastafel), een afzonderlijk toilet en een zolderverdieping op verdiep 2. Je kiest zelf de afwerkingsmaterialen voor keuken, badkamer, vloeren en binnendeuren. Zo kan je precies wonen zoals jij het zelf wilt. De woning heeft een ruime tuin om volop te genieten!
Het gebruik van een warmtepomp, in combinatie met vloerverwarming en zonnepanelen zorgt ervoor dat jouw toekomstige energiefactuur onder controle blijft (E10).
Een kijkje nemen? Contacteer ons voor meer informatie.
Deze prijs is exclusief de bijkomende kosten. Op de bouwgrond betaal je registratierechten (12% in Vlaanderen) en ereloon notaris. Op de constructie 21 % btw
Energie
- Beglazing: Standaard dubbel
Op de kaart

Financieel
| Prijs | |
|---|---|
| Kadastraal inkomen (niet geïndexeerd) | € 0 |
| Kadastraal inkomen (geïndexeerd) | € 0 |
Berekening kosten
Je aankoopkosten? Die heb je snel berekend via de knop hieronder.
Bijkomende info
Gebouw
| Bouwjaar | 2026 |
|---|---|
| Is beschermd | Nee |
| Badkamers | 2 |
| Slaapkamers | 4 |
| Toiletten | 2 |
Faciliteiten
| Materiaal ramenomlijstingen | PVC |
|---|---|
| Beglazing | Standaard dubbel |
| Luiken | Nee |
| Primaire verwarmingsbron | EXTRA_INFO.OUTFITTING.VALUE.HEATPUMPAIRGROUNDWATER |
| Warm water type | Geen verwarming |
Perceel
| Overstromingsgevoelig | Geen |
|---|---|
| P-score | D |
| Totale oppervlakte (m²) | 395 |
Vergunning
| Verkavelingsvergunning | Vergunning beschikbaar |
|---|---|
| Bouwovertreding dagvaardiging | Geen |
| Type gebied | Stedelijk |
Uitrusting
| Meerdere eigenaars | Nee |
|---|---|
| Geschikt als kangoeroewoning | Nee |
| Geschikt voor rolstoelgebruikers | Nee |
| Geschikt voor praktijk | Nee |
| Volledig onderkelderd | Nee |
| Parking | Nee |
| Garage | Nee |
| Thuiskantoor | Nee |
| Kelder | Nee |
| Zolder | Nee |
| Opslagruimte | Nee |
| Tuin | Ja |
| Terras | Nee |
| Lift | Nee |
| Rioolaansluiting | Ja |
| Gasaansluiting | Nee |
| Wateraansluiting | Ja |
| Elektriciteitsaansluiting | Ja |
| TV aansluiting | Nee |
| Internetaansluiting | Nee |
| Zonnepanelen | Nee |
| Zonneboiler | Nee |
| Alarm | Nee |
| Zwembad | Nee |
| Jacuzzi | Nee |
| Toonzaal | Nee |
| Ventilatie | Nee |
Een pand van
Vastgoed Sinnaeve
Uw partner voor verkoop en verhuur
Bij Vastgoed Sinnaeve geniet u van persoonlijke service en professionele begeleiding bij elk aspect van uw vastgoeddossier.
Of u nu wilt kopen, verkopen, huren of verhuren – wij zorgen voor een totaaloplossing, op maat van uw situatie.
Met kantoren in Koekelare, Roeselare, Middelkerke en Brugge zijn we altijd dichtbij.
Contacteer ons vandaag nog voor een vrijblijvende kennismaking.
Uw vastgoed, onze zorg.
7822
Leer meer over vastgoed
24 November 2025
Uitgezocht voor jouw gemeente: Hoeveel stijgt de waarde van je woning door een renovatie?
22 October 2025
Hoeveel kan ik lenen om een huis te kopen?
11 June 2025
Huis kopen met bouwovertreding? Dit moet je weten
11 May 2025