Nieuw
Moderne nieuwbouwwoning met uitzonderlijk wooncomfort te Koekelare (De Mokker)
€ 374.000
Een pand van Vastgoed Sinnaeve
Overzicht
- 156 m² bewoonbaar
- 517 m² grond
- 4 Slaapkamer(s)
- 1 Badkamer(s)
- 2 Toilet(ten)
- 1 Tuin
- 1 Garage(s)
Beschrijving
In een rustige, jonge woonwijk aan het einde van een doodlopende straat vindt u deze moderne nieuwbouwwoning die uitblinkt in licht, ruimte en hoogwaardige afwerking. Een perfecte match voor wie houdt van een stijlvolle, energiezuinige en zorgeloze woonomgeving.
Het zuid-oost georiënteerde perceel van 517 m² laat u dagelijks genieten van aangename zonmomenten, zowel in de tuin als in de leefruimten. Binnen wordt u meteen verrast door de royale open ruimtes, grote ramen en een overvloed aan natuurlijk licht: een woning die meteen een warm en ruimtelijk gevoel biedt.
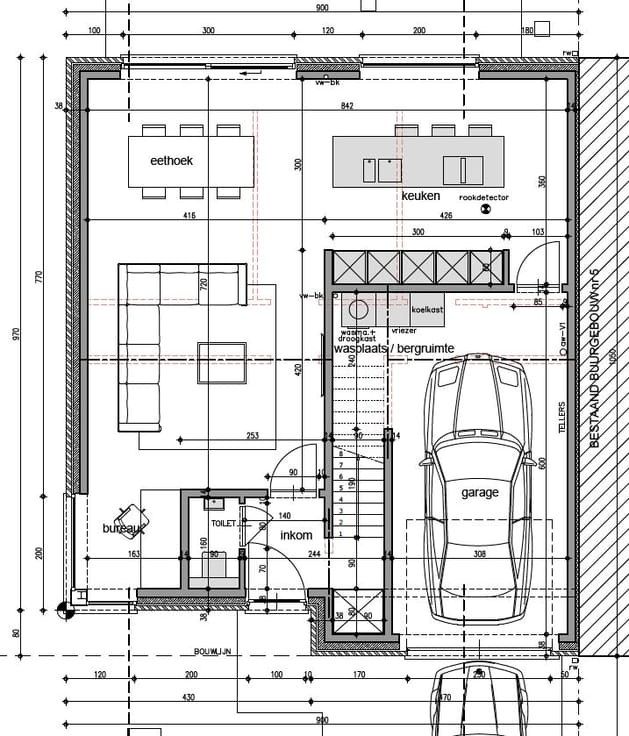
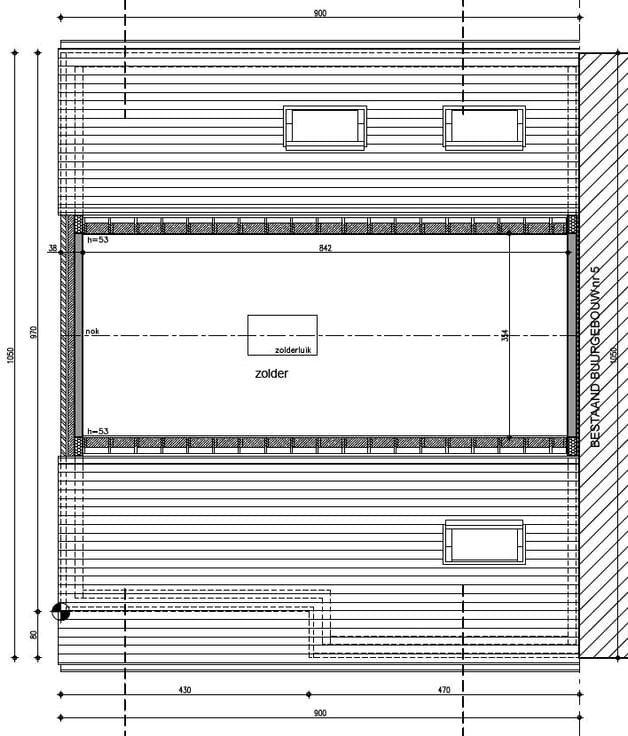
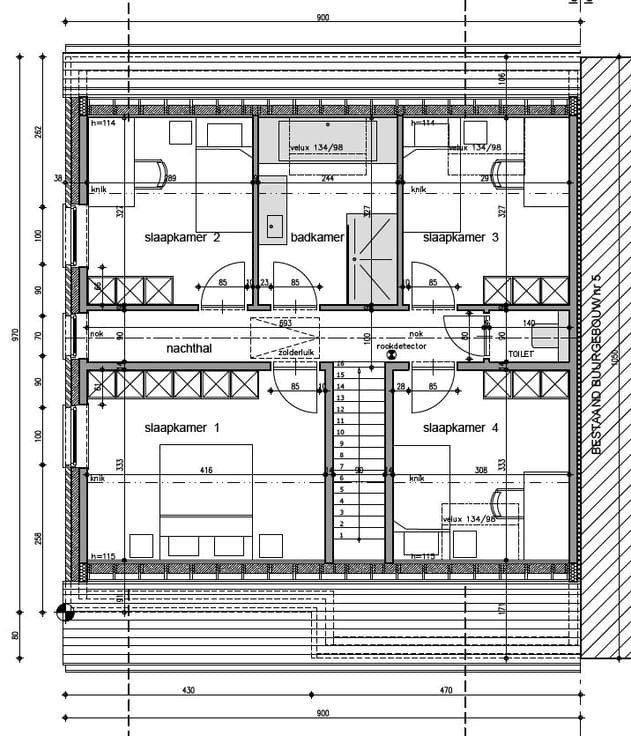
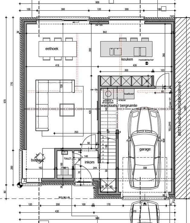
Met een bruto vloeroppervlakte van 156 m² beschikt de woning over een inpandige garage en vier volwaardige slaapkamers. Twee kamers zijn bovendien uitgerust met elektrisch bediende rolluiken. Extra bergruimte nodig? De praktische zolderverdieping van 30 m² biedt onmiddellijk bruikbare opslagmogelijkheden.
De kwalitatieve afwerking zet de toon in heel de woning. Denk aan:
- een stijlvolle eiken trap
- sanitair van topmerken zoals Villeroy & Boch, Grohe en Hansgrohe
- een keuken van Belgische kwaliteit met composiet werkblad, Siemens-toestellen en Bora-kookplaat
- smaakvolle laminaatafwerking in de slaapkamers
- Gelijkvloers: 91 m² bruto vloeroppervlakte
- Eerste verdieping: 65 m² bruto vloeroppervlakte
- Zolderverdieping: 29,80 m² netto bruikbare ruimte
Ook op energetisch vlak scoort deze woning bijzonder sterk. Met een E-peil van E14 (voorstudie), 12 zonnepanelen van 460 Wp, vloerverwarming in de leefruimten en een uitstekende luchtdichtheid bent u verzekerd van een toekomstgerichte én zuinige woonoplossing.
Het perceel heeft bovendien overstromingsscore A, maximale gemoedsrust gegarandeerd.
Alle dagelijkse faciliteiten bevinden zich op wandelafstand: school, bakker, slager, apotheek en openbaar vervoer. En het centrum van Koekelare bereikt u in amper 5 minuten.
Bent u op zoek naar een moderne woning waar kwaliteit, comfort en energiezuinigheid hand in hand gaan? Dan is dit een unieke kans.
Neem gerust contact met ons op voor meer informatie of om uw bezoek vast te leggen.
Het zuid-oost georiënteerde perceel van 517 m² laat u dagelijks genieten van aangename zonmomenten, zowel in de tuin als in de leefruimten. Binnen wordt u meteen verrast door de royale open ruimtes, grote ramen en een overvloed aan natuurlijk licht: een woning die meteen een warm en ruimtelijk gevoel biedt.
Met een bruto vloeroppervlakte van 156 m² beschikt de woning over een inpandige garage en vier volwaardige slaapkamers. Twee kamers zijn bovendien uitgerust met elektrisch bediende rolluiken. Extra bergruimte nodig? De praktische zolderverdieping van 30 m² biedt onmiddellijk bruikbare opslagmogelijkheden.
De kwalitatieve afwerking zet de toon in heel de woning. Denk aan:
- een stijlvolle eiken trap
- sanitair van topmerken zoals Villeroy & Boch, Grohe en Hansgrohe
- een keuken van Belgische kwaliteit met composiet werkblad, Siemens-toestellen en Bora-kookplaat
- smaakvolle laminaatafwerking in de slaapkamers
- Gelijkvloers: 91 m² bruto vloeroppervlakte
- Eerste verdieping: 65 m² bruto vloeroppervlakte
- Zolderverdieping: 29,80 m² netto bruikbare ruimte
Ook op energetisch vlak scoort deze woning bijzonder sterk. Met een E-peil van E14 (voorstudie), 12 zonnepanelen van 460 Wp, vloerverwarming in de leefruimten en een uitstekende luchtdichtheid bent u verzekerd van een toekomstgerichte én zuinige woonoplossing.
Het perceel heeft bovendien overstromingsscore A, maximale gemoedsrust gegarandeerd.
Alle dagelijkse faciliteiten bevinden zich op wandelafstand: school, bakker, slager, apotheek en openbaar vervoer. En het centrum van Koekelare bereikt u in amper 5 minuten.
Bent u op zoek naar een moderne woning waar kwaliteit, comfort en energiezuinigheid hand in hand gaan? Dan is dit een unieke kans.
Neem gerust contact met ons op voor meer informatie of om uw bezoek vast te leggen.
Energie
- E-peil: E14
- Verwarming: Gas
- Beglazing: Hoog efficient dubbel
Op de kaart

Financieel
| Prijs | |
|---|---|
| Kadastraal inkomen (niet geïndexeerd) | € 0 |
| Kadastraal inkomen (geïndexeerd) | € 0 |
Bijkomende info
Gebouw
| Bouwjaar | 2025 |
|---|---|
| Staat | Zo goed als nieuw |
| Is beschermd | Nee |
| Bewoonbaar (m²) | 156 |
| Gevelbreedte | 9 |
| Badkamers | 1 |
| Slaapkamers | 4 |
| Garages | 1 |
| Toiletten | 2 |
Ruimtes
| Slaapkamer | 14 m² |
|---|---|
| Slaapkamer | 9 m² |
| Slaapkamer | 10 m² |
| Slaapkamer | 10 m² |
Faciliteiten
| Keuken | Open keuken |
|---|---|
| Keuken uitrusting | Goed uitgerust |
| Materiaal ramenomlijstingen | PVC |
| Beglazing | Hoog efficient dubbel |
| Luiken | Nee |
| Primair verwarmingstype | Centrale verwarming |
| Primaire verwarmingsbron | Condensatieketel |
| Brandstof primaire verwarming | Gas |
| Primaire verwarming | Vloerverwarming |
| Warm water type | Geen verwarming |
Perceel
| Overstromingsgevoelig | Geen |
|---|---|
| P-score | A |
| G-score | A |
| Voorkeurrecht | Nee |
| Totale oppervlakte (m²) | 517 |
| Oriëntatie tuin | ZuidOost |
Vergunning
| Vergunning | Vergunning beschikbaar |
|---|---|
| Bouwovertreding dagvaardiging | Geen |
| Type gebied | Stedelijk |
Uitrusting
| Meerdere eigenaars | Nee |
|---|---|
| Geschikt als kangoeroewoning | Nee |
| Geschikt voor rolstoelgebruikers | Nee |
| Geschikt voor praktijk | Nee |
| Volledig onderkelderd | Nee |
| Parking | Nee |
| Garage | Ja |
| Thuiskantoor | Nee |
| Kelder | Nee |
| Zolder | Nee |
| Opslagruimte | Nee |
| Tuin | Ja |
| Terras | Ja |
| Lift | Nee |
| Rioolaansluiting | Ja |
| Gasaansluiting | Ja |
| Wateraansluiting | Ja |
| Elektriciteitsaansluiting | Ja |
| TV aansluiting | Nee |
| Internetaansluiting | Ja |
| Zonnepanelen | Ja |
| Zonneboiler | Nee |
| Alarm | Nee |
| Zwembad | Nee |
| Jacuzzi | Nee |
| Toonzaal | Nee |
| Ventilatie | Ja |
Een pand van
Vastgoed Sinnaeve
Uw partner voor verkoop en verhuur
Bij Vastgoed Sinnaeve geniet u van persoonlijke service en professionele begeleiding bij elk aspect van uw vastgoeddossier.
Of u nu wilt kopen, verkopen, huren of verhuren – wij zorgen voor een totaaloplossing, op maat van uw situatie.
Met kantoren in Koekelare, Roeselare, Middelkerke en Brugge zijn we altijd dichtbij.
Contacteer ons vandaag nog voor een vrijblijvende kennismaking.
Uw vastgoed, onze zorg.
7735
Leer meer over vastgoed
Nieuw
24 November 2025
Uitgezocht voor jouw gemeente: Hoeveel stijgt de waarde van je woning door een renovatie?
22 October 2025
Hoeveel kan ik lenen om een huis te kopen?
11 June 2025
Huis kopen met bouwovertreding? Dit moet je weten
11 May 2025