In optie Virtual tour
Instapklaar appartement met 2 slaapkamers en terras in het centrum van Wingene
€ 210.000
Een pand van Vastgoed Wanneyn Missiaen
Overzicht
- 108 m² bewoonbaar
- 2 Slaapkamer(s)
- 1 Badkamer(s)
- 1 Toilet(ten)
- 1 Garage(s)
Overstromingsgevaar gebouw
Overstromingsgevaar perceel
Beschrijving
Alle centrumfuncties zijn binnen een straal van 500m gelegen (school, winkels, bakker, openbaar vervoer ect).
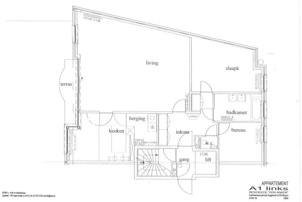
Het appartement gelegen op de eerste verdieping heeft een bewoonbare oppervlakte van 108 m2 en is toegankelijk met een lift.
De inkomhal is ingericht met praktische ingebouwde vestiaire en linnenkast, ook hier is het gastentoilet. De ruime en lichtrijke leefruimte grenst aan het zuid west gericht terras met aanpalend de keuken. De keuken is voldoende ruim om in een tafel voor 4 in te zetten, qua toestellen is er ook alles wat je nodig hebt (oven, microgolf, vaatwasser, frigo), via een kastdeur in de keuken is nog toegang tot de aparte praktische berging. In deze berging is ook voorziening voor wasmachine, droogkast, diepvriezer ect. De badkamer is ingericht met een ligbad en dubbele lavabo. Het grote voordeel is dat er een dagraam is voorzien, in de meeste appartementen wordt een badkamer geventileerd door een afzuigsysteem. Het is altijd fijn om verse lucht op een natuurlijke manier binnen te brengen in een badkamer. Er zijn 2 slaapkamers, ze meten respectievelijk 14 m2 en 9 m2. In de kelderverdieping is er nog een ruime private garagebox, deze is extra diep, daardoor kan je in de winter bv je terrasmeubels stockeren. De garagebox zelf is vlot bereikbaar, via een eenvoudige inrit, geen gekke bochten of smalle doorgangen. De garagebox kan bij aangekocht worden voor 15.000 euro, het is niet verplicht.
Pluspunten :
+ heel ruim en instapklaar
+ goed gekeurde elektriciteit (tot 2050)
+ direct verhuurbaar
+ volledig vakkundig met vlies behangen
+ inbouwkasten
Dit appartement is ideaal gelegen voor wie op zoek is naar een ruim appartement op centrumligging.
Of voor iemand die wilt investeren, het appartement is verhuurbaar voor 750 EUR /md. (excl syndicuskosten)
Bekijk het filmpje: https://www.youtube.com/shorts/4BuPGj07E60
Meer info of een bezoek ter plaatse? Vraag naar Jolien/Louise op 050 70 34 35
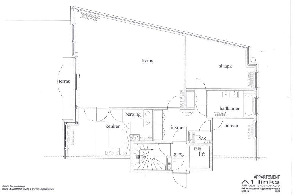
Het appartement gelegen op de eerste verdieping heeft een bewoonbare oppervlakte van 108 m2 en is toegankelijk met een lift.
De inkomhal is ingericht met praktische ingebouwde vestiaire en linnenkast, ook hier is het gastentoilet. De ruime en lichtrijke leefruimte grenst aan het zuid west gericht terras met aanpalend de keuken. De keuken is voldoende ruim om in een tafel voor 4 in te zetten, qua toestellen is er ook alles wat je nodig hebt (oven, microgolf, vaatwasser, frigo), via een kastdeur in de keuken is nog toegang tot de aparte praktische berging. In deze berging is ook voorziening voor wasmachine, droogkast, diepvriezer ect. De badkamer is ingericht met een ligbad en dubbele lavabo. Het grote voordeel is dat er een dagraam is voorzien, in de meeste appartementen wordt een badkamer geventileerd door een afzuigsysteem. Het is altijd fijn om verse lucht op een natuurlijke manier binnen te brengen in een badkamer. Er zijn 2 slaapkamers, ze meten respectievelijk 14 m2 en 9 m2. In de kelderverdieping is er nog een ruime private garagebox, deze is extra diep, daardoor kan je in de winter bv je terrasmeubels stockeren. De garagebox zelf is vlot bereikbaar, via een eenvoudige inrit, geen gekke bochten of smalle doorgangen. De garagebox kan bij aangekocht worden voor 15.000 euro, het is niet verplicht.
Pluspunten :
+ heel ruim en instapklaar
+ goed gekeurde elektriciteit (tot 2050)
+ direct verhuurbaar
+ volledig vakkundig met vlies behangen
+ inbouwkasten
Dit appartement is ideaal gelegen voor wie op zoek is naar een ruim appartement op centrumligging.
Of voor iemand die wilt investeren, het appartement is verhuurbaar voor 750 EUR /md. (excl syndicuskosten)
Bekijk het filmpje: https://www.youtube.com/shorts/4BuPGj07E60
Meer info of een bezoek ter plaatse? Vraag naar Jolien/Louise op 050 70 34 35
Energie
![]() |
- EPC Certificaat: 20250212-0003527976-RES-1
- Energieverbruik: 275 kWh/m²/jaar
- Verwarming: Gas
- Beglazing: Standaard dubbel
Op de kaart

Financieel
| Prijs | |
|---|---|
| Kadastraal inkomen (niet geïndexeerd) | € 790 |
Berekening kosten
Je aankoopkosten? Die heb je snel berekent via de knop hieronder.
Bijkomende info
Gebouw
| Bouwjaar | 2005 |
|---|---|
| Staat | Goed onderhouden |
| Is beschermd | Nee |
| Bewoonbaar (m²) | 108 |
| Verdieping | 1 |
| Badkamers | 1 |
| Slaapkamers | 2 |
| Garages | 1 |
| Toiletten | 1 |
Ruimtes
| Terras | 2 m² |
|---|
Faciliteiten
| Keuken | Gesloten keuken |
|---|---|
| Keuken uitrusting | Goed uitgerust |
| Materiaal ramenomlijstingen | PVC |
| Beglazing | Standaard dubbel |
| Luiken | Nee |
| Primair verwarmingstype | Centrale verwarming |
| Brandstof primaire verwarming | Gas |
Perceel
| Overstromingsgevoelig | Geen |
|---|---|
| P-score | D |
| G-score | D |
| Voorkeurrecht | Nee |
| Oppervlakte terras (m²) | 2 |
| Oriëntatie tuin | Zuidwest |
Vergunning
| Vergunning | Vergunning beschikbaar |
|---|---|
| Verkavelingsvergunning | Geen beschikbaar |
| Bouwovertreding dagvaardiging | Geen |
| Type gebied | Stedelijk |
Uitrusting
| Meerdere eigenaars | Nee |
|---|---|
| Geschikt als kangoeroewoning | Nee |
| Geschikt voor rolstoelgebruikers | Nee |
| Geschikt voor praktijk | Nee |
| Volledig onderkelderd | Nee |
| Parking | Nee |
| Garage | Ja |
| Thuiskantoor | Nee |
| Kelder | Nee |
| Zolder | Nee |
| Opslagruimte | Nee |
| Tuin | Nee |
| Terras | Ja |
| Lift | Ja |
| Rioolaansluiting | Ja |
| Gasaansluiting | Ja |
| Wateraansluiting | Ja |
| Elektriciteitsaansluiting | Ja |
| TV aansluiting | Nee |
| Internetaansluiting | Ja |
| Zonnepanelen | Nee |
| Zonneboiler | Nee |
| Alarm | Nee |
| Zwembad | Nee |
| Jacuzzi | Nee |
| Toonzaal | Nee |
| Ventilatie | Nee |
Appartementsblok
| Lift | Ja |
|---|---|
| Ondergrondse parking | Nee |
| Intercom | Ja |
Een pand van
Vastgoed Wanneyn Missiaen
Vastgoed Wanneyn Missiaen
Ons enthousiast team bestaat uit 3 ervaren vastgoedmakelaars, 3 geroutineerde vrouwen die goed aanvoelen hoe we u het best kunnen adviseren en ontzorgen. Er komt toch zoveel bij kijken als je uw huis of appartement wilt verkopen of verhuren.
Meestal begint het met de vraag 'Wat is mijn huis, appartement, grond, handelspand waard?'
Bel ons en wij komen ter plaatse voor een vrijblijvende waardebepaling. Wij gaan u ter plaatse meteen aantonen hoe wij te werk gaan.
Ons kantoor is gevestigd in Beernem, nabij het station, wij zijn actief in de ruime regio +- 20 km rondom Beernem.
Wij zijn alle 3 lokaal sterk verankerd in deze regio omdat we er zelf wonen en werken, we kennen de streek door en door.
Daardoor zijn we ook dé ideale partner voor u als kopers, we zoeken mee naar je nieuwe woonplek of ideale investering.
Wij zijn alvast benieuwd wanneer we u mogen ontmoeten.
Elien, Jolien en Louise
TK/4727
Leer meer over vastgoed
24 November 2025
Uitgezocht voor jouw gemeente: Hoeveel stijgt de waarde van je woning door een renovatie?
22 October 2025
Hoeveel kan ik lenen om een huis te kopen?
11 June 2025
Huis kopen met bouwovertreding? Dit moet je weten
11 May 2025
