Perceel bouwgrond van 602 m2 geschikt voor VRIJSTAANDE bebouwing in centrum Wingene
€ 169.000
Een pand van Vastgoed Wanneyn Missiaen
Favoriet
Jouw zoektocht
Jouw scoretabel voor dit pand
Aan het laden...
Jouw geplande bezichtigingen
Aan het laden...
Overzicht
- 602 m² grond
- 1 Tuin
Beschrijving
Gelegen in een residentiële omgeving in Wingene centrum, op wandelafstand van het marktplein, school, opvang, grootwarenhuis,..
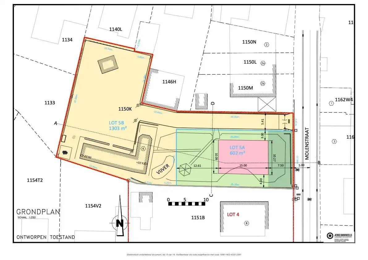
De bouwgrond bevindt zich aan de voorkant van het perceel en loopt tot aan de vijver, (dus het prieeltje hoort nog bij de bouwgrond)
De oprit en het achterliggend huis met parking hoort er niet bij. Dit is ook te koop (zie onderaan in de tekst)
Het is geen verplichting om de beide samen aan te kopen, en er is ook geen bouwverplichting op dit perceel bouwgrond.
De totale breedte van het perceel bouwgrond bedraagt:
17,34 m
en de diepte van het perceel bouwgrond bedraagt:
35,15 m
Er zijn verkavelingvoorschriften van toepassing:
+ Voorbouwlijn op 7,5 meter vanuit de rooilijn
+ maximale bouwdiepte gelijkvloers max. 15 meter
+ maximale bouwbreedte gelijkvloers 10 meter
--> dus een bouwkader van 150 m2
+ 2 bouwlagen en een dak toegelaten (hellende dakvorm)
+ carport mogelijk
+ bijgebouw van 40 m2 is toegelaten
Tussen de foto's is het verkavelingsplan te zien.
Het lot 5A wordt afgebeeld in de groene zone,
de roze zone is het maximale bouwkader, binnen die aangeduide zone kan er gebouwd worden.
Het huis achterliggend, staat ook te koop op een terrein van 1303 m2 voor 299.000 EUR.
De bestaande woning kan behouden blijven volgens de huidige inplanting met een eventuele uitbreiding tot 200m2. In geval van sloop van de bestaande woning en heropbouw op gewijzigde plaats dient er een minimale afstand van 4m ten opzichte van de perceelsgrenzen bewaard blijven. Er kan nog een bijgebouw worden opgericht van 40m2.
Daardoor is deze eigendom bijzonder geschikt voor bv. kangoeroewonen.
Voor meer info bel 050/70.35.34 (Jolien/Louise)
De bouwgrond bevindt zich aan de voorkant van het perceel en loopt tot aan de vijver, (dus het prieeltje hoort nog bij de bouwgrond)
De oprit en het achterliggend huis met parking hoort er niet bij. Dit is ook te koop (zie onderaan in de tekst)
Het is geen verplichting om de beide samen aan te kopen, en er is ook geen bouwverplichting op dit perceel bouwgrond.
De totale breedte van het perceel bouwgrond bedraagt:
17,34 m
en de diepte van het perceel bouwgrond bedraagt:
35,15 m
Er zijn verkavelingvoorschriften van toepassing:
+ Voorbouwlijn op 7,5 meter vanuit de rooilijn
+ maximale bouwdiepte gelijkvloers max. 15 meter
+ maximale bouwbreedte gelijkvloers 10 meter
--> dus een bouwkader van 150 m2
+ 2 bouwlagen en een dak toegelaten (hellende dakvorm)
+ carport mogelijk
+ bijgebouw van 40 m2 is toegelaten
Tussen de foto's is het verkavelingsplan te zien.
Het lot 5A wordt afgebeeld in de groene zone,
de roze zone is het maximale bouwkader, binnen die aangeduide zone kan er gebouwd worden.
Het huis achterliggend, staat ook te koop op een terrein van 1303 m2 voor 299.000 EUR.
De bestaande woning kan behouden blijven volgens de huidige inplanting met een eventuele uitbreiding tot 200m2. In geval van sloop van de bestaande woning en heropbouw op gewijzigde plaats dient er een minimale afstand van 4m ten opzichte van de perceelsgrenzen bewaard blijven. Er kan nog een bijgebouw worden opgericht van 40m2.
Daardoor is deze eigendom bijzonder geschikt voor bv. kangoeroewonen.
Voor meer info bel 050/70.35.34 (Jolien/Louise)
Energie
- Verwarming: Geen
- Beglazing: Onbekend
Op de kaart

Financieel
| Prijs | |
|---|---|
| Kadastraal inkomen (niet geïndexeerd) | € 0 |
| Kadastraal inkomen (geïndexeerd) | € 0 |
Berekening kosten
Je aankoopkosten? Die heb je snel berekend via de knop hieronder.
Bijkomende info
Gebouw
| Is beschermd | Nee |
|---|
Perceel
| Overstromingsgevoelig | Geen |
|---|---|
| P-score | C |
| Voorkeurrecht | Nee |
| Totale oppervlakte (m²) | 602 |
Vergunning
| Vergunning | Vergunning beschikbaar |
|---|---|
| Verkavelingsvergunning | Vergunning beschikbaar |
| Bouwovertreding dagvaardiging | Geen |
| Type gebied | Stedelijk |
Uitrusting
| Meerdere eigenaars | Nee |
|---|---|
| Rioolaansluiting | Ja |
| Gasaansluiting | Ja |
| Wateraansluiting | Ja |
| Elektriciteitsaansluiting | Ja |
| TV aansluiting | Nee |
| Internetaansluiting | Nee |
Een pand van
Vastgoed Wanneyn Missiaen
Vastgoed Wanneyn Missiaen
Ons enthousiast team bestaat uit 3 ervaren vastgoedmakelaars, 3 geroutineerde vrouwen die goed aanvoelen hoe we u het best kunnen adviseren en ontzorgen. Er komt toch zoveel bij kijken als je uw huis of appartement wilt verkopen of verhuren.
Meestal begint het met de vraag 'Wat is mijn huis, appartement, grond, handelspand waard?'
Bel ons en wij komen ter plaatse voor een vrijblijvende waardebepaling. Wij gaan u ter plaatse meteen aantonen hoe wij te werk gaan.
Ons kantoor is gevestigd in Beernem, nabij het station, wij zijn actief in de ruime regio +- 20 km rondom Beernem.
Wij zijn alle 3 lokaal sterk verankerd in deze regio omdat we er zelf wonen en werken, we kennen de streek door en door.
Daardoor zijn we ook dé ideale partner voor u als kopers, we zoeken mee naar je nieuwe woonplek of ideale investering.
Wij zijn alvast benieuwd wanneer we u mogen ontmoeten.
Elien, Jolien en Louise
TK/4900
Leer meer over vastgoed
24 April 2026
Duurzaam gelegen woning? Check je Mobiscore
23 March 2026
Op Spotto zoeken als een pro: 10 slimme tips
21 March 2026
Hoeveel kan ik lenen om een huis te kopen?
01 March 2026