Projectgrond voor de oprichting van twee woningen in het centrum van Wingene.
€ 235.000
Een pand van Jelle Rutsaert Vastgoed met Advies
Favoriet
Jouw zoektocht
Jouw scoretabel voor dit pand
Aan het laden...
Jouw geplande bezichtigingen
Aan het laden...
Overzicht
Beschrijving
Aan het centraal gelegen Kerkplein te Wingene kunt u deze projectgrond waarvan het huidige gebouw nog dient afgebroken te worden terugvinden.
De bouwvergunning en plannen zijn aanwezig voor twee eengezinswoningen.
De eerste woning gelegen op de hoek van de Zandbergstraat en het Kerkplein, beschikt niet over een tuin.
De bebouwde oppervlakte bedraagt 68,53 m².
De tweede woning heeft een tuinzone met een breedte van ca. 7,24 m en een diepte variërend tussen ca. 3,54 m en ca. 5,62 m.
De bebouwde oppervlakte bedraagt 64,74 m².
Beide woningen tellen twee bouwlagen onder een hellend dak.
Woning 1:
GV: inkomhal - gastentoilet - dubbele garage
1e V: woonkamer - bureauhoek - open keuken - berging - terras
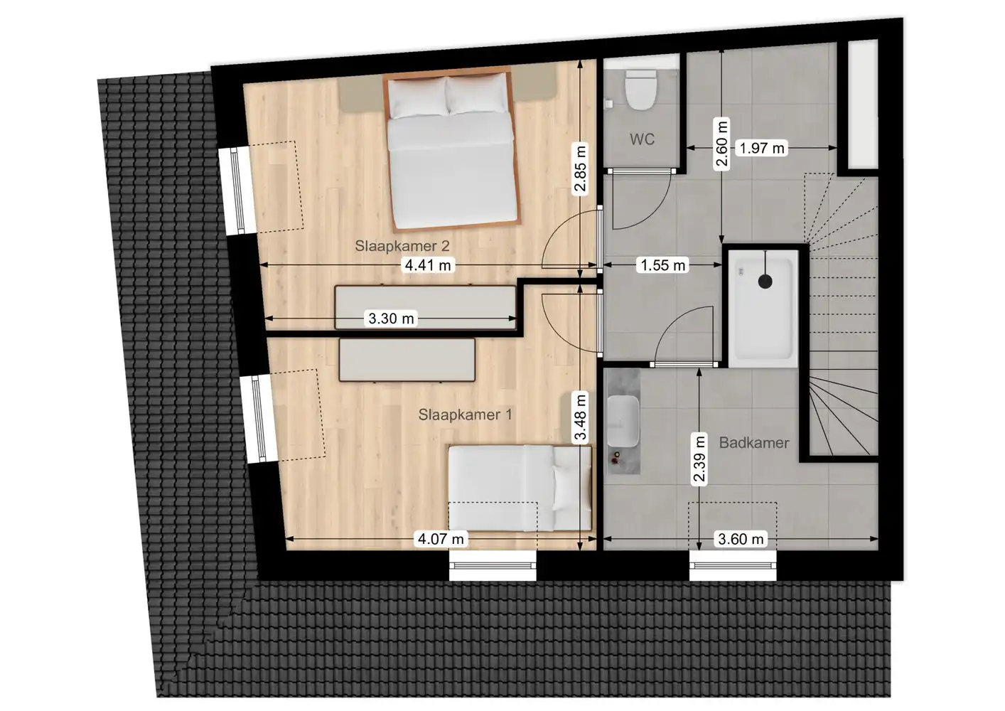
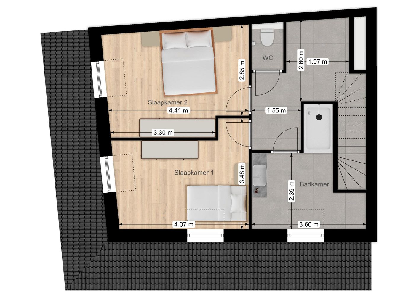
2e V: nachthal - apart toilet - 2 slaapkamers - badkamer
Woning 2:
GV: inkomhal - gastentoilet - dubbele garage - tuintje
1e V: woonkamer - bureauhoek - open keuken - berging - terras
2e V: nachthal - apart toilet - 3 slaapkamers - badkamer
De bouwvergunning is reeds aanwezig, waardoor je direct aan de slag kunt met de realisatie van dit project.
Neem alvast contact met ons op voor meer informatie of een bezichtiging!
De bouwvergunning en plannen zijn aanwezig voor twee eengezinswoningen.
De eerste woning gelegen op de hoek van de Zandbergstraat en het Kerkplein, beschikt niet over een tuin.
De bebouwde oppervlakte bedraagt 68,53 m².
De tweede woning heeft een tuinzone met een breedte van ca. 7,24 m en een diepte variërend tussen ca. 3,54 m en ca. 5,62 m.
De bebouwde oppervlakte bedraagt 64,74 m².
Beide woningen tellen twee bouwlagen onder een hellend dak.
Woning 1:
GV: inkomhal - gastentoilet - dubbele garage
1e V: woonkamer - bureauhoek - open keuken - berging - terras
2e V: nachthal - apart toilet - 2 slaapkamers - badkamer
Woning 2:
GV: inkomhal - gastentoilet - dubbele garage - tuintje
1e V: woonkamer - bureauhoek - open keuken - berging - terras
2e V: nachthal - apart toilet - 3 slaapkamers - badkamer
De bouwvergunning is reeds aanwezig, waardoor je direct aan de slag kunt met de realisatie van dit project.
Neem alvast contact met ons op voor meer informatie of een bezichtiging!
Energie
- E-peil: E0
- Beglazing: Onbekend
Op de kaart

Financieel
| Prijs |
|---|
Berekening kosten
Je aankoopkosten? Die heb je snel berekend via de knop hieronder.
Bijkomende info
Gebouw
| Badkamers | 0 |
|---|---|
| Slaapkamers | 0 |
| Verdiepingen | 0 |
| Garages | 0 |
| Parkeerplaatsen | 0 |
| Toiletten | 0 |
Faciliteiten
| Septische tank | Nee |
|---|
Perceel
| Bebouwde oppervlakte (m²) | 0 |
|---|
Vergunning
| Verkavelingsvergunning | Geen beschikbaar |
|---|
Uitrusting
| Investeringspand | Nee |
|---|---|
| Parking | Nee |
| Garage | Nee |
| Lift | Nee |
| Rioolaansluiting | Nee |
| Gasaansluiting | Nee |
| Wateraansluiting | Nee |
| Elektriciteitsaansluiting | Nee |
| Internetaansluiting | Nee |
| Telefoonaansluiting | Nee |
| Zonnepanelen | Nee |
| Zonneboiler | Nee |
| Alarm | Nee |
| Videofoon | Nee |
| Grondwaterput | Nee |
Een pand van
Jelle Rutsaert Vastgoed met Advies
Jelle, de persoon die uw dossier juridisch behartigt
Jelle is het persoonlijke gezicht achter Rutsaert Vastgoed mét Advies, het enige fysieke vastgoedkantoor in Ruiselede. Als gediplomeerd jurist staat adviesverlening bij Jelle centraal. Bij hem zijn er geen verkoopspraatjes, maar wel onderbouwde en rationele overwegingen in een complexe vastgoedwereld.
Jelle staat voor een persoonlijke aanpak. Hij werkt momenteel als enige, waardoor uw dossier behartigt wordt door één en dezelfde persoon van A tot Z. Dat maakt hem een betrouwbare partner voor al uw vastgoedgerelateerde zaken.
TK2602
Leer meer over vastgoed
23 March 2026
Op Spotto zoeken als een pro: 10 slimme tips
21 March 2026
Hoeveel kan ik lenen om een huis te kopen?
01 March 2026
Wanneer heb ik een bouwvergunning of omgevingsvergunning nodig?
17 February 2026