Lichtrijk doorkijkappartement op de eerste verdieping met terras en uitzicht op het water
€ 430.000
Een pand van IMMO CASA
Overzicht
- 113 m² bewoonbaar
- 135 m² grond
- 2 Slaapkamer(s)
- 2 Badkamer(s)
- 1 Toilet(ten)
Beschrijving
ELKE DINSDAG VAN 17u - 18u ALGEMEEN INFOMOMENT IN DE KIJKWONING.
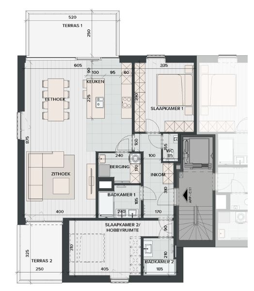
Dit doorkijkappartement (112,90m²) op de eerste verdieping aan de oostkant van Residentie Reiger biedt een ruime, lichte woonervaring met een prachtig uitzicht op het water aan de noordzijde. De doorkijkindeling zorgt voor veel natuurlijk licht en een open gevoel in de woonkamer.
Dit appartement beschikt over 2 slaapkamers en 2 badkamers.
Door de terrassen aan beide zijden (13m² en 8,15m²) kun je op elk moment van de dag genieten van het buitenleven.
Dankzij de energiezuinige lucht-waterwarmtepomp woon je hier comfortabel met een laag energieverbruik.
De duurzame materialen en moderne afwerking maken dit appartement een perfecte keuze voor wie houdt van hedendaags wonen in een natuurlijke omgeving.
Parkeren is mogelijk in de ondergrondse garageboxen of staanplaats.
Een unieke kans voor wie op zoek is naar een stijlvol en energiezuinig appartement met een rustige ligging, op korte afstand van het centrum van Ingelmunster.
Dit doorkijkappartement (112,90m²) op de eerste verdieping aan de oostkant van Residentie Reiger biedt een ruime, lichte woonervaring met een prachtig uitzicht op het water aan de noordzijde. De doorkijkindeling zorgt voor veel natuurlijk licht en een open gevoel in de woonkamer.
Dit appartement beschikt over 2 slaapkamers en 2 badkamers.
Door de terrassen aan beide zijden (13m² en 8,15m²) kun je op elk moment van de dag genieten van het buitenleven.
Dankzij de energiezuinige lucht-waterwarmtepomp woon je hier comfortabel met een laag energieverbruik.
De duurzame materialen en moderne afwerking maken dit appartement een perfecte keuze voor wie houdt van hedendaags wonen in een natuurlijke omgeving.
Parkeren is mogelijk in de ondergrondse garageboxen of staanplaats.
Een unieke kans voor wie op zoek is naar een stijlvol en energiezuinig appartement met een rustige ligging, op korte afstand van het centrum van Ingelmunster.
Energie
- E-peil: E0
- Beglazing: Hoog efficient driedubbel
Op de kaart

Financieel
| Prijs |
|---|
Bijkomende info
Gebouw
| Bouwjaar | 2025 |
|---|---|
| Bouwcertificaat | Nee |
| Bewoonbaar (m²) | 113 |
| Verdieping | 1 |
| Badkamers | 2 |
| Slaapkamers | 2 |
| Verdiepingen | 3 |
| Garages | 0 |
| Parkeerplaatsen | 0 |
| Toiletten | 1 |
Faciliteiten
| Keuken uitrusting | Luxueus uitgerust |
|---|---|
| Beglazing | Hoog efficient driedubbel |
| Septische tank | Nee |
Perceel
| Overstromingsgevoelig | Geen |
|---|---|
| P-score | B |
| G-score | B |
| Totale oppervlakte (m²) | 135 |
| Bebouwde oppervlakte (m²) | 0 |
| Oppervlakte terras (m²) | 13 |
| Oriëntatie tuin | Oost |
Vergunning
| Verkavelingsvergunning | Geen beschikbaar |
|---|
Uitrusting
| Investeringspand | Nee |
|---|---|
| Parking | Nee |
| Garage | Nee |
| Opslagruimte | Ja |
| Terras | Ja |
| Lift | Ja |
| Rioolaansluiting | Ja |
| Gasaansluiting | Ja |
| Wateraansluiting | Ja |
| Elektriciteitsaansluiting | Nee |
| Internetaansluiting | Ja |
| Telefoonaansluiting | Nee |
| Zonnepanelen | Ja |
| Zonneboiler | Nee |
| Alarm | Nee |
| Videofoon | Ja |
| Grondwaterput | Nee |
Appartementsblok
| Aantal verdiepingen | 3 |
|---|---|
| Lift | Ja |
| Intercom | Nee |
Een pand van
IMMO CASA
Uw Partner in Vastgoed!
3 vestigingen, dezelfde visie!
Doorheen de jaren is Immo Casa verder uitgegroeid. U kan ons zowel vinden in Ingelmunster, Harelbeke en Hooglede. Voor de klant enkel maar voordelen! Enerzijds genieten wij zo van een ruimer klantenbestand en verloopt de zoektocht naar een potentiële koper vlotter. Ook naar u toe stellen wij ons flexibel op. Zo spreken we steeds af in het dichtsbijzijnde kantoor.
Ons team: Veerle, Dylan, Julie en Karen is klein maar fijn met heel wat pit en potentieel.
Samen 1 team en 1 visie om de klant elke dag het beste van onszelf te geven. Bij ons ben je geen nummer maar een persoon!
INGE/VAAR/REIG/ 1.1/KC
Leer meer over vastgoed
Nieuw
24 November 2025
Uitgezocht voor jouw gemeente: Hoeveel stijgt de waarde van je woning door een renovatie?
22 October 2025
Hoeveel kan ik lenen om een huis te kopen?
11 June 2025
Huis kopen met bouwovertreding? Dit moet je weten
11 May 2025