Lichtrijk doorkijkappartement met panoramisch uitzicht op water en groen
€ 480.000
Een pand van IMMO CASA
Favoriet
Jouw zoektocht
Jouw scoretabel voor dit pand
Aan het laden...
Jouw geplande bezichtigingen
Aan het laden...
Overzicht
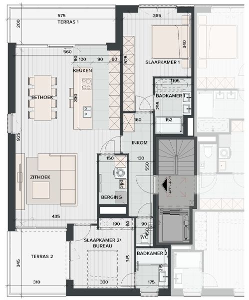
- 117 m² bewoonbaar
- 138 m² grond
- 2 Slaapkamer(s)
- 2 Badkamer(s)
- 1 Toilet(ten)
Beschrijving
Dit ruime doorkijkappartement (116,75m²) op de tweede verdieping aan de oostkant van residentie Albatros biedt een adembenemend uitzicht op het water aan de noordzijde en het groene landschap aan de zuidkant. Dankzij de grote raampartijen geniet je de hele dag van overvloedig natuurlijk licht en een open, luchtige woonervaring.
Dit appartement beschikt over 2 slaapkamers en 2 badkamers.
Met terrassen (11,50m² en 10,70m²) aan beide zijden heb je altijd een perfecte plek om te ontspannen en te genieten van de buitenlucht. De energiezuinige lucht-waterwarmtepomp zorgt voor een laag energieverbruik en optimaal comfort, terwijl de hoogwaardige, duurzame afwerking bijdraagt aan een moderne en milieuvriendelijke woonervaring.
Parkeren is mogelijk in de ondergrondse garageboxen of staanplaats.
Een ideale keuze voor wie op zoek is naar een luxueus, rustig gelegen appartement met een uniek zicht, vlak bij het centrum van Ingelmunster.
Dit appartement beschikt over 2 slaapkamers en 2 badkamers.
Met terrassen (11,50m² en 10,70m²) aan beide zijden heb je altijd een perfecte plek om te ontspannen en te genieten van de buitenlucht. De energiezuinige lucht-waterwarmtepomp zorgt voor een laag energieverbruik en optimaal comfort, terwijl de hoogwaardige, duurzame afwerking bijdraagt aan een moderne en milieuvriendelijke woonervaring.
Parkeren is mogelijk in de ondergrondse garageboxen of staanplaats.
Een ideale keuze voor wie op zoek is naar een luxueus, rustig gelegen appartement met een uniek zicht, vlak bij het centrum van Ingelmunster.
Energie
- E-peil: E0
- Beglazing: Hoog efficient driedubbel
Op de kaart

Financieel
| Prijs |
|---|
Berekening kosten
Je aankoopkosten? Die heb je snel berekend via de knop hieronder.
Bijkomende info
Gebouw
| Bouwjaar | 2025 |
|---|---|
| Bouwcertificaat | Nee |
| Bewoonbaar (m²) | 117 |
| Verdieping | 2 |
| Badkamers | 2 |
| Slaapkamers | 2 |
| Verdiepingen | 2 |
| Garages | 0 |
| Parkeerplaatsen | 0 |
| Toiletten | 1 |
Faciliteiten
| Keuken uitrusting | Luxueus uitgerust |
|---|---|
| Beglazing | Hoog efficient driedubbel |
| Septische tank | Nee |
Perceel
| Overstromingsgevoelig | Geen |
|---|---|
| P-score | B |
| G-score | B |
| Totale oppervlakte (m²) | 138 |
| Bebouwde oppervlakte (m²) | 0 |
| Oppervlakte terras (m²) | 11 |
| Oriëntatie tuin | Oost |
Vergunning
| Verkavelingsvergunning | Geen beschikbaar |
|---|
Uitrusting
| Investeringspand | Nee |
|---|---|
| Parking | Nee |
| Garage | Nee |
| Opslagruimte | Ja |
| Terras | Ja |
| Lift | Ja |
| Rioolaansluiting | Ja |
| Gasaansluiting | Nee |
| Wateraansluiting | Ja |
| Elektriciteitsaansluiting | Ja |
| Internetaansluiting | Ja |
| Telefoonaansluiting | Nee |
| Zonnepanelen | Ja |
| Zonneboiler | Nee |
| Alarm | Nee |
| Videofoon | Ja |
| Grondwaterput | Nee |
Appartementsblok
| Aantal verdiepingen | 2 |
|---|---|
| Lift | Ja |
| Intercom | Nee |
Een pand van
IMMO CASA
Uw Partner in Vastgoed!
3 vestigingen, dezelfde visie!
Doorheen de jaren is Immo Casa verder uitgegroeid. U kan ons zowel vinden in Ingelmunster, Harelbeke en Hooglede. Voor de klant enkel maar voordelen! Enerzijds genieten wij zo van een ruimer klantenbestand en verloopt de zoektocht naar een potentiële koper vlotter. Ook naar u toe stellen wij ons flexibel op. Zo spreken we steeds af in het dichtsbijzijnde kantoor.
Ons team: Veerle, Dylan, Julie en Karen is klein maar fijn met heel wat pit en potentieel.
Samen 1 team en 1 visie om de klant elke dag het beste van onszelf te geven. Bij ons ben je geen nummer maar een persoon!
INGE/VAAR/ALBA/2.1/KCC
Leer meer over vastgoed
23 March 2026
Op Spotto zoeken als een pro: 10 slimme tips
21 March 2026
Hoeveel kan ik lenen om een huis te kopen?
01 March 2026
Wanneer heb ik een bouwvergunning of omgevingsvergunning nodig?
17 February 2026