Casco handelspand op topligging aan het station van Ingelmunster
€ 195.000
Een pand van IMMO CASA
Favoriet
Jouw zoektocht
Jouw scoretabel voor dit pand
Aan het laden...
Jouw geplande bezichtigingen
Aan het laden...
Overzicht
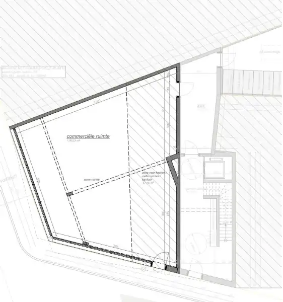
- 119.63 m² bewoonbaar
- 119 m² grond
Beschrijving
Op een uitstekende commerciële ligging in Residentie White Corner aan het station van Ingelmunster bevindt zich dit casco handelspand met grote raampartijen en een sterke visibiliteit.
De stationsbuurt wordt de komende periode volledig vernieuwd, wat deze locatie extra interessant maakt voor wie op zoek is naar een toekomstgerichte investering of een strategische plek voor een eigen zaak.
Dankzij de open indeling en het casco karakter richt je het pand volledig in naar jouw noden.
deaal voor:
- kantoorruimte
- praktijkruimte
- commerciële activiteit (broodjeszaak, koffiehuis, brasserie,... )
- showroom of dienstverlenend beroep
De grote raampartijen zorgen niet alleen voor veel natuurlijk licht, maar ook voor maximale zichtbaarheid voor voorbijgangers en pendelaars.
Een pand met potentieel, op een plek waar de toekomst al zichtbaar is.
De stationsbuurt wordt de komende periode volledig vernieuwd, wat deze locatie extra interessant maakt voor wie op zoek is naar een toekomstgerichte investering of een strategische plek voor een eigen zaak.
Dankzij de open indeling en het casco karakter richt je het pand volledig in naar jouw noden.
deaal voor:
- kantoorruimte
- praktijkruimte
- commerciële activiteit (broodjeszaak, koffiehuis, brasserie,... )
- showroom of dienstverlenend beroep
De grote raampartijen zorgen niet alleen voor veel natuurlijk licht, maar ook voor maximale zichtbaarheid voor voorbijgangers en pendelaars.
Een pand met potentieel, op een plek waar de toekomst al zichtbaar is.
Energie
- EPC Certificaat: EPB-regelgeving
- E-peil: E0
- Beglazing: Onbekend
Op de kaart

Financieel
| Prijs |
|---|
Bijkomende info
Gebouw
| Bouwjaar | 2021 |
|---|---|
| Bouwcertificaat | Nee |
| Bewoonbaar (m²) | 119.63 |
| Badkamers | 0 |
| Slaapkamers | 0 |
| Verdiepingen | 0 |
| Garages | 0 |
| Parkeerplaatsen | 0 |
| Toiletten | 0 |
Faciliteiten
| Septische tank | Nee |
|---|
Perceel
| Overstromingsgevoelig | Geen |
|---|---|
| P-score | B |
| G-score | B |
| Totale oppervlakte (m²) | 119 |
| Bebouwde oppervlakte (m²) | 0 |
Vergunning
| Verkavelingsvergunning | Geen beschikbaar |
|---|
Uitrusting
| Investeringspand | Nee |
|---|---|
| Parking | Nee |
| Garage | Nee |
| Lift | Nee |
| Rioolaansluiting | Nee |
| Gasaansluiting | Ja |
| Wateraansluiting | Ja |
| Elektriciteitsaansluiting | Ja |
| Internetaansluiting | Nee |
| Telefoonaansluiting | Nee |
| Zonnepanelen | Nee |
| Zonneboiler | Nee |
| Alarm | Nee |
| Videofoon | Nee |
| Grondwaterput | Nee |
Appartementsblok
| Lift | Nee |
|---|---|
| Intercom | Nee |
Een pand van
IMMO CASA
Uw Partner in Vastgoed!
3 vestigingen, dezelfde visie!
Doorheen de jaren is Immo Casa verder uitgegroeid. U kan ons zowel vinden in Ingelmunster, Harelbeke en Hooglede. Voor de klant enkel maar voordelen! Enerzijds genieten wij zo van een ruimer klantenbestand en verloopt de zoektocht naar een potentiële koper vlotter. Ook naar u toe stellen wij ons flexibel op. Zo spreken we steeds af in het dichtsbijzijnde kantoor.
Ons team: Veerle, Dylan, Julie en Karen is klein maar fijn met heel wat pit en potentieel.
Samen 1 team en 1 visie om de klant elke dag het beste van onszelf te geven. Bij ons ben je geen nummer maar een persoon!
INGE/STAT61/0.1C
Leer meer over vastgoed
04 January 2026
Zoek je een kantoor, een magazijn of… iets ertussenin? Bedrijfsvastgoed uitgelegd
05 November 2024
Bedrijfsvastgoed in transitie: ontdek de toekomst van werkplekken
16 October 2024
Opbrengsteigendom: een slim pad naar passief inkomen en vermogensgroei
09 September 2024