> Te koop > Oostrozebeke > Huis > Nieuw te bouwen alleenstaande woning te Oostrozebeke.
Nieuw

Nieuw te bouwen alleenstaande woning te Oostrozebeke.

€ 570.013

8780 Oostrozebeke

Een pand van Your Home

Volledige aanbod

Jouw zoektocht

Jouw scoretabel voor dit pand
Aan het laden...
Aan het laden...

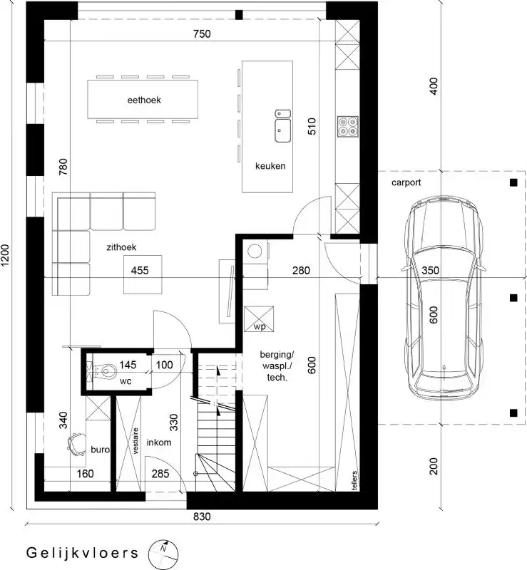
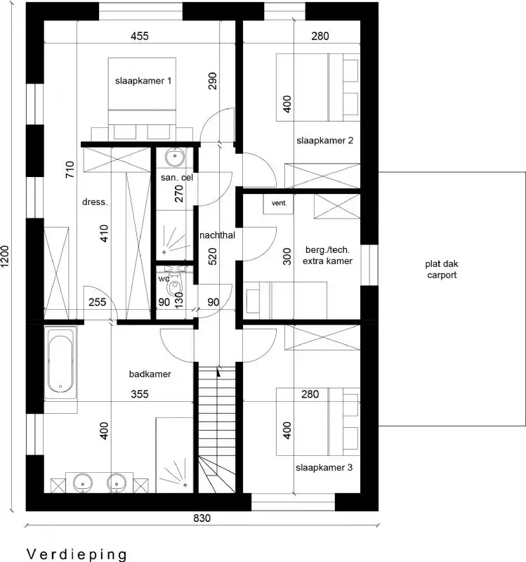
Overzicht


  • 3 Slaapkamer(s)
  • 2 Badkamer(s)
  • 2 Toilet(ten)

Beschrijving


Een bouwcoördinator die je bouwgrond voorstelt én je de hand reikt met voorbeeldwoningen? Welkom bij Your Home. Wij luisteren naar jouw bouwwensen en houden rekening met jouw budget. Ook met de keuze in zonnepanelen, ventilatiesysteem of duurzame materialen staan wij je bij met raad en daad. Zo bouwen we samen aan jouw thuis.

Meer informatie over de voorgestelde bouwgronden en onze woningen? Neem vrijblijvend contact met ons op. Wij helpen je graag verder.

Mail naar aanvraag@yourhome.be of bel 056 755 788

Referentie: YH_LA_NTB_20251217_lot3

Energie


Financieel


Prijs € 570.013

Bijkomende info


Gebouw
Badkamers 2
Slaapkamers 3
Toiletten 2

Een pand van


Your Home
Logo van makelaar: Your Home
Your Home - Samen bouwen
Your Home is een persoonlijke bouwpartner voor zij die dromen van een nieuwbouwwoning of totaalrenovatie. Wij vertalen jouw bouwdroom in een woning die perfect bij jou past. Van bouwen op maat tot totaalrenovatie, het kan allemaal!
Logo van makelaar: Your Home
1103608
Nieuw te bouwen alleenstaande woning te Oostrozebeke. foto {{pictureIndex}}

Nieuw te bouwen alleenstaande woning te Oostrozebeke.

€ 570.013

8780 Oostrozebeke

Bezoek het pand

Vul jouw contactgegevens hieronder in en de makelaar contacteert je.

Leer meer over vastgoed

Nieuw
23 March 2026
Op Spotto zoeken als een pro: 10 slimme tips
Nieuw
21 March 2026
Hoeveel kan ik lenen om een huis te kopen?
01 March 2026
Wanneer heb ik een bouwvergunning of omgevingsvergunning nodig?
17 February 2026
Hoe breng ik een bod uit op een woning?