> Te koop > Waregem > Huis > Nieuw te bouwen alleenstaande woning te Waregem.

Nieuw te bouwen alleenstaande woning te Waregem.

€ 733.891

8790 Waregem

Een pand van Your Home

Volledige aanbod

Overzicht


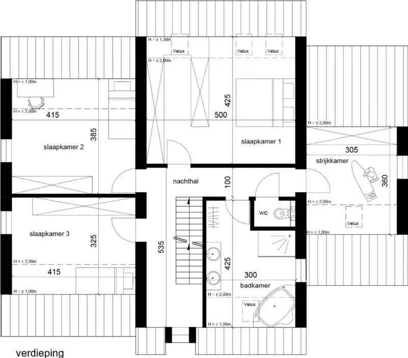
  • 3 Slaapkamer(s)
  • 1 Badkamer(s)
  • 2 Toilet(ten)
  • 1 Living(s)

Beschrijving


Een voorbeeldwoning dat volledig aan te passen is naar wens én budget? Dat is wat wij bij Your Home doen. Met onze kennis van de nieuwste, duurzame materialen leiden we jou naar optimaal wooncomfort. Zo bouwen wij samen aan jouw thuis.

Zie je jezelf al staan voor jouw nieuwe woning of wens je meer informatie? Neem dan contact met ons op. Wij helpen je graag verder.

Mail naar aanvraag@yourhome.be of bel 056 755 788

Tip: Bezoek onze Kijkwoning na afspraak (zie www.yourhome.be/kijkwoning)

Referentie: YH_LA_NTB_20241002

Energie


Financieel


Prijs € 733.891

Bijkomende info


Gebouw
Badkamers 1
Slaapkamers 3
Keukens 1
Leefruimtes 1
Toiletten 2

Een pand van


Your Home
Logo van makelaar: Your Home
Your Home - Samen bouwen
Your Home is een persoonlijke bouwpartner voor zij die dromen van een nieuwbouwwoning of totaalrenovatie. Wij vertalen jouw bouwdroom in een woning die perfect bij jou past. Van bouwen op maat tot totaalrenovatie, het kan allemaal!
Logo van makelaar: Your Home
1081280
Nieuw te bouwen alleenstaande woning te Waregem. foto {{pictureIndex}}

Nieuw te bouwen alleenstaande woning te Waregem.

€ 733.891

8790 Waregem

Bezoek het pand

Vul jouw contactgegevens hieronder in en de makelaar contacteert je.

Leer meer over vastgoed

01 March 2026
Wanneer heb ik een bouwvergunning of omgevingsvergunning nodig?
17 February 2026
Hoe breng ik een bod uit op een woning?
24 November 2025
Uitgezocht voor jouw gemeente: Hoeveel stijgt de waarde van je woning door een renovatie?
22 October 2025
Hoeveel kan ik lenen om een huis te kopen?