Nieuw
Torhout : Nieuw te bouwen woning
€ 730.000
Een pand van Domicill Vastgoed
Overzicht
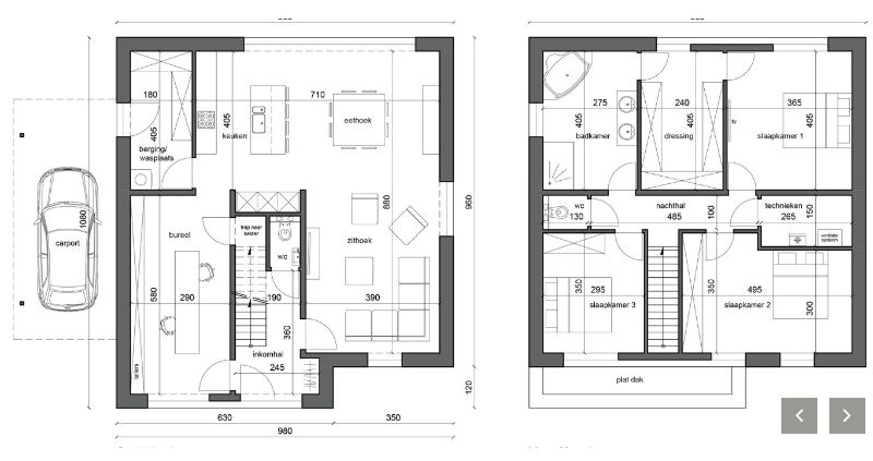
- 230 m² bewoonbaar
- 1876 m² grond
- 3 Slaapkamer(s)
- 1 Badkamer(s)
- 2 Toilet(ten)
Beschrijving
Nieuw te realiseren open bebouwing te Torhout
Voorbeeldwoning – indeling en afwerking volledig op maat
Deze nieuwbouwwoning wordt opgetrokken met kwalitatieve en duurzame materialen. Er wordt een ruim budget voorzien voor de afwerking, zodat u verzekerd bent van een hoogwaardig en toekomstgericht resultaat.
Als bouwheer beschikt u over de volledige vrijheid om de bouwstijl, indeling, materiaalkeuzes en afwerking te bepalen.
De prijs van de bouwgrond, inclusief de voorbeeldwoning, omvat: BTW, registratierechten, bouwcoördinatie, architectenereloon, EPB-verslag, veiligheidcoördinatie, blowerdoortest en keuring van de riolering.
Extra specificaties: Ventilatiesysteem D met warmterecuperatie Zonnepanelen inbegrepen volgens de EPB-voorstudie Lucht-waterwarmtepomp type Daikin Altherma.
De foto's en prijzen zijn enkel als voorbeeld wat er mogelijk is en niet bindend.
Wacht niet te lang om deze unieke kans te grijpen. Kom het zelf ontdekken en ervaar de verschillende mogelijkheden die deze woning te bieden heeft. Wij staan klaar om u te verwelkomen in uw toekomstige droomhuis! Bel ons vrijblijvend op voor een bezoek en info. Wij begeleiden u graag met de glimlach op zoek naar uw droomwoning . T. 051 62 40 40.
Voorbeeldwoning – indeling en afwerking volledig op maat
Deze nieuwbouwwoning wordt opgetrokken met kwalitatieve en duurzame materialen. Er wordt een ruim budget voorzien voor de afwerking, zodat u verzekerd bent van een hoogwaardig en toekomstgericht resultaat.
Als bouwheer beschikt u over de volledige vrijheid om de bouwstijl, indeling, materiaalkeuzes en afwerking te bepalen.
De prijs van de bouwgrond, inclusief de voorbeeldwoning, omvat: BTW, registratierechten, bouwcoördinatie, architectenereloon, EPB-verslag, veiligheidcoördinatie, blowerdoortest en keuring van de riolering.
Extra specificaties: Ventilatiesysteem D met warmterecuperatie Zonnepanelen inbegrepen volgens de EPB-voorstudie Lucht-waterwarmtepomp type Daikin Altherma.
De foto's en prijzen zijn enkel als voorbeeld wat er mogelijk is en niet bindend.
Wacht niet te lang om deze unieke kans te grijpen. Kom het zelf ontdekken en ervaar de verschillende mogelijkheden die deze woning te bieden heeft. Wij staan klaar om u te verwelkomen in uw toekomstige droomhuis! Bel ons vrijblijvend op voor een bezoek en info. Wij begeleiden u graag met de glimlach op zoek naar uw droomwoning . T. 051 62 40 40.
Energie
- E-peil: E0
- Beglazing: Onbekend
Op de kaart

Financieel
Prijs |
---|
Bijkomende info
Gebouw
Bouwjaar | 2025 |
---|---|
Staat | Zo goed als nieuw |
Bewoonbaar (m²) | 230 |
Badkamers | 1 |
Slaapkamers | 3 |
Verdiepingen | 0 |
Garages | 0 |
Parkeerplaatsen | 0 |
Toiletten | 2 |
Faciliteiten
Septische tank | Nee |
---|
Perceel
P-score | A |
---|---|
G-score | A |
Totale oppervlakte (m²) | 1876 |
Bebouwde oppervlakte (m²) | 0 |
Oriëntatie tuin | Noordoost |
Vergunning
Verkavelingsvergunning | Geen beschikbaar |
---|
Uitrusting
Investeringspand | Nee |
---|---|
Parking | Nee |
Garage | Nee |
Thuiskantoor | Ja |
Opslagruimte | Ja |
Lift | Nee |
Rioolaansluiting | Ja |
Gasaansluiting | Ja |
Wateraansluiting | Ja |
Elektriciteitsaansluiting | Ja |
Internetaansluiting | Ja |
Telefoonaansluiting | Ja |
Zonnepanelen | Ja |
Zonneboiler | Ja |
Alarm | Ja |
Videofoon | Ja |
Grondwaterput | Ja |
Een pand van
Domicill Vastgoed
Domicill Vastgoed
We zijn EEN TEAM GEDREVEN VASTGOEDMAKELAARS en bieden méér waarde in vastgoed en projecten.
We helpen kopers en verkopers aan hun warme thuis door hen volledig te ontzorgen.
Ook investeerders kunnen bij ons terecht. Voor hen komt er binnenkort een volledig platform online.
rijksweg 1 project
Leer meer over vastgoed
11 June 2025
Huis kopen met bouwovertreding? Dit moet je weten
11 May 2025
Renoveren? Vraag je Mijn VerbouwPremie aan
22 April 2025
Je allereerste renovatieproject selecteren én budgetteren: met de praktische hulp van Spotto
17 February 2025