Alleenstaande 3 slpk. woning met tuin in residentiële wijk
€ 438.800
Rembrandlaan 1 - 8820 Torhout
Een pand van Altro Vastgoed Gent
Overzicht
- 170 m² bewoonbaar
- 527 m² grond
- 3 Slaapkamer(s)
- 1 Badkamer(s)
- 2 Toilet(ten)
- 1 Living(s)
- 1 Tuin
- 1 Garage(s)
Overstromingsgevaar perceel
Beschrijving
ALTRO VASTGOED VERKOOPT
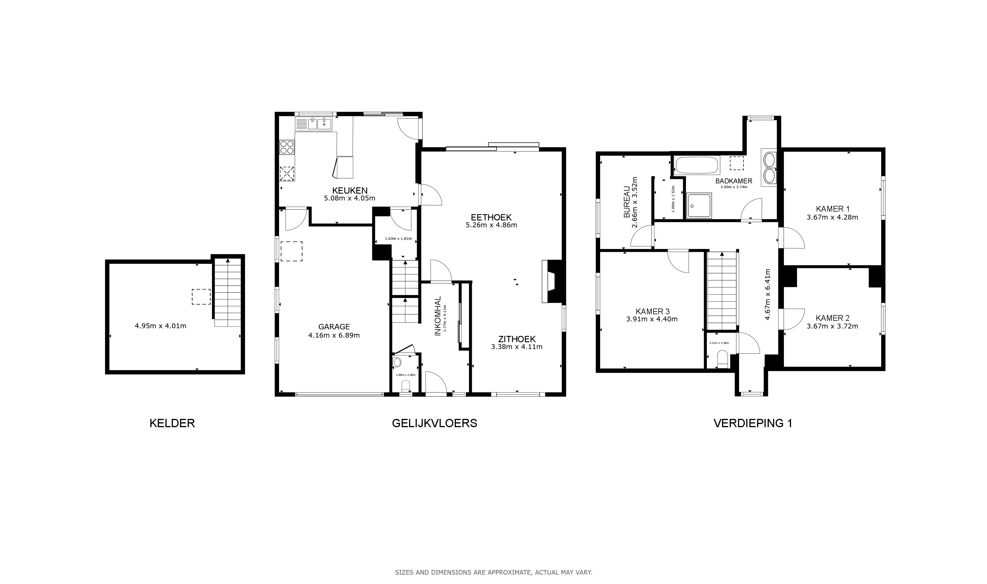
In een rustige en residentiële omgeving in Torhout bevindt zich deze alleenstaande woning, gebouwd in 1975. De woning werd steeds zeer goed onderhouden en biedt een mooie combinatie van ruimte, lichtinval en een aangename tuin. Via de ruime inkomhal met gastentoilet bereikt u de lichtrijke leefruimte. Grote raampartijen zorgen voor veel natuurlijk licht en een mooi zicht op de zonnige en aangelegde tuin. Aansluitend bevindt zich de afzonderlijke en zeer ruime keuken, eveneens met uitzicht op de tuin.
Op de eerste verdieping beschikt de woning over drie ruime slaapkamers, een grote badkamer, een bureelruimte of dressing en een afzonderlijk toilet. Extra bergruimte vindt u op de zolder, bereikbaar via een trapluik, evenals in de ruime garage en de grote kelder.
De woning bevindt zich iets hoger dan het straatniveau, wat zorgt voor een aangename lichtinval en extra privacy. De verkoper voerde bovendien al enkele belangrijke werken uit: het dak werd recent geïsoleerd, de binnenkant van de woning werd recent herschilderd, de oprit, het terras en het wandelpad rond de woning werden volledig vernieuwd.
Hoewel de woning onder de renovatieplicht valt, kan deze met enkele gerichte ingrepen snel aan de normen voldoen. Een interessante opportuniteit voor wie op zoek is naar een ruime gezinswoning in een aangename woonomgeving.
Interesse? Contacteer vastgoedmakelaar Wim Gevaert via 0473 70 40 71 (7/7) of wim@altro-vastgoed.be
In een rustige en residentiële omgeving in Torhout bevindt zich deze alleenstaande woning, gebouwd in 1975. De woning werd steeds zeer goed onderhouden en biedt een mooie combinatie van ruimte, lichtinval en een aangename tuin.
Via de ruime inkomhal met gastentoilet bereikt u de lichtrijke leefruimte. Grote raampartijen zorgen voor veel natuurlijk licht en een mooi zicht op de zonnige en aangelegde tuin. Aansluitend bevindt zich de afzonderlijke en zeer ruime keuken, eveneens met uitzicht op de tuin.
Op de eerste verdieping beschikt de woning over drie ruime slaapkamers, een grote badkamer, een bureelruimte of dressing en een afzonderlijk toilet.
Extra bergruimte vindt u op de zolder, bereikbaar via een trapluik, evenals in de ruime garage en de grote kelder.
De woning bevindt zich iets hoger dan het straatniveau, wat zorgt voor een aangename lichtinval en extra privacy. De verkoper voerde bovendien al enkele belangrijke werken uit: het dak werd recent geïsoleerd en ook de oprit, het terras en het wandelpad rond de woning werden volledig vernieuwd.
Hoewel de woning onder de renovatieplicht valt, kan deze met enkele gerichte ingrepen snel aan de normen voldoen. Een interessante opportuniteit voor wie op zoek is naar een ruime gezinswoning in een aangename woonomgeving.
Interesse?
Energie
![]() |
- EPC Certificaat: 20190105-0002206736-RES-1
- Energieverbruik: 663 kWh/m²/jaar
- Verwarming: Elektriciteit
- Beglazing: Standaard dubbel
Extra budget nodig voor je renovatie?

Financieel
| Prijs | |
|---|---|
| Kadastraal inkomen (niet geïndexeerd) | € 758 |
| Kadastraal inkomen (geïndexeerd) | € 758 |
Berekening kosten
Je aankoopkosten? Die heb je snel berekend via de knop hieronder.
Bijkomende info
Gebouw
| Bouwjaar | 1975 |
|---|---|
| Staat | Goed onderhouden |
| Is beschermd | Nee |
| Bewoonbaar (m²) | 170 |
| Verdieping | 0 |
| Gevels | 4 |
| Gevelbreedte | 11 |
| Zolder | 1 |
| Kelder | 1 |
| Badkamers | 1 |
| Slaapkamers | 3 |
| Verdiepingen | 3 |
| Garages | 1 |
| Keukens | 1 |
| Leefruimtes | 1 |
| Kantoorruimtes | 1 |
| Parkeerplaatsen | 2 |
| Opslagruimtes | 0 |
| Toiletten | 2 |
Ruimtes
| Slaapkamer | 16 m² |
|---|---|
| Slaapkamer | 14 m² |
| Slaapkamer | 17 m² |
| Leefruimte | 39 m² |
| EXTRA_INFO.SPACEDETAILS.KEY.PROFESSIONROOM | 9 m² |
| Tuin | 527 m² |
| Terras | 20 m² |
Faciliteiten
| Type vloer | |
|---|---|
| Beglazing | Standaard dubbel |
| Luiken | Nee |
| Primair verwarmingstype | Decentrale verwarming |
| Brandstof primaire verwarming | Elektriciteit |
| Brandstof type | Geen |
| Elektrisch keuringsattest | Ja |
| Septische tank | Ja |
Perceel
| Diepte (m) | 26 |
|---|---|
| Breedte (m) | 20 |
| Overstromingsgevoelig | Geen |
| P-score | D |
| G-score | A |
| Voorkeurrecht | Nee |
| Totale oppervlakte (m²) | 527 |
| Tuin oppervlakte (m²) | 527 |
| Oppervlakte terras (m²) | 20 |
| Oriëntatie tuin | ZuidOost |
| Oriëntatie terras | ZuidOost |
Vergunning
| Vergunning | Vergunning beschikbaar |
|---|---|
| Verkavelingsvergunning | Vergunning beschikbaar |
Uitrusting
| Parking | Ja |
|---|---|
| Garage | Ja |
| Kelder | Ja |
| Zolder | Ja |
| Opslagruimte | Nee |
| Tuin | Ja |
| Terras | Ja |
| Lift | Nee |
| Rioolaansluiting | Ja |
| Gasaansluiting | Nee |
| Wateraansluiting | Ja |
| Elektriciteitsaansluiting | Ja |
| Zonnepanelen | Nee |
| Zonneboiler | Nee |
| Thuisbatterij | Nee |
| Alarm | Nee |
| Zwembad | Nee |
| Sauna | Nee |
| Jacuzzi | Nee |
| Videofoon | Nee |
| Domotica | Nee |
| Regenwaterput | Nee |
| Ventilatie | Nee |



