karaktervol herenhuis in het stadscentrum met ruim zonnig terras.
Een pand van Vastgoed Vancayzeele
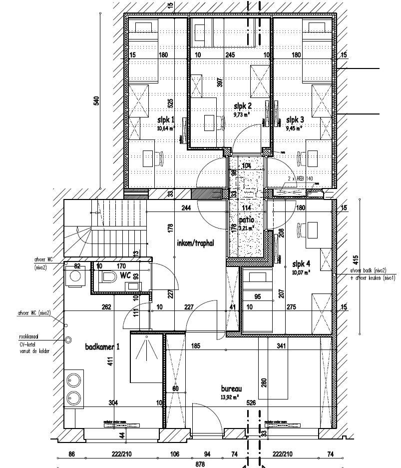
Overzicht
- 231 m² bewoonbaar
- 105 m² grond
- 4 Slaapkamer(s)
- 2 Badkamer(s)
- 2 Toilet(ten)
- 1 Tuin
Beschrijving
In het hart van het stadscentrum bevindt zich dit volledig gerenoveerd herenhuis in bel-etagestijl, een unieke combinatie van authentieke charme en hedendaags EPC.
Op het gelijkvloers beschikt de woning over een inkom, vier slaapkamers, een badkamer en een apart toilet. Dankzij deze indeling kan deze verdieping ook perfect dienen als praktijkruimte, kantoor of hobbyruimte.
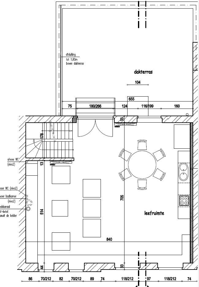
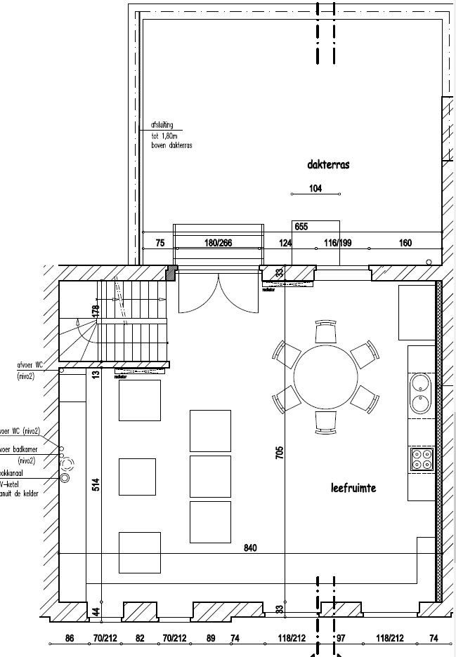
De eerste verdieping verrast met een open leefruimte in loftstijl, waar grote raampartijen en authentieke elementen zorgen voor een prachtige sfeer en overvloedige lichtinval. Vanuit deze leefruimte heeft u toegang tot een ruim, zonnig terras, ideaal om in alle rust te genieten. De stijlvolle, volledig ingerichte keuken sluit naadloos aan bij de leefruimte en biedt bovendien een uniek zicht op de Sint-Maartenskerk.
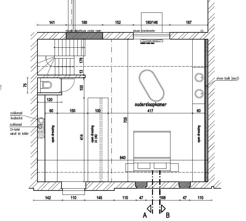
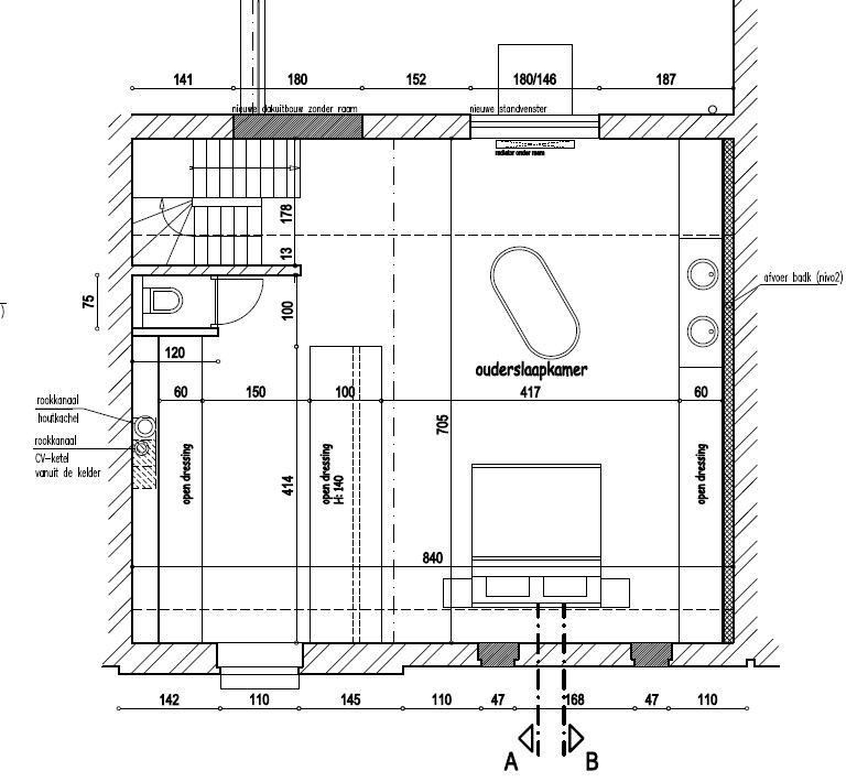
Op de bovenste verdieping bevindt zich een luxueuze masterbedroom, een echte oase van rust met ingemaakte kasten, een elegant vrijstaand bad en een modern lavabomeubel en een apart toilet.
Bovendien is er een kelder, ideaal voor extra opslag.
Dit herenhuis biedt een bijzonder woongeheel voor wie houdt van karakter, ruimte, licht en een centrale ligging.
Op het gelijkvloers beschikt de woning over een inkom, vier slaapkamers, een badkamer en een apart toilet. Dankzij deze indeling kan deze verdieping ook perfect dienen als praktijkruimte, kantoor of hobbyruimte.
De eerste verdieping verrast met een open leefruimte in loftstijl, waar grote raampartijen en authentieke elementen zorgen voor een prachtige sfeer en overvloedige lichtinval. Vanuit deze leefruimte heeft u toegang tot een ruim, zonnig terras, ideaal om in alle rust te genieten. De stijlvolle, volledig ingerichte keuken sluit naadloos aan bij de leefruimte en biedt bovendien een uniek zicht op de Sint-Maartenskerk.
Op de bovenste verdieping bevindt zich een luxueuze masterbedroom, een echte oase van rust met ingemaakte kasten, een elegant vrijstaand bad en een modern lavabomeubel en een apart toilet.
Bovendien is er een kelder, ideaal voor extra opslag.
Dit herenhuis biedt een bijzonder woongeheel voor wie houdt van karakter, ruimte, licht en een centrale ligging.
Energie
![]() |
- EPC Certificaat: 3701589
- Verwarming: Gas
- Beglazing: Hoog efficient dubbel
Op de kaart

Financieel
| Prijs | |
|---|---|
| Kadastraal inkomen (niet geïndexeerd) | € 508 |
Berekening kosten
Je aankoopkosten? Die heb je snel berekend via de knop hieronder.
Bijkomende info
Gebouw
| Bouwjaar | 1930 |
|---|---|
| Renovatie jaar | 2014 |
| Staat | Goed onderhouden |
| Is beschermd | Nee |
| Bewoonbaar (m²) | 231 |
| Badkamers | 2 |
| Slaapkamers | 4 |
| Toiletten | 2 |
Faciliteiten
| Materiaal ramenomlijstingen | Hout |
|---|---|
| Beglazing | Hoog efficient dubbel |
| Luiken | Nee |
| Primair verwarmingstype | Centrale verwarming |
| Brandstof primaire verwarming | Gas |
| Warm water type | Geen verwarming |
Perceel
| Overstromingsgevoelig | Geen |
|---|---|
| P-score | A |
| G-score | A |
| Voorkeurrecht | Nee |
| Totale oppervlakte (m²) | 105 |
| Oriëntatie tuin | Zuid |
Vergunning
| Verkavelingsvergunning | Geen beschikbaar |
|---|---|
| Bouwovertreding dagvaardiging | Geen |
Uitrusting
| Meerdere eigenaars | Nee |
|---|---|
| Geschikt als kangoeroewoning | Nee |
| Geschikt voor rolstoelgebruikers | Nee |
| Geschikt voor praktijk | Nee |
| Volledig onderkelderd | Nee |
| Parking | Nee |
| Garage | Nee |
| Thuiskantoor | Nee |
| Kelder | Ja |
| Zolder | Nee |
| Opslagruimte | Nee |
| Tuin | Ja |
| Terras | Nee |
| Lift | Nee |
| Rioolaansluiting | Ja |
| Gasaansluiting | Ja |
| Wateraansluiting | Ja |
| Elektriciteitsaansluiting | Ja |
| TV aansluiting | Nee |
| Internetaansluiting | Ja |
| Zonnepanelen | Nee |
| Zonneboiler | Nee |
| Alarm | Nee |
| Zwembad | Nee |
| Jacuzzi | Nee |
| Toonzaal | Nee |
| Ventilatie | Nee |
Een pand van
Vastgoed Vancayzeele
ge WOON BETER
"Vastgoed Vancayzeele, de kwalitatieve partner die u zoekt voor al uw vastgoedtransacties.
Met een persoonlijke benadering, respect en een professionele werkwijze op maat van uw wensen nemen wij graag alle zorg uit uw handen en streven wij voor u graag het beste resultaat na."
TK/25/31
Leer meer over vastgoed
24 November 2025
Uitgezocht voor jouw gemeente: Hoeveel stijgt de waarde van je woning door een renovatie?
22 October 2025
Hoeveel kan ik lenen om een huis te kopen?
11 June 2025
Huis kopen met bouwovertreding? Dit moet je weten
11 May 2025
