> Te koop > Voormezele > Huis > Nieuw te bouwen alleenstaande woning te Voormezele.

Nieuw te bouwen alleenstaande woning te Voormezele.

€ 968.891

8902 Voormezele

Een pand van Your Home

Volledige aanbod

Jouw zoektocht

Jouw scoretabel voor dit pand
Aan het laden...
Aan het laden...
Jouw geplande bezichtigingen
Aan het laden...
Aan het laden...

Overzicht


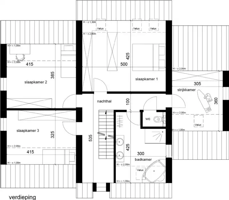
  • 3 Slaapkamer(s)
  • 1 Badkamer(s)
  • 2 Toilet(ten)
  • 1 Living(s)

Beschrijving


Een voorbeeldwoning dat volledig aan te passen is naar wens én budget? Dat is wat wij bij Your Home doen. Met onze kennis van de nieuwste, duurzame materialen leiden we jou naar optimaal wooncomfort. Zo bouwen wij samen aan jouw thuis.

Zie je jezelf al staan voor jouw nieuwe woning of wens je meer informatie? Neem dan contact met ons op. Wij helpen je graag verder.

Mail naar aanvraag@yourhome.be of bel 056 755 788

Referentie: YH_CH_NTB_20260214

Energie


Financieel


Prijs € 968.891

Bijkomende info


Gebouw
Badkamers 1
Slaapkamers 3
Keukens 1
Leefruimtes 1
Toiletten 2

Een pand van


Your Home
Logo van makelaar: Your Home
Your Home - Samen bouwen
Your Home is een persoonlijke bouwpartner voor zij die dromen van een nieuwbouwwoning of totaalrenovatie. Wij vertalen jouw bouwdroom in een woning die perfect bij jou past. Van bouwen op maat tot totaalrenovatie, het kan allemaal!
Logo van makelaar: Your Home
1113892
Nieuw te bouwen alleenstaande woning te Voormezele. foto {{pictureIndex}}

Nieuw te bouwen alleenstaande woning te Voormezele.

€ 968.891

8902 Voormezele

Bezoek het pand

Vul jouw contactgegevens hieronder in en de makelaar contacteert je.

Leer meer over vastgoed

24 April 2026
Duurzaam gelegen woning? Check je Mobiscore
23 March 2026
Op Spotto zoeken als een pro: 10 slimme tips
21 March 2026
Hoeveel kan ik lenen om een huis te kopen?
01 March 2026
Wanneer heb ik een bouwvergunning of omgevingsvergunning nodig?