Appartement
€ 220.000
Een pand van Depotter - vastgoedadviseur
Favoriet
Jouw zoektocht
Jouw scoretabel voor dit pand
Aan het laden...
Jouw geplande bezichtigingen
Aan het laden...
Overzicht
- 64.75 m² bewoonbaar
- 1 Badkamer(s)
- 1 Toilet(ten)
Beschrijving
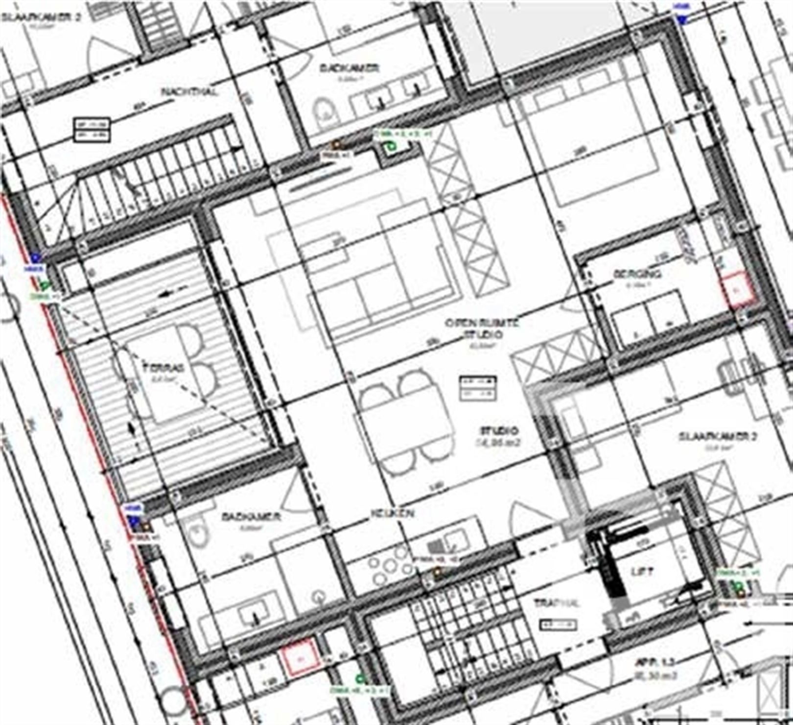
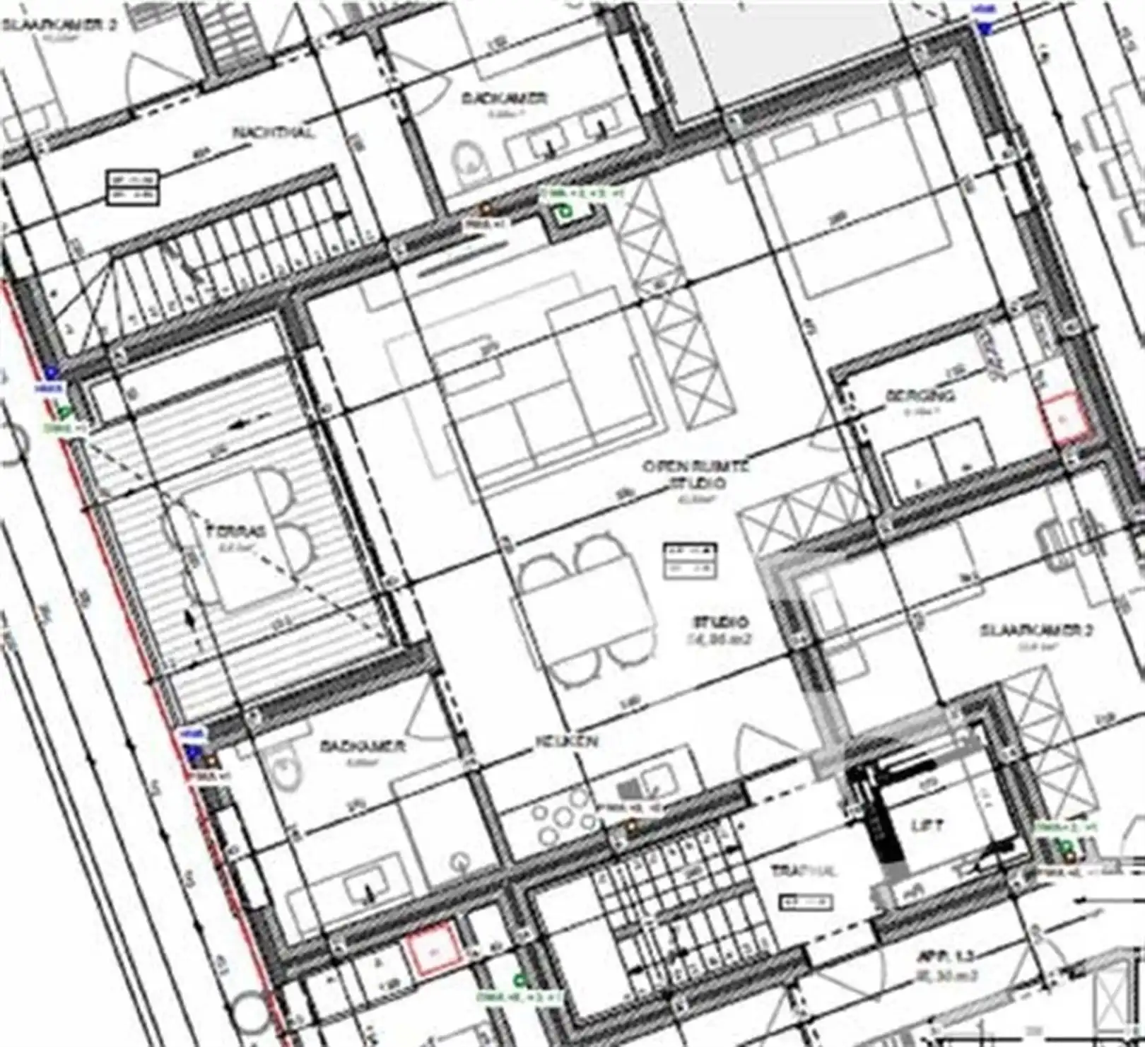
Deze studio bevindt zich op het de eerste verdieping in de Wervikstraat met noord-west gericht terras (11,50m²).
De bewoonbare oppervlakte van de studio is 64,75m².
De bewoonbare oppervlakte van de studio is 64,75m².
Energie
- E-peil: E45
- Beglazing: Onbekend
Op de kaart

Financieel
| Prijs | |
|---|---|
| Kadastraal inkomen (niet geïndexeerd) | € 0 |
| Kadastraal inkomen (geïndexeerd) | € 0 |
Bijkomende info
Gebouw
| Bouwjaar | 2025 |
|---|---|
| Staat | Nieuw |
| Bouwcertificaat | Nee |
| Bewoonbaar (m²) | 64.75 |
| Verdieping | 1 |
| Badkamers | 1 |
| Slaapkamers | 0 |
| Verdiepingen | 0 |
| Garages | 0 |
| Parkeerplaatsen | 0 |
| Doucheruimtes | 0 |
| Toiletten | 1 |
Faciliteiten
| Materiaal ramenomlijstingen | PVC |
|---|---|
| Elektrisch keuringsattest | Nee |
Perceel
| Overstromingsgevoelig | Geen |
|---|---|
| Voorkeurrecht | Ja |
| Bebouwde oppervlakte (m²) | 0 |
| Tuin oppervlakte (m²) | 0 |
| Oppervlakte terras (m²) | 11 |
Vergunning
| Vergunning | Geen beschikbaar |
|---|---|
| Verkavelingsvergunning | Geen beschikbaar |
Uitrusting
| Investeringspand | Nee |
|---|---|
| Geschikt voor praktijk | Nee |
| Parking | Nee |
| Garage | Nee |
| Thuiskantoor | Nee |
| Kelder | Nee |
| Zolder | Nee |
| Tuin | Nee |
| Terras | Ja |
| Lift | Nee |
| Rioolaansluiting | Nee |
| Gasaansluiting | Nee |
| Wateraansluiting | Nee |
| Elektriciteitsaansluiting | Nee |
| TV aansluiting | Nee |
| Internetaansluiting | Nee |
| Telefoonaansluiting | Nee |
Appartementsblok
| Lift | Nee |
|---|
Een pand van
Depotter - vastgoedadviseur
Wie zijn we?
U wenst uw eigendom te (ver)kopen of (ver)huren maar houdt van een frisse aanpak? Dan bent u bij Depotter aan het juiste adres.
Een jong en dynamisch team staat met plezier klaar om u bij te staan. Wij werken op maat voor uw pand, maken gebruik van de nieuwste technologieën en bieden ook een meerwaarde voor kopers. Onze unieke combinatie van immobiliën en projectontwikkeling zorgt dat dit aan een correcte prijs en op efficiënte manier aangeboden kan worden.
We garanderen een zeer persoonlijk en nauw contact met al onze klanten.
Kom gerust langs bij ons op kantoor voor een warme koffie of thee.
BESELAREPLAATS 3 Beselare
Leer meer over vastgoed
23 March 2026
Op Spotto zoeken als een pro: 10 slimme tips
21 March 2026
Hoeveel kan ik lenen om een huis te kopen?
01 March 2026
Wanneer heb ik een bouwvergunning of omgevingsvergunning nodig?
17 February 2026