Appartementen te koop op de markt van Beselare
€ 200.000
Een pand van Minthus
Overzicht
Beschrijving
Welkom bij Residentie Becelaere
Dit nieuwbouwproject op de markt van Beselare zal bestaan uit:
Dit project zal de perfecte mix aanbieden van comfort, stijlvolle architectuur en energiezuinigheid. Bovendien heeft het een centrale ligging, namelijk op wandelafstand van de lokale handelaars en op slechts enkele minuten van de A19 Ieper-Kortrijk.
Hieronder worden de appartementen toegelicht.
Gelijkvloers
1ste verdieping
2de verdieping
3de verdieping
Troeven:
Wens je een vrijblijvend bezoek of meer informatie?
Contacteer Eden op 0470 43 78 21 of mail info@minthus.be
Dit nieuwbouwproject op de markt van Beselare zal bestaan uit:
- 2 handelspanden
- 9 appartementen
- 1 studio
- 1 woning.
Dit project zal de perfecte mix aanbieden van comfort, stijlvolle architectuur en energiezuinigheid. Bovendien heeft het een centrale ligging, namelijk op wandelafstand van de lokale handelaars en op slechts enkele minuten van de A19 Ieper-Kortrijk.
Hieronder worden de appartementen toegelicht.
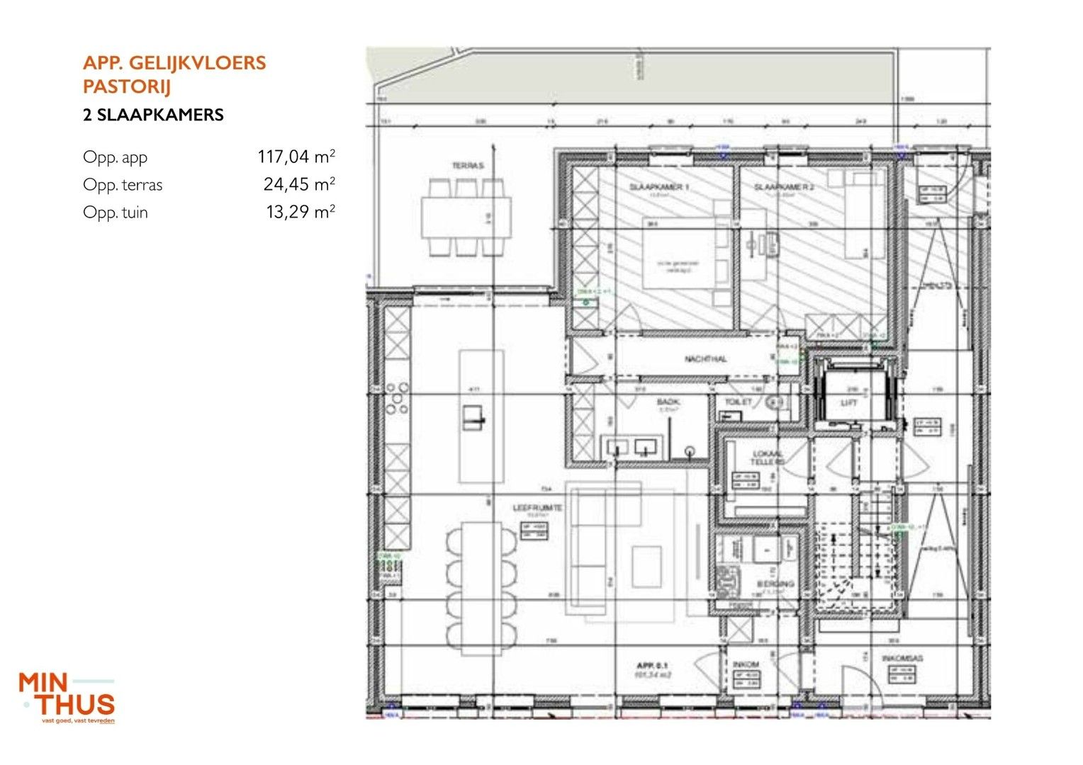
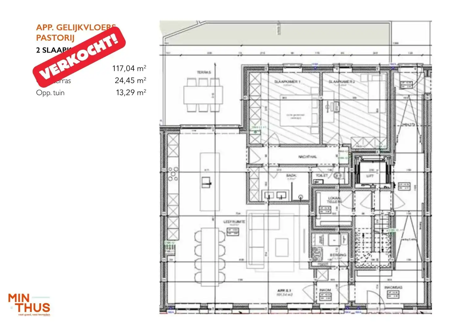
Gelijkvloers
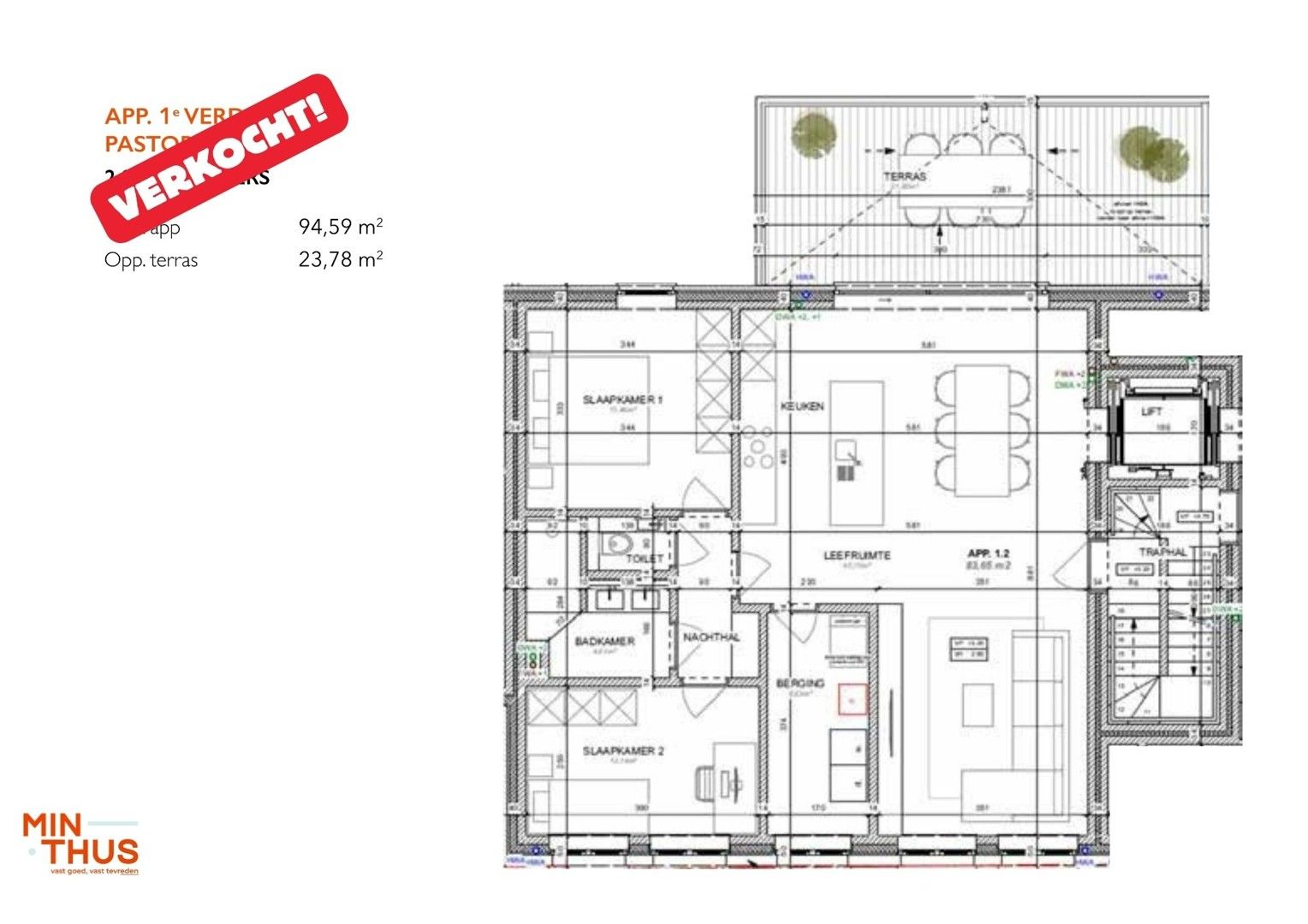
- Pastorij: Appartement (117,04 m²) met 2 slpk en terras (24,45 m²) en tuin (13,29 m²). Prijs: € 290.000
1ste verdieping
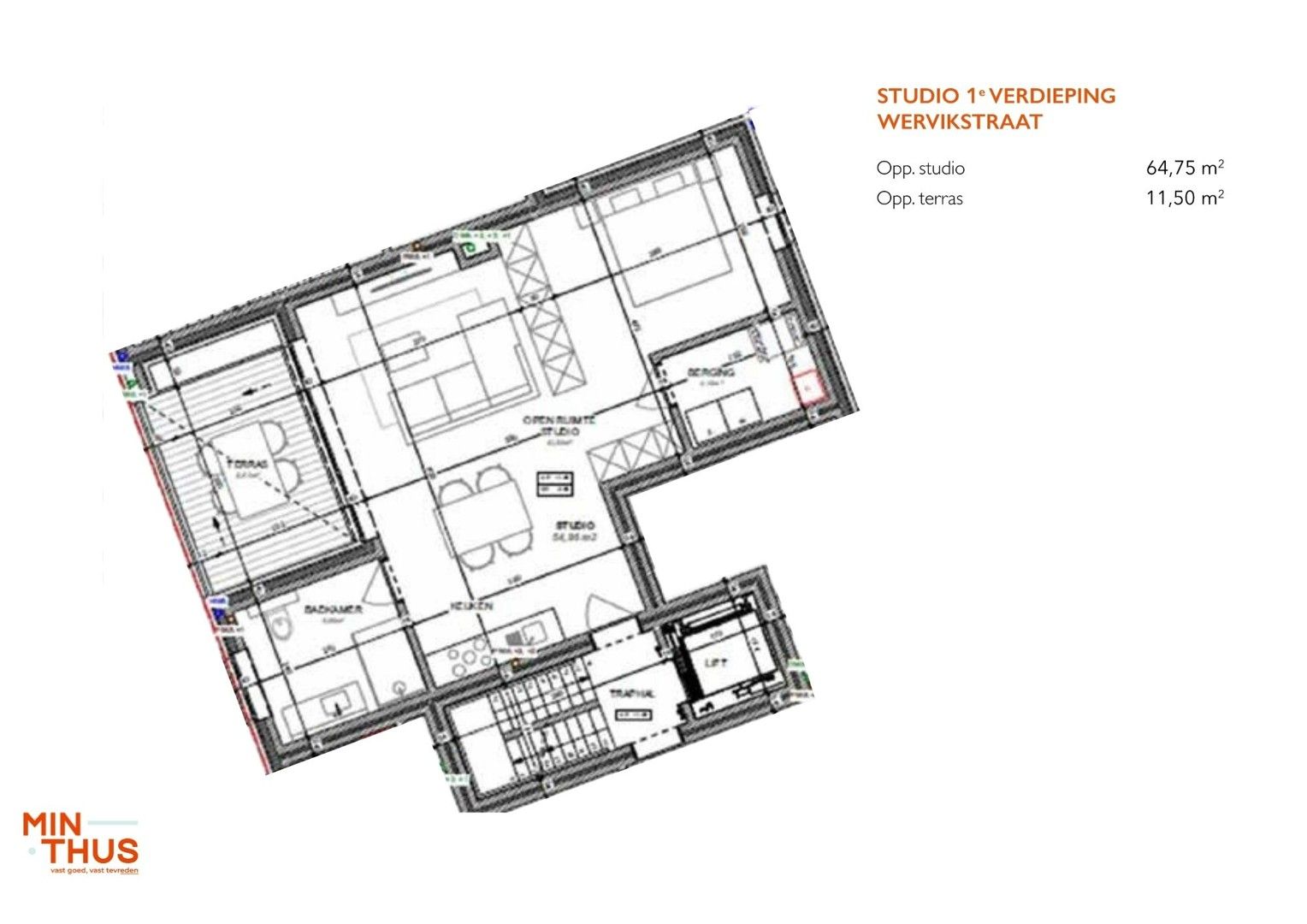
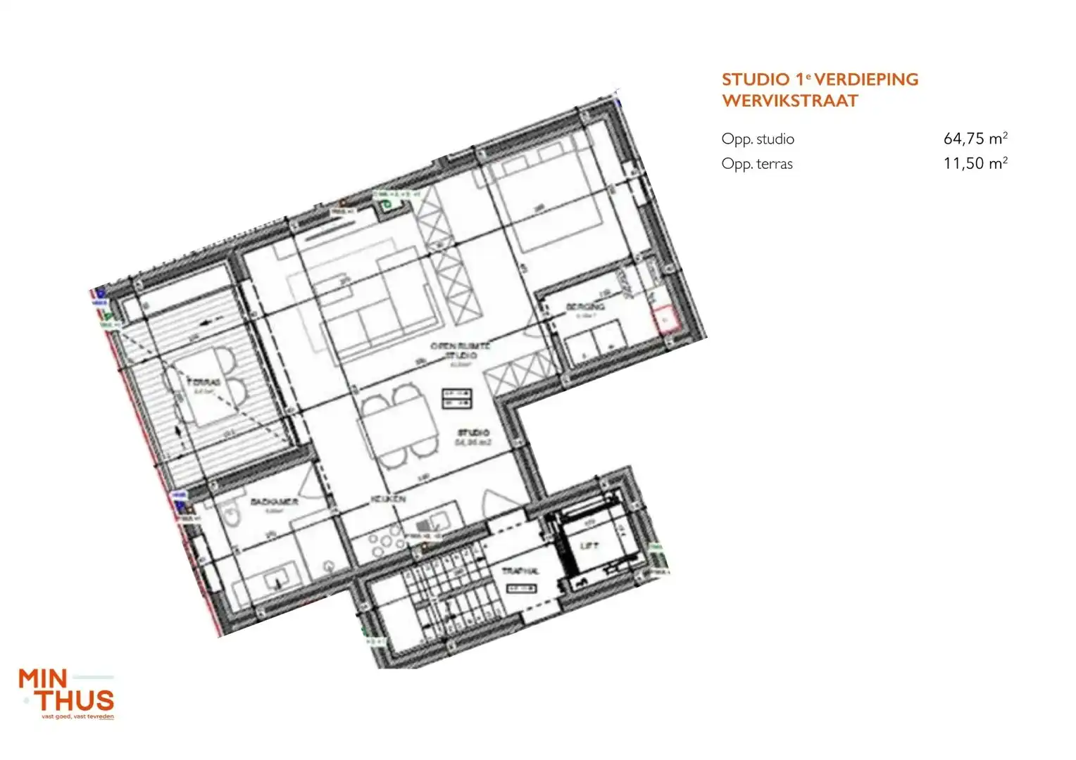
- Wervikstraat: Studio (64,75 m²) met terras (11,50 m²). Prijs: € 200.000
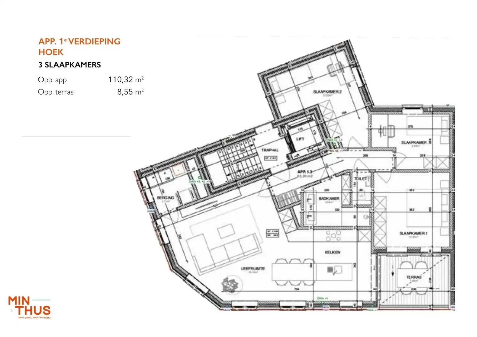
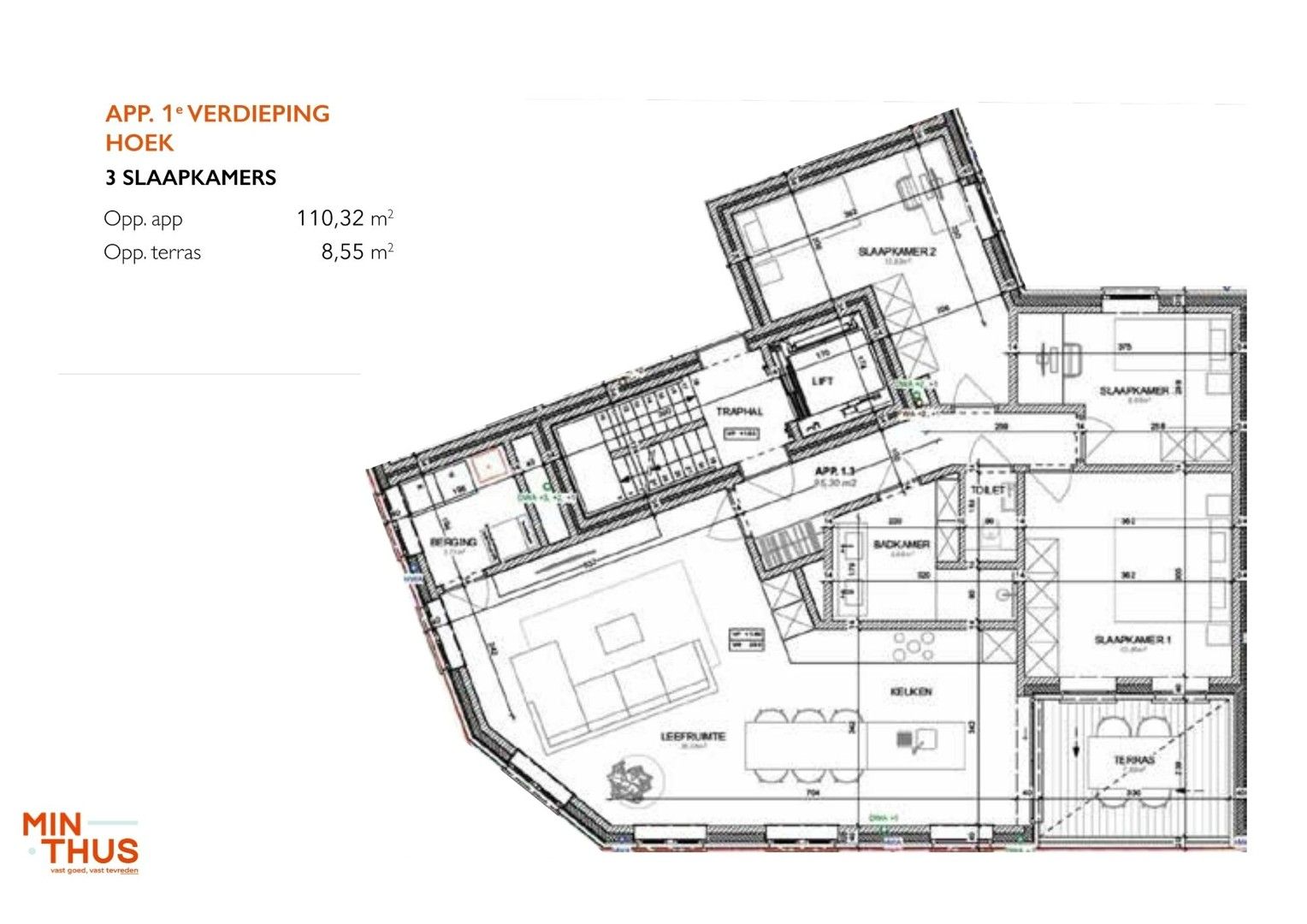
- Hoek: Appartement (110,32 m²) met 3 slpk en terras (8,55 m²). Prijs: € 315.000
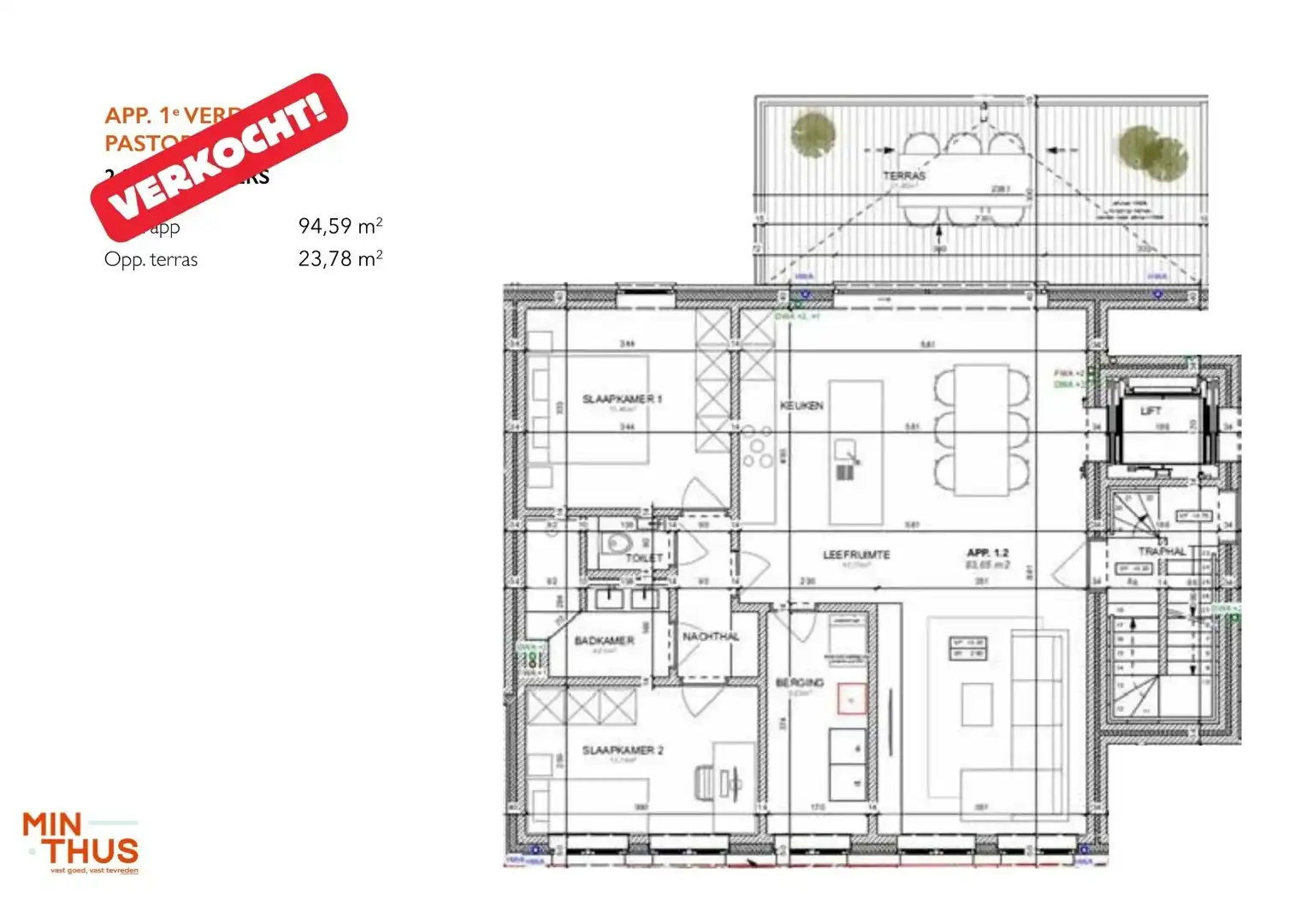
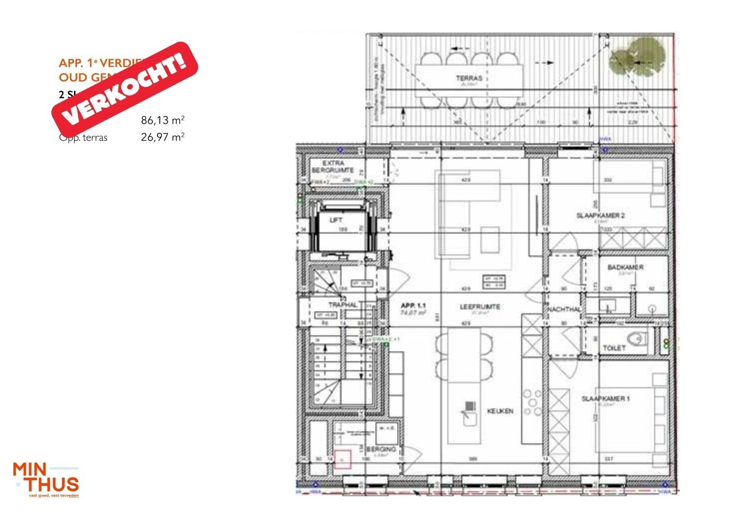
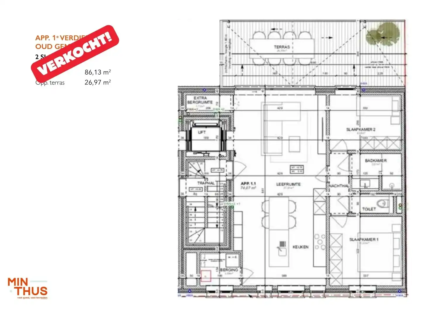
Pastorij: VERKOCHT.Oud Gemeentehuis: VERKOCHT
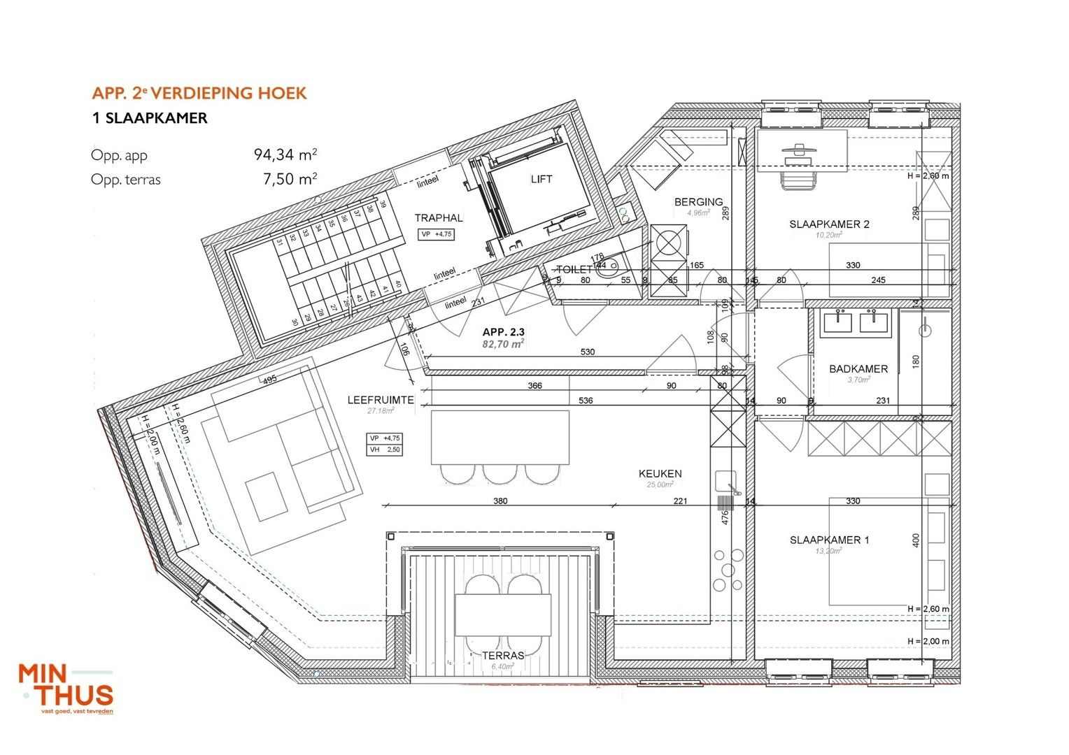
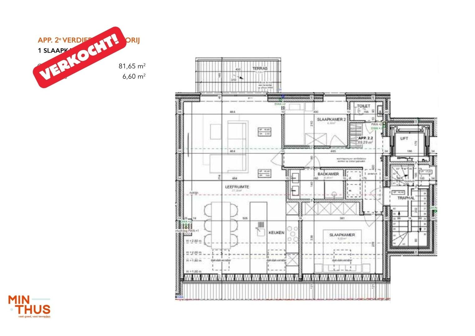
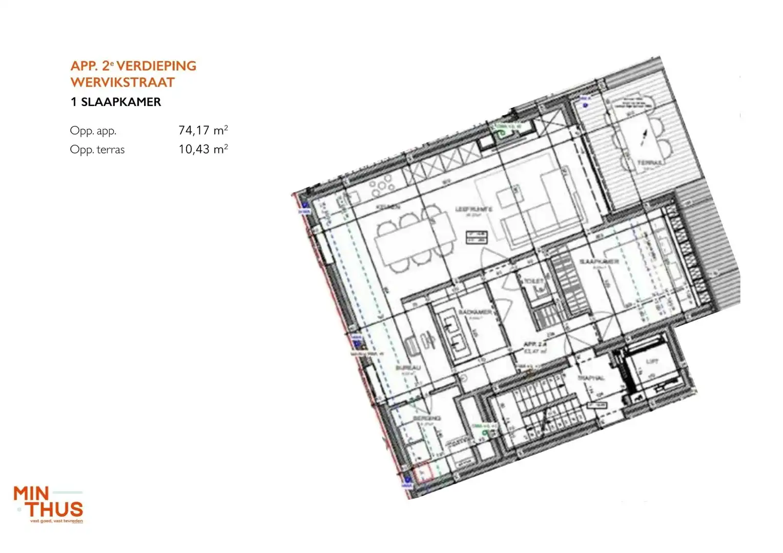
2de verdieping
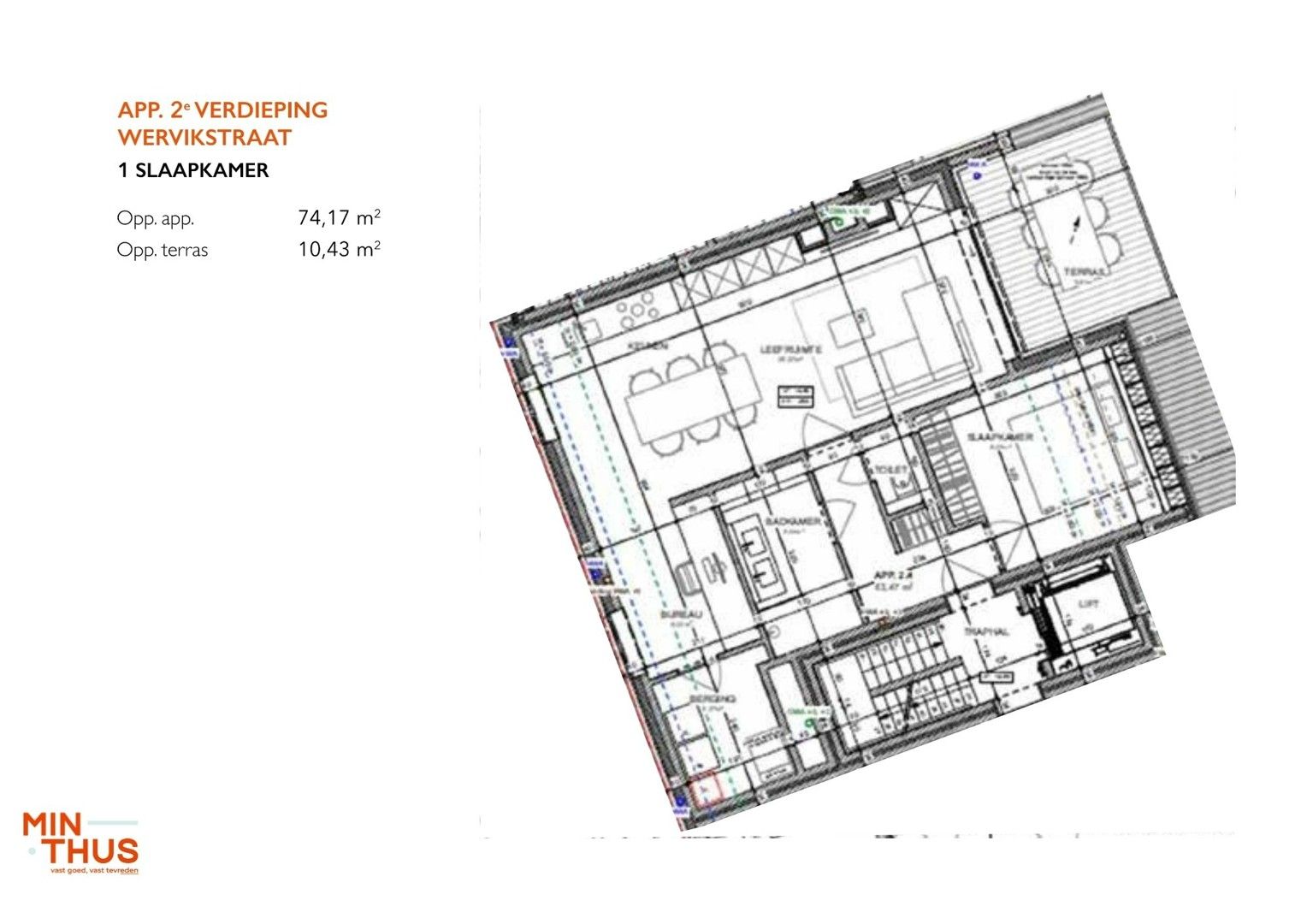
- Wervikstraat: Appartement (74,17 m²) met 1 slpk terras (10,43 m²). Prijs: € 245.000
- Hoek: Appartement (94.34 m²) met 2 slpk en terras (7,50 m²). Prijs: €280.000
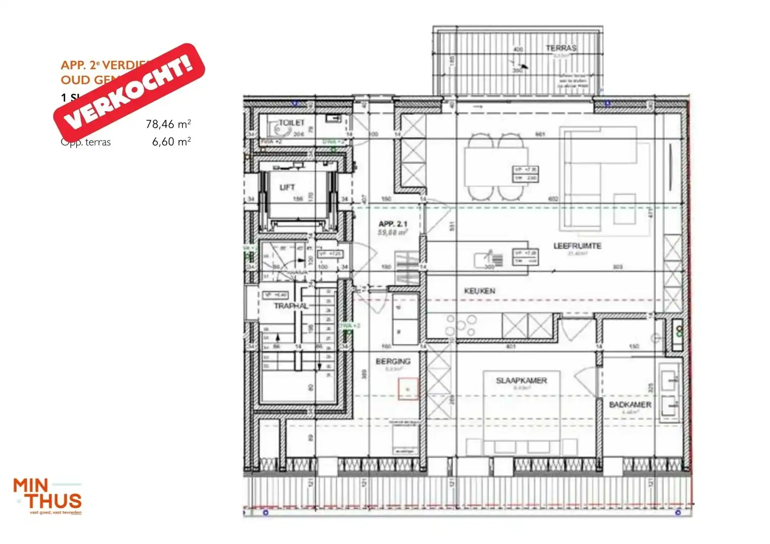
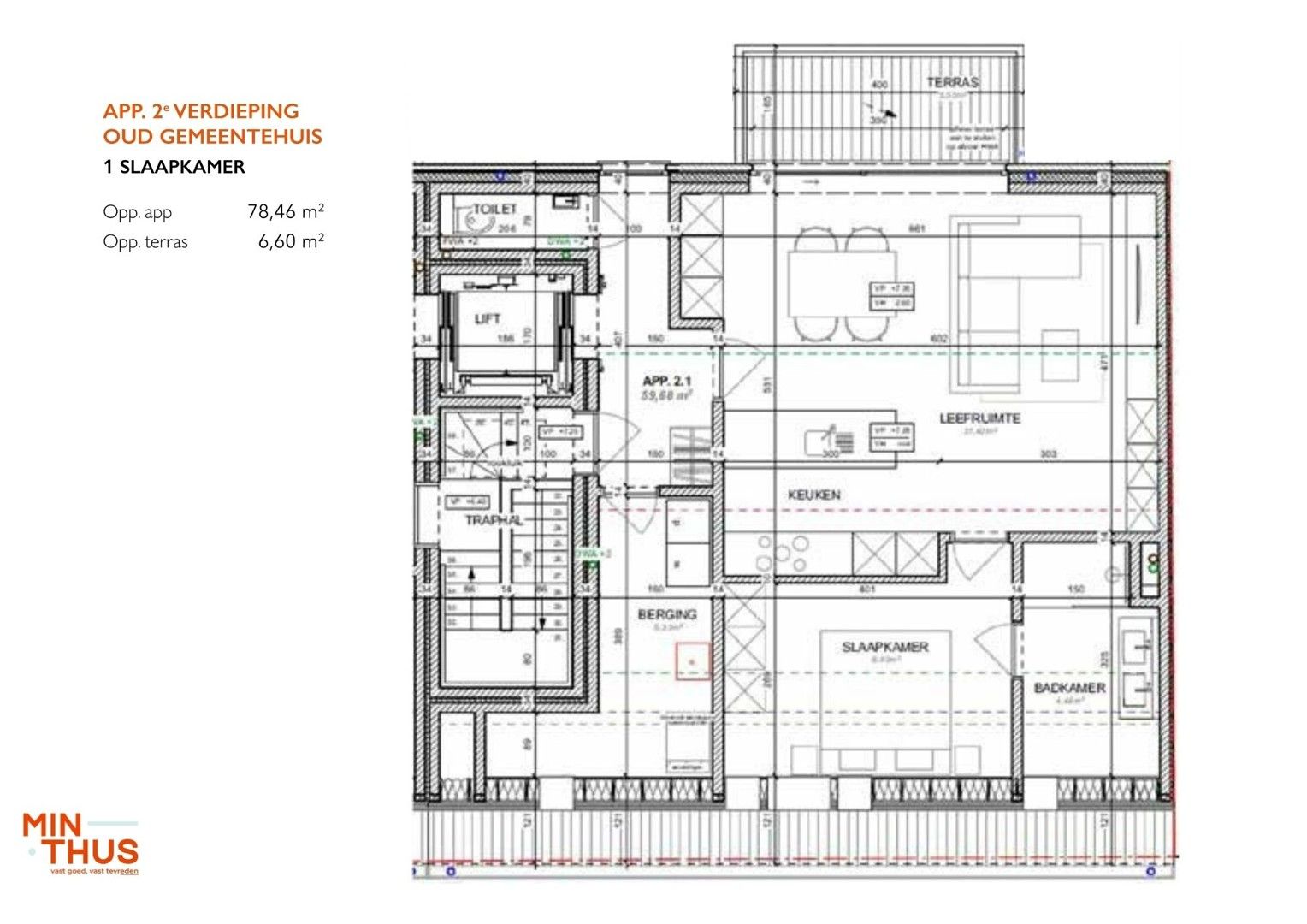
Pastorij: VERKOCHT.- Oud Gemeentehuis: Appartement (78,46 m²) met 1 slpk en terras (6,60 m²). Prijs: €245.000
3de verdieping
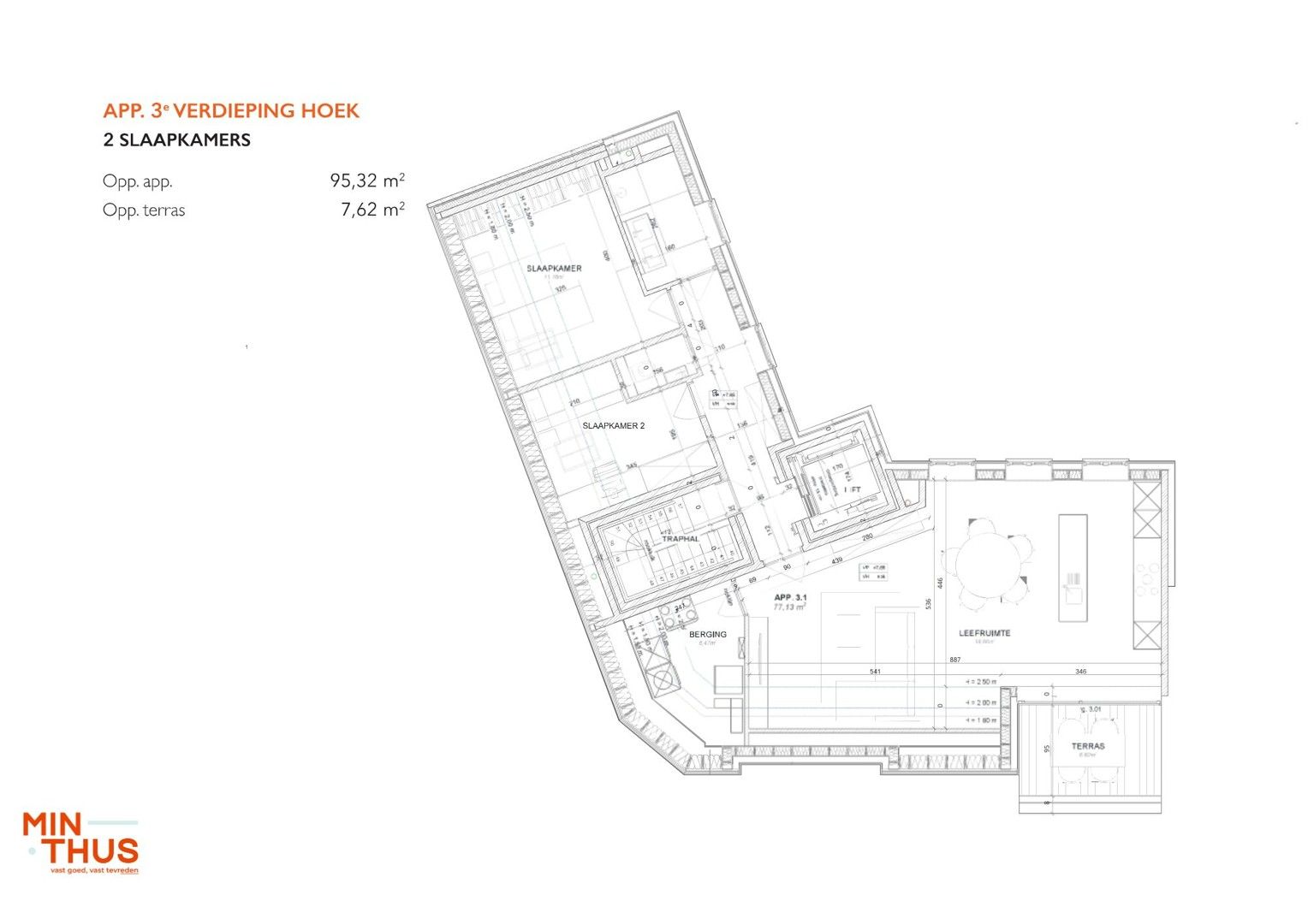
- Hoek: Appartement (90,50 m²) met 2 slpk en terras (7,62 m²). Prijs: €260.000
Troeven:
- Mogelijkheid tot bijkopen van extra berging, garage of parkeerplaats (met en zonder laadpaal)
- Traditioneel gebouwd met snelbouwstenen (zowel dragende als niet dragende muren) met keramische dakpannen, ramen en deuren in PVC.
- BEN – Bijna Energie Neutraal: zonnepanelen, vloerverwarming op warmtepomp, regenwater op het toilet en wasmachine, ventilatie D, …
- Gemeenschappelijke fietsenstalling
- …
Wens je een vrijblijvend bezoek of meer informatie?
Contacteer Eden op 0470 43 78 21 of mail info@minthus.be
Energie
- E-peil: E0
- Beglazing: Onbekend
Op de kaart

Financieel
| Prijs |
|---|
Berekening kosten
Je aankoopkosten? Die heb je snel berekent via de knop hieronder.
Bijkomende info
Gebouw
| Badkamers | 0 |
|---|---|
| Slaapkamers | 0 |
| Verdiepingen | 0 |
| Garages | 0 |
| Parkeerplaatsen | 0 |
| Toiletten | 0 |
Faciliteiten
| Septische tank | Nee |
|---|
Perceel
| Bebouwde oppervlakte (m²) | 0 |
|---|
Vergunning
| Verkavelingsvergunning | Geen beschikbaar |
|---|
Uitrusting
| Investeringspand | Nee |
|---|---|
| Parking | Nee |
| Garage | Nee |
| Lift | Nee |
| Rioolaansluiting | Nee |
| Gasaansluiting | Nee |
| Wateraansluiting | Nee |
| Elektriciteitsaansluiting | Nee |
| Internetaansluiting | Nee |
| Telefoonaansluiting | Nee |
| Zonnepanelen | Nee |
| Zonneboiler | Nee |
| Alarm | Nee |
| Videofoon | Nee |
| Grondwaterput | Nee |
Appartementsblok
| Lift | Nee |
|---|---|
| Intercom | Nee |
Een pand van
Minthus
🏡 Welkom bij Minthus! Kom binnen, zet u, kopje koffie?
Hier verkopen we jouw woning op een ongedwongen manier, zonder stijve praatjes en kleine lettertjes, in mensentaal zoals jij het wil.
We ondersteunen je in elke stap van het proces, van de paperassen tot en met de marketing.
Onze deur staat altijd open... op afspraak ;-)
Residentie Becelaere (appartementen)
Leer meer over vastgoed
24 November 2025
Uitgezocht voor jouw gemeente: Hoeveel stijgt de waarde van je woning door een renovatie?
22 October 2025
Hoeveel kan ik lenen om een huis te kopen?
11 June 2025
Huis kopen met bouwovertreding? Dit moet je weten
11 May 2025