Alleenstaande nieuwbouwwoning met 4 slaapkamers, tuin en carport in de dorpskern van Passendale
€ 368.000
Een pand van Minthus
Overzicht
- 160 m² bewoonbaar
- 374 m² grond
Beschrijving
Moderne nieuwbouwwoning met 4 slaapkamers, tuin en carport in de dorpskern van Passendale
In de dorpskern van Passendale en op wandelafstand van alle faciliteiten (supermarkt, lagere school, ...) treffen we deze nieuw te bouwen woning. In onderstaande wordt de indeling toegelicht alsook enkele interessante weetjes.
INDELING
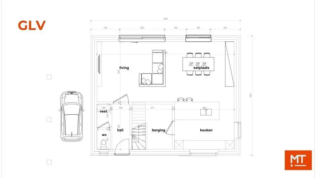
▪︎ Gelijkvloerse verdieping: inkomhal met gastentoilet en vestiaire, ruime woon- en eetkamer met grote raampartijen die zicht bieden op de tuin, open keuken met berging.
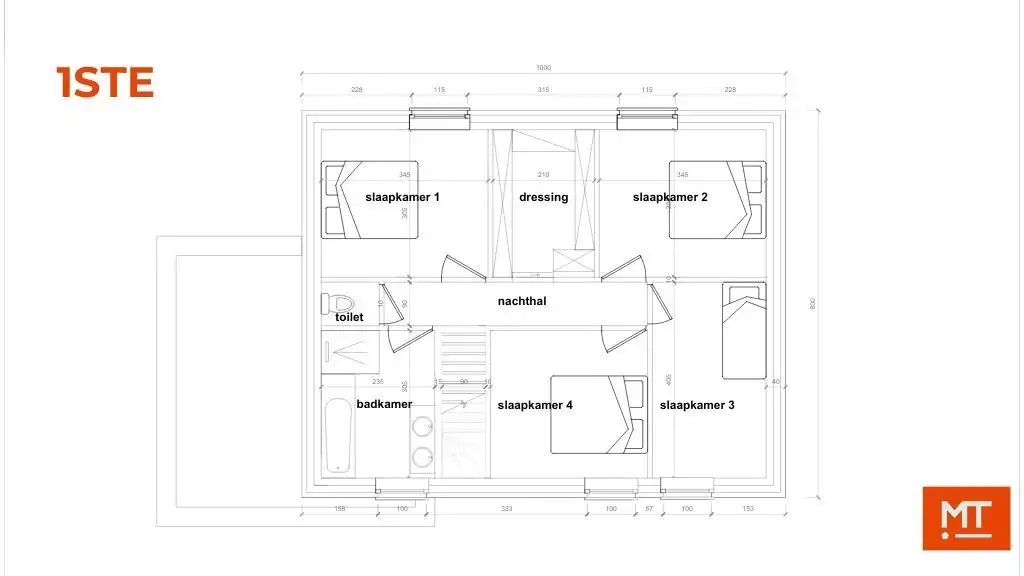
▪︎ 1ste verdieping: nachthal, apart toilet, 4 slaapkamers waarvan één met dressing, badkamer met ligbad, douche en dubbele wastafel.
KENMERKEN
▪︎ Bijna energieneutrale woning (BEN), ventilatiesysteem C+, regenwater: 10.000L
▪︎ Warmtepomp (vloerverwarming op gelijkvloers - 1ste verdieping binnenunit warmen/koelen)
▪︎ ...
De prijs bedraagt €368.000 exclusief kosten.
De totale prijs inclusief registratierechten, BTW en notaris worden geraamd op €440.830.
Wens je meer informatie of een vrijblijvende afspraak op kantoor?
Contacteer Eden: 0470 43 78 21 of mail info@minthus.be
In de dorpskern van Passendale en op wandelafstand van alle faciliteiten (supermarkt, lagere school, ...) treffen we deze nieuw te bouwen woning. In onderstaande wordt de indeling toegelicht alsook enkele interessante weetjes.
INDELING
▪︎ Gelijkvloerse verdieping: inkomhal met gastentoilet en vestiaire, ruime woon- en eetkamer met grote raampartijen die zicht bieden op de tuin, open keuken met berging.
▪︎ 1ste verdieping: nachthal, apart toilet, 4 slaapkamers waarvan één met dressing, badkamer met ligbad, douche en dubbele wastafel.
KENMERKEN
▪︎ Bijna energieneutrale woning (BEN), ventilatiesysteem C+, regenwater: 10.000L
▪︎ Warmtepomp (vloerverwarming op gelijkvloers - 1ste verdieping binnenunit warmen/koelen)
▪︎ ...
De prijs bedraagt €368.000 exclusief kosten.
De totale prijs inclusief registratierechten, BTW en notaris worden geraamd op €440.830.
Wens je meer informatie of een vrijblijvende afspraak op kantoor?
Contacteer Eden: 0470 43 78 21 of mail info@minthus.be
Energie
![]() |
- E-peil: E0
- Beglazing: Onbekend
Op de kaart

Financieel
| Prijs |
|---|
Berekening kosten
Je aankoopkosten? Die heb je snel berekend via de knop hieronder.
Bijkomende info
Gebouw
| Staat | Nieuw |
|---|---|
| Bouwcertificaat | Nee |
| Bewoonbaar (m²) | 160 |
| Badkamers | 0 |
| Slaapkamers | 0 |
| Verdiepingen | 0 |
| Garages | 0 |
| Parkeerplaatsen | 0 |
| Toiletten | 0 |
Faciliteiten
| Septische tank | Nee |
|---|
Perceel
| Overstromingsgevoelig | Geen |
|---|---|
| P-score | B |
| G-score | A |
| Totale oppervlakte (m²) | 374 |
| Bebouwde oppervlakte (m²) | 0 |
| Oriëntatie tuin | Oost |
Vergunning
| Verkavelingsvergunning | Geen beschikbaar |
|---|
Uitrusting
| Investeringspand | Nee |
|---|---|
| Parking | Nee |
| Garage | Nee |
| Lift | Nee |
| Rioolaansluiting | Nee |
| Gasaansluiting | Nee |
| Wateraansluiting | Ja |
| Elektriciteitsaansluiting | Ja |
| Internetaansluiting | Ja |
| Telefoonaansluiting | Nee |
| Zonnepanelen | Nee |
| Zonneboiler | Nee |
| Alarm | Nee |
| Videofoon | Nee |
| Grondwaterput | Ja |
Een pand van
Minthus
🏡 Welkom bij Minthus! Kom binnen, zet u, kopje koffie?
Hier verkopen we jouw woning op een ongedwongen manier, zonder stijve praatjes en kleine lettertjes, in mensentaal zoals jij het wil.
We ondersteunen je in elke stap van het proces, van de paperassen tot en met de marketing.
Onze deur staat altijd open... op afspraak ;-)
Zuidstraat 13 - Passendale
Leer meer over vastgoed
01 March 2026
Wanneer heb ik een bouwvergunning of omgevingsvergunning nodig?
17 February 2026
Hoe breng ik een bod uit op een woning?
24 November 2025
Uitgezocht voor jouw gemeente: Hoeveel stijgt de waarde van je woning door een renovatie?
22 October 2025
