Zonnebeke_Berten Pilstraat_Lot 1
Een pand van C-Nest Groep
Overzicht
- 3757 m² grond
Beschrijving
NIEUW TE KOOP
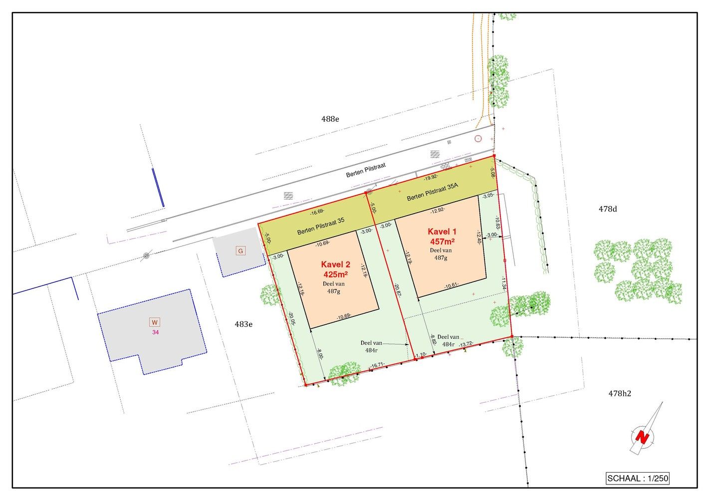
In de Berten Pilstraat in Zonnebeke, op het einde van een doodlopend gedeelte, bouwen we binnenkort 2 nieuwbouwwoningen.
Lot 1 in dit project bieden we aan met onze Bouwen Op Maat formule.
Hierbij heeft u als koper de vrije keuze in ontwerp met onze architect.
Deze bouwgrond bestaat uit een gedeelte bouwgrond van 457 m² met ruime bouwvoorschriften en een naastgelegen weide van maar liefst 3300 m². In totaliteit een oppervlakte van 3757 m²!
Ideaal voor mensen die graag veel open ruimte wensen of bijvoorbeeld een paard bij huis willen hebben.
Pluspunten:
Interesse om met ons op deze grond te bouwen? Contacteer ons voor meer informatie.
In de Berten Pilstraat in Zonnebeke, op het einde van een doodlopend gedeelte, bouwen we binnenkort 2 nieuwbouwwoningen.
Lot 1 in dit project bieden we aan met onze Bouwen Op Maat formule.
Hierbij heeft u als koper de vrije keuze in ontwerp met onze architect.
Deze bouwgrond bestaat uit een gedeelte bouwgrond van 457 m² met ruime bouwvoorschriften en een naastgelegen weide van maar liefst 3300 m². In totaliteit een oppervlakte van 3757 m²!
Ideaal voor mensen die graag veel open ruimte wensen of bijvoorbeeld een paard bij huis willen hebben.
Pluspunten:
- Rustige en landelijke ligging met open zicht;
- Ontwerp en afwerking naar eigen smaak;
- Ideaal voor mensen met dieren of groene vingers;
- ...
Interesse om met ons op deze grond te bouwen? Contacteer ons voor meer informatie.
Energie
- E-peil: E0
- Beglazing: Onbekend
Op de kaart

Financieel
Prijs |
---|
Bijkomende info
Perceel
Overstromingsgevoelig | Geen |
---|---|
P-score | A |
Totale oppervlakte (m²) | 3757 |
Vergunning
Verkavelingsvergunning | Vergunning beschikbaar |
---|
Uitrusting
Investeringspand | Nee |
---|---|
Rioolaansluiting | Nee |
Gasaansluiting | Nee |
Wateraansluiting | Nee |
Elektriciteitsaansluiting | Nee |
Internetaansluiting | Nee |
Telefoonaansluiting | Nee |
Een pand van
C-Nest Groep
Residentieel vastgoed van C-Nest Groep: Da’s goed wonen!
C-Nest Groep is specialist in residentiële projectontwikkeling van woning- en appartementsbouw actief in de regio Oost- en West-Vlaanderen. De familiale waarden van C-Nest Groep vormen sinds 2007 de leidraad waarbij kwaliteit boven kwantiteit primeert.
We houden van ruimtegevoel, open bebouwing en groen. Dat betekent dat we bewust kiezen voor ruime panden en appartementen, die bijdragen tot een maximale levenskwaliteit.
Ben je op zoek naar een instapklare woning? Wil je bouwen op maat of grond verkopen? C-Nest Groep gaat samen met jou de uitdaging aan!
Zonnebeke_Berten Pilstraat_Lot 1C
Leer meer over vastgoed
11 June 2025
Huis kopen met bouwovertreding? Dit moet je weten
11 May 2025
Renoveren? Vraag je Mijn VerbouwPremie aan
22 April 2025
Je allereerste renovatieproject selecteren én budgetteren: met de praktische hulp van Spotto
17 February 2025