VERGUNDE BOUWGROND
€ 165.000
Een pand van Dekeyser.immo
Favoriet
Jouw zoektocht
Jouw scoretabel voor dit pand
Aan het laden...
Jouw geplande bezichtigingen
Aan het laden...
Overzicht
- 546 m² grond
Beschrijving
In de Zandvoordestraat 13 te Geluveld bevindt zich dit perceel van 546 m², waarvoor reeds een geldige vergunning werd afgeleverd voor de bouw van een moderne nieuwbouwwoning.
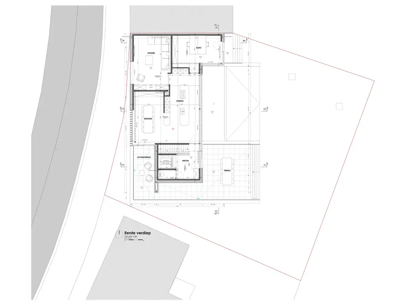
De vergunde woning omvat drie bouwlagen: een kelderverdieping, het gelijkvloers en een eerste verdieping. Volgens het huidige ontwerp zijn op het gelijkvloers vier slaapkamers voorzien, elk met een eigen badkamer. De keuken, leef- en zitruimte bevinden zich op de eerste verdieping, waardoor u optimaal kan genieten van het open, landelijke uitzicht.
Alle plannen, documenten en de bouwvergunning kunnen uitgebreid overlopen worden op ons kantoor.
Voor meer informatie of een afspraak kan u contact opnemen met Yorben via 0468 188 061 of yorben@dekeyser.immo
De vergunde woning omvat drie bouwlagen: een kelderverdieping, het gelijkvloers en een eerste verdieping. Volgens het huidige ontwerp zijn op het gelijkvloers vier slaapkamers voorzien, elk met een eigen badkamer. De keuken, leef- en zitruimte bevinden zich op de eerste verdieping, waardoor u optimaal kan genieten van het open, landelijke uitzicht.
Alle plannen, documenten en de bouwvergunning kunnen uitgebreid overlopen worden op ons kantoor.
Voor meer informatie of een afspraak kan u contact opnemen met Yorben via 0468 188 061 of yorben@dekeyser.immo
Energie
- E-peil: E0
- Beglazing: Onbekend
Op de kaart

Financieel
| Prijs | |
|---|---|
| Kadastraal inkomen (niet geïndexeerd) | € 7 |
Berekening kosten
Je aankoopkosten? Die heb je snel berekend via de knop hieronder.
Bijkomende info
Perceel
| Overstromingsgevoelig | Geen |
|---|---|
| P-score | A |
| Totale oppervlakte (m²) | 546 |
Vergunning
| Verkavelingsvergunning | Geen beschikbaar |
|---|
Uitrusting
| Investeringspand | Nee |
|---|---|
| Rioolaansluiting | Nee |
| Gasaansluiting | Nee |
| Wateraansluiting | Nee |
| Elektriciteitsaansluiting | Nee |
| Internetaansluiting | Nee |
| Telefoonaansluiting | Nee |
Een pand van
Dekeyser.immo
Dekeyser Heerser in Vastgoed
Waarom jij Dekeyser nodig hebt!
Een makelaar is iemand die zijn dagen vult met alles rond het kopen en verkopen van panden. Hij of zij staat in contact met potentiële kopers en verkopers. Een makelaar haalt alles uit de kast om jouw pand te verkopen of om je droomwoning te vinden!
Denk maar aan al die tv-shows waar makelaars de gekste wensen van hun klanten kunnen doen vervullen. En hoewel tv-shows soms fictie zijn, is onze motivatie dat niet!
Maar dat is niet alles.
Samenwerken met Dekeyser brengt talloze voordelen met zich mee:
- Jouw huis leert veel nieuwe mensen kennen.
- Jouw vragen en wensen worden door ons gehoord.
- Kortrijk en omstreken kent geen geheimen meer voor ons
- Jouw pand komt terecht op een professionele website en onze populaire socials
- Nieuwe trends en wetgevingen volgen we op de voet
- Jouw huis verkopen of nieuwe thuis vinden was nog nooit zo gemakkelijk!
Bij Dekeyser helpen we je graag bij jouw volgende stap. Jouw huis verkopen? Of jouw nieuwe thuis vinden? Wij zijn er klaar voor! Contacteer ons vandaag nog!
ZON-ZANDVOORDESTR-13
Leer meer over vastgoed
24 April 2026
Duurzaam gelegen woning? Check je Mobiscore
23 March 2026
Op Spotto zoeken als een pro: 10 slimme tips
21 March 2026
Hoeveel kan ik lenen om een huis te kopen?
01 March 2026