Instapklaar appartement met zicht op Muinkpark in Gent
€ 424.800
François Benardstraat 46 - 9000 Gent
Een pand van Altro Vastgoed Brugge
Jouw zoektocht
Overzicht
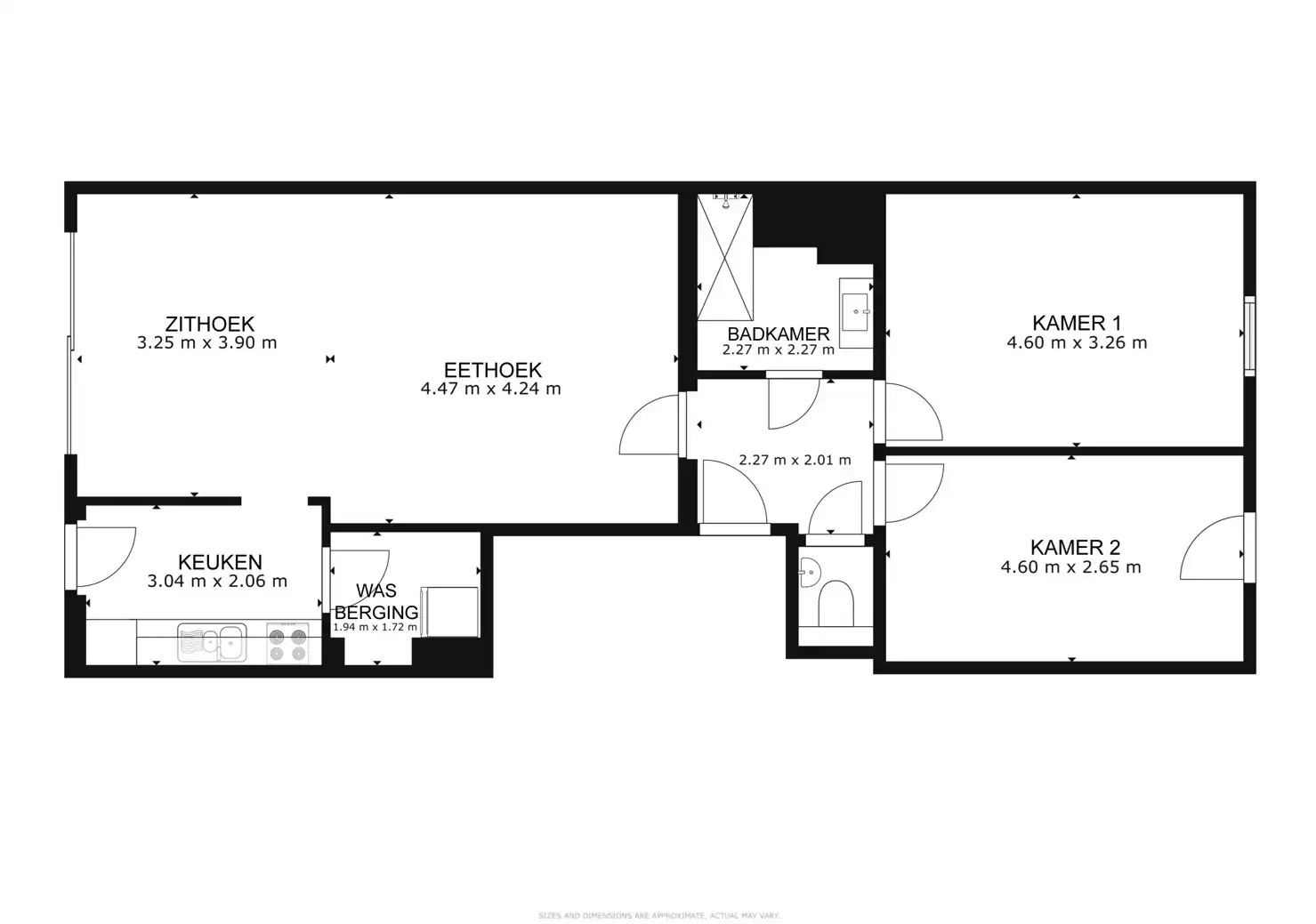
- 84 m² bewoonbaar
- 84 m² grond
- 2 Slaapkamer(s)
- 1 Badkamer(s)
- 1 Living(s)
Beschrijving
ALTRO VASTGOED VERKOOPT
Bent u al een tijd op zoek naar een instapklaar appartement op een topligging in Gent? Dan is dit uw kans.
Gelegen op de eerste verdieping in de François Benaertstraat 46 bevindt zich dit prachtig gerenoveerd en perfect onderhouden appartement, pal aan het Muinkpark en op wandelafstand van het centrum én vlot bereikbaar via de invalswegen.
De indeling is doordacht en meteen overtuigend: een lichtrijke leefruimte met geïnstalleerde keuken, twee volwaardige slaapkamers, een moderne badkamer met inloopdouche, afzonderlijk toilet, berging en inkomhal. Zowel voor- als achteraan geniet u van een balkon met open zichten op het Muinkpark, de Sint-Pietersabdij en de omgeving.
Extra troef: mogelijkheid tot aankoop van een overdekte staanplaats, wat het comfort op deze centrale ligging compleet maakt.
Dit is geen appartement dat u moet aanpassen, maar één waar u meteen kan intrekken en genieten.
Wenst u deze opportuniteit zelf te ontdekken? Contacteer Wim Gevaert via 0473 70 40 71 (7/7) of wim@altro-vastgoed.be
Bent u al een tijd op zoek naar een instapklaar appartement op een topligging in Gent? Dan is dit uw kans.
Gelegen op de eerste verdieping in de François Benaertstraat 46 bevindt zich dit prachtig gerenoveerd en perfect onderhouden appartement, pal aan het Muinkpark en op wandelafstand van het centrum én vlot bereikbaar via de invalswegen.
De indeling is doordacht en meteen overtuigend: een lichtrijke leefruimte met geïnstalleerde keuken, twee volwaardige slaapkamers, een moderne badkamer met inloopdouche, afzonderlijk toilet, berging en inkomhal. Zowel voor- als achteraan geniet u van een balkon met open zichten op het Muinkpark, de Sint-Pietersabdij en de omgeving.
Extra troef: mogelijkheid tot aankoop van een overdekte staanplaats, wat het comfort op deze centrale ligging compleet maakt.
Dit is geen appartement dat u moet aanpassen, maar één waar u meteen kan intrekken en genieten.
Wenst u deze opportuniteit zelf te ontdekken?
Energie
![]() |
- EPC Certificaat: 20260409-0003844152-RES-1
- Energieverbruik: 101 kWh/m²/jaar
- Beglazing: Onbekend
Downloads
- OVAM (pdf)
- Stedenbouw (pdf)
- Kadastraal plan (pdf)
- Watertoets (pdf)
- ActaMaps (pdf)
- VGI uittreksel (pdf)
- Risicokaart waterbeheerder (pdf)
- EPC (pdf)
- Asbest inventaris (pdf)
- 3093_001.pdf (pdf)
- Elektrische keuring (pdf)
Financieel
| Prijs | |
|---|---|
| Kadastraal inkomen (niet geïndexeerd) | € 1.043 |
Berekening kosten
Je aankoopkosten? Die heb je snel berekend via de knop hieronder.
Bijkomende info
Gebouw
| Bouwjaar | 1979 |
|---|---|
| Staat | Goed onderhouden |
| Is beschermd | Nee |
| Bewoonbaar (m²) | 84 |
| Verdieping | 0 |
| Zolder | 0 |
| Kelder | 0 |
| Badkamers | 1 |
| Slaapkamers | 2 |
| Verdiepingen | 6 |
| Garages | 0 |
| Keukens | 1 |
| Leefruimtes | 1 |
| Kantoorruimtes | 0 |
| Parkeerplaatsen | 0 |
| Opslagruimtes | 1 |
| Toiletten | 0 |
Ruimtes
| Slaapkamer | 15 m² |
|---|---|
| Slaapkamer | 12 m² |
| Keuken | 6 m² |
| Leefruimte | 32 m² |
| Opbergruimte | 3 m² |
| Terras | 3 m² |
Faciliteiten
| Keuken uitrusting | Goed uitgerust |
|---|---|
| Luiken | Nee |
| Brandstof type | Geen |
| Elektrisch keuringsattest | Ja |
| Septische tank | Nee |
Perceel
| Overstromingsgevoelig | Mogelijk overstromingsgevoelig |
|---|---|
| P-score | C |
| G-score | C |
| Voorkeurrecht | Nee |
| Totale oppervlakte (m²) | 84 |
| Oppervlakte terras (m²) | 3 |
| Oriëntatie terras | Zuid |
Uitrusting
| Parking | Ja |
|---|---|
| Garage | Nee |
| Kelder | Nee |
| Zolder | Nee |
| Opslagruimte | Ja |
| Tuin | Nee |
| Terras | Ja |
| Lift | Nee |
| Rioolaansluiting | Ja |
| Gasaansluiting | Ja |
| Wateraansluiting | Ja |
| Elektriciteitsaansluiting | Ja |
| Zonnepanelen | Nee |
| Zonneboiler | Nee |
| Thuisbatterij | Nee |
| Alarm | Nee |
| Zwembad | Nee |
| Sauna | Nee |
| Jacuzzi | Nee |
| Videofoon | Nee |
| Domotica | Nee |
| Regenwaterput | Nee |
| Ventilatie | Nee |
Appartementsblok
| Aantal verdiepingen | 6 |
|---|---|
| Lift | Nee |
| Ondergrondse parking | Nee |
| Intercom | Nee |
