Nieuw
Gelijkvloers-appartement palend aan het Zuidpark
€ 239.000
Een pand van Vastgoed Poppe
Overzicht
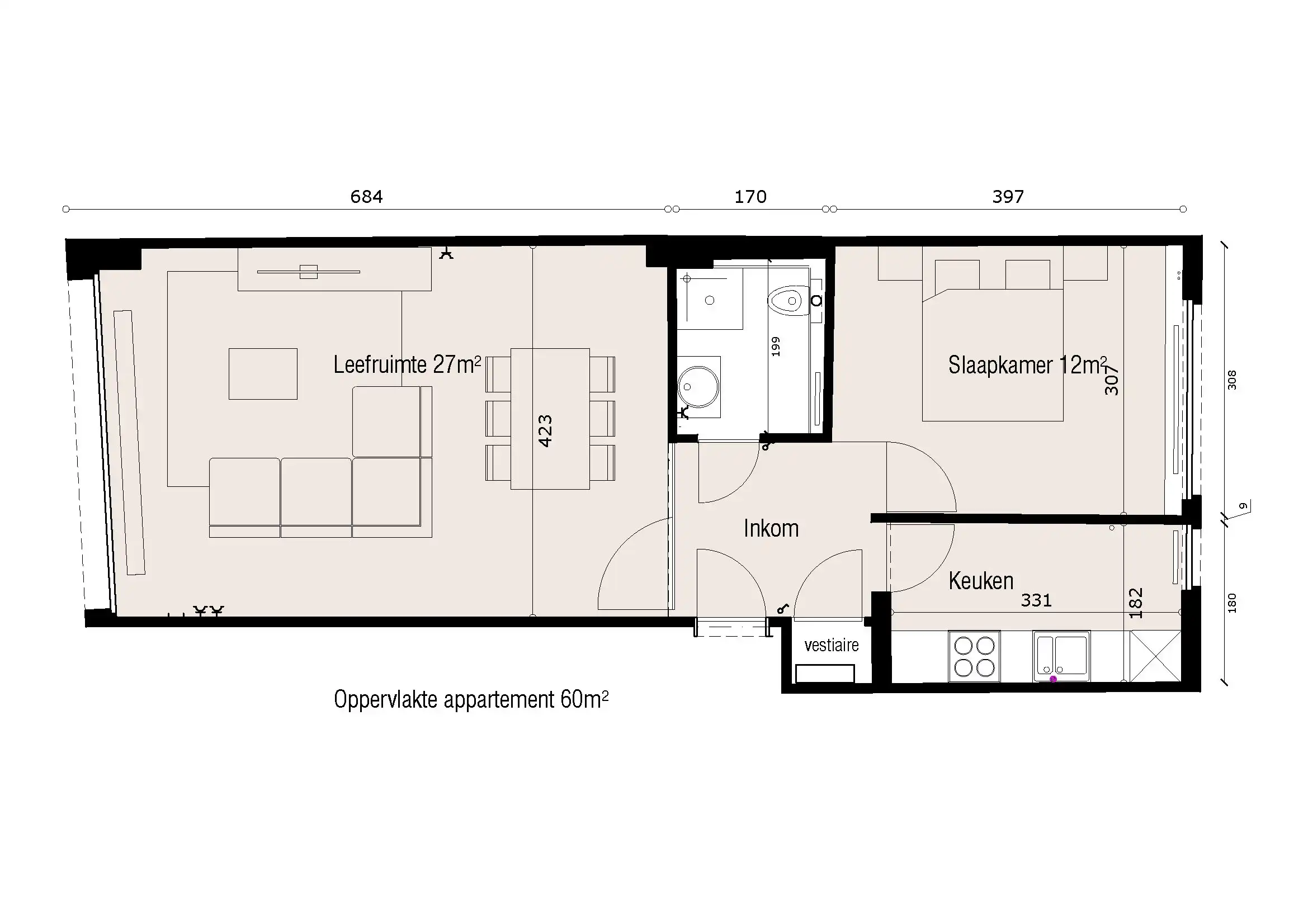
- 50 m² bewoonbaar
- 500 m² grond
- 1 Slaapkamer(s)
- 1 Badkamer(s)
- 1 Toilet(ten)
Beschrijving
Subliem goed gelegen gelijkvloers-appartement gelegen vlakbij de Gentse binnenstad aan het Zuidpark. Met tal van gezellige cafe’s en restaurants, openbaar vervoer, sport en ontspanning op wandelafstand. Vlakbij diverse UGent -Hogent campussen.
Indeling als volgt: inkomhal, lichtrijke en ruime ZW-gerichte leefruimte, deels vernieuwde badkamer, een ingerichte keuken met alle comfort.
Het appartement is volledig voorzien van parket en is in een algemene goede staat.
Er is eveneens een kelderberging inclusief. Recent werd oa de gem. CV-installatie vernieuwd.
Ideaal voor starters of als investering voor verhuur.
Optioneel is er ook nog een autostaanplaats aan te kopen in zelfde gebouw.
Voor meer info en/of een bezoek ter plaatse contacteer het kantoor.
Indeling als volgt: inkomhal, lichtrijke en ruime ZW-gerichte leefruimte, deels vernieuwde badkamer, een ingerichte keuken met alle comfort.
Het appartement is volledig voorzien van parket en is in een algemene goede staat.
Er is eveneens een kelderberging inclusief. Recent werd oa de gem. CV-installatie vernieuwd.
Ideaal voor starters of als investering voor verhuur.
Optioneel is er ook nog een autostaanplaats aan te kopen in zelfde gebouw.
Voor meer info en/of een bezoek ter plaatse contacteer het kantoor.
Energie
![]() |
- EPC Certificaat: UC3784786
- Energieverbruik: 314 kWh/m²/jaar
- Verwarming: Gas
- Beglazing: Standaard dubbel
Extra budget nodig voor je renovatie?
De overheid helpt je dit pand energetisch te renoveren! Hieronder zie je het premiebedrag dat je mogelijks van de overheid krijgt.
Het huidige EPC-label is:

Op de kaart

Financieel
| Prijs | |
|---|---|
| Kadastraal inkomen (niet geïndexeerd) | € 763 |
Berekening kosten
Je aankoopkosten? Die heb je snel berekent via de knop hieronder.
Bijkomende info
Gebouw
| Bouwjaar | 1966 |
|---|---|
| Staat | Goed onderhouden |
| Bewoonbaar (m²) | 50 |
| Verdieping | 0 |
| Gevelbreedte | 5 |
| Badkamers | 1 |
| Slaapkamers | 1 |
| Parkeerplaatsen | 1 |
| Toiletten | 1 |
Faciliteiten
| Keuken uitrusting | Goed uitgerust |
|---|---|
| Beglazing | Standaard dubbel |
| Luiken | Ja |
| Brandstof primaire verwarming | Gas |
| Septische tank | Nee |
Perceel
| Overstromingsgevoelig | Geen |
|---|---|
| P-score | A |
| G-score | A |
| Totale oppervlakte (m²) | 500 |
Vergunning
| Verkavelingsvergunning | Geen beschikbaar |
|---|
Uitrusting
| Investeringspand | Nee |
|---|---|
| Parking | Ja |
| Garage | Nee |
| Opslagruimte | Ja |
| Tuin | Nee |
| Lift | Nee |
| Rioolaansluiting | Nee |
| Gasaansluiting | Nee |
| Wateraansluiting | Nee |
| Elektriciteitsaansluiting | Nee |
| Internetaansluiting | Nee |
| Telefoonaansluiting | Nee |
| Zonnepanelen | Nee |
| Zonneboiler | Nee |
| Alarm | Nee |
| Zwembad | Nee |
| Videofoon | Ja |
| Grondwaterput | Nee |
Appartementsblok
| Lift | Nee |
|---|---|
| Intercom | Ja |
Een pand van
Vastgoed Poppe
VASTGOED POPPE
Al jaren een gekend vastgoedkantoor in het Gentse met specialisatie in residentiëel als uitzonderlijk vastgoed.
Voor elk dossier bieden wij maatwerk tot grote tevredenheid van ons cliënteel.
Uw waardering is de beste reclame.
Bij VASTGOED POPPE steeds de garantie voor een totaalservice:
Alle expertises onder 1 dak.
- schattingen en schade-expertises
- energieprestatiecertificaat (EPC)
- asbestattest
Voor meer info contacteer het kantoor.
spir461
Leer meer over vastgoed
24 November 2025
Uitgezocht voor jouw gemeente: Hoeveel stijgt de waarde van je woning door een renovatie?
22 October 2025
Hoeveel kan ik lenen om een huis te kopen?
11 June 2025
Huis kopen met bouwovertreding? Dit moet je weten
11 May 2025


