Nieuw 
Prachtige penthouse met 2 terrassen in kleinschalige en kwalitatieve ontwikkeling
 € 695.000  
Een pand van Carlo Eggermont
Overzicht
- 156 m² bewoonbaar
 - 171 m² grond
 - 3 Slaapkamer(s)
 - 1 Badkamer(s)
 - 2 Toilet(ten)
 - 1 Tuin
 
Beschrijving
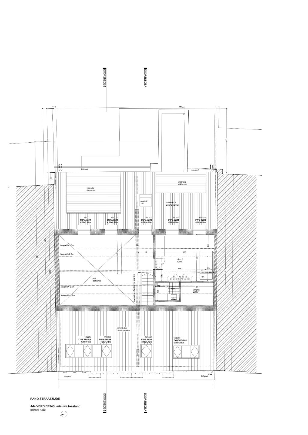
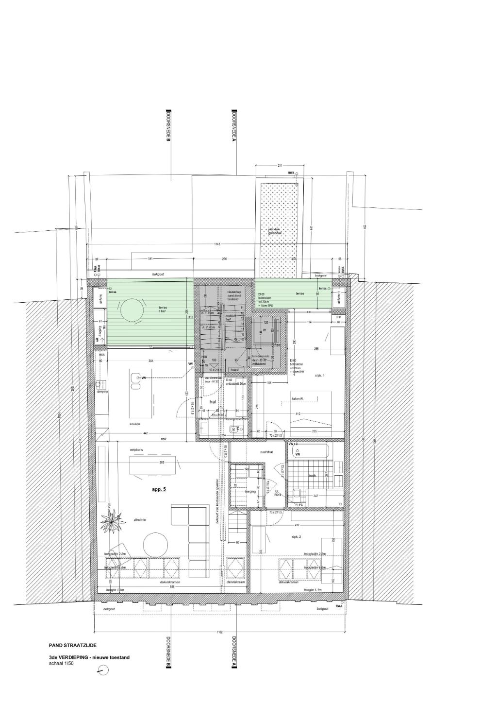
Prachtige penthouse met 2 terrassen in kleinschalige en kwalitatieve ontwikkeling van 5 ruime luxeappartementen en 2 ruime tuinwoningen.
Deze entiteit met een bruto vloeroppervlakte van 156m2 omvat de gehele bovenste verdieping en is bereikbaar met de trap en de lift. Het is een exclusief en lichtrijk dakappartement met 3 slaapkamers en bijzonder aangename ruimtelijkheden.
De entiteiten onderscheiden zich door hun volume, bijzonder plafondhoogtes, authentieke elementen en buitenruimtes. Zorgeloos en stijlvol wonen op wandelafstand van het Gentse Zuid en de Visserij.
Een reconversie van een indrukwekkend neoclassicistisch herenhuis naar karaktervolle woningen met alle hedendaags comfort op vlak van esthetiek en isolatie. De residentie beschikt ook over een gemeenschappelijke tuin (224m2) en ruime privatieve (fiets)bergingen aanwezig
Een werkelijk uniek aanbod door zijn ligging, volumes en privatief karakter.
(Verkoop onder registratierechten, géén BTW. Kosten aandeel opmeting en basisakte ten laste van de koper, beelden zijn indicatief)
Deze entiteit met een bruto vloeroppervlakte van 156m2 omvat de gehele bovenste verdieping en is bereikbaar met de trap en de lift. Het is een exclusief en lichtrijk dakappartement met 3 slaapkamers en bijzonder aangename ruimtelijkheden.
De entiteiten onderscheiden zich door hun volume, bijzonder plafondhoogtes, authentieke elementen en buitenruimtes. Zorgeloos en stijlvol wonen op wandelafstand van het Gentse Zuid en de Visserij.
Een reconversie van een indrukwekkend neoclassicistisch herenhuis naar karaktervolle woningen met alle hedendaags comfort op vlak van esthetiek en isolatie. De residentie beschikt ook over een gemeenschappelijke tuin (224m2) en ruime privatieve (fiets)bergingen aanwezig
Een werkelijk uniek aanbod door zijn ligging, volumes en privatief karakter.
(Verkoop onder registratierechten, géén BTW. Kosten aandeel opmeting en basisakte ten laste van de koper, beelden zijn indicatief)
Energie
- E-peil: E0
 - Beglazing: Standaard dubbel
 
Op de kaart

Financieel
| Prijs | 
|---|
Berekening kosten
Je aankoopkosten? Die heb je snel berekent via de knop hieronder.
Bijkomende info
Gebouw
| Renovatie jaar | 2024 | 
|---|---|
| Staat | Nieuw | 
| Bouwcertificaat | Nee | 
| Bewoonbaar (m²) | 156 | 
| Verdieping | 4 | 
| Badkamers | 1 | 
| Slaapkamers | 3 | 
| Verdiepingen | 4 | 
| Garages | 0 | 
| Parkeerplaatsen | 0 | 
| Toiletten | 2 | 
Faciliteiten
| Beglazing | Standaard dubbel | 
|---|---|
| Septische tank | Nee | 
Perceel
| Totale oppervlakte (m²) | 171 | 
|---|---|
| Bebouwde oppervlakte (m²) | 0 | 
| Tuin oppervlakte (m²) | 0 | 
| Oppervlakte terras (m²) | 15 | 
Vergunning
| Verkavelingsvergunning | Geen beschikbaar | 
|---|
Uitrusting
| Investeringspand | Nee | 
|---|---|
| Parking | Nee | 
| Garage | Nee | 
| Tuin | Ja | 
| Terras | Ja | 
| Lift | Ja | 
| Rioolaansluiting | Ja | 
| Gasaansluiting | Nee | 
| Wateraansluiting | Ja | 
| Elektriciteitsaansluiting | Ja | 
| Internetaansluiting | Ja | 
| Telefoonaansluiting | Ja | 
| Zonnepanelen | Nee | 
| Zonneboiler | Nee | 
| Alarm | Nee | 
| Videofoon | Ja | 
| Grondwaterput | Nee | 
Appartementsblok
| Aantal verdiepingen | 4 | 
|---|---|
| Lift | Ja | 
| Intercom | Nee | 
Een pand van
Carlo Eggermont
 ATYPISCH - KARAKTER - PERSOONLIJKE AANPAK 
 De huizenmarkt is niet zomaar een spectrum van daken. En uw woning is liefst niet zomaar een dak. Twintig jaar later weerspiegelt uw huis bij voorkeur nog steeds uw smaak.
Tegelijk moet uw thuis een anker zijn. Vandaag neemt onze ratio net iets vaker de bovenhand en wil een huis ook een goede investering zijn.
Die verwachting vergt een gepersonaliseerde benadering. En net die op maat gesneden aanpak is Carlo Eggermont’s signatuur. Hij streeft naar een bureau waar u zich thuisvoelt. Of tenminste begrepen.
Door op afspraak te werken en tijd te maken voor de klant, wil Carlo Eggermont de wensen van elke klant tot in de puntjes kennen zodat hij enkel geschikte woningen aan de klant voorstelt.
Bij voorkeur op afspraak. 
 Kasteellaan 162 
Leer meer over vastgoed
 Nieuw 
 22 October 2025 
Hoeveel kan ik lenen om een huis te kopen?
 11 June 2025 
Huis kopen met bouwovertreding? Dit moet je weten
 11 May 2025 
Renoveren? Vraag je Mijn VerbouwPremie aan
 22 April 2025