Eénslaapkamerappartement nabij de coupure
€ 175.000
Een pand van CENTURY 21 ATG & Vast Goed
Jouw zoektocht
Overzicht
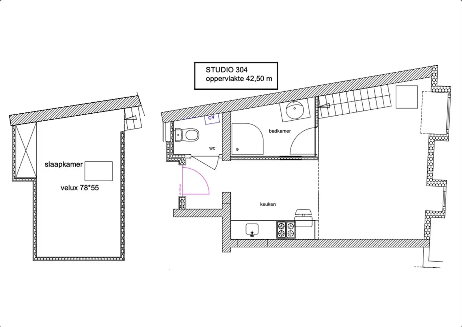
- 42.5 m² bewoonbaar
- 1 Slaapkamer(s)
- 1 Badkamer(s)
- 1 Toilet(ten)
Beschrijving
Op een uitstekende ligging vlakbij de Coupure en tussen Ekkergem en de Brugse Poort, op wandelafstand van het centrum en openbaar vervoer, bevindt zich dit éénslaapkamerappartement met een bewoonbare oppervlakte van 42,5 m².
Het gebouw werd in 2011 grondig gerenoveerd en vernieuwd.
Indeling en troeven:
* Aparte badkamer
* Afzonderlijk toilet
* Slaapkamer bereikbaar via een trap (speelse en functionele indeling)
Extra voorzieningen:
* Gemeenschappelijke fietsenstalling in de kelder
* Private berging met toe- en afvoer voor het plaatsen van een wasmachine
Financieel:
* Momenteel verhuurd aan €690/maand
* Ideaal als investering met onmiddellijk rendement, eigen woonst of studerende kinderen
Het appartement kan mogelijks een grondige schilderbeurt gebruiken om opnieuw in topconditie te worden gebracht.
Deze eigendom biedt een mooie investeringsopportuniteit en is eveneens geschikt als eerste aankoop.
Zorg dat je erbij bent op ons eerste bezoekmoment op maandag 27 april!
Interesse? Neem vandaag nog contact op voor meer informatie of een bezoek ter plaatse.
Energie
![]() |
- EPC Certificaat: 20210310-0000713380-RES2
- Energieverbruik: 152 kWh/m²/jaar
- E-peil: E0
- Verwarming: Gas
- Beglazing: Standaard dubbel
Op de kaart

Financieel
| Prijs | |
|---|---|
| Kadastraal inkomen (niet geïndexeerd) | € 331 |
| Kadastraal inkomen (geïndexeerd) | € 0 |
Berekening kosten
Je aankoopkosten? Die heb je snel berekend via de knop hieronder.
Bijkomende info
Gebouw
| Bouwjaar | 1971 |
|---|---|
| Staat | Op te frissen |
| Bouwcertificaat | Nee |
| Bewoonbaar (m²) | 42.5 |
| Verdieping | 3 |
| Badkamers | 1 |
| Slaapkamers | 1 |
| Verdiepingen | 3 |
| Garages | 0 |
| Parkeerplaatsen | 0 |
| Doucheruimtes | 0 |
| Toiletten | 1 |
Faciliteiten
| Materiaal ramenomlijstingen | PVC |
|---|---|
| Beglazing | Standaard dubbel |
| Brandstof primaire verwarming | Gas |
| Elektrisch keuringsattest | Nee |
Perceel
| Overstromingsgevoelig | Geen |
|---|---|
| P-score | A |
| G-score | A |
| Voorkeurrecht | Ja |
| Bebouwde oppervlakte (m²) | 0 |
| Tuin oppervlakte (m²) | 0 |
| Oppervlakte terras (m²) | 0 |
Vergunning
| Vergunning | Aanvraag ingediend |
|---|---|
| Verkavelingsvergunning | Aanvraag ingediend |
Uitrusting
| Investeringspand | Nee |
|---|---|
| Geschikt voor praktijk | Nee |
| Parking | Nee |
| Garage | Nee |
| Thuiskantoor | Nee |
| Kelder | Ja |
| Zolder | Nee |
| Tuin | Nee |
| Terras | Nee |
| Lift | Nee |
| Rioolaansluiting | Nee |
| Gasaansluiting | Nee |
| Wateraansluiting | Nee |
| Elektriciteitsaansluiting | Nee |
| TV aansluiting | Nee |
| Internetaansluiting | Nee |
| Telefoonaansluiting | Nee |
Appartementsblok
| Aantal verdiepingen | 3 |
|---|---|
| Lift | Nee |
