Nieuw
Charmant appt met karakter en comfort op toplocatie in Gent
€ 339.000
Een pand van Casteels vastgoed
Overzicht
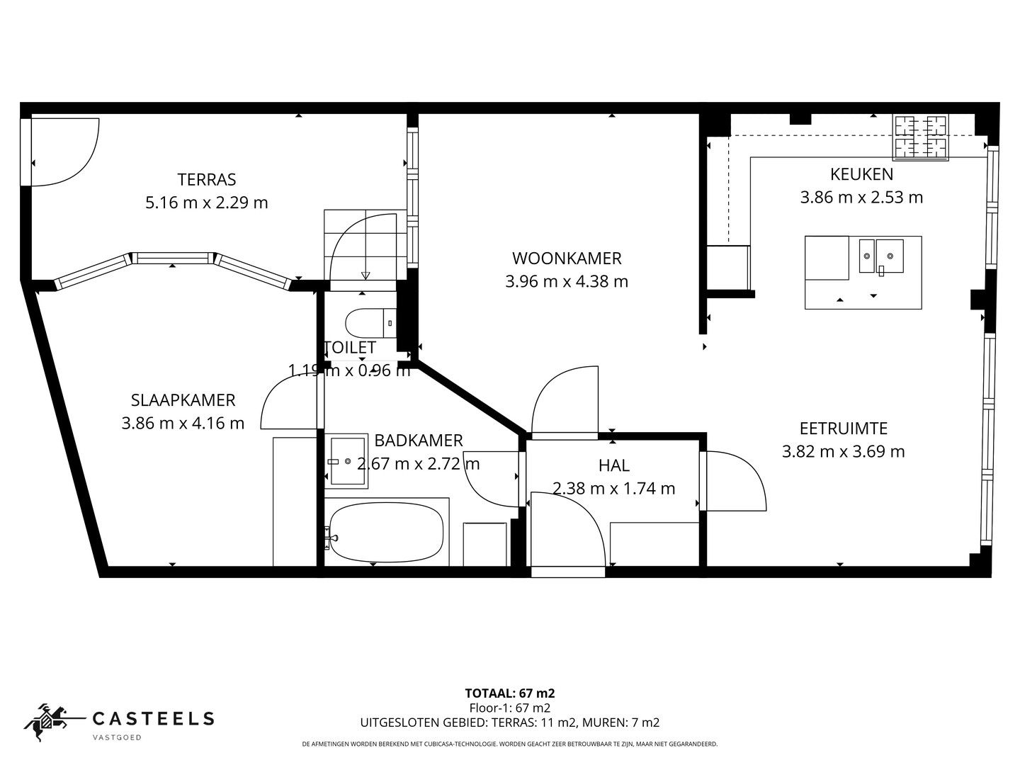
- 85 m² bewoonbaar
- 97 m² grond
- 1 Slaapkamer(s)
- 1 Badkamer(s)
- 1 Toilet(ten)
Beschrijving
Contacteer Camille op 09 396 10 20 of via camille@casteelsvastgoed.be
Dossierstukken en plannen steeds beschikbaar op onze website
__
In een rustige straat in het hart van Gent, op wandelafstand van station Gent-Sint-Pieters, bevindt zich dit karaktervolle appartement in de Sportstraat 350. De woning combineert authentieke elementen met hedendaags wooncomfort, en is ideaal voor wie centraal wil wonen zonder in te boeten op ruimte en rust. Dankzij de mooie lichtinval, hoge plafonds en doordachte indeling voelt het appartement meteen open en aangenaam aan. Dit appartement maakt deel uit van een kleinschalig gebouw uit 1930, wat zich vertaalt in stevige structuur en charmevolle gevels.
Tegelijk is het volledig instapklaar, met onder andere een recente condenserende gasketel (Vaillant, 2023), een nieuwe boiler en conforme elektriciteit.
Er is een gezellige terraskoer aan de achterzijde, een privatieve kelderruimte en een gemeenschappelijke inkomhal met plaats voor fietsen. Bovendien zijn er geen bijkomende syndicuskosten voor het gebruik van de lift, wat handig is natuurlijk.
De ligging is een absolute troef: op slechts 800 meter van het station Gent-Sint-Pieters, met alle dagelijkse voorzieningen in de directe omgeving. Openbaar vervoer, winkels, gezellige horeca en groenzones zijn allemaal makkelijk bereikbaar. Ideaal voor wie houdt van stedelijk wonen met alles binnen handbereik.
±85 m² bewoonbare oppervlakte
1 ruime slaapkamer
Badkamer met ligbad
Nieuwe gasketel en boiler (2023)
Elektriciteit conform
Privatieve kelder + fietsenstalling
Terraskoer aan de achterzijde
Geen bijkomende kosten voor liftgebruik
Op wandelafstand van station Gent-Sint-Pieters
Stedenbouw in aanvraag
Dossierstukken en plannen steeds beschikbaar op onze website
__
In een rustige straat in het hart van Gent, op wandelafstand van station Gent-Sint-Pieters, bevindt zich dit karaktervolle appartement in de Sportstraat 350. De woning combineert authentieke elementen met hedendaags wooncomfort, en is ideaal voor wie centraal wil wonen zonder in te boeten op ruimte en rust. Dankzij de mooie lichtinval, hoge plafonds en doordachte indeling voelt het appartement meteen open en aangenaam aan. Dit appartement maakt deel uit van een kleinschalig gebouw uit 1930, wat zich vertaalt in stevige structuur en charmevolle gevels.
Tegelijk is het volledig instapklaar, met onder andere een recente condenserende gasketel (Vaillant, 2023), een nieuwe boiler en conforme elektriciteit.
Er is een gezellige terraskoer aan de achterzijde, een privatieve kelderruimte en een gemeenschappelijke inkomhal met plaats voor fietsen. Bovendien zijn er geen bijkomende syndicuskosten voor het gebruik van de lift, wat handig is natuurlijk.
De ligging is een absolute troef: op slechts 800 meter van het station Gent-Sint-Pieters, met alle dagelijkse voorzieningen in de directe omgeving. Openbaar vervoer, winkels, gezellige horeca en groenzones zijn allemaal makkelijk bereikbaar. Ideaal voor wie houdt van stedelijk wonen met alles binnen handbereik.
±85 m² bewoonbare oppervlakte
1 ruime slaapkamer
Badkamer met ligbad
Nieuwe gasketel en boiler (2023)
Elektriciteit conform
Privatieve kelder + fietsenstalling
Terraskoer aan de achterzijde
Geen bijkomende kosten voor liftgebruik
Op wandelafstand van station Gent-Sint-Pieters
Stedenbouw in aanvraag
In een rustige straat in het hart van Gent, op wandelafstand van station Gent-Sint-Pieters, bevindt zich dit karaktervolle, Art-Deco appartement in de Sportstraat 350.
De woning combineert authentieke elementen met hedendaags wooncomfort, en is ideaal voor wie centraal wil wonen zonder in te boeten op ruimte en rust. Dankzij de mooie lichtinval, hoge plafonds en doordachte indeling voelt het appartement meteen open en aangenaam aan.
Karaktervol wonen met moderne afwerking
Dit appartement maakt deel uit van een kleinschalig gebouw uit 1930, wat zich vertaalt in stevige structuur en charmevolle gevels.
Tegelijk is het volledig instapklaar, met onder andere een recente condenserende gasketel (Vaillant, 2023), een nieuwe boiler en conforme elektriciteit.
Er is een gezellige terraskoer aan de achterzijde, een privatieve kelderruimte en een gemeenschappelijke inkomhal met plaats voor fietsen. Bovendien zijn er geen bijkomende syndicuskosten voor het gebruik van de lift, wat handig is natuurlijk.
Dicht bij alles wat telt
De ligging is een absolute troef: op slechts 800 meter van het station Gent-Sint-Pieters, met alle dagelijkse voorzieningen in de directe omgeving. Openbaar vervoer, winkels, gezellige horeca en groenzones zijn allemaal makkelijk bereikbaar. Ideaal voor wie houdt van stedelijk wonen met alles binnen handbereik.
Kernpunten in één oogopslag
Kortom, een instapklaar, charmant en uiterst goed gelegen appartement waar karakter en comfort hand in hand gaan. Ideaal voor wie in Gent centrum wil wonen met alle troeven van de stad binnen bereik. Contacteer ons gerust met uw vragen of om een bezoek in te plannen.
Stedenbouw in aanvraag
De woning combineert authentieke elementen met hedendaags wooncomfort, en is ideaal voor wie centraal wil wonen zonder in te boeten op ruimte en rust. Dankzij de mooie lichtinval, hoge plafonds en doordachte indeling voelt het appartement meteen open en aangenaam aan.
Karaktervol wonen met moderne afwerking
Dit appartement maakt deel uit van een kleinschalig gebouw uit 1930, wat zich vertaalt in stevige structuur en charmevolle gevels.
Tegelijk is het volledig instapklaar, met onder andere een recente condenserende gasketel (Vaillant, 2023), een nieuwe boiler en conforme elektriciteit.
Er is een gezellige terraskoer aan de achterzijde, een privatieve kelderruimte en een gemeenschappelijke inkomhal met plaats voor fietsen. Bovendien zijn er geen bijkomende syndicuskosten voor het gebruik van de lift, wat handig is natuurlijk.
Dicht bij alles wat telt
De ligging is een absolute troef: op slechts 800 meter van het station Gent-Sint-Pieters, met alle dagelijkse voorzieningen in de directe omgeving. Openbaar vervoer, winkels, gezellige horeca en groenzones zijn allemaal makkelijk bereikbaar. Ideaal voor wie houdt van stedelijk wonen met alles binnen handbereik.
Kernpunten in één oogopslag
- ±85 m² bewoonbare oppervlakte
- 1 ruime slaapkamer
- Badkamer met ligbad
- Nieuwe gasketel en boiler (2023)
- Elektriciteit conform
- Privatieve kelder + fietsenstalling
- Terraskoer aan de achterzijde
- Geen bijkomende kosten voor liftgebruik
- Op wandelafstand van station Gent-Sint-Pieters
- Volledig instapklaar
Kortom, een instapklaar, charmant en uiterst goed gelegen appartement waar karakter en comfort hand in hand gaan. Ideaal voor wie in Gent centrum wil wonen met alle troeven van de stad binnen bereik. Contacteer ons gerust met uw vragen of om een bezoek in te plannen.
Stedenbouw in aanvraag
Energie
![]() |
- EPC Certificaat: 20251117-0003727770-RES-1
- Energieverbruik: 320 kWh/m²/jaar
- E-peil: E0
- Verwarming: Gas
- Beglazing: Standaard dubbel
Extra budget nodig voor je renovatie?
De overheid helpt je dit pand energetisch te renoveren! Hieronder zie je het premiebedrag dat je mogelijks van de overheid krijgt.
Het huidige EPC-label is:

Op de kaart

Financieel
| Prijs | |
|---|---|
| Kadastraal inkomen (niet geïndexeerd) | € 505 |
Berekening kosten
Je aankoopkosten? Die heb je snel berekent via de knop hieronder.
Bijkomende info
Gebouw
| Bouwjaar | 1930 |
|---|---|
| Bewoonbaar (m²) | 85 |
| Verdieping | 0 |
| Badkamers | 1 |
| Slaapkamers | 1 |
| Verdiepingen | 3 |
| Garages | 0 |
| Parkeerplaatsen | 0 |
| Toiletten | 1 |
Faciliteiten
| Beglazing | Standaard dubbel |
|---|---|
| Brandstof primaire verwarming | Gas |
| Septische tank | Nee |
Perceel
| Overstromingsgevoelig | Geen |
|---|---|
| P-score | A |
| G-score | A |
| Totale oppervlakte (m²) | 97 |
| Bebouwde oppervlakte (m²) | 0 |
| Oppervlakte terras (m²) | 12 |
| Oriëntatie tuin | Noordwest |
Vergunning
| Verkavelingsvergunning | Geen beschikbaar |
|---|
Uitrusting
| Investeringspand | Nee |
|---|---|
| Parking | Nee |
| Garage | Nee |
| Terras | Ja |
| Lift | Nee |
| Rioolaansluiting | Ja |
| Gasaansluiting | Ja |
| Wateraansluiting | Ja |
| Elektriciteitsaansluiting | Ja |
| Internetaansluiting | Ja |
| Telefoonaansluiting | Ja |
| Zonnepanelen | Nee |
| Zonneboiler | Nee |
| Alarm | Nee |
| Videofoon | Nee |
| Grondwaterput | Nee |
Appartementsblok
| Aantal verdiepingen | 3 |
|---|---|
| Lift | Nee |
| Intercom | Nee |
Een pand van
Casteels vastgoed
Vastgoedmakelaardij met een verfrissende aanpak.
Authentiek, ongedwongen en met een communicatie van mens tot mens. Als moderne vastgoedmakelaar begeleiden we jou zo naar een vlotte aankoop of verkoop van je woning. Door het verkoopproces zoveel mogelijk te optimaliseren, profiteer jij als koper of verkoper van een uitstekende dienstverlening aan een scherpe prijs. Casteels vastgoed, vastgoed dat raakt.
CK25_009_Sportstraat350_9000
Leer meer over vastgoed
22 October 2025
Hoeveel kan ik lenen om een huis te kopen?
11 June 2025
Huis kopen met bouwovertreding? Dit moet je weten
11 May 2025
Renoveren? Vraag je Mijn VerbouwPremie aan
22 April 2025


