Handelsruimte te koop op unieke locatie
€ 499.000
Een pand van Oranjeberg Vastgoed
Favoriet
Jouw zoektocht
Jouw scoretabel voor dit pand
Aan het laden...
Jouw geplande bezichtigingen
Aan het laden...
Overzicht
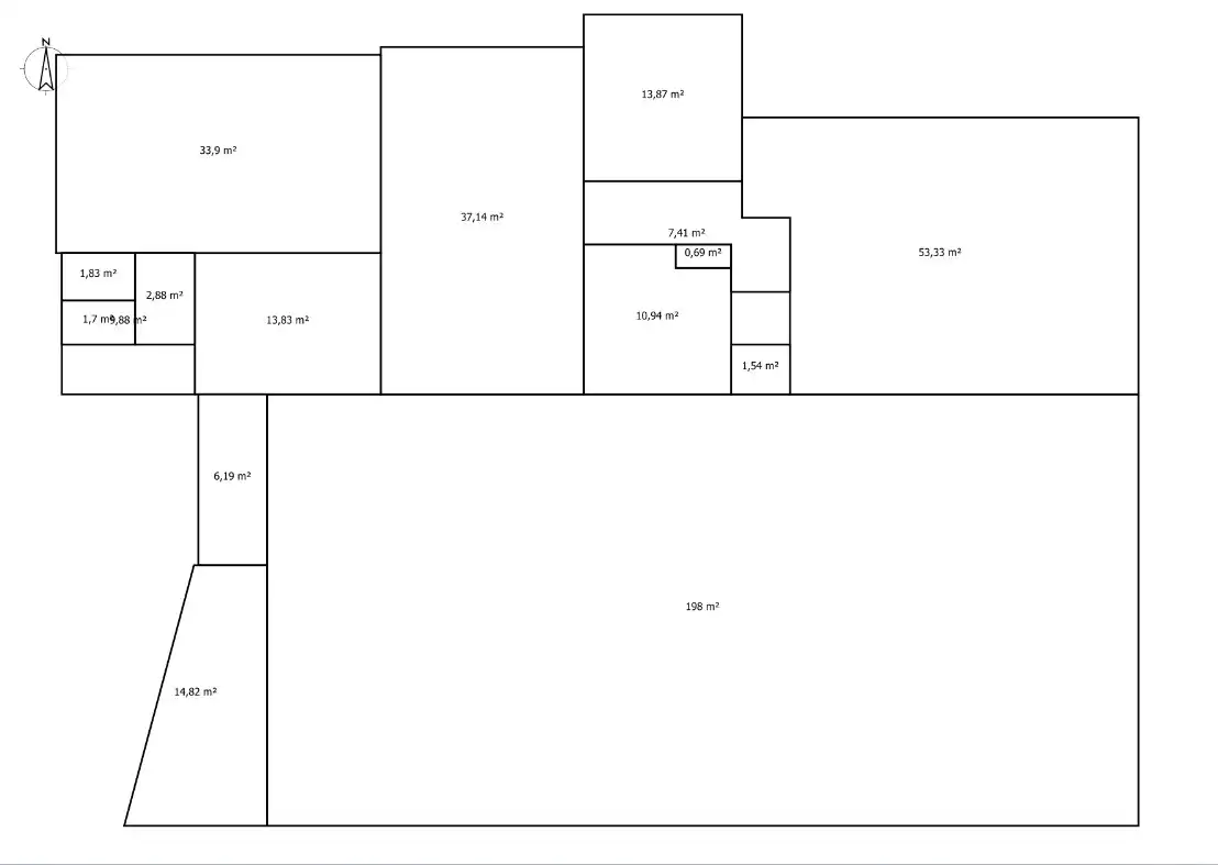
- 399 m² grond
Beschrijving
Dit ruime pand geniet van een uitstekende visibiliteit, wat het de ideale locatie maakt voor ondernemers die streven naar een sterke aanwezigheid in een levendige omgeving. De strategische ligging en de ca. 25 m etalage zorgen voor een hoge verkeersstroom en maximale exposure voor uw bedrijf. Het pand is gelegen op het kruispunt Rooigemlaan-Drongensesteenweg. Met een grote oppervlakte van 399 m² biedt het pand een zee aan mogelijkheden voor diverse bedrijfsactiviteiten. Voor info en bezoek: info@oranjeberg.be - www.oranjeberg.be - Top in vastgoed!
Energie
- E-peil: E0
- Beglazing: Onbekend
Op de kaart

Financieel
| Prijs |
|---|
Berekening kosten
Je aankoopkosten? Die heb je snel berekend via de knop hieronder.
Bijkomende info
Gebouw
| Staat | Op te frissen |
|---|---|
| Badkamers | 0 |
| Slaapkamers | 0 |
| Verdiepingen | 0 |
| Garages | 0 |
| Parkeerplaatsen | 0 |
| Toiletten | 0 |
Faciliteiten
| Septische tank | Nee |
|---|
Perceel
| Totale oppervlakte (m²) | 399 |
|---|---|
| Bebouwde oppervlakte (m²) | 0 |
Vergunning
| Verkavelingsvergunning | Geen beschikbaar |
|---|
Uitrusting
| Investeringspand | Nee |
|---|---|
| Parking | Nee |
| Garage | Nee |
| Thuiskantoor | Ja |
| Lift | Nee |
| Rioolaansluiting | Nee |
| Gasaansluiting | Nee |
| Wateraansluiting | Nee |
| Elektriciteitsaansluiting | Nee |
| Internetaansluiting | Nee |
| Telefoonaansluiting | Nee |
| Zonnepanelen | Nee |
| Zonneboiler | Nee |
| Alarm | Nee |
| Videofoon | Nee |
| Grondwaterput | Nee |
Appartementsblok
| Lift | Nee |
|---|---|
| Intercom | Nee |
Een pand van
Oranjeberg Vastgoed
Oranjeberg - Top in Vastgoed
Uitzonderlijke ervaring gekoppeld aan grote deskundigheid en persoonlijke service: makelaarskantoor Oranjeberg is een echt huis van vertrouwen!
Rooigemlaan 30 (TK 2026)
Leer meer over vastgoed
04 January 2026
Zoek je een kantoor, een magazijn of… iets ertussenin? Bedrijfsvastgoed uitgelegd
05 November 2024
Bedrijfsvastgoed in transitie: ontdek de toekomst van werkplekken
16 October 2024
Opbrengsteigendom: een slim pad naar passief inkomen en vermogensgroei
09 September 2024