Gent Zuid: Ideaal voor studenten | Garage + Tuin | EPC C
€ 395.000
Belgradostraat 57 - 9000 Gent
Een pand van Altro Vastgoed Gent
Jouw zoektocht
Overzicht
- 119 m² bewoonbaar
- 68 m² grond
- 2 Slaapkamer(s)
- 1 Badkamer(s)
- 1 Tuin
- 1 Garage(s)
Overstromingsgevaar gebouw
Overstromingsgevaar perceel
Beschrijving
Altro vastgoed verkoopt : Eerste bezoekdag vrijdag 24 April - enkel op afspraak !
Ontdek deze unieke kans in het hart van Gent Zuid. Een instapklare belle-étage die alles biedt wat een studerend kind of starter nodig heeft: ruimte, comfort, een eigen buitenruimte en de zeldzame luxe van een inpandige garage.
Een zorgeloze investering op een toplocatie
Gelegen in een zijstraat van de as Brabantdam - Vlaanderenstraat, bevindt deze woning zich op een steenworp van de Gentse universiteiten, hogescholen en het bruisende stadsleven.
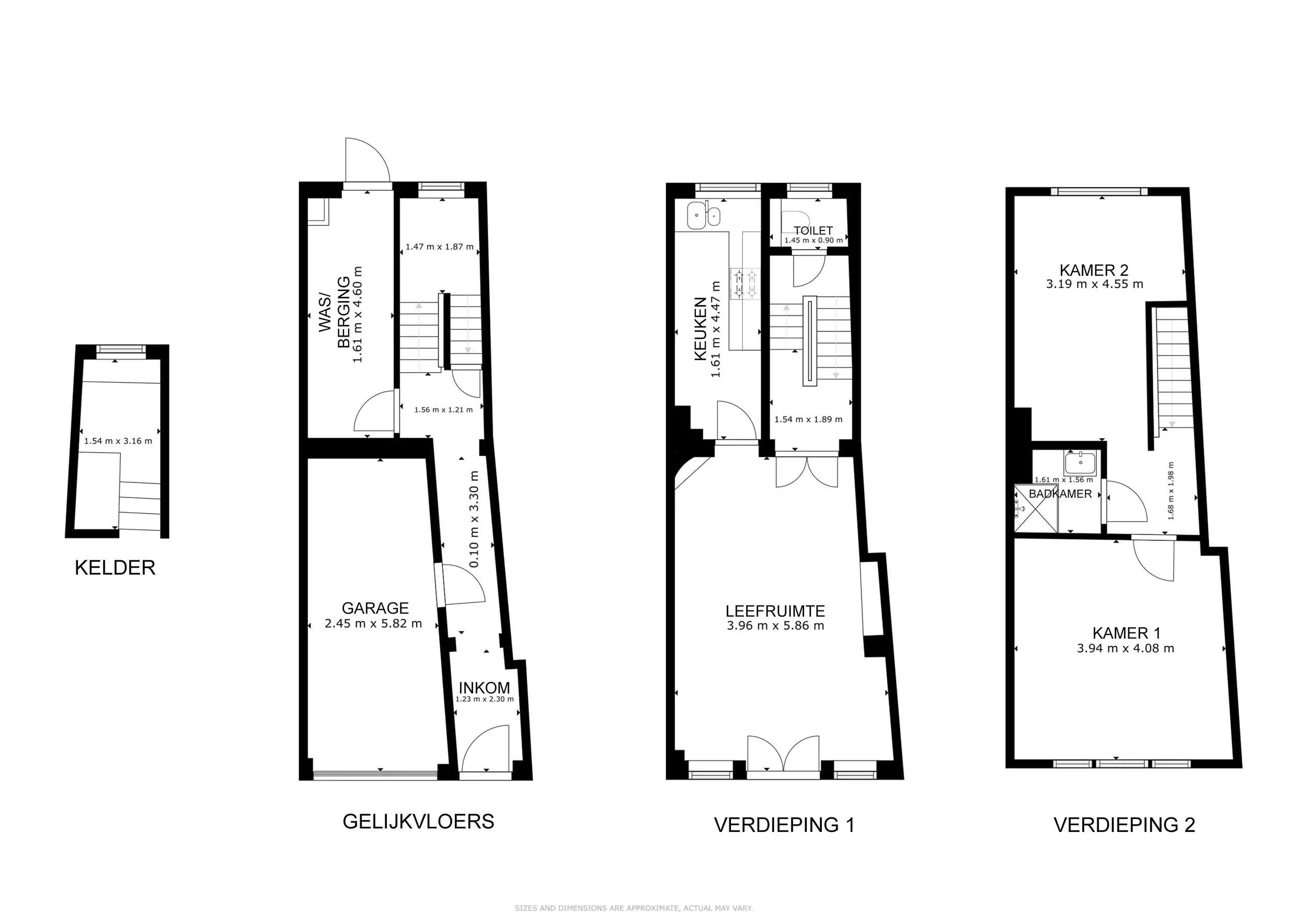
Indeling van de woning:
Gelijkvloers: ruime garage met automatische poort, praktische kelder voor extra opslag en toegang tot de stadstuin.
Eerste verdieping: Een lichtrijke leefruimte met grote raampartijen en een aansluitende, functionele keuken. De ideale plek om rustig te studeren of gasten te ontvangen.
Tweede verdieping: twee volwaardige, ruime slaapkamers en een verzorgde douchekamer.
Belangrijke kenmerken:
Type: Belle-étage
2 volwaardige slaapkamers
EPC: 283 kWh/(m² jaar) - Label C (Geen renovatieverplichting)
Elektriciteit: Conform
Extra: Garage + Stadstuin + Kelder
Neem vandaag nog contact op voor meer informatie of een bezoek ter plaatse.
📞 Contacteer Ellen : 0475.400.770 - ellen@altro-vastgoed.be
Altro Vastgoed verkoopt : Eerste bezoekdag vrijdag 24 april - enkel op afspraak !
Ontdek deze unieke kans in het hart van Gent Zuid. Een instapklare belle-étage die alles biedt wat een studerend kind of starter nodig heeft: ruimte, comfort, een eigen buitenruimte en de zeldzame luxe van een inpandige garage.
Een zorgeloze investering op een toplocatie
Gelegen in een zijstraat van de as Brabantdam - Vlaanderenstraat, bevindt deze woning zich op een steenworp van de Gentse universiteiten, hogescholen en het bruisende stadsleven.
Indeling van de woning:
Gelijkvloers: ruime garage met automatische poort, praktische kelder voor extra opslag en toegang tot de stadstuin.
Eerste verdieping: Een lichtrijke leefruimte met grote raampartijen en een aansluitende, functionele keuken. De ideale plek om rustig te studeren of gasten te ontvangen.
Tweede verdieping: twee volwaardige, ruime slaapkamers en een verzorgde douchekamer.
Belangrijke kenmerken:
Locatie: Zijstraat Brabantdam - Vlaanderenstraat, Gent Zuid
Type: Belle-étage
2 volwaardige slaapkamers
EPC: 283 kWh/(m² jaar) - Label C (Geen renovatieverplichting)
Elektriciteit: Conform
Extra: Garage + Stadstuin + Kelder
Interesse in een bezichtiging?
Neem vandaag nog contact op voor meer informatie of een bezoek ter plaatse.
📞 Contacteer Ellen : 0475.400.770 - ellen@altro-vastgoed.be
Energie
![]() |
- EPC Certificaat: 0003200120-RES-3
- Energieverbruik: 283 kWh/m²/jaar
- Verwarming: Gas
- Beglazing: Standaard dubbel
Downloads
- OVAM (pdf)
- Watertoets (pdf)
- ActaMaps (pdf)
- RVV (pdf)
- Stedenbouw (pdf)
- EPC (pdf)
- Elektrische keuring (pdf)
- Asbest inventaris (pdf)
Financieel
| Prijs | |
|---|---|
| Kadastraal inkomen (niet geïndexeerd) | € 505 |
Berekening kosten
Je aankoopkosten? Die heb je snel berekend via de knop hieronder.
Bijkomende info
Gebouw
| Bouwjaar | 1959 |
|---|---|
| Renovatie jaar | 2025 |
| Staat | Goed onderhouden |
| Is beschermd | Nee |
| Bewoonbaar (m²) | 119 |
| Verdieping | 0 |
| Gevels | 2 |
| Zolder | 0 |
| Kelder | 0 |
| Badkamers | 1 |
| Slaapkamers | 2 |
| Verdiepingen | 3 |
| Garages | 1 |
| Keukens | 0 |
| Leefruimtes | 0 |
| Kantoorruimtes | 0 |
| Parkeerplaatsen | 0 |
| Opslagruimtes | 0 |
| Toiletten | 0 |
Ruimtes
| Tuin | 22 m² |
|---|
Faciliteiten
| Beglazing | Standaard dubbel |
|---|---|
| Luiken | Nee |
| Primair verwarmingstype | Decentrale verwarming |
| Brandstof primaire verwarming | Gas |
| Brandstof type | Geen |
| Elektrisch keuringsattest | Ja |
| Septische tank | Nee |
Perceel
| Overstromingsgevoelig | Overstromingsgevoelig (vastgesteld) |
|---|---|
| P-score | D |
| G-score | D |
| Voorkeurrecht | Ja |
| Totale oppervlakte (m²) | 68 |
| Tuin oppervlakte (m²) | 22 |
| Oriëntatie tuin | Noord |
Vergunning
| Vergunning | Geen beschikbaar |
|---|---|
| Verkavelingsvergunning | Geen beschikbaar |
Uitrusting
| Parking | Nee |
|---|---|
| Garage | Ja |
| Kelder | Nee |
| Zolder | Nee |
| Opslagruimte | Nee |
| Tuin | Ja |
| Terras | Ja |
| Lift | Nee |
| Rioolaansluiting | Ja |
| Gasaansluiting | Ja |
| Wateraansluiting | Ja |
| Elektriciteitsaansluiting | Ja |
| Zonnepanelen | Nee |
| Zonneboiler | Nee |
| Thuisbatterij | Nee |
| Alarm | Nee |
| Zwembad | Nee |
| Sauna | Nee |
| Jacuzzi | Nee |
| Videofoon | Nee |
| Domotica | Nee |
| Regenwaterput | Nee |
| Ventilatie | Nee |
