Nieuw
Ruime eigendom met 326 m² woonruimte + 79 m² handel – Gent
€ 599.000
Een pand van Altro Vastgoed Gent
Overzicht
- 405 m² bewoonbaar
- 170 m² grond
- 7 Slaapkamer(s)
- 3 Badkamer(s)
- 4 Toilet(ten)
Beschrijving
Bent u op zoek naar een woning met veel ruimte én mogelijkheden?
Deze unieke eigendom in een levendige buurt vlak bij het centrum van Gent biedt u maar liefst 326 m² bruikbaar vloeroppervlak en
daarbovenop een handelsruimte van 79 m² met aparte ingang.
Troeven
Enorme bewoonbare oppervlakte, ideaal voor grote gezinnen, co-housing of wie wonen en werken wil combineren
Handelsruimte met winkelgedeelte, kitchenette, toilet en kelder
Ligging vlakbij centrum Gent, scholen, winkels, sportcentra, openbaar vervoer en belangrijke invalswegen
Veel potentieel om volledig naar eigen smaak te renoveren en in te richten
EPC = B = 157 kWh/(m2 jaar) woonhuis - asbestveilig
EPC = C = 319 kWh/(m2 jaar) handelsruimte - asbestveilig
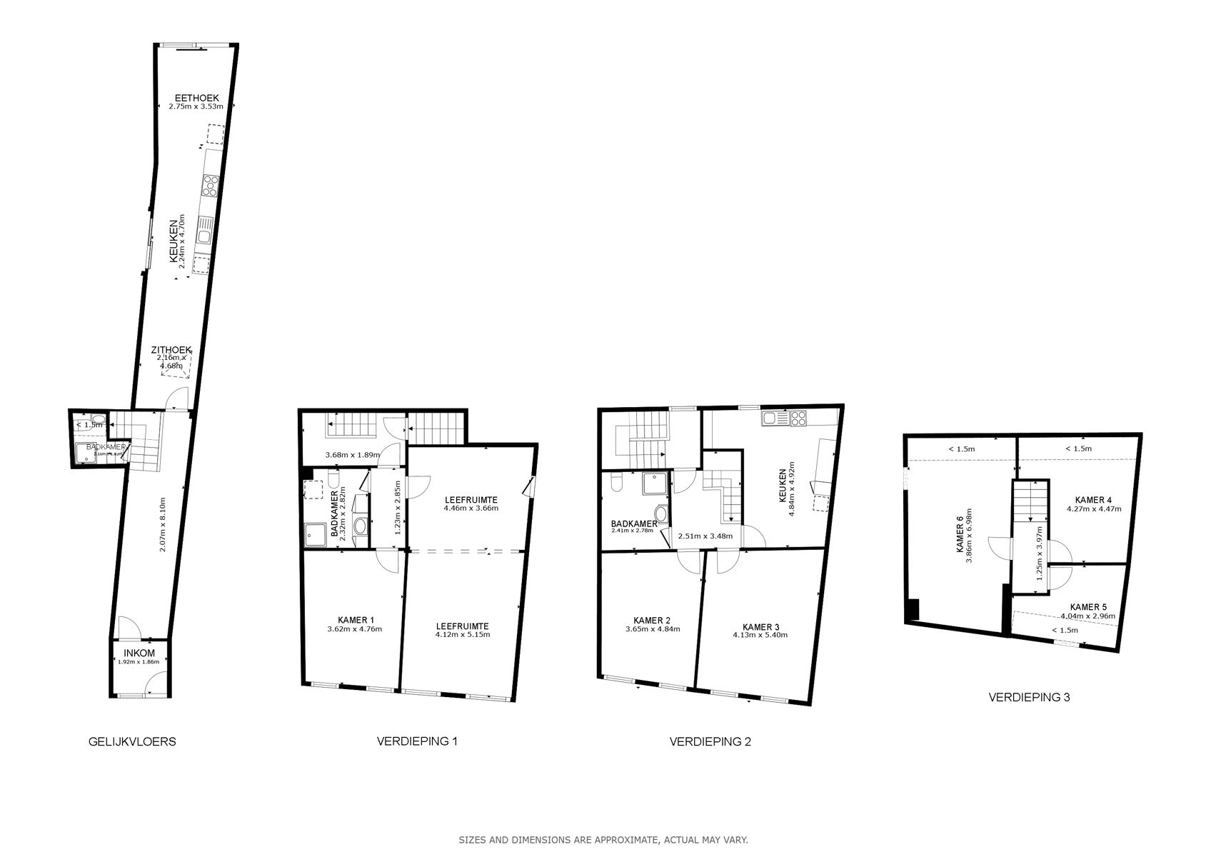
Indeling woning :
Gelijkvloers: inkomhal, volledig ingerichte leefkeuken met toegang tot koer, badkamer
Eerste verdieping: zeer ruime leefruimte, slaapkamer, badkamer
Tweede verdieping: 2 slaapkamers, keuken, badkamer
Zolderverdieping: 3 ruime kamers
Indeling handelsruimte :
Winkelgedeelte
Ruimte met kitchenette en toilet
Kelder
Deze eigendom is ideaal voor:
Combinatie wonen + werken: winkel, praktijkruimte, atelier of kantoor aan huis
Co-housing: makkelijk op te delen voor samenwonen met vrienden of familie
Meergezinswoning (mits vergunning): potentieel voor meerdere wooneenheden
Ruime gezinswoning: perfect voor grote of samengestelde gezinnen
Kangoeroewonen: voor meerdere generaties onder één dak
Investeringsproject: topligging voor verhuur of herontwikkeling
Kortom: een uitzonderlijke eigendom met zeeën van ruimte en eindeloze mogelijkheden, waar uw plannen – groot of klein – tot leven kunnen komen.
Voor meer inlichtingen of een bezoek, contacteer Ellen : 0475.400.770 - ellen@altro-vastgoed.be
Deze unieke eigendom in een levendige buurt vlak bij het centrum van Gent biedt u maar liefst 326 m² bruikbaar vloeroppervlak en
daarbovenop een handelsruimte van 79 m² met aparte ingang.
Troeven
Enorme bewoonbare oppervlakte, ideaal voor grote gezinnen, co-housing of wie wonen en werken wil combineren
Handelsruimte met winkelgedeelte, kitchenette, toilet en kelder
Ligging vlakbij centrum Gent, scholen, winkels, sportcentra, openbaar vervoer en belangrijke invalswegen
Veel potentieel om volledig naar eigen smaak te renoveren en in te richten
EPC = B = 157 kWh/(m2 jaar) woonhuis - asbestveilig
EPC = C = 319 kWh/(m2 jaar) handelsruimte - asbestveilig
Indeling woning :
Gelijkvloers: inkomhal, volledig ingerichte leefkeuken met toegang tot koer, badkamer
Eerste verdieping: zeer ruime leefruimte, slaapkamer, badkamer
Tweede verdieping: 2 slaapkamers, keuken, badkamer
Zolderverdieping: 3 ruime kamers
Indeling handelsruimte :
Winkelgedeelte
Ruimte met kitchenette en toilet
Kelder
Deze eigendom is ideaal voor:
Combinatie wonen + werken: winkel, praktijkruimte, atelier of kantoor aan huis
Co-housing: makkelijk op te delen voor samenwonen met vrienden of familie
Meergezinswoning (mits vergunning): potentieel voor meerdere wooneenheden
Ruime gezinswoning: perfect voor grote of samengestelde gezinnen
Kangoeroewonen: voor meerdere generaties onder één dak
Investeringsproject: topligging voor verhuur of herontwikkeling
Kortom: een uitzonderlijke eigendom met zeeën van ruimte en eindeloze mogelijkheden, waar uw plannen – groot of klein – tot leven kunnen komen.
Voor meer inlichtingen of een bezoek, contacteer Ellen : 0475.400.770 - ellen@altro-vastgoed.be
Bent u op zoek naar een woning met veel ruimte én mogelijkheden?
Deze unieke eigendom in een levendige buurt vlak bij het centrum van Gent biedt u maar liefst 326 m² bruikbaar vloeroppervlak en
daarbovenop een handelsruimte van 79 m² met aparte ingang.
Troeven
Enorme bewoonbare oppervlakte, ideaal voor grote gezinnen, co-housing of wie wonen en werken wil combineren
Handelsruimte met winkelgedeelte, kitchenette, toilet en kelder
Ligging vlakbij centrum Gent, scholen, winkels, sportcentra, openbaar vervoer en belangrijke invalswegen
Veel potentieel om volledig naar eigen smaak te renoveren en in te richten
EPC = B = 157 kWh/(m2 jaar) woonhuis - asbestveilig
EPC = C = 319 kWh/(m2 jaar) handelsruimte - asbestveilig
Indeling woning :
Gelijkvloers: inkomhal, volledig ingerichte leefkeuken met toegang tot koer, badkamer
Eerste verdieping: zeer ruime leefruimte, slaapkamer, badkamer
Tweede verdieping: 2 slaapkamers, keuken, badkamer
Zolderverdieping: 3 ruime kamers
Indeling handelsruimte :
Winkelgedeelte
Ruimte met kitchenette en toilet
Kelder
Deze eigendom is ideaal voor:
Combinatie wonen + werken: winkel, praktijkruimte, atelier of kantoor aan huis
Co-housing: makkelijk op te delen voor samenwonen met vrienden of familie
Meergezinswoning (mits vergunning): potentieel voor meerdere wooneenheden
Ruime gezinswoning: perfect voor grote of samengestelde gezinnen
Kangoeroewonen: voor meerdere generaties onder één dak
Investeringsproject: topligging voor verhuur of herontwikkeling
Kortom: een uitzonderlijke eigendom met zeeën van ruimte en eindeloze mogelijkheden, waar uw plannen – groot of klein – tot leven kunnen komen.
Voor meer inlichtingen of een bezoek, contacteer Ellen : 0475.400.770 - ellen@altro-vastgoed.be
Deze unieke eigendom in een levendige buurt vlak bij het centrum van Gent biedt u maar liefst 326 m² bruikbaar vloeroppervlak en
daarbovenop een handelsruimte van 79 m² met aparte ingang.
Troeven
Enorme bewoonbare oppervlakte, ideaal voor grote gezinnen, co-housing of wie wonen en werken wil combineren
Handelsruimte met winkelgedeelte, kitchenette, toilet en kelder
Ligging vlakbij centrum Gent, scholen, winkels, sportcentra, openbaar vervoer en belangrijke invalswegen
Veel potentieel om volledig naar eigen smaak te renoveren en in te richten
EPC = B = 157 kWh/(m2 jaar) woonhuis - asbestveilig
EPC = C = 319 kWh/(m2 jaar) handelsruimte - asbestveilig
Indeling woning :
Gelijkvloers: inkomhal, volledig ingerichte leefkeuken met toegang tot koer, badkamer
Eerste verdieping: zeer ruime leefruimte, slaapkamer, badkamer
Tweede verdieping: 2 slaapkamers, keuken, badkamer
Zolderverdieping: 3 ruime kamers
Indeling handelsruimte :
Winkelgedeelte
Ruimte met kitchenette en toilet
Kelder
Deze eigendom is ideaal voor:
Combinatie wonen + werken: winkel, praktijkruimte, atelier of kantoor aan huis
Co-housing: makkelijk op te delen voor samenwonen met vrienden of familie
Meergezinswoning (mits vergunning): potentieel voor meerdere wooneenheden
Ruime gezinswoning: perfect voor grote of samengestelde gezinnen
Kangoeroewonen: voor meerdere generaties onder één dak
Investeringsproject: topligging voor verhuur of herontwikkeling
Kortom: een uitzonderlijke eigendom met zeeën van ruimte en eindeloze mogelijkheden, waar uw plannen – groot of klein – tot leven kunnen komen.
Voor meer inlichtingen of een bezoek, contacteer Ellen : 0475.400.770 - ellen@altro-vastgoed.be
Energie
![]() |
- EPC Certificaat: 20241204-0003468655-RES-1
- Energieverbruik: 157 kWh/m²/jaar
Op de kaart

Financieel
| Prijs |
|---|
Berekening kosten
Je aankoopkosten? Die heb je snel berekent via de knop hieronder.
Bijkomende info
Gebouw
| Bouwjaar | 1900 |
|---|---|
| Staat | Te renoveren |
| Bewoonbaar (m²) | 405 |
| Verdieping | 4 |
| Gevels | 2 |
| Gevelbreedte | 8 |
| Badkamers | 3 |
| Slaapkamers | 7 |
| Verdiepingen | 4 |
| Parkeerplaatsen | 0 |
| Doucheruimtes | 3 |
| Toiletten | 4 |
Faciliteiten
| Type vloer | |
|---|---|
| Keuken uitrusting | Goed uitgerust |
| Elektrisch keuringsattest | Nee |
Perceel
| Overstromingsgevoelig | Geen |
|---|---|
| P-score | B |
| G-score | B |
| Voorkeurrecht | Ja |
| Totale oppervlakte (m²) | 170 |
| Bebouwde oppervlakte (m²) | 156 |
| Tuin oppervlakte (m²) | 0 |
| Oriëntatie terras | West |
Vergunning
| Vergunning | Vergunning beschikbaar |
|---|---|
| Verkavelingsvergunning | Geen beschikbaar |
| Bouwovertreding | Geen |
| Bouwovertreding dagvaardiging | Geen |
Uitrusting
| Geschikt voor rolstoelgebruikers | Nee |
|---|---|
| Geschikt voor praktijk | Ja |
| Parking | Nee |
| Garage | Nee |
| Kelder | Ja |
| Zolder | Ja |
| Tuin | Nee |
| Terras | Ja |
| Lift | Nee |
| Gasaansluiting | Ja |
| Wateraansluiting | Ja |
| Elektriciteitsaansluiting | Ja |
| TV aansluiting | Ja |
| Telefoonaansluiting | Ja |
| Zwembad | Nee |
| Zwemvijver | Nee |
Een pand van
Altro Vastgoed Gent
Wij verkopen uw vastgoed, anders én beter!
Bij Altro Vastgoed vinden we een persoonlijke aanpak erg belangrijk, hierbij stellen we de klant steeds centraal en staan we hem/haar bij in het complexe proces van verkopen, aankopen, verhuren en huren van vastgoed. We beschikken over een kwalitatief kantorennetwerk in Vlaanderen en Brussel met een sterke, lokale verankering.
7061978
Leer meer over vastgoed
24 November 2025
Uitgezocht voor jouw gemeente: Hoeveel stijgt de waarde van je woning door een renovatie?
22 October 2025
Hoeveel kan ik lenen om een huis te kopen?
11 June 2025
Huis kopen met bouwovertreding? Dit moet je weten
11 May 2025
