NIEUWBOUW : Instapklare woning met 4 slaapkamers en garage in een rustige straat
€ 525.000
Een pand van TOP Vastgoed
Favoriet
Jouw zoektocht
Jouw scoretabel voor dit pand
Aan het laden...
Jouw geplande bezichtigingen
Aan het laden...
Overzicht
- 164 m² bewoonbaar
- 225 m² grond
- 4 Slaapkamer(s)
- 1 Badkamer(s)
- 2 Toilet(ten)
- 1 Tuin
- 1 Garage(s)
Beschrijving
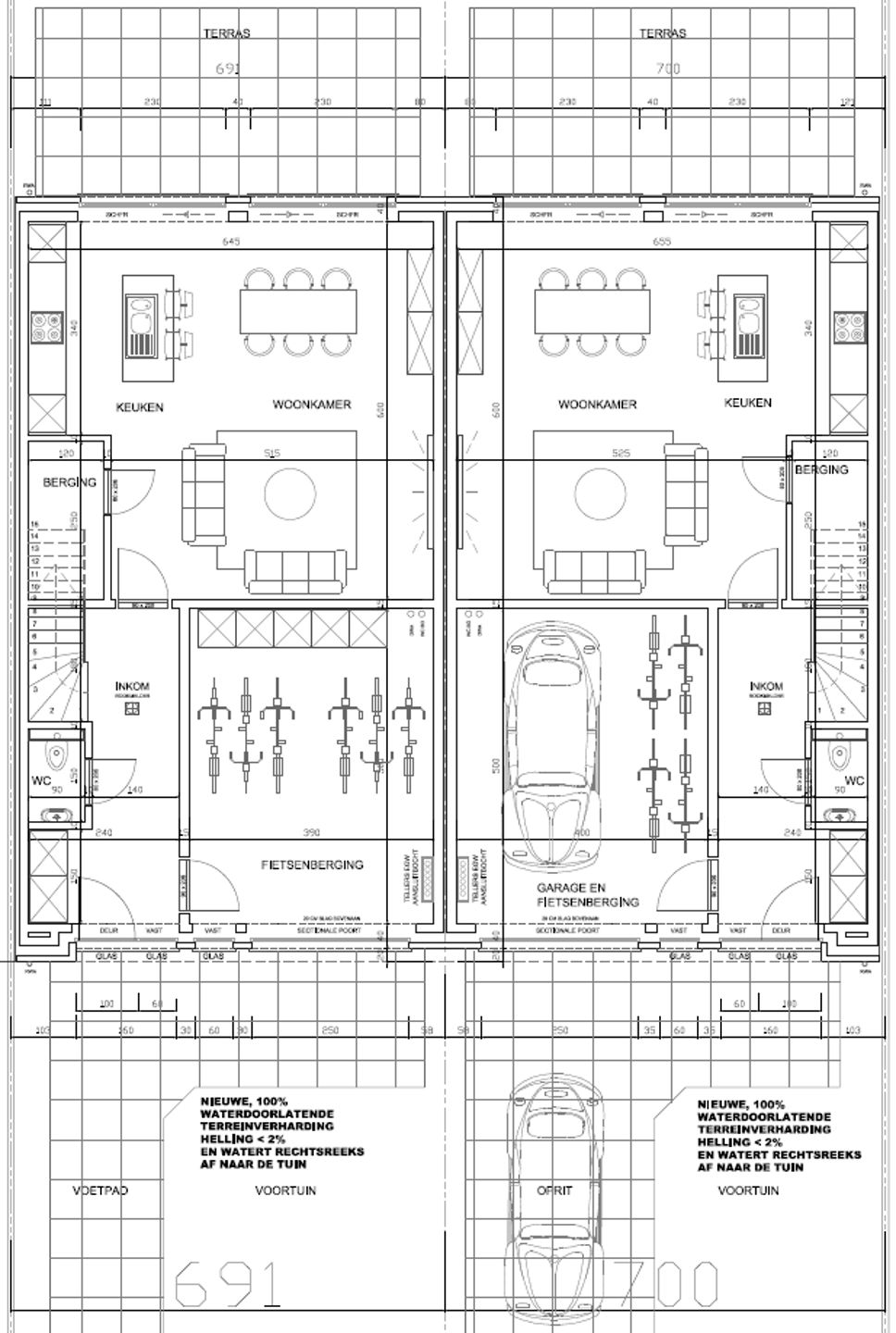
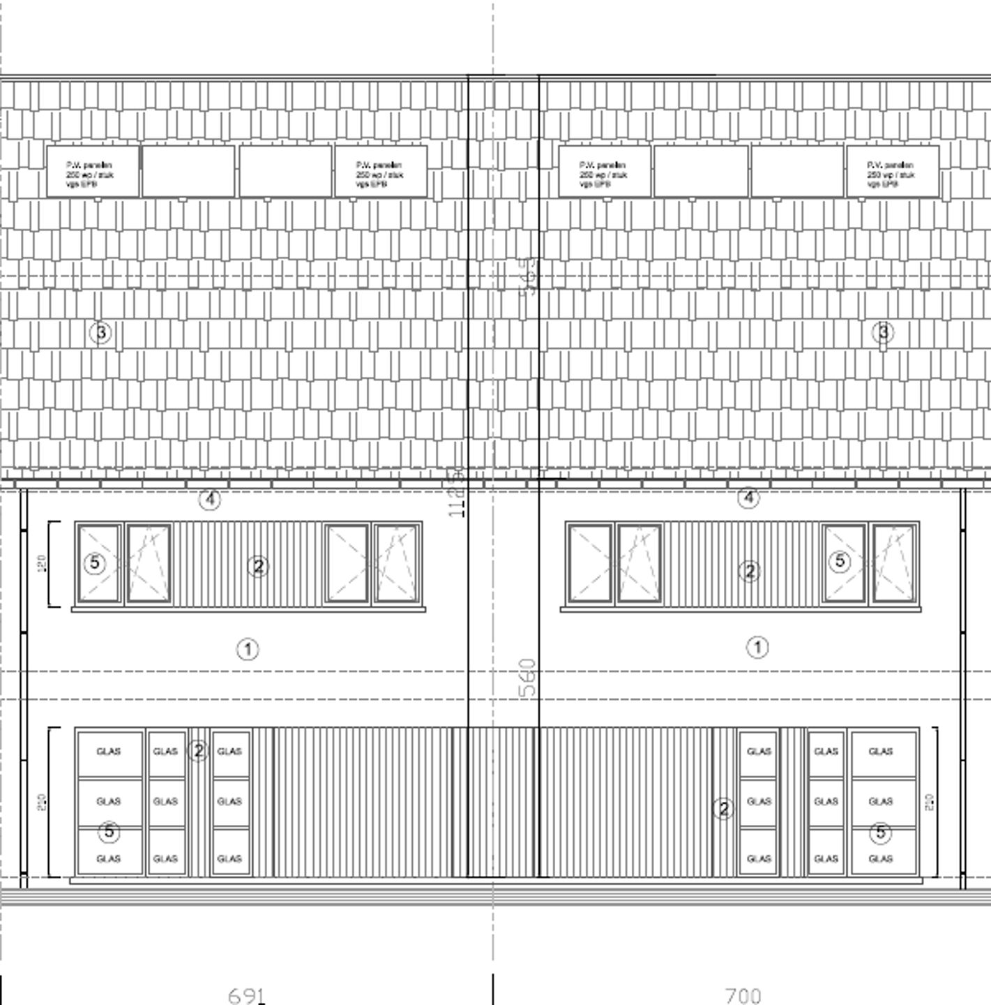
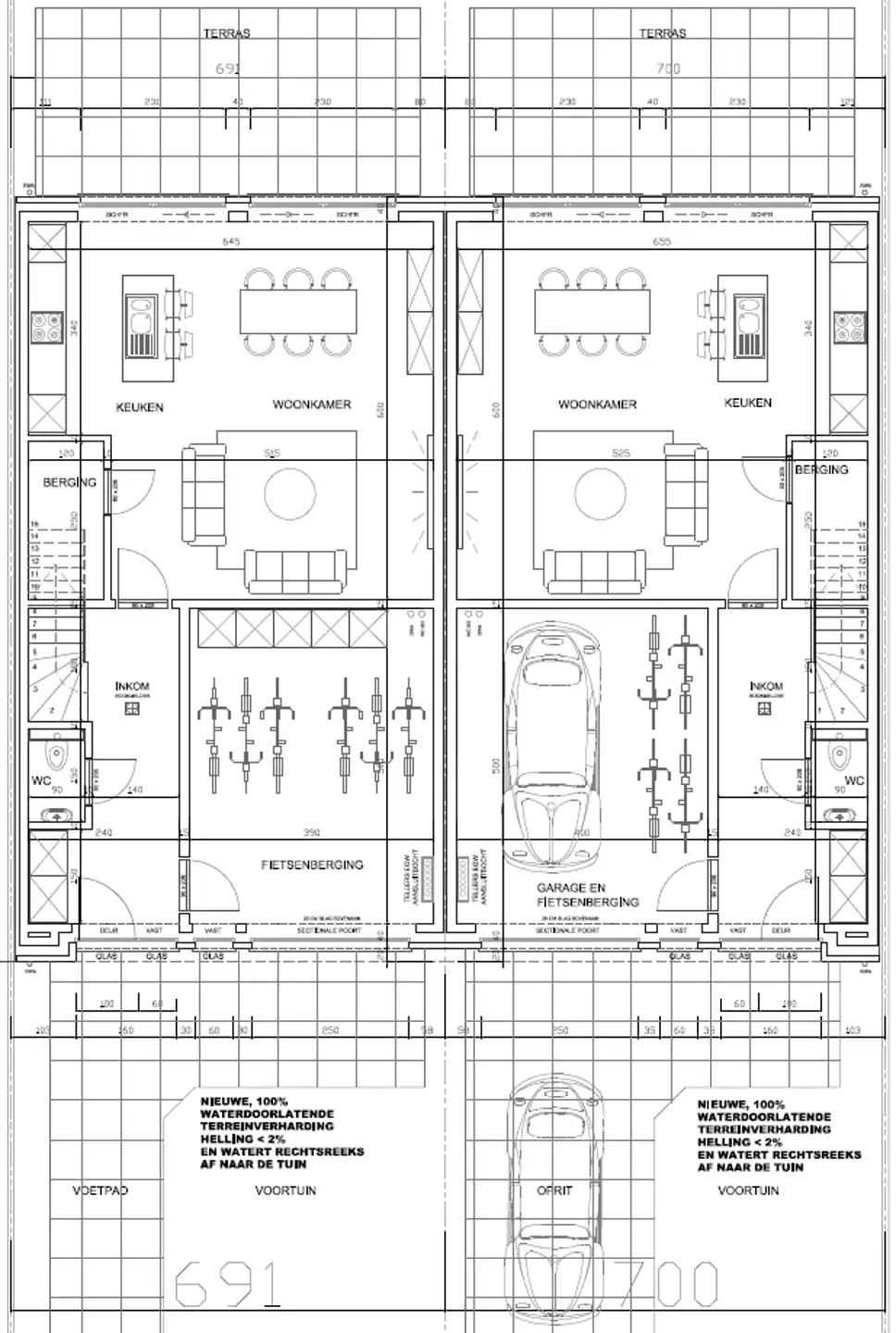
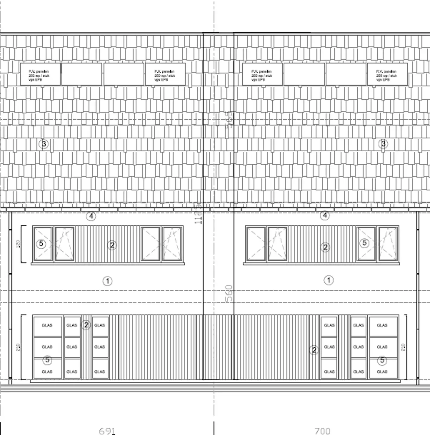
Deze goed gelegen (Blauwstraat nr8 ), energiezuinige en ruime eigendom te Wondelgem wordt opgetrokken in het jaar 2025 en zal klaar zijn midden 2026.
De woning wordt gebouwd door een bouwbedrijf en zal voorzien worden van alle comfort.
De woning heeft een voortuin met oprit en achtertuin en is ingedeeld als volgt; op het gelijkvloers; Inkomhal met afzonderlijk toilet, lichtrijke living met open keuken en handige berging. Op het verdiep zijn er 4 slaapkamers en een badkamer. Op het gelijkvloers is er nog een inpandige garage.
Het zolderverdiep kan mits meerprijs ingericht worden.
Plannen en lastenboek zijn op te vragen via mail; bezoek@topvastgoed.be
De woning wordt gebouwd door een bouwbedrijf en zal voorzien worden van alle comfort.
De woning heeft een voortuin met oprit en achtertuin en is ingedeeld als volgt; op het gelijkvloers; Inkomhal met afzonderlijk toilet, lichtrijke living met open keuken en handige berging. Op het verdiep zijn er 4 slaapkamers en een badkamer. Op het gelijkvloers is er nog een inpandige garage.
Het zolderverdiep kan mits meerprijs ingericht worden.
Plannen en lastenboek zijn op te vragen via mail; bezoek@topvastgoed.be
Deze goed gelegen (Blauwstraat nr8 ), energiezuinige en ruime eigendom te Wondelgem wordt opgetrokken in het jaar 2025 en zal klaar zijn midden 2026.
De woning wordt gebouwd door een bouwbedrijf en zal voorzien worden van alle comfort.
De woning heeft een voortuin met oprit en achtertuin en is ingedeeld als volgt; op het gelijkvloers; Inkomhal met afzonderlijk toilet, lichtrijke living met open keuken en handige berging. Op het verdiep zijn er 4 slaapkamers en een badkamer. Op het gelijkvloers is er nog een inpandige garage.
Het zolderverdiep kan mits meerprijs ingericht worden.
Plannen en lastenboek zijn op te vragen via mail; bezoek@topvastgoed.be
De woning wordt gebouwd door een bouwbedrijf en zal voorzien worden van alle comfort.
De woning heeft een voortuin met oprit en achtertuin en is ingedeeld als volgt; op het gelijkvloers; Inkomhal met afzonderlijk toilet, lichtrijke living met open keuken en handige berging. Op het verdiep zijn er 4 slaapkamers en een badkamer. Op het gelijkvloers is er nog een inpandige garage.
Het zolderverdiep kan mits meerprijs ingericht worden.
Plannen en lastenboek zijn op te vragen via mail; bezoek@topvastgoed.be
Energie
Op de kaart

Financieel
| Prijs |
|---|
Berekening kosten
Je aankoopkosten? Die heb je snel berekend via de knop hieronder.
Bijkomende info
Gebouw
| Bouwjaar | 2026 |
|---|---|
| Bewoonbaar (m²) | 164 |
| Gevels | 2 |
| Badkamers | 1 |
| Slaapkamers | 4 |
| Verdiepingen | 1 |
| Garages | 1 |
| Parkeerplaatsen | 0 |
| Toiletten | 2 |
Faciliteiten
| Type vloer |
|---|
Perceel
| P-score | A |
|---|---|
| G-score | A |
| Totale oppervlakte (m²) | 225 |
| Tuin oppervlakte (m²) | 0 |
Vergunning
| Vergunning | Geen beschikbaar |
|---|---|
| Verkavelingsvergunning | Geen beschikbaar |
Uitrusting
| Parking | Nee |
|---|---|
| Garage | Ja |
| Tuin | Ja |
| Terras | Ja |
| Wateraansluiting | Ja |
| Elektriciteitsaansluiting | Ja |
| Zonnepanelen | Ja |
| Regenwaterput | Ja |
Een pand van
TOP Vastgoed
Hét topkantoor voor de verkoop van uw eigendom regio Gent en omstreken.
TOP VASTGOED bundelt de knowhow van haar oprichters en medewerkers met elk een uitgesproken talent. Hun aanvullende kwaliteiten staan garant voor een maximaal resultaat bij de verkoop van uw eigendom. De aanpak door TOP VASTGOED is dermate doeltreffend dat elk onroerend goed “zo verkocht” geraakt. De klant mag dus gerust veeleisend zijn. Ons hele team volgt jaarlijks tal van opleidingen om steeds up to date te zijn mbt alle wetgeving, deontologie en trends.
7141168
Leer meer over vastgoed
23 March 2026
Op Spotto zoeken als een pro: 10 slimme tips
21 March 2026
Hoeveel kan ik lenen om een huis te kopen?
01 March 2026
Wanneer heb ik een bouwvergunning of omgevingsvergunning nodig?
17 February 2026