Te renoveren woning nabij de Gentbrugse meersen
Een pand van Bordes Merelbeke
Overzicht
- 143 m² grond
- 3 Slaapkamer(s)
- 1 Badkamer(s)
- 1 Tuin
Beschrijving
Deze te renoveren charmante woning met drie slaapkamers is gelegen op een perceel van ca. 143 m² en beschikt over een bewoonbare oppervlakte van 135 m². Dit huis bevindt zich in een van de meest begeerde en levendige straten van Gentbrugge. De ligging is uitstekend: vlak bij recreatiegebieden zoals de Gentbrugse Meersen, op fietsafstand van het centrum van Gent, in een kindvriendelijke straat met vlotte toegang tot het openbaar vervoer.
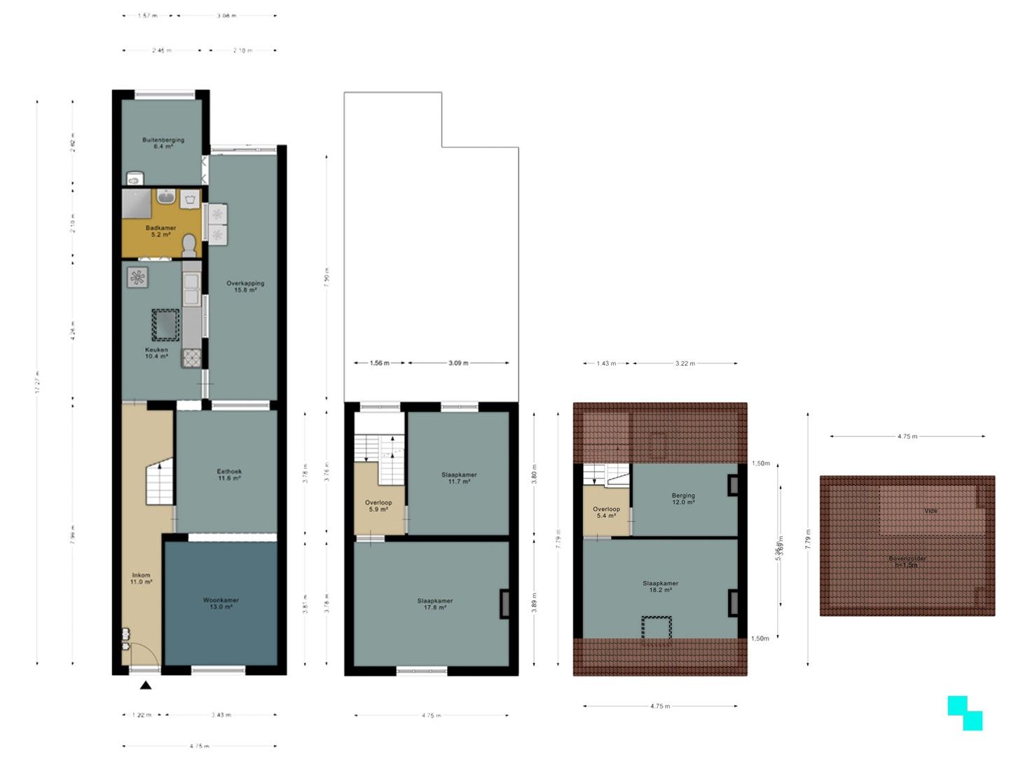
Indeling
Gelijkvloers
Inkomhal, woon- en eetkamer, keuken, wasplaats en badkamer met toilet.
Eerste verdieping
Op de eerste verdieping bevinden zich de nachthal en twee slaapkamers.
Zolderverdieping
De zolderverdieping biedt een derde slaapkamer én een multifunctionele kamer met mezzanine.
Exterieur
Het huis beschikt over een overdekt terras, tuinberging en zonnig stadstuintje.
Praktisch
- Centrale verwarming op aardgas
- Plattegrond hieronder te downloaden
Troeven
- Uitstekende centrale ligging
- Lichtrijke leefruimtes
- Mogelijkheden
Benieuwd?
Kyara (BIV 514 129) organiseert voor deze woning een Bordes-bezoekdag op zaterdag 22 november, mits het maken van een afspraak.
Verkoop via Bordes, met Kyara, al jaren marktleider in vastgoed in Merelbeke en de omliggende gemeenten. Met de glimlach, met de sleutel en met veel goesting.
Deze te renoveren charmante woning met drie slaapkamers is gelegen op een perceel van ca. 143 m² en beschikt over een bewoonbare oppervlakte van 135 m² . Dit huis bevindt zich in een van de meest begeerde en levendige straten van Gentbrugge. De ligging is uitstekend: vlak bij recreatiegebieden zoals de Gentbrugse Meersen, op fietsafstand van het centrum van Gent, in een kindvriendelijke straat met vlotte toegang tot het openbaar vervoer. Indeling: inkomhal, woon- en eetkamer, keuken, wasplaats en badkamer met toilet. Op de eerste verdieping bevinden zich de nachthal en twee slaapkamers. De zolderverdieping biedt een derde slaapkamer én een multifunctionele kamer met mezzanine. Het huis beschikt over een overdekt terras, tuinberging en zonnig stadstuintje. Centrale verwarming op aardgas. Extra troeven: uitstekende centrale ligging | mogelijkheden| fijne buren. Kyara Hennaux (BIV 514 129) organiseert hiervoor een Bordes-bezoekdag op zaterdag 22 november 2025, mits het maken van een afspraak. 09 277 02 53 | www.bordes.be
Energie
![]() |
- E-peil: E0
- Beglazing: Onbekend
Op de kaart

Financieel
| Prijs | |
|---|---|
| Kadastraal inkomen (niet geïndexeerd) | € 540 |
Berekening kosten
Je aankoopkosten? Die heb je snel berekent via de knop hieronder.
Bijkomende info
Gebouw
| Bouwjaar | 1936 |
|---|---|
| Staat | Te renoveren |
| Gevelbreedte | 5.1 |
| Badkamers | 1 |
| Slaapkamers | 3 |
| Verdiepingen | 0 |
| Garages | 0 |
| Parkeerplaatsen | 0 |
| Toiletten | 0 |
Faciliteiten
| Septische tank | Ja |
|---|
Perceel
| Diepte (m) | 28 |
|---|---|
| Breedte (m) | 5 |
| Overstromingsgevoelig | Geen |
| P-score | A |
| G-score | A |
| Totale oppervlakte (m²) | 143 |
| Bebouwde oppervlakte (m²) | 0 |
| Tuin oppervlakte (m²) | 0 |
| Oriëntatie tuin | Noordwest |
Vergunning
| Verkavelingsvergunning | Geen beschikbaar |
|---|
Uitrusting
| Investeringspand | Nee |
|---|---|
| Parking | Nee |
| Garage | Nee |
| Zolder | Ja |
| Opslagruimte | Ja |
| Tuin | Ja |
| Lift | Nee |
| Rioolaansluiting | Ja |
| Gasaansluiting | Ja |
| Wateraansluiting | Ja |
| Elektriciteitsaansluiting | Ja |
| Internetaansluiting | Ja |
| Telefoonaansluiting | Ja |
| Zonnepanelen | Nee |
| Zonneboiler | Nee |
| Alarm | Nee |
| Videofoon | Nee |
| Grondwaterput | Nee |
