Op te frissen bungalow te Destelbergen
€ 475.000
Haenhoutstraat 76 - 9070 Destelbergen
Een pand van Altro Vastgoed Heusden
Jouw zoektocht
Overzicht
- 167 m² bewoonbaar
- 858 m² grond
- 3 Slaapkamer(s)
- 1 Badkamer(s)
- 1 Toilet(ten)
- 1 Living(s)
- 1 Tuin
- 2 Garage(s)
Beschrijving
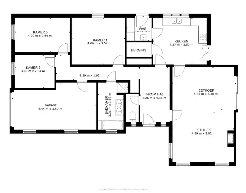
OPNIEUW BESCHIKBAAR ! Deze bungalow werd opgetrokken in 1985 en omvat een bewoonbare oppervlakte van 167m², exclusief de zolderverdieping. De perceeloppervlakte, met zuid oriëntatie, bedraagt 858m². Op het perceel is er nog een afzonderlijke garage, met sectionaalpoort, aanwezig van 30m². Deze uitstekend onderhouden woning is dichtbij het centrum van Destelbergen gelegen met een vlotte bereikbaarheid naar tal van invalswegen. In een charmant kader treft u deze, deels te renoveren, woning met huidige indeling. Inkomhal met gastentoilet, woon- en eetruimte met zicht op de tuin, een geïnstalleerde keuken met toegang tot een berging en wasplaats met verbinding naar buiten. Via de nachthal is er toegang tot de drie slaapkamers, badkamer en garage. Via de garage is er toegang tot de opbergzolder die geheel kan ingedeeld worden naargelang eigen wensen. De woning werd doorheen de jaren beperkt aangepast maar kent een fantastisch onderhoud. Ze kan volledig naargelang eigen smaak, wensen en energetische vereisten worden aangepakt, er zijn tal van mogelijkheden om de ideale gezinswoning te creëren. De hoge EPC is voornamelijk te wijten aan de elektrische verwarming (wel vernieuwde toestellen). De woning valt onder de renovatieverplichting.
OPNIEUW BESCHIKBAAR ! Deze bungalow werd opgetrokken in 1985 en omvat een bewoonbare oppervlakte van 167m², exclusief de zolderverdieping. De perceeloppervlakte, met zuid oriëntatie, bedraagt 858m². Op het perceel is er nog een afzonderlijke garage, met sectionaalpoort, aanwezig van 30m². Deze uitstekend onderhouden woning is dichtbij het centrum van Destelbergen gelegen met een vlotte bereikbaarheid naar tal van invalswegen. In een charmant kader treft u deze, deels te renoveren, woning met huidige indeling. Inkomhal met gastentoilet, woon- en eetruimte met zicht op de tuin, een geïnstalleerde keuken met toegang tot een berging en wasplaats met verbinding naar buiten. Via de nachthal is er toegang tot de drie slaapkamers, badkamer en garage. Via de garage is er toegang tot de opbergzolder die geheel kan ingedeeld worden naargelang eigen wensen. De woning werd doorheen de jaren beperkt aangepast maar kent een fantastisch onderhoud. Ze kan volledig naargelang eigen smaak, wensen en energetische vereisten worden aangepakt, er zijn tal van mogelijkheden om de ideale gezinswoning te creëren. De hoge EPC is voornamelijk te wijten aan de elektrische verwarming (wel vernieuwde toestellen). De woning valt onder de renovatieverplichting.
Energie
![]() |
- EPC Certificaat: 37333745
- Energieverbruik: 541 kWh/m²/jaar
- Beglazing: Standaard dubbel
Extra budget nodig voor je renovatie?

Downloads
- Plan 1.jpg (jpg)
- Asbest inventaris (pdf)
- 5358-55911-Haenhoutstraat-76-9070-Destelbergen-België-nl-65611_1.pdf (pdf)
- Elektrische keuring (pdf)
- EPC (pdf)
- ActaMaps (pdf)
- Watertoets (pdf)
- RVV (pdf)
- Kadastraal plan (pdf)
- Rooilijnplan (jpg)
- Stedenbouw (pdf)
- OVAM (pdf)
Financieel
| Prijs | |
|---|---|
| Kadastraal inkomen (niet geïndexeerd) | € 1.442 |
| Kadastraal inkomen (geïndexeerd) | € 1.442 |
Berekening kosten
Je aankoopkosten? Die heb je snel berekend via de knop hieronder.
Bijkomende info
Gebouw
| Bouwjaar | 1985 |
|---|---|
| Staat | Te renoveren |
| Is beschermd | Nee |
| Bewoonbaar (m²) | 167 |
| Verdieping | 0 |
| Gevels | 4 |
| Gevelbreedte | 9 |
| Zolder | 1 |
| Kelder | 0 |
| Badkamers | 1 |
| Slaapkamers | 3 |
| Verdiepingen | 2 |
| Garages | 2 |
| Keukens | 1 |
| Leefruimtes | 1 |
| Kantoorruimtes | 0 |
| Parkeerplaatsen | 6 |
| Opslagruimtes | 1 |
| Toiletten | 1 |
Ruimtes
| Tuin | 858 m² |
|---|---|
| Terras | 30 m² |
Faciliteiten
| Type vloer | Vinyl |
|---|---|
| Keuken uitrusting | Goed uitgerust |
| Beglazing | Standaard dubbel |
| Luiken | Nee |
| Brandstof type | Geen |
| Elektrisch keuringsattest | Nee |
| Septische tank | Ja |
Perceel
| Diepte (m) | 40 |
|---|---|
| Breedte (m) | 21 |
| Overstromingsgevoelig | Geen |
| P-score | A |
| G-score | A |
| Voorkeurrecht | Nee |
| Totale oppervlakte (m²) | 858 |
| Tuin oppervlakte (m²) | 858 |
| Oppervlakte terras (m²) | 30 |
| Oriëntatie tuin | Zuid |
| Oriëntatie terras | Zuid |
Vergunning
| Vergunning | Vergunning beschikbaar |
|---|---|
| Verkavelingsvergunning | Vergunning beschikbaar |
Uitrusting
| Parking | Ja |
|---|---|
| Garage | Ja |
| Kelder | Nee |
| Zolder | Ja |
| Opslagruimte | Ja |
| Tuin | Ja |
| Terras | Ja |
| Lift | Nee |
| Rioolaansluiting | Ja |
| Gasaansluiting | Nee |
| Wateraansluiting | Ja |
| Elektriciteitsaansluiting | Ja |
| Zonnepanelen | Nee |
| Zonneboiler | Nee |
| Thuisbatterij | Nee |
| Alarm | Nee |
| Zwembad | Nee |
| Sauna | Nee |
| Jacuzzi | Nee |
| Videofoon | Nee |
| Domotica | Nee |
| Regenwaterput | Nee |
| Ventilatie | Nee |



