> Te koop > Lochristi > Kantoor > Lichtrijk kantoor te koop in centrum Lochristi met parking!
Nieuw

Lichtrijk kantoor te koop in centrum Lochristi met parking!

Overzicht


  • 146.63 m² bewoonbaar
  • 2 Toilet(ten)
  • 1 Tuin

Beschrijving


Het kantoor is strategisch gelegen in een moderne, tijdloze blok met veel gratis openbare parkeermogelijkheden en een goede bereikbaarheid.

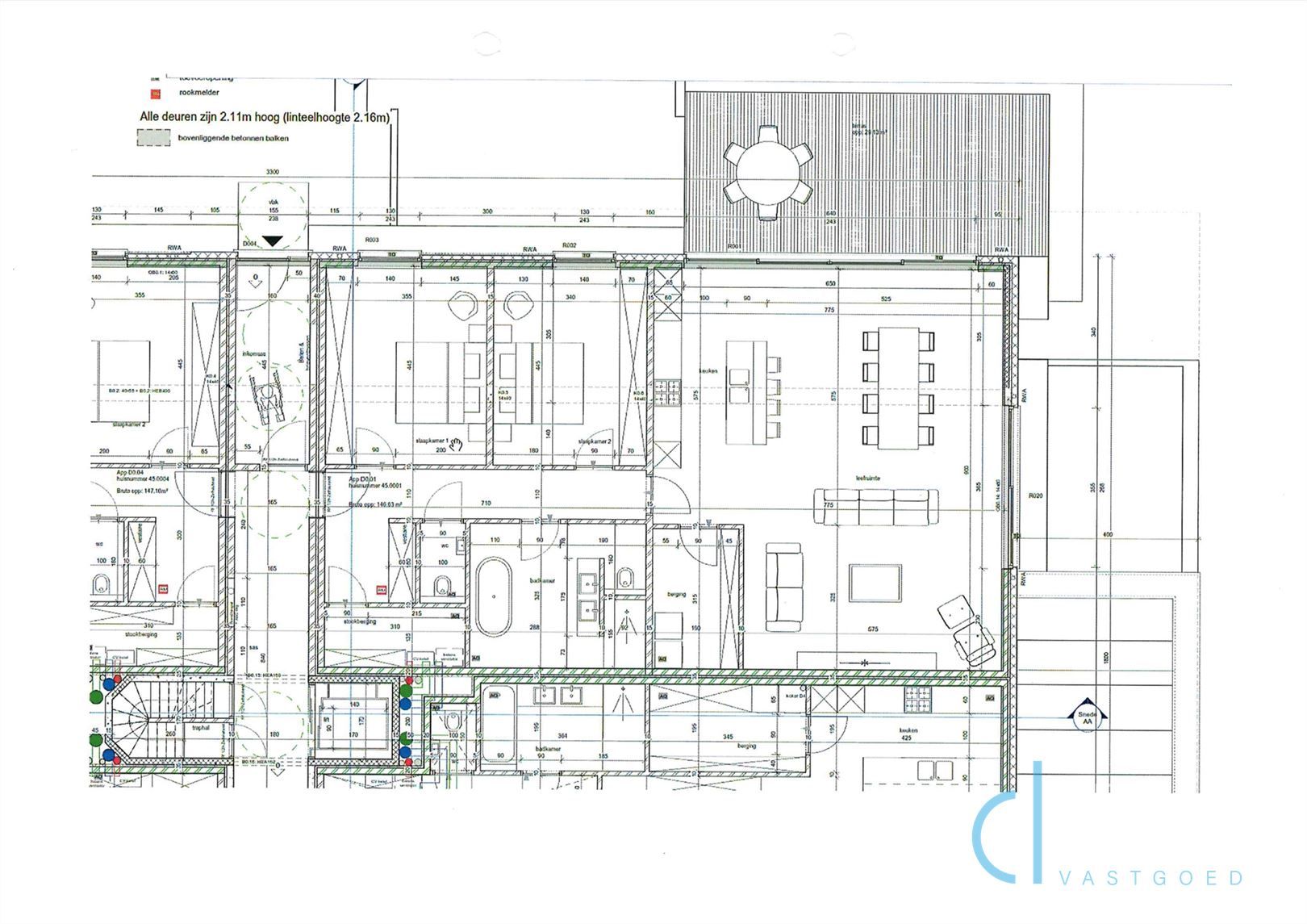
Het pand situeert zich achteraan het appartementsblok op het gelijkvloers en kent een oppervlakte van 146,63 vierkante meter. Het kantoor wordt betreden via een lange inkomhal afgewerkt met ingemaakte kasten en ruimte voor vestiaire. De gietijzeren deur zorgt voor een verbinding met de polyvalente zaal en geeft een ruim, lichtrijk gevoel in de hal. De open werkruimtes staan centraal en zijn flexibel in te delen naar eigen wensen en behoeften. Momenteel is hier reeds een opsplitsing gemaakt met een afgesloten, glazen loket.  Er zijn 2 aparte bureauruimtes voorzien die de nodige privacy bieden. Het kantoor is verder uitgerust met een kitchenette en badkamer voor het comfort van de werknemers. Tot slot is er een apart toilet en een wasplaats in combinatie met technische ruimte. Dankzij de grote raampartijen die zorgen voor een flinke dosis aan natuurlijk lichtinval alsook een direct zicht op het gezellig terras met tuintje, creëert u hier een aangename werkomgeving.  De strakke en eigentijdse inrichting zorgen voor een uitnodigende sfeer, ideaal voor medewerkers en klanten. Kortom straalt het bureel professionaliteit uit en is dit perfect voor een bedrijf die op zoek is naar een representatieve werkplaats.

Het appartementsgebouw heeft een gemeenschappelijke tuin met onderhouden wandelpaden, toffe stapstenen en vijvertje, ideaal om tussendoor even te ontspannen. Toch liever alleen met de collega's genieten van de buitenlucht? Daar is het privé terras met tuintje aan het pand perfect voor! Op het perceel is een gemeenschappelijke fietsenstalling aanwezig én een vaste parkeerplaats toebehorend aan de eigenaar!

Een grote troef is de energiezuinigheid van het pand, e-peil 47 (EPC A).

De verkoopprijs bedraagt 575.000 euro, exclusief registratierechten (parkeerplaats inbegrepen).

Dit is dé kans voor ondernemers die op zoek zijn naar een inspirerende en goed bereikbare werkplek met een moderne uitstraling. Maak nu uw afspraak via hendrik@vastgoed-dc.be of de website. 

Energie


Epc A
  • Energieverbruik: 81 kWh/m²/jaar
  • E-peil: E47
  • Verwarming: Gas
  • Beglazing: Hoog efficient driedubbel

Op de kaart


map placeholder

Financieel


Prijs € 575.000
Kadastraal inkomen (niet geïndexeerd) € 1.120
Kadastraal inkomen (geïndexeerd) € 0

Berekening kosten


Je aankoopkosten? Die heb je snel berekent via de knop hieronder.

Bijkomende info


Gebouw
Bouwjaar 2018
Staat Goed onderhouden
Bouwcertificaat Nee
Bewoonbaar (m²) 146.63
Verdieping 0
Badkamers 0
Slaapkamers 0
Verdiepingen 1
Garages 0
Parkeerplaatsen 1
Doucheruimtes 0
Toiletten 2
Faciliteiten
Keuken uitrusting Standaard
Materiaal ramenomlijstingen PVC
Beglazing Hoog efficient driedubbel
Brandstof primaire verwarming Gas
Elektrisch keuringsattest Ja
Perceel
Overstromingsgevoelig Geen
P-score B
G-score A
Voorkeurrecht Nee
Bebouwde oppervlakte (m²) 0
Tuin oppervlakte (m²) 29
Oppervlakte terras (m²) 0
Vergunning
Vergunning Vergunning beschikbaar
Verkavelingsvergunning Vergunning beschikbaar
Uitrusting
Investeringspand Nee
Geschikt voor praktijk Nee
Parking Ja
Garage Nee
Thuiskantoor Nee
Kelder Nee
Zolder Nee
Tuin Ja
Terras Nee
Lift Nee
Rioolaansluiting Nee
Gasaansluiting Nee
Wateraansluiting Nee
Elektriciteitsaansluiting Nee
TV aansluiting Nee
Internetaansluiting Nee
Telefoonaansluiting Nee
Appartementsblok
Naam residentie Schoonjans
Aantal verdiepingen 1
Lift Nee
Lichtrijk kantoor te koop in centrum Lochristi met parking!  foto {{pictureIndex}}

Lichtrijk kantoor te koop in centrum Lochristi met parking!

€ 575.000

Dorp-Oost 45/0001 - 9080 Lochristi

Bezoek het pand

Vul jouw contactgegevens hieronder in en de makelaar contacteert je.

Leer meer over vastgoed

05 November 2024
Bedrijfsvastgoed in transitie: ontdek de toekomst van werkplekken
16 October 2024
Opbrengsteigendom: een slim pad naar passief inkomen en vermogensgroei
09 September 2024
Tijdelijk vastgoed: flexibele oplossingen voor een dynamische markt
12 August 2024
Bedrijfsovername: dit moet je weten voor een succesvolle start