Melsele (Beveren), Bergmolenstraat - Fase 1: Lot 02
€ 430.203
Een pand van Huysman Bouw
Favoriet
Jouw zoektocht
Jouw scoretabel voor dit pand
Aan het laden...
Jouw geplande bezichtigingen
Aan het laden...
Overzicht
- 130 m² grond
- 3 Slaapkamer(s)
- 1 Badkamer(s)
- 2 Toilet(ten)
- 1 Tuin
Beschrijving
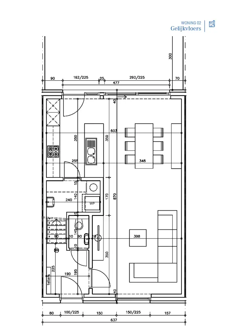
Energiezuinige nieuwbouwwoning op een Zuid gericht perceel van 130m2. De woning staat momenteel winddicht gebouwd en kan afgewerkt worden binnen de 6 maand na het maken van alle afwerkingskeuzes.De interieurafwerking van de woning is volledig op maat te kiezen a.d.h.v. ruime afwerkingsbudgetten. De woning is uitgerust met een ruim pakket aan energiezuinige technieken zoals warmtepomp, ventilatie D, vloerverwarming op beide verdiepingen,... . Op het gelijkvloers beschikt de woning over een inkom met gastentoilet, een praktische wasplaats en een open leefruimte. Op de eerste verdieping bevinden zich 3 slaapkamers, een dressing en een badkamer met bad+douche. De zolder is toegankelijk met een vaste trap. De woning wordt gebouwd in het nieuwbouwproject in de Bergmolenstraat te Melsele. In totaal worden daar 12 halfopen en gesloten woningen gebouwd . Zie jij jezelf hier wonen? Bel Ewout op 0497 588 888 of mail naar contact@huysmanbouw.be voor meer informatie. Meer info over het project op huysmanbouw.be
Energie
![]() |
- E-peil: E0
- Beglazing: Onbekend
Op de kaart

Financieel
| Prijs |
|---|
Bijkomende info
Gebouw
| Bouwjaar | 2022 |
|---|---|
| Staat | Zo goed als nieuw |
| Bouwcertificaat | Ja |
| Verdieping | 0 |
| Badkamers | 1 |
| Slaapkamers | 3 |
| Verdiepingen | 0 |
| Garages | 0 |
| Parkeerplaatsen | 0 |
| Toiletten | 2 |
Faciliteiten
| Septische tank | Nee |
|---|
Perceel
| Overstromingsgevoelig | Geen |
|---|---|
| P-score | A |
| G-score | A |
| Totale oppervlakte (m²) | 130 |
| Bebouwde oppervlakte (m²) | 0 |
| Tuin oppervlakte (m²) | 0 |
| Oriëntatie tuin | Zuid |
Vergunning
| Verkavelingsvergunning | Geen beschikbaar |
|---|
Uitrusting
| Investeringspand | Nee |
|---|---|
| Parking | Nee |
| Garage | Nee |
| Zolder | Ja |
| Tuin | Ja |
| Lift | Nee |
| Rioolaansluiting | Ja |
| Gasaansluiting | Nee |
| Wateraansluiting | Ja |
| Elektriciteitsaansluiting | Ja |
| Internetaansluiting | Ja |
| Telefoonaansluiting | Ja |
| Zonnepanelen | Ja |
| Zonneboiler | Nee |
| Alarm | Nee |
| Videofoon | Nee |
| Grondwaterput | Ja |
Een pand van
Huysman Bouw
Bouwen mét vertrouwen
Huysman Bouw staat voor meer dan 50 jaar ervaring in bouwen van nieuwbouwwoningen en appartementen in Oost- en West-Vlaanderen. Wij dragen kwaliteit, flexibiliteit en klantvriendelijkheid hoog in het vaandel. Een combinatie van toplocaties, doordachte en gevarieerde architectuur en een interieur afwerking op maat maken van iedere woning een echte thuis. Jong, single, gezin of senior? Wij creëren een sleutel-op-de-deur-woning, afgewerkt appartement of bouwproject op jouw maat.
Melsele (Beveren), Bergmolenstraat - Fase 1: Lot 02 MRT26
Leer meer over vastgoed
23 March 2026
Op Spotto zoeken als een pro: 10 slimme tips
21 March 2026
Hoeveel kan ik lenen om een huis te kopen?
01 March 2026
Wanneer heb ik een bouwvergunning of omgevingsvergunning nodig?
17 February 2026
