Woning
€ 465.300
Een pand van Smet Vastgoed & Landmeten BV
Overzicht
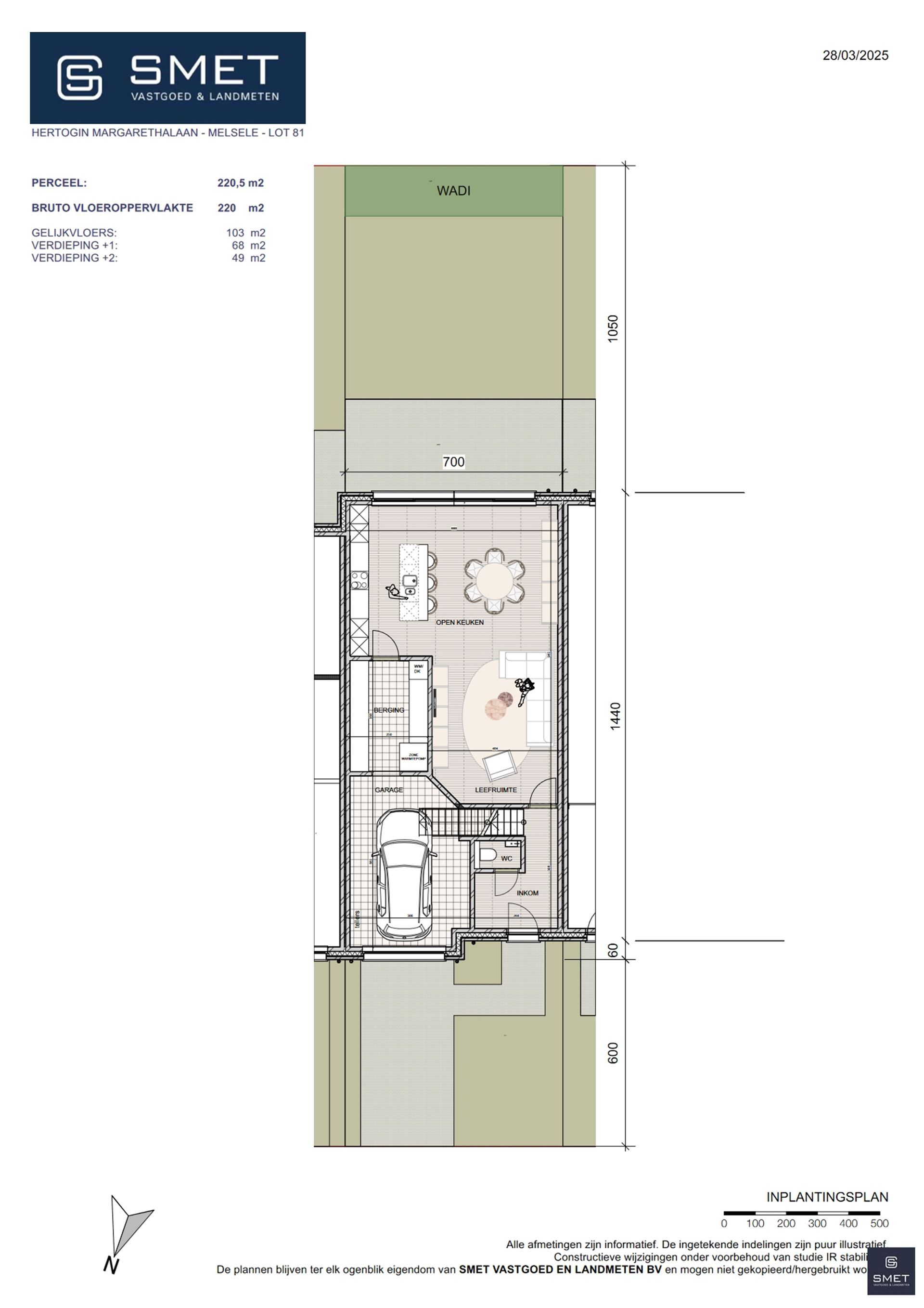
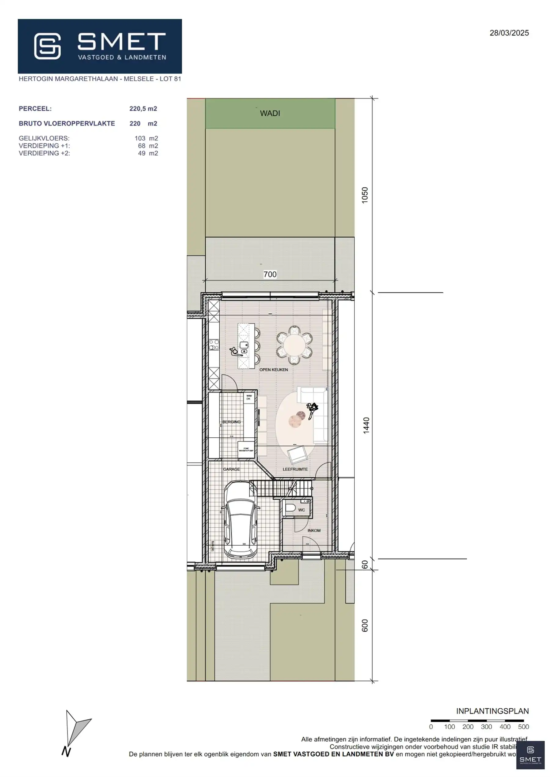
- 220 m² bewoonbaar
- 220 m² grond
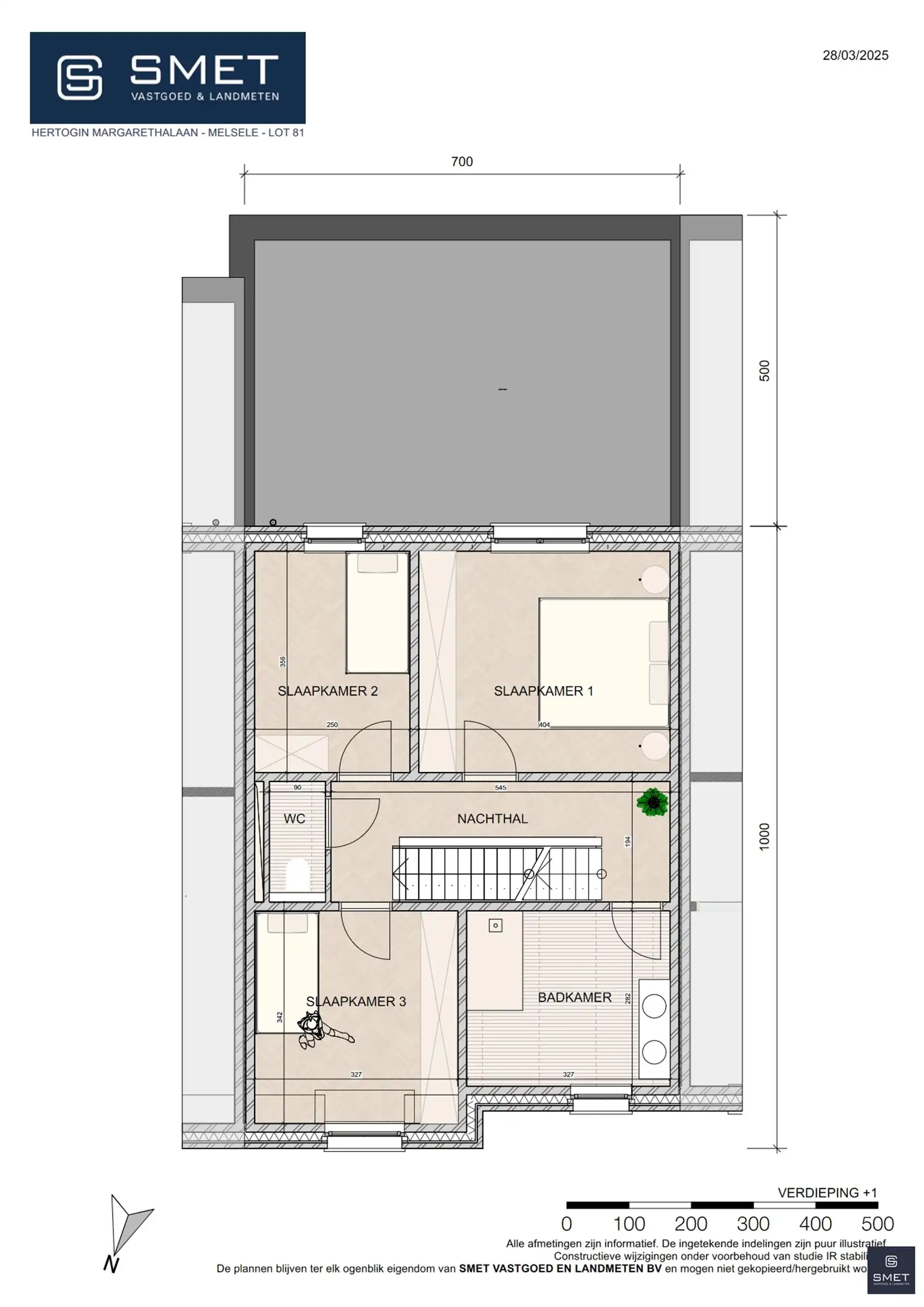
- 5 Slaapkamer(s)
- 2 Badkamer(s)
- 2 Toilet(ten)
- 1 Tuin
- 1 Garage(s)
Overstromingsgevaar perceel
Beschrijving
UPDATE JANUARI 2026 : LAATSTE WONING OP DEZE UNIEKE LOCATIE
WERFBEZOEK NA AFSPRAAK MOGELIJK : MOMENEEL FASE WATERDICHT
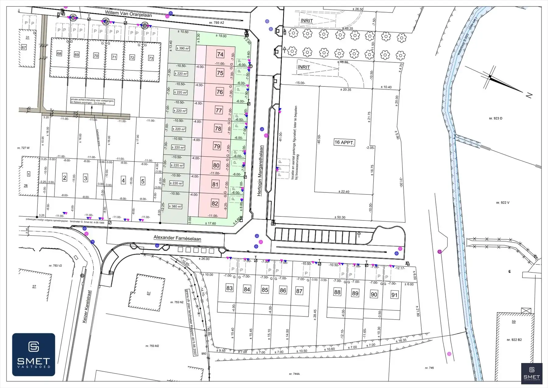
Gekoppelde nieuwbouwwoning op Lot 81, Hertogin Margarethalaan te 9120 Melsele
Welkom in de Hertogin Margarethalaan te Melsele, waar comfort, kwaliteit en ligging samenkomen in een eigentijdse woonomgeving. Deze prachtige nieuwbouwwoning maakt deel uit van een kleinschalig en stijlvol woonproject met landelijk moderne architectuur, bestaande uit een architectonisch geheel van 9 woningen.
De woning ligt in een rustige, kindvriendelijke straat met enkel lokaal verkeer, omgeven door groen en toch dicht bij alles wat u nodig heeft.
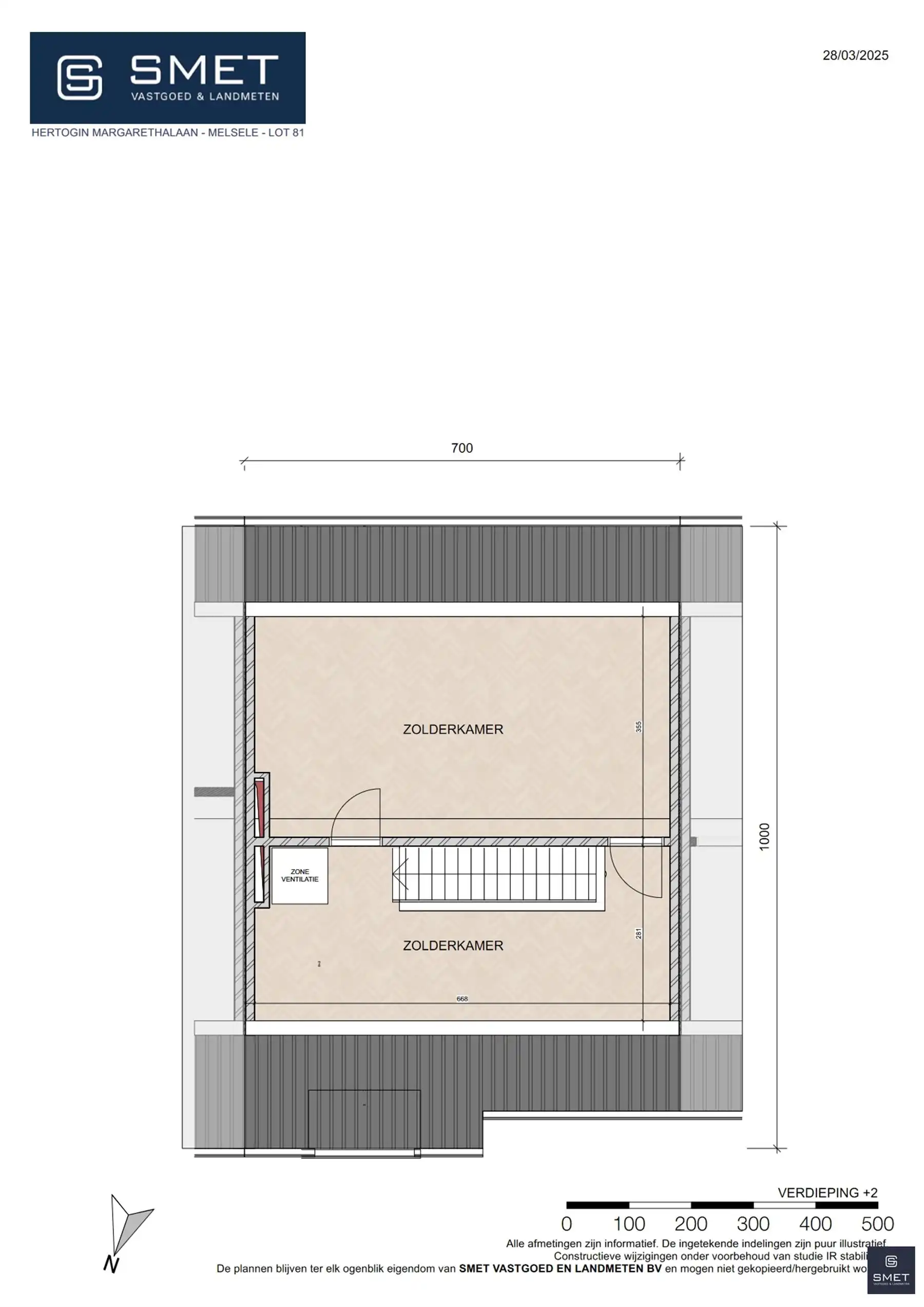
Landelijk modern wonen met veel licht en ruimte ! Deze gekoppelde woning biedt een bruto bewoonbare oppervlakte van ± 220 m², en werd ontworpen voor wie houdt van comfort, licht en een praktische indeling:
- Inpandige garage
- Voortuin met oprit voor privatieve parking
- Zuidgerichte achtertuin met optimale zoninval
- 3 slaapkamers op de eerste verdieping
- Ruimte voor extra kamers (extra slaapkamers, 2de badkamer of hobbyruimte) op het tweede verdiep
De leefruimte baadt in natuurlijk licht dankzij grote raampartijen en sluit mooi aan op de tuin en open keuken. De woning is ontworpen in een landelijk moderne stijl, met oog voor zowel esthetiek als functionaliteit.
Energiezuinig en toekomstgericht bouwen Deze woning voldoet aan de strengste energienormen en garandeert lage verbruikskosten dankzij o.a.:
- Warmtepomp (lucht-water)
- Vloerverwarming
- Ventilatiesysteem D met warmterecuperatie
- Zonnepanelen
- Zeer goede isolatie (E-peil ≤ 30)
Kortom, een woning die niet alleen klaar is voor de toekomst, maar ook zorgt voor comfort en duurzaamheid op lange termijn.
Afwerking op maat U heeft quasi volledige inspraak in de afwerking van uw woning. Wij werken met betrouwbare partners uit de regio voor oa keuken, badkamer, deuren enz. U kiest zelf volgens een uitgebreid lastenboek, binnen een vooraf afgesproken budget. Zo krijgt u niet zomaar een huis, maar een thuis op maat.
Wonen in Melsele, Rustig, groen en goed bereikbaar Melsele combineert het beste van twee werelden: de rust van een landelijke gemeente met de nabijheid van steden.
- Bushalte op wandelafstand
- Op- en afrit E17 op 10 minuten
- Tramhalte en treinstation met fietsostrade op 5 minuten
- Centrum Melsele en Beveren op wandelafstand
Hier komen wonen ? Dat is in een gezellige, warme buurt met scholen, winkels, horeca en natuur op korte afstand!
Extra service: wij begeleiden ook uw verkoop Gaat u verhuizen vanuit een bestaande woning? Wij helpen u graag verder: Wij kunnen uw huidige woning correct schatten, verkopen of eventueel aankopen. Zo zorgt u voor een vlotte overgang zonder zorgen.
Contacteer ons voor meer info of een vrijblijvend gesprek Benieuwd naar deze woning of andere woningen in dit project? Neem contact met ons op voor een afspraak of meer informatie.
Wij begeleiden u graag in elke stap richting uw nieuwe thuis. Tel 03 775 41 88 of Guy@vastgoed-smet.be
Energie
- E-peil: E30
- Beglazing: Standaard dubbel
Op de kaart

Financieel
| Prijs | |
|---|---|
| Kadastraal inkomen (niet geïndexeerd) | € 0 |
| Kadastraal inkomen (geïndexeerd) | € 0 |
Bijkomende info
Gebouw
| Bouwjaar | 2025 |
|---|---|
| Staat | Nieuw |
| Bouwcertificaat | Nee |
| Bewoonbaar (m²) | 220 |
| Verdieping | 0 |
| Gevelbreedte | 7 |
| Badkamers | 2 |
| Slaapkamers | 5 |
| Verdiepingen | 0 |
| Garages | 1 |
| Parkeerplaatsen | 2 |
| Doucheruimtes | 2 |
| Toiletten | 2 |
Faciliteiten
| Keuken uitrusting | Luxueus uitgerust |
|---|---|
| Materiaal ramenomlijstingen | PVC |
| Beglazing | Standaard dubbel |
| Elektrisch keuringsattest | Ja |
Perceel
| Breedte (m) | 7 |
|---|---|
| Overstromingsgevoelig | Geen |
| P-score | D |
| Voorkeurrecht | Ja |
| Totale oppervlakte (m²) | 220 |
| Bebouwde oppervlakte (m²) | 220 |
| Tuin oppervlakte (m²) | 74 |
| Oppervlakte terras (m²) | 21 |
| Oriëntatie tuin | Zuid |
Vergunning
| Vergunning | Vergunning beschikbaar |
|---|---|
| Verkavelingsvergunning | Vergunning beschikbaar |
Uitrusting
| Investeringspand | Nee |
|---|---|
| Geschikt voor praktijk | Nee |
| Parking | Ja |
| Garage | Ja |
| Thuiskantoor | Nee |
| Kelder | Nee |
| Zolder | Ja |
| Tuin | Ja |
| Terras | Ja |
| Lift | Nee |
| Rioolaansluiting | Ja |
| Gasaansluiting | Ja |
| Wateraansluiting | Ja |
| Elektriciteitsaansluiting | Ja |
| TV aansluiting | Ja |
| Internetaansluiting | Ja |
| Telefoonaansluiting | Ja |