Interessant renovatie- of ontwikkelingsproject!
€ 240.000
Een pand van M3 makelaars Zwijndrecht
Overzicht
- 192 m² bewoonbaar
- 154 m² grond
- 4 Slaapkamer(s)
- 1 Badkamer(s)
Beschrijving
Projectgrond / renovatiewoning met grote mogelijkheden – centrum Temse. Zoek je een project met potentieel? In de Hoogkamerstraat 88 bevindt zich een ruime woning met garage en tuin die dankzij haar ligging en bouwmogelijkheden veel perspectief biedt voor ontwikkelaars en investeerders.Troeven voor ontwikkeling; Breed perceel met bestaande bebouwing (4-5 slaapkamers, garage, tuin); Volgens BPA “Ter Cauwerburg nr. 5” kan je binnen de eerste 12 m diepte bouwen tot 2 bouwlagen + dakverdieping; In de zone voor complementaire woonfuncties mag 45 m² bebouwd worden in 1 bouwlaag met plat dak
Geschikt voor herontwikkeling of opsplitsing (onder voorbehoud vergunning). Technisch:EPC label F (959 kWh/m²/jaar) – renovatieverplichting van toepassing; G-score/P-score: A/A; Stedenbouwkundige inlichtingen: in aanvraag. Ideaal voor projectontwikkelaars of investeerders die op zoek zijn naar een centrale ligging met flexibele bouwmogelijkheden.
Ben je op zoek naar een karaktervol pand om jouw woonideeën of project tot leven te brengen? Contacteer ons voor een bezoek op 03 369 70 33 of 0465 00 38 27.
Geschikt voor herontwikkeling of opsplitsing (onder voorbehoud vergunning). Technisch:EPC label F (959 kWh/m²/jaar) – renovatieverplichting van toepassing; G-score/P-score: A/A; Stedenbouwkundige inlichtingen: in aanvraag. Ideaal voor projectontwikkelaars of investeerders die op zoek zijn naar een centrale ligging met flexibele bouwmogelijkheden.
Ben je op zoek naar een karaktervol pand om jouw woonideeën of project tot leven te brengen? Contacteer ons voor een bezoek op 03 369 70 33 of 0465 00 38 27.
Welkom in de Hoogkamerstraat 88 te Temse!
Deze woning is een volledig renovatieproject met bijzonder veel potentieel. De huidige indeling biedt tal van mogelijkheden om jouw droomwoning te creëren.
De huidige indeling is als volgt.
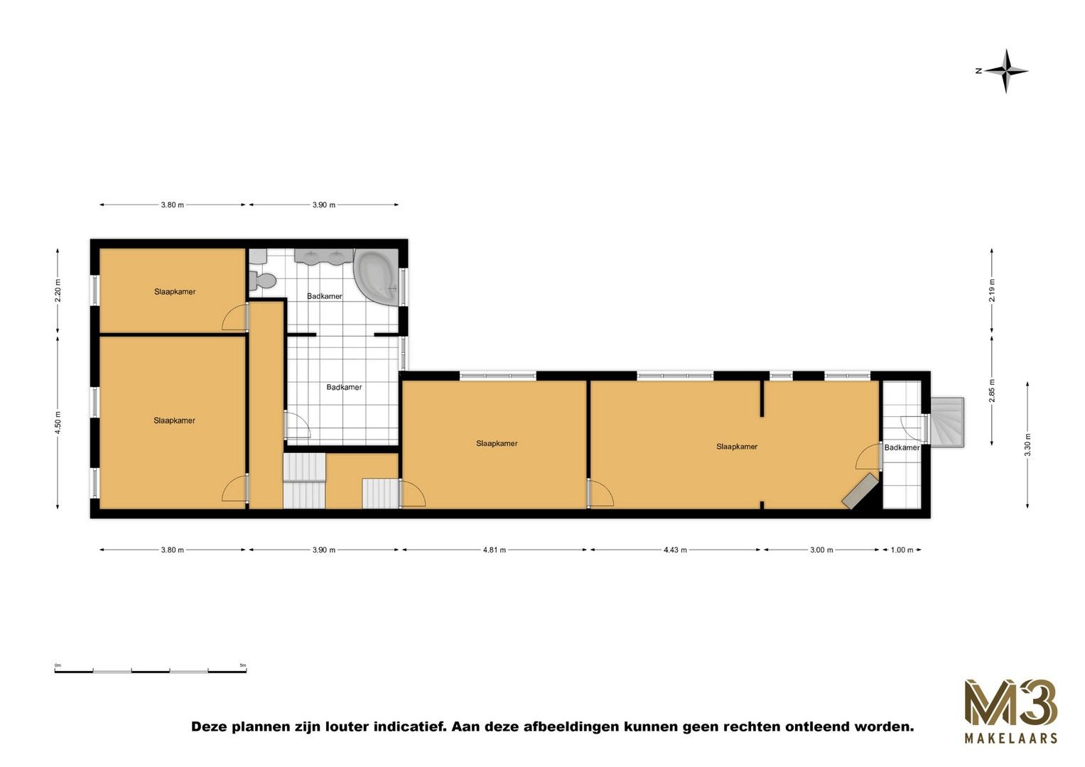
Via de ruime inkomhal van ca. 10 m² kom je binnen in een grote leefruimte van maar liefst 24 m², met zicht op de achterliggende koer. Aansluitend bevindt zich een afgesloten garage met poort — ideaal voor extra bergruimte of parking. Verder doorlopend komen we in een open ruimte van ca. 5 m² die toegang geeft tot een achterliggende ruimte. Deze kan perfect worden ingericht als ruime keuken met eetplaats, volledig naar eigen wens van 76m².
Op de eerste verdieping vinden we twee slaapkamers van respectievelijk 17 m² en 9 m². De badkamer is verdeeld over twee aansluitende ruimtes met een totaaloppervlakte van 17 m². Daarnaast is er nog een extra kamer die kan dienen als leefruimtes, bureau of studieruimte van 76m².
Via de trap bereiken we de tweede verdieping waar nog twee volwaardige slaapkamers van 13 m² en 10 m² aanwezig zijn.
Wil je dit gebouw eerder slopen en opnieuw starten, Moet je het BPA "Ter Cauwerburg Nr.5" d.d. 12/03/1996 volgen.
Het eigendom is gelegen in een zone voor wonen en complementaire woonfuncties.
De eerste 12 meter diepte (zone voor wonen) mogen 2 bouwlagen + een dakverdieping zijn (dakhelling tussen 35° en 45°)
In de zone voor complementaire woonfuncties mag nog 45 m2 bebouwd worden in 1 bouwlaag met plat dak.
Neem contact op voor de bijkomende voorschriften. Deze beperkte informatie geeft geen garantie op goedkeuring door de gemeentelijke diensten.
Technische info:
EPC: 959 kWh/m²/jaar (F-label)
Renovatieplicht van toepassing
G-P score: A&A
Stedenbouw: in aanvraag
Nuttige links:
Subsidies, premies en tegemoetkomingen:
Premiezoeker: Premies voor wonen en woningen in Vlaanderen | Premiezoeker
Subsidiemodule van het Vlaams Energie- en Klimaatagentschap: VEKA (energiesparen.be)
Simulator voor de Mijn VerbouwPremie: Simulator Mijn VerbouwPremie | VEKA (energiesparen.be)
Werken die in aanmerking komen voor de MijnVerbouwPremie: Werken die in aanmerking komen voor Mijn VerbouwPremie | Vlaanderen.be
Mijn VerbouwLening: Mijn VerbouwLening | Vlaanderen.be
Premies van Fluvius: Premies | Fluvius
Leningen voor energiebesparende investeringen en woningkwaliteit | Vlaanderen.beLeningen:
Actieplan Asbestafbouw (OVAM): Actieplan asbestafbouw (vlaanderen.be)
Ondernemingen erkend door de FOD WASO voor het uitvoeren van werkzaamheden volgens de couveusezakmethode en hermetische zone: Erkenning: Asbest: bedrijven erkend voor afbraak- of verwijderingswerken | Federale Overheidsdienst Werkgelegenheid, Arbeid en Sociaal Overleg (belgie.be)
Lijst met erkende asbestverwijderaars aangesloten bij het Asbestcharter (Bouwunie in samenwerking met OVAM): Asbestcharter (vinduwaannemer.be)
Premies en subsidies bij asbestverwijdering (Premiezoeker via de Vlaamse Overheid): Ondersteuning en subsidies bij asbestverwijdering – OVAM | Premiezoeker
Asbest correct (laten) verwijderen (OVAM): Asbest correct verwijderen (vlaanderen.be)
Wie mag wat verwijderen? (OVAM): Wie mag wat verwijderen (vlaanderen.be)
Wat is verboden? (OVAM): Wat is verboden? (vlaanderen.be)
Ben jij op zoek naar een renovatieproject met karakter en mogelijkheden? Maak snel een afspraak en ontdek zelf het potentieel van deze woning op 03 369 70 33 of 0465 00 38 27.
Deze woning is een volledig renovatieproject met bijzonder veel potentieel. De huidige indeling biedt tal van mogelijkheden om jouw droomwoning te creëren.
De huidige indeling is als volgt.
Via de ruime inkomhal van ca. 10 m² kom je binnen in een grote leefruimte van maar liefst 24 m², met zicht op de achterliggende koer. Aansluitend bevindt zich een afgesloten garage met poort — ideaal voor extra bergruimte of parking. Verder doorlopend komen we in een open ruimte van ca. 5 m² die toegang geeft tot een achterliggende ruimte. Deze kan perfect worden ingericht als ruime keuken met eetplaats, volledig naar eigen wens van 76m².
Op de eerste verdieping vinden we twee slaapkamers van respectievelijk 17 m² en 9 m². De badkamer is verdeeld over twee aansluitende ruimtes met een totaaloppervlakte van 17 m². Daarnaast is er nog een extra kamer die kan dienen als leefruimtes, bureau of studieruimte van 76m².
Via de trap bereiken we de tweede verdieping waar nog twee volwaardige slaapkamers van 13 m² en 10 m² aanwezig zijn.
Wil je dit gebouw eerder slopen en opnieuw starten, Moet je het BPA "Ter Cauwerburg Nr.5" d.d. 12/03/1996 volgen.
Het eigendom is gelegen in een zone voor wonen en complementaire woonfuncties.
De eerste 12 meter diepte (zone voor wonen) mogen 2 bouwlagen + een dakverdieping zijn (dakhelling tussen 35° en 45°)
In de zone voor complementaire woonfuncties mag nog 45 m2 bebouwd worden in 1 bouwlaag met plat dak.
Neem contact op voor de bijkomende voorschriften. Deze beperkte informatie geeft geen garantie op goedkeuring door de gemeentelijke diensten.
Technische info:
EPC: 959 kWh/m²/jaar (F-label)
Renovatieplicht van toepassing
G-P score: A&A
Stedenbouw: in aanvraag
Nuttige links:
Subsidies, premies en tegemoetkomingen:
Premiezoeker: Premies voor wonen en woningen in Vlaanderen | Premiezoeker
Subsidiemodule van het Vlaams Energie- en Klimaatagentschap: VEKA (energiesparen.be)
Simulator voor de Mijn VerbouwPremie: Simulator Mijn VerbouwPremie | VEKA (energiesparen.be)
Werken die in aanmerking komen voor de MijnVerbouwPremie: Werken die in aanmerking komen voor Mijn VerbouwPremie | Vlaanderen.be
Mijn VerbouwLening: Mijn VerbouwLening | Vlaanderen.be
Premies van Fluvius: Premies | Fluvius
Leningen voor energiebesparende investeringen en woningkwaliteit | Vlaanderen.beLeningen:
Actieplan Asbestafbouw (OVAM): Actieplan asbestafbouw (vlaanderen.be)
Ondernemingen erkend door de FOD WASO voor het uitvoeren van werkzaamheden volgens de couveusezakmethode en hermetische zone: Erkenning: Asbest: bedrijven erkend voor afbraak- of verwijderingswerken | Federale Overheidsdienst Werkgelegenheid, Arbeid en Sociaal Overleg (belgie.be)
Lijst met erkende asbestverwijderaars aangesloten bij het Asbestcharter (Bouwunie in samenwerking met OVAM): Asbestcharter (vinduwaannemer.be)
Premies en subsidies bij asbestverwijdering (Premiezoeker via de Vlaamse Overheid): Ondersteuning en subsidies bij asbestverwijdering – OVAM | Premiezoeker
Asbest correct (laten) verwijderen (OVAM): Asbest correct verwijderen (vlaanderen.be)
Wie mag wat verwijderen? (OVAM): Wie mag wat verwijderen (vlaanderen.be)
Wat is verboden? (OVAM): Wat is verboden? (vlaanderen.be)
Ben jij op zoek naar een renovatieproject met karakter en mogelijkheden? Maak snel een afspraak en ontdek zelf het potentieel van deze woning op 03 369 70 33 of 0465 00 38 27.
Energie
![]() |
- EPC Certificaat: 20221012-0002695304-RES-1
- Energieverbruik: 959 kWh/m²/jaar
- E-peil: E0
- Beglazing: Onbekend
Let op, de renovatieverplichting in Vlaanderen verplicht de koper om deze woning na aankoop te renoveren tot een betere energieprestatie. Lees er alles over in dit artikel
Extra budget nodig voor je renovatie?
De overheid helpt je dit pand energetisch te renoveren! Hieronder zie je het premiebedrag dat je mogelijks van de overheid krijgt.
Het huidige EPC-label is:

Op de kaart

Financieel
Prijs | |
---|---|
Kadastraal inkomen (niet geïndexeerd) | € 708 |
Berekening kosten
Je aankoopkosten? Die heb je snel berekent via de knop hieronder.
Bijkomende info
Gebouw
Bouwjaar | 1935 |
---|---|
Renovatie jaar | 1999 |
Staat | Te renoveren |
Bewoonbaar (m²) | 192 |
Badkamers | 1 |
Slaapkamers | 4 |
Verdiepingen | 0 |
Garages | 0 |
Parkeerplaatsen | 0 |
Toiletten | 0 |
Faciliteiten
Septische tank | Nee |
---|
Perceel
Overstromingsgevoelig | Geen |
---|---|
P-score | A |
G-score | A |
Totale oppervlakte (m²) | 154 |
Bebouwde oppervlakte (m²) | 0 |
Oriëntatie tuin | Noord |
Vergunning
Verkavelingsvergunning | Geen beschikbaar |
---|
Uitrusting
Investeringspand | Nee |
---|---|
Parking | Nee |
Garage | Nee |
Lift | Nee |
Rioolaansluiting | Ja |
Gasaansluiting | Nee |
Wateraansluiting | Ja |
Elektriciteitsaansluiting | Ja |
Internetaansluiting | Nee |
Telefoonaansluiting | Nee |
Zonnepanelen | Nee |
Zonneboiler | Nee |
Alarm | Nee |
Videofoon | Nee |
Grondwaterput | Nee |
Een pand van
M3 makelaars Zwijndrecht
Uw betrouwbare partner bij de verkoop van vastgoed in en rond Antwerpen en het Waasland.
Als erkende vastgoedmakelaar met kantoren in en rond Antwerpen en het Waasland, zijn wij gespecialiseerd in het begeleiden van verkopers bij de verkoop van hun woning of appartement. Onze uitgebreide dienstverlening omvat alle aspecten van het verkoopproces, van het opstellen van het verkoopdossier tot het afsluiten van de verkoopovereenkomst. Wij zorgen voor een doeltreffende promotie van uw eigendom op diverse kanalen en staan garant voor persoonlijk advies en grondige marktkennis.
Bij ons kunt u rekenen op een sterke lokale verankering en een à la carte dienstverlening. Wij bieden u de keuze uit drie verschillende menu's die elk op maat worden samengesteld om aan uw specifieke behoeften te voldoen. Zo kunt u optimaal profiteren van onze expertise en ondersteuning bij de verkoop van uw eigendom.
Onze grootste troef is dat wij u alle zorgen uit handen nemen en u ontzorgen bij het volledige verkoopproces. Wij werken nauw met u samen en zorgen voor een transparante en open communicatie gedurende het gehele proces.
Bij ons bent u verzekerd van een betrouwbare en professionele aanpak bij de verkoop van uw woning of appartement.
Neem snel contact met onze lokale makelaars.
Hoogkamerstraat 88C
Leer meer over vastgoed
11 June 2025
Huis kopen met bouwovertreding? Dit moet je weten
11 May 2025
Renoveren? Vraag je Mijn VerbouwPremie aan
22 April 2025
Je allereerste renovatieproject selecteren én budgetteren: met de praktische hulp van Spotto
17 February 2025