Te renoveren gezinswoning met ruime tuin in de dorpskern van De Klinge
€ 199.000
Een pand van Finhomes Vastgoed & Advies
Overzicht
- 170 m² bewoonbaar
- 417 m² grond
- 3 Slaapkamer(s)
- 1 Badkamer(s)
- 1 Toilet(ten)
- 1 Tuin
- 1 Garage(s)
Beschrijving
Te renoveren gezinswoning met ruime tuin in de dorpskern van De Klinge
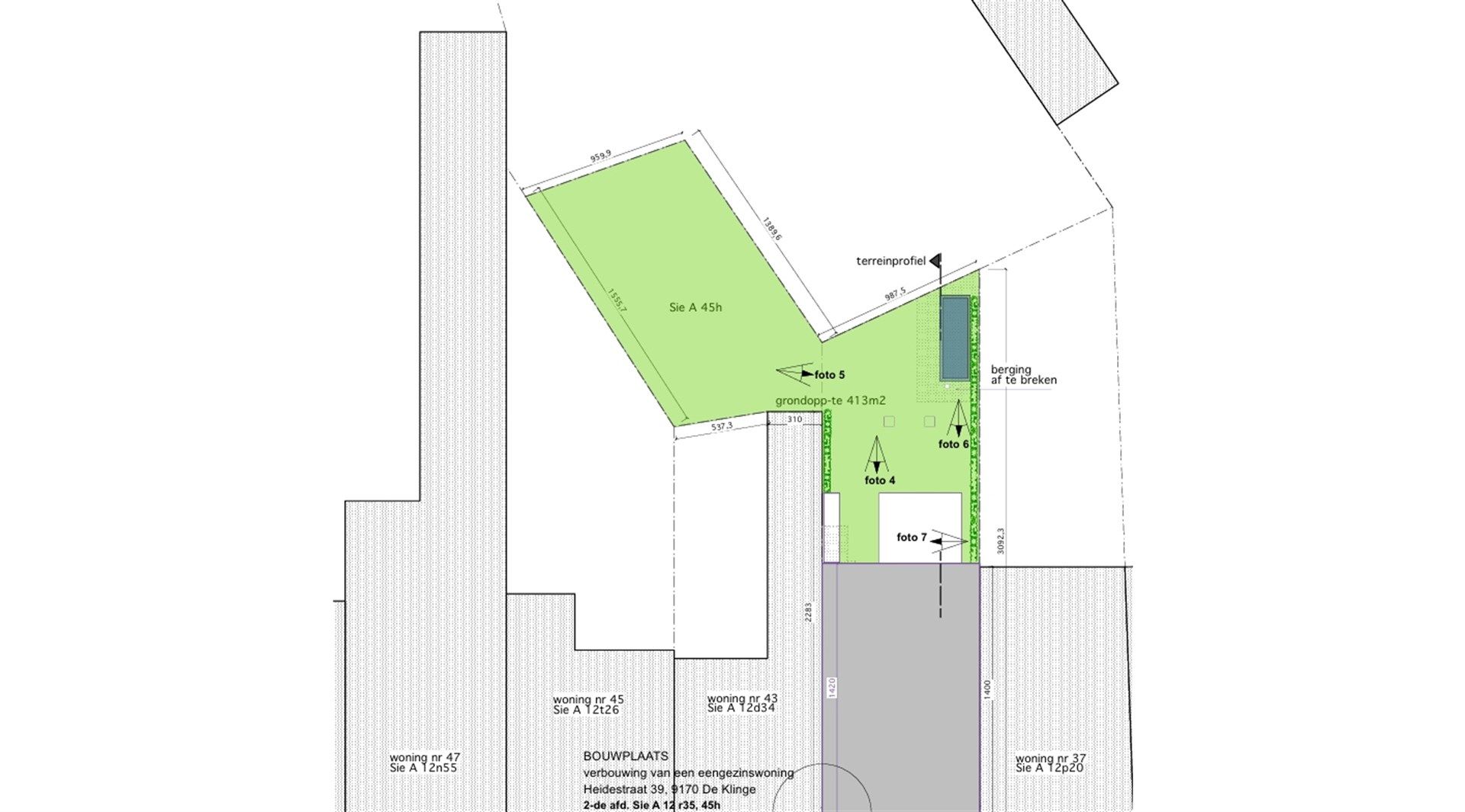
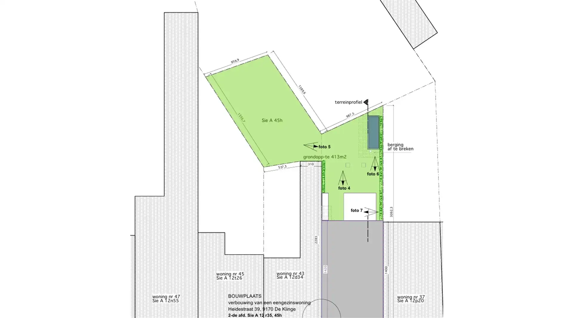
Dit betreft een uitstekend gelegen renovatiewoning met 3 slaapkamers op een perceel van 417m² en een goedgekeurde vergunning om de woning te renoveren.
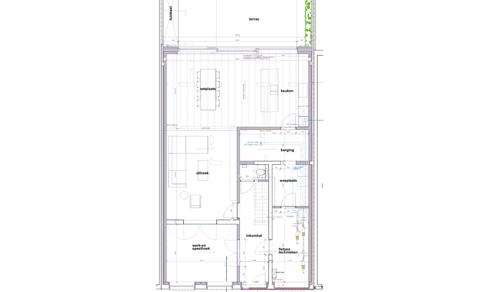
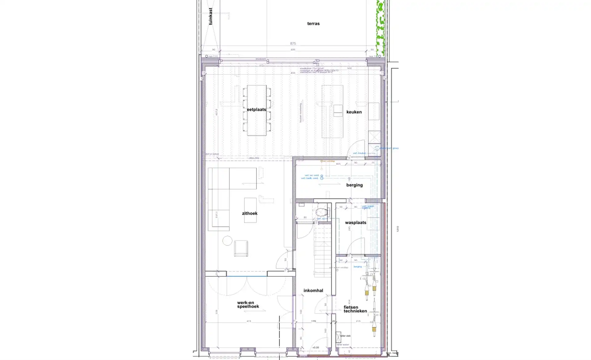
De woning beschikt over een ruim en dynamisch vloerplan en biedt tal van opties naar renovaties toe, zie vergunde planning bij foto's.
De centrale ligging op wandelafstand van alle lokale faciliteiten, de mogelijkheid tot creëren ruimte praktijk/ vrij beroep en de verkregen vergunning met bouwplannen zijn slechts enkele van de vele troeven die deze woning te bieden heeft.
Gelijkvloers:
Inkomhal met spenderberging.
Leefruimte met oude voorziening voor een gaskachel.
Keuken.
Eetkamer.
Badkamer voorzien van een bad/douche & een enkel lavabomeubel.
Bergruimte.
Garage.
Ruime tuin van 250m².
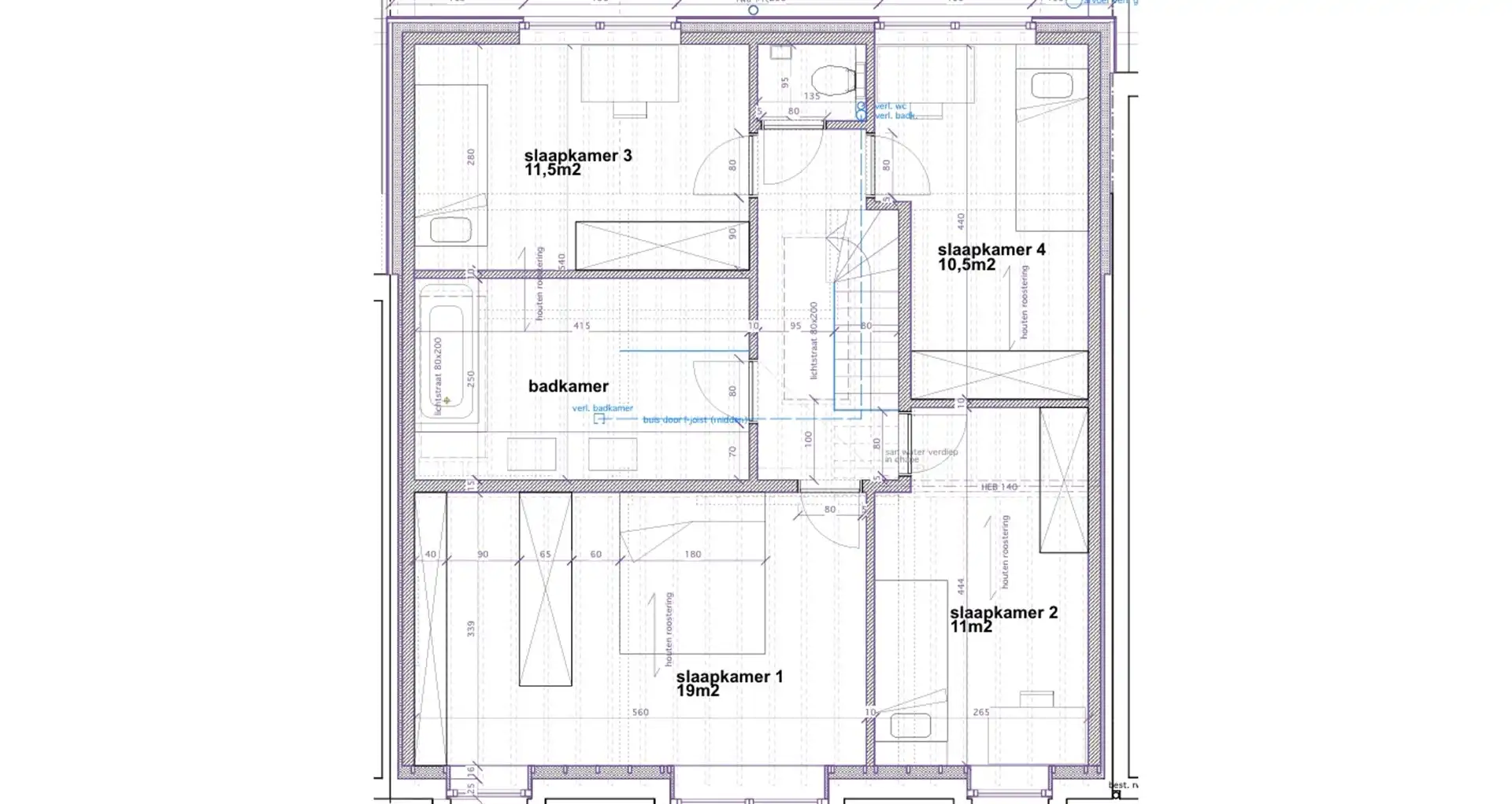
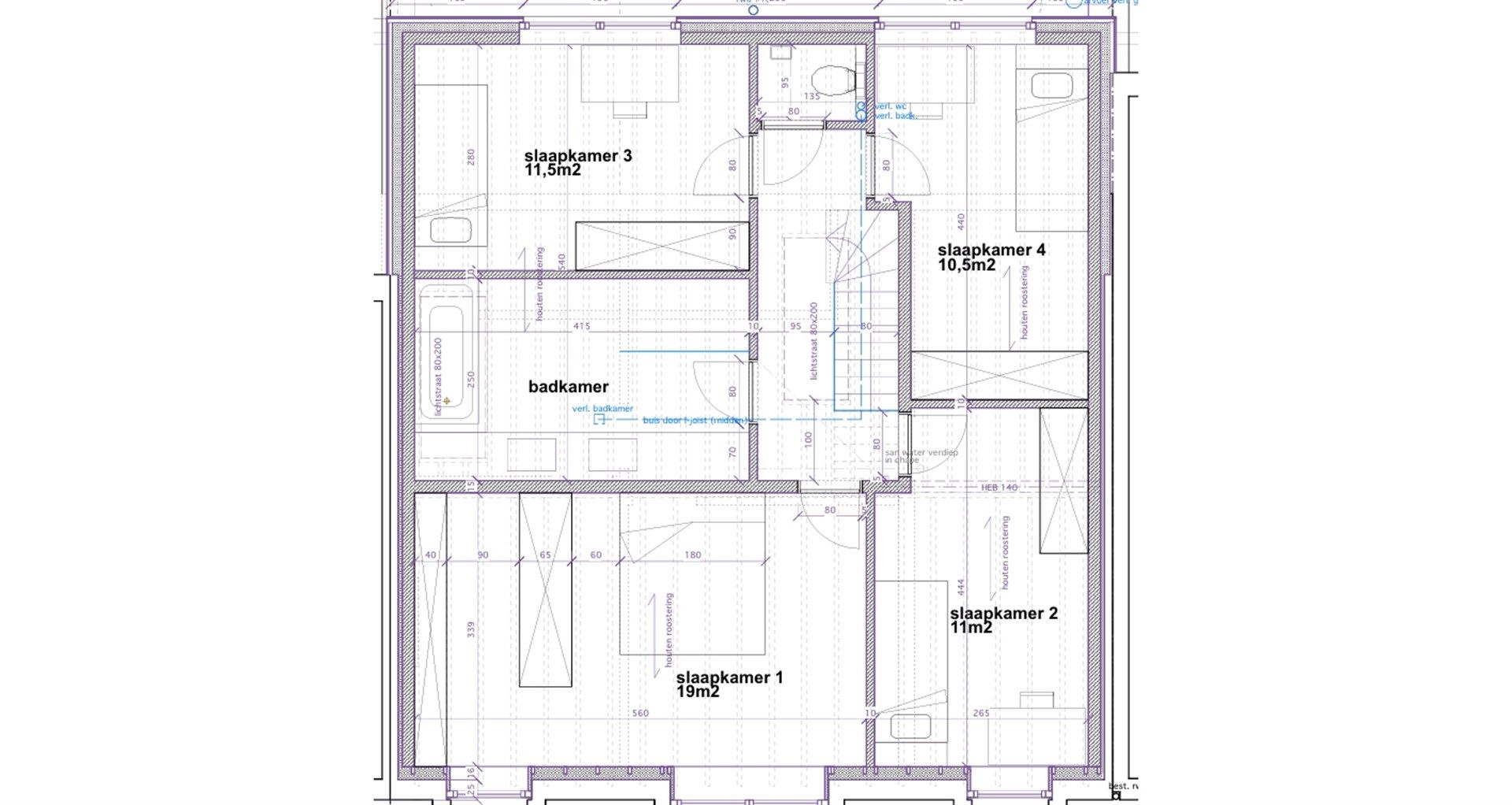
1e verdieping:
3 slaapkamers (11m², 12m² & 18m²).
Ruimte met wastafel.
EXTRA
Bouwjaar 1930.
Verwarming via gaskachels vroeger.
Houten beglazing.
Elektriciteit niet conform.
Vergunning toegekend voor verbouwingen & uitbreidingen, zie einde foto's.
Zeer veel mogelijkheden naar renovatie toe.
In de directe omgeving (wandelafstand) van bos en natuur.
Uitstekend gelegen op wandelafstand van winkels, scholen en openbaar vervoer.
Vlotte verbindingsmogelijkheden via E34 (Antwerpen-Gent) & Hulst.
Deze woning wordt onderworpen aan de renovatieverplichting van de Vlaamse overheid voor residentiële gebouwen.
EPC: 664 kWh/m² - label F
Wg - Gv - Gvv - Gvkr - Gmo
Energie
- E-peil: E0
- Verwarming: Gas
- Beglazing: Enkel
Op de kaart

Financieel
| Prijs | |
|---|---|
| Kadastraal inkomen (niet geïndexeerd) | € 463 |
| Kadastraal inkomen (geïndexeerd) | € 0 |
Berekening kosten
Je aankoopkosten? Die heb je snel berekent via de knop hieronder.
Bijkomende info
Gebouw
| Bouwjaar | 1930 |
|---|---|
| Staat | Op te frissen |
| Bouwcertificaat | Nee |
| Bewoonbaar (m²) | 170 |
| Verdieping | 0 |
| Gevelbreedte | 9 |
| Badkamers | 1 |
| Slaapkamers | 3 |
| Verdiepingen | 0 |
| Garages | 1 |
| Parkeerplaatsen | 1 |
| Doucheruimtes | 0 |
| Toiletten | 1 |
Faciliteiten
| Keuken uitrusting | Standaard |
|---|---|
| Materiaal ramenomlijstingen | Hout |
| Beglazing | Enkel |
| Brandstof primaire verwarming | Gas |
| Elektrisch keuringsattest | Nee |
Perceel
| Diepte (m) | 27 |
|---|---|
| Breedte (m) | 9 |
| Overstromingsgevoelig | Geen |
| P-score | A |
| G-score | A |
| Voorkeurrecht | Nee |
| Totale oppervlakte (m²) | 417 |
| Bebouwde oppervlakte (m²) | 135 |
| Tuin oppervlakte (m²) | 250 |
| Oppervlakte terras (m²) | 0 |
| Oriëntatie tuin | Noordwest |
Vergunning
| Vergunning | Vergunning beschikbaar |
|---|---|
| Verkavelingsvergunning | Geen beschikbaar |
Uitrusting
| Investeringspand | Nee |
|---|---|
| Geschikt voor praktijk | Nee |
| Parking | Ja |
| Garage | Ja |
| Thuiskantoor | Nee |
| Kelder | Ja |
| Zolder | Nee |
| Tuin | Ja |
| Terras | Nee |
| Lift | Nee |
| Rioolaansluiting | Ja |
| Gasaansluiting | Ja |
| Wateraansluiting | Ja |
| Elektriciteitsaansluiting | Ja |
| TV aansluiting | Ja |
| Internetaansluiting | Ja |
| Telefoonaansluiting | Ja |