> Te koop > Sint-Gillis-Waas > Appartement > Appartement met terras
Nieuw

Appartement met terras

Een pand van AC vastgoed

Volledige aanbod

Overzicht


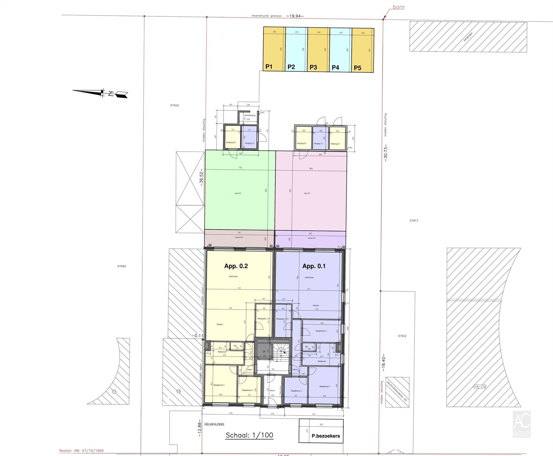
  • 111 m² bewoonbaar
  • 2 Slaapkamer(s)
  • 1 Badkamer(s)
  • 1 Toilet(ten)

Beschrijving


Ontdek de luxe en het comfort van dit landelijk gelegen nieuwbouwproject.

Met nog slechts 3 beschikbare appartementen, mag u er gerust snel bij zijn om jouw stekje in deze kleinschalige residentie te claimen.



Ben je op zoek naar een nieuwbouw waar stijl en comfort samenkomen? Dan zijn deze luxe appartementen precies wat je zoekt! Gelegen in een groene omgeving, doch in de nabijheid van diverse buurtwinkels, bieden ze de perfecte balans tussen hedendaags comfort en een landelijke omgeving waar u tot rust kan komen.



Waarom kiezen voor deze appartementen?

Hoogwaardige afwerking, een slimme indeling van de ruimtes met veel lichtinval, duurzame materialen, individuele zonnepanelen, een warmtepomp, een goed ventilatiesysteem, en mooie buitenruimtes vormen dé ingrediënten voor jouw ideale thuis.

Met een E-Peil van maximaal E20 geniet je vijf jaar lang van 50% korting op de onroerende voorheffing. Goed voor je portemonnee en het milieu!



Extra Voordelen:

- Een vaste aankoopprijs.

- Kies zelf jouw keuken, badkamer, vloer en binnendeuren en werk helemaal naar eigen smaak af.

- Verlaagd BTW-tarief van 6% mogelijk. Vraag naar de voorwaarden.

- Er is een parking (13.500€) en externe berging (4.500€) per appartement voorzien.



De ruwbouwwerken zijn al goed gevorderd, zo staat het gebouw reeds water- en winddicht!



Neem snel contact op voor meer info of een plaatsbezoek!

Energie


  • E-peil: E20
  • Beglazing: Standaard dubbel

Op de kaart


map placeholder

Financieel


Prijs € 337.000
Kadastraal inkomen (niet geïndexeerd) € 0
Kadastraal inkomen (geïndexeerd) € 0

Bijkomende info


Gebouw
Bouwjaar 2024
Bouwcertificaat Nee
Bewoonbaar (m²) 111
Verdieping 2
Gevelbreedte 8
Badkamers 1
Slaapkamers 2
Verdiepingen 2
Garages 0
Parkeerplaatsen 0
Doucheruimtes 0
Toiletten 1
Faciliteiten
Keuken uitrusting Luxueus uitgerust
Materiaal ramenomlijstingen PVC
Beglazing Standaard dubbel
Elektrisch keuringsattest Ja
Perceel
Overstromingsgevoelig Geen
P-score A
G-score A
Voorkeurrecht Nee
Bebouwde oppervlakte (m²) 0
Tuin oppervlakte (m²) 0
Oppervlakte terras (m²) 13
Oriëntatie tuin Oost
Vergunning
Vergunning Vergunning beschikbaar
Verkavelingsvergunning Geen beschikbaar
Uitrusting
Investeringspand Nee
Geschikt voor praktijk Nee
Parking Nee
Garage Nee
Thuiskantoor Nee
Kelder Nee
Zolder Ja
Tuin Nee
Terras Ja
Lift Ja
Rioolaansluiting Ja
Gasaansluiting Nee
Wateraansluiting Ja
Elektriciteitsaansluiting Ja
TV aansluiting Ja
Internetaansluiting Ja
Telefoonaansluiting Nee
Appartementsblok
Aantal verdiepingen 2
Lift Ja

Een pand van


AC vastgoed
Logo van makelaar: AC vastgoed
Vastgoed, op zijn best.
Jouw huis verkopen of een nieuwe woning aankopen? Wij helpen je, maar niet op grootmoeders wijze. Traditioneel, jawel, maar dan veel straffer dan je gewoon bent. We laten vastgoed viraal gaan en de verkoopcijfers knallen. Kom eens langs, we leggen je graag uit hoe jij voordeel haalt uit onze samenwerking.
Logo van makelaar: AC vastgoed
Kuizendijkstraat 13 - APP 2.1
Appartement met terras foto {{pictureIndex}}

Appartement met terras

€ 337.000

Kluizendijkstraat 13-APP2.1 - 9170 Sint-Gillis-Waas

Bezoek het pand

Vul jouw contactgegevens hieronder in en de makelaar contacteert je.

Leer meer over vastgoed

11 June 2025
Huis kopen met bouwovertreding? Dit moet je weten
11 May 2025
Renoveren? Vraag je Mijn VerbouwPremie aan
22 April 2025
Je allereerste renovatieproject selecteren én budgetteren: met de praktische hulp van Spotto
17 February 2025
Levenslang wonen: slaapkamer inrichten voor nieuwe invulling