Residentie ARBOR - Ruim dakappartement van 131m² met 2 slaapakamers en aangenaam vloerplan
€ 409.000
Een pand van Finhomes Vastgoed & Advies
Jouw zoektocht
Overzicht
- 131 m² bewoonbaar
- 2 Slaapkamer(s)
- 1 Badkamer(s)
- 1 Toilet(ten)
- 1 Tuin
Beschrijving
Residentie Arbor - Zandstraat 67-69 Sint-Pauwels
|MOGELIJKHEID TOT AANKOOP AAN 6% BTW, INFORMEER NAAR DE VOORWAARDEN!|
Dit betreft een aantrekkelijke nieuwbouwresidentie bestaande uit 11 energiezuinige doorzonappartementen (BEN) telkens uitgetekend met een individueel en functioneel vloerplan & voorzien van aangename tuintjes en terrassen.
De hedendaagse architectuur met functionele vloerplannen, het zorgvuldig uitgewerkte inplantingsplan met veel groen en de topscore qua energiezuinigheid met o.a. warmtepomp o.b.v. diepteboring zijn slechts enkele van de vele troeven die dit project te bieden heeft.
Gelegen aan de N403 Sint-Niklaas-Hulst biedt deze nieuwbouwresidentie de perfecte combinatie tussen centraal wonen op een vlot bereikbare locatie én de directe aanwezigheid van een mooie natuurzone aan de achterzijde.
Deze nabijgelegen fiets- & wandelpaden zijn direct bereikbaar via de Vinderhoutweg/Grouwesteenstraat aansluitend aan de gemeenschappelijk tuin van de site.
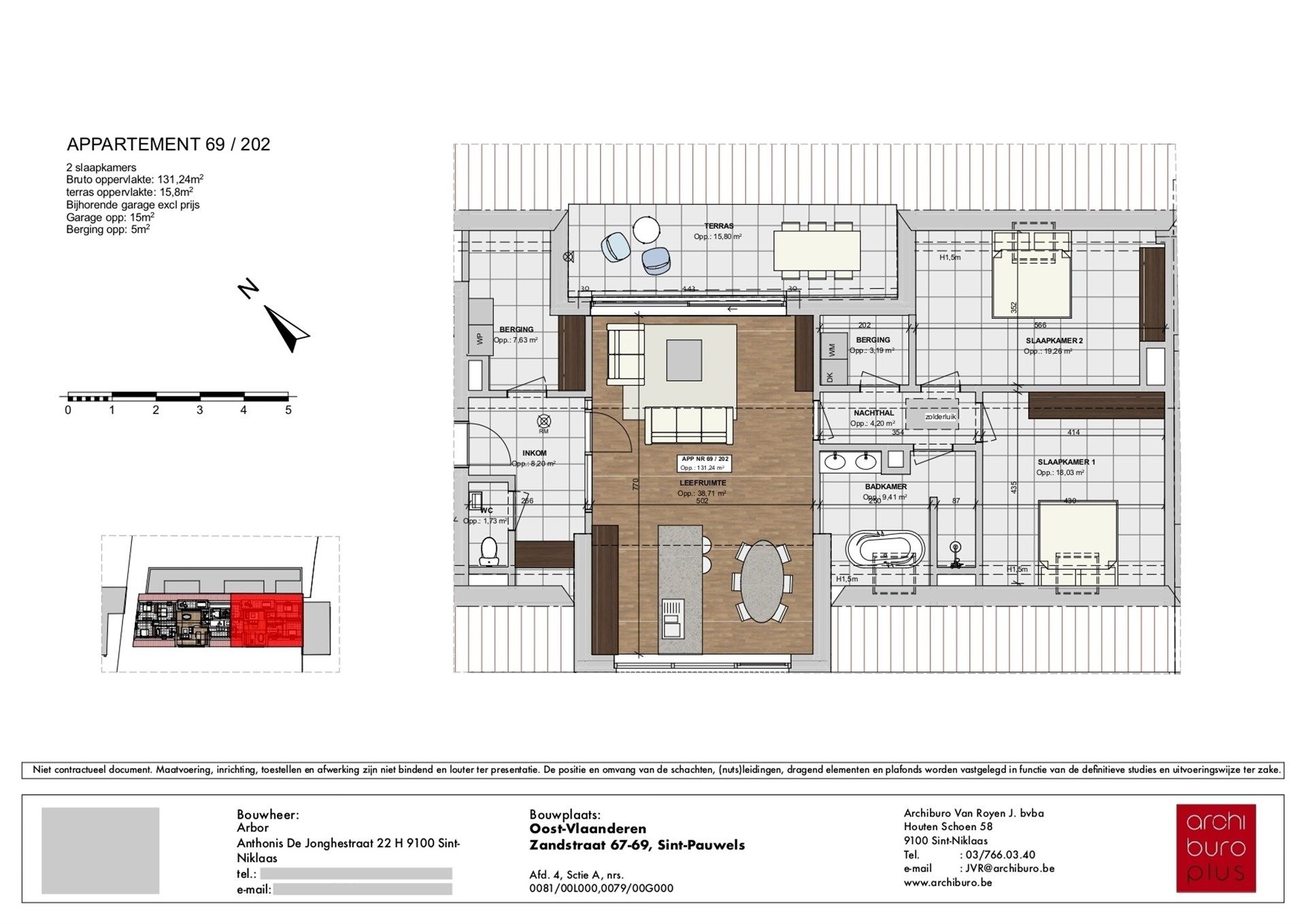
INDELING APPARTEMENT 202 (131m²):
2e verdieping:
Inkomhal gastentoilet en ruimte voor vestiaire.
Woonkamer met open keuken en toegang tot/zicht op terras (16m²).
2 grote slaapkamers.
Badkamer met ruimte voor ligbad, inloopdouche en dubbel lavabomeubel.
2 ruime bergingen.
Carport met aansluitende privé berging (+ € 19.000).
EXTRA INFO
Afgewerkt tot aan pleisterwerken, verdere afwerking op maat van de klant inbegrepen in prijs.
Mogelijkheid tot aankoop aan 6% BTW, informeer naar de voorwaarden.
Hedendaags project met mooi inplantings & omgevingsplan.
Lichte & aangename woonruimten door de mooie glaspartijen.
Vloerverwarming via warmtepomp op basis van diepteboring (Geothermie).
Aangename privé tuintjes en terrassen.
Centraal gelegen op de N403 op een vlot bereikbare locatie.
Uitstekende uitvalsbasis voor zowel Antwerpen als Gent maar ook voor Sint-Niklaas & Hulst met de nabijheid van zowel E34 als N403.
Carports voorzien met aansluitende individuele bergingen.
Carport + berging verplicht mee aan te kopen voor € 19.000.
Prijzen exclusief aankoopkosten.
Maak een vrijblijvende afspraak om het appartement te bezoeken.
E peil 26
Wg - Vg - Gvv - Gvkr - Gmo
Energie
![]() |
- E-peil: E26
- Beglazing: Standaard dubbel
Op de kaart

Financieel
| Prijs | |
|---|---|
| Kadastraal inkomen (niet geïndexeerd) | € 0 |
| Kadastraal inkomen (geïndexeerd) | € 0 |
Berekening kosten
Je aankoopkosten? Die heb je snel berekend via de knop hieronder.
Bijkomende info
Gebouw
| Bouwjaar | 2025 |
|---|---|
| Staat | Nieuw |
| Bouwcertificaat | Nee |
| Bewoonbaar (m²) | 131 |
| Verdieping | 2 |
| Badkamers | 1 |
| Slaapkamers | 2 |
| Verdiepingen | 2 |
| Garages | 0 |
| Parkeerplaatsen | 1 |
| Doucheruimtes | 0 |
| Toiletten | 1 |
Faciliteiten
| Keuken uitrusting | Luxueus uitgerust |
|---|---|
| Materiaal ramenomlijstingen | Aluminium |
| Beglazing | Standaard dubbel |
| Elektrisch keuringsattest | Ja |
Perceel
| Overstromingsgevoelig | Geen |
|---|---|
| P-score | A |
| G-score | A |
| Voorkeurrecht | Nee |
| Bebouwde oppervlakte (m²) | 0 |
| Tuin oppervlakte (m²) | 0 |
| Oppervlakte terras (m²) | 16 |
| Oriëntatie tuin | Noordoost |
Vergunning
| Vergunning | Vergunning beschikbaar |
|---|---|
| Verkavelingsvergunning | Geen beschikbaar |
Uitrusting
| Investeringspand | Nee |
|---|---|
| Geschikt voor praktijk | Nee |
| Parking | Ja |
| Garage | Nee |
| Thuiskantoor | Nee |
| Kelder | Nee |
| Zolder | Nee |
| Tuin | Ja |
| Terras | Ja |
| Lift | Ja |
| Rioolaansluiting | Ja |
| Gasaansluiting | Nee |
| Wateraansluiting | Ja |
| Elektriciteitsaansluiting | Ja |
| TV aansluiting | Ja |
| Internetaansluiting | Ja |
| Telefoonaansluiting | Ja |
Appartementsblok
| Naam residentie | Arbor |
|---|---|
| Aantal verdiepingen | 2 |
| Lift | Ja |
