verzorgde woning met brede oprit en garage
€ 289.000
Een pand van Van Hoye Vastgoed
Overzicht
- 100 m² bewoonbaar
- 350 m² grond
- 2 Slaapkamer(s)
- 1 Badkamer(s)
- 1 Toilet(ten)
- 1 Tuin
- 1 Garage(s)
Beschrijving
Centraal gelegen starterswoning of opbrengsteigendom met garage en tuintje op grond van 350 m²
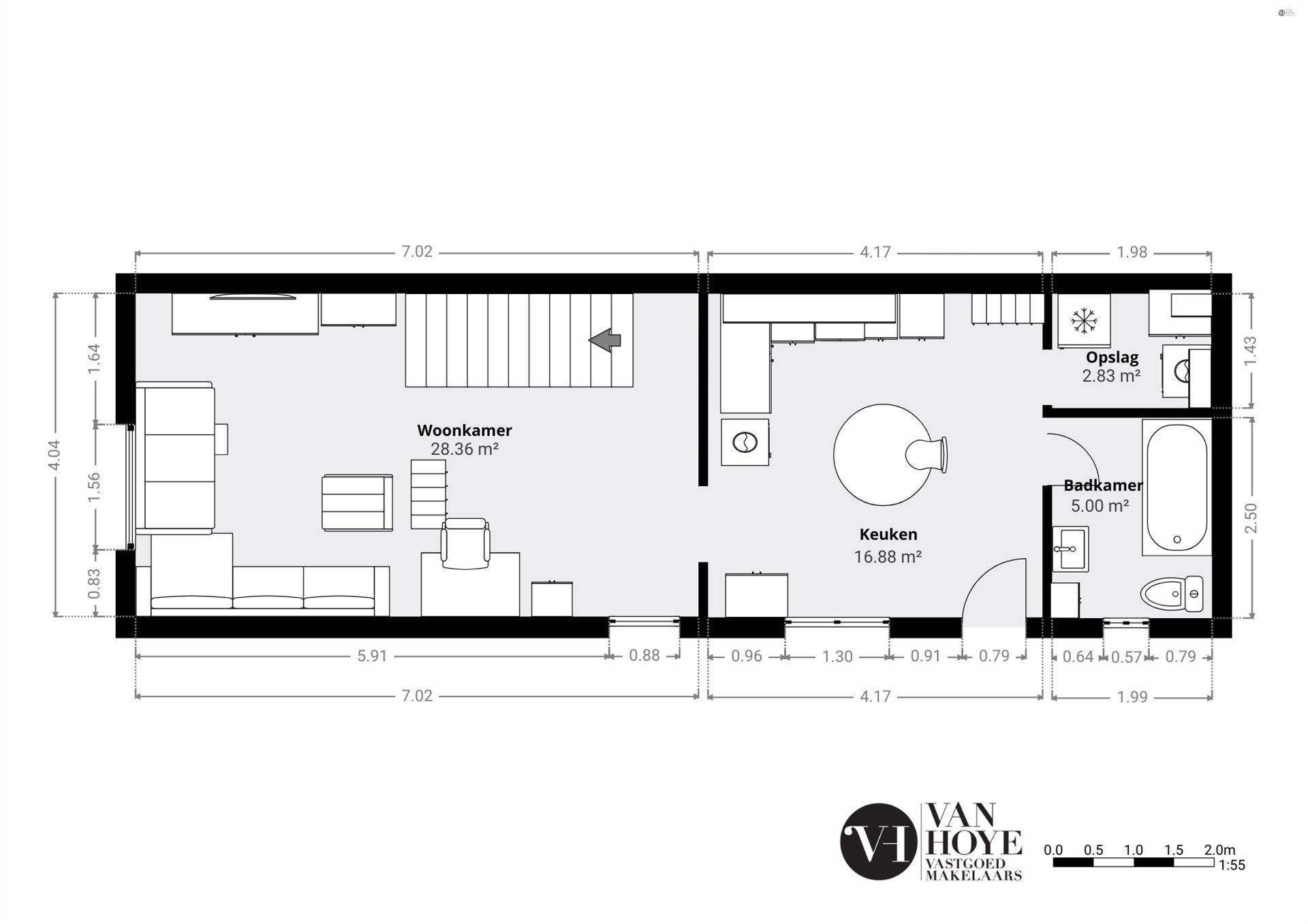
Het gelijkvloers bestaat uit een woonkamer van 30 m², een verzorgde keuken (koelkast, kookvuur op gas, oven en dampkap), aansluitend berging en badkamer met ligbad, lavabo en toilet. Op de verdieping zijn er 2 slaapkamers van 14,50 m² en 11,24 m². Achter de garage / werkplaats van 6 x 5,25 meter is er een interessante stadstuin.
De woning is gelegen op fietsafstand van het centrum van Stekene en biedt nog mogelijkheden naar uitbreiding toe.
Momenteel is het EPC label F, maar op eenvoudige manier aan te passen naar label C. Dit indien de volledige woning zou verwarmd worden door lucht-lucht warmtepompen met label A+. Hiervoor kan een labelpremie worden aangevraagd.
Bijzonderheden: elektriciteit conform, asbestattest met slechts één kleine opmerking, pomp voor grondwater, ....
Energie
![]() |
- Energieverbruik: 677 kWh/m²/jaar
- E-peil: E677
- Beglazing: Standaard dubbel
Extra budget nodig voor je renovatie?

Op de kaart

Financieel
| Prijs | |
|---|---|
| Kadastraal inkomen (niet geïndexeerd) | € 0 |
| Kadastraal inkomen (geïndexeerd) | € 0 |
Berekening kosten
Je aankoopkosten? Die heb je snel berekent via de knop hieronder.
Bijkomende info
Gebouw
| Staat | Goed onderhouden |
|---|---|
| Bouwcertificaat | Nee |
| Bewoonbaar (m²) | 100 |
| Verdieping | 0 |
| Gevelbreedte | 4.5 |
| Badkamers | 1 |
| Slaapkamers | 2 |
| Verdiepingen | 0 |
| Garages | 1 |
| Parkeerplaatsen | 3 |
| Doucheruimtes | 0 |
| Toiletten | 1 |
Faciliteiten
| Keuken uitrusting | Luxueus uitgerust |
|---|---|
| Materiaal ramenomlijstingen | Hout |
| Beglazing | Standaard dubbel |
| Elektrisch keuringsattest | Ja |
Perceel
| Diepte (m) | 34 |
|---|---|
| Breedte (m) | 10 |
| Overstromingsgevoelig | Geen |
| P-score | A |
| G-score | A |
| Voorkeurrecht | Nee |
| Totale oppervlakte (m²) | 350 |
| Bebouwde oppervlakte (m²) | 62 |
| Tuin oppervlakte (m²) | 103 |
| Oppervlakte terras (m²) | 30 |
| Oriëntatie tuin | Noordoost |
Vergunning
| Vergunning | Vergunning beschikbaar |
|---|
Uitrusting
| Investeringspand | Nee |
|---|---|
| Geschikt voor praktijk | Nee |
| Parking | Ja |
| Garage | Ja |
| Thuiskantoor | Nee |
| Kelder | Nee |
| Zolder | Nee |
| Tuin | Ja |
| Terras | Ja |
| Lift | Nee |
| Rioolaansluiting | Nee |
| Gasaansluiting | Nee |
| Wateraansluiting | Nee |
| Elektriciteitsaansluiting | Nee |
| TV aansluiting | Nee |
| Internetaansluiting | Nee |
| Telefoonaansluiting | Nee |



