BEN nieuwbouw woning met 3 slp en garage op perceel van 320m² (ruwbouw winddicht)
€ 443.000
Een pand van Van Hoye Vastgoed
Overzicht
- 170 m² bewoonbaar
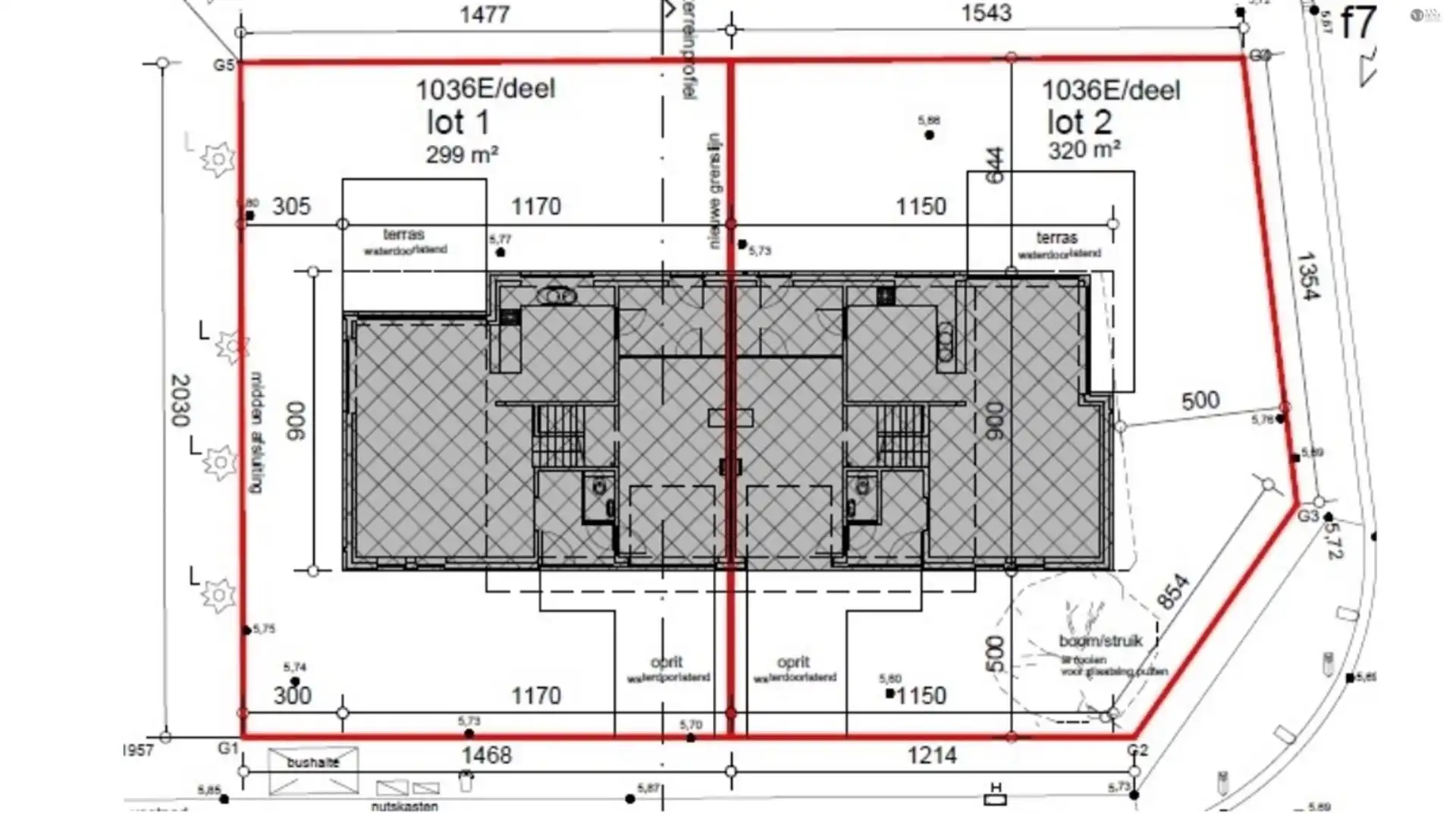
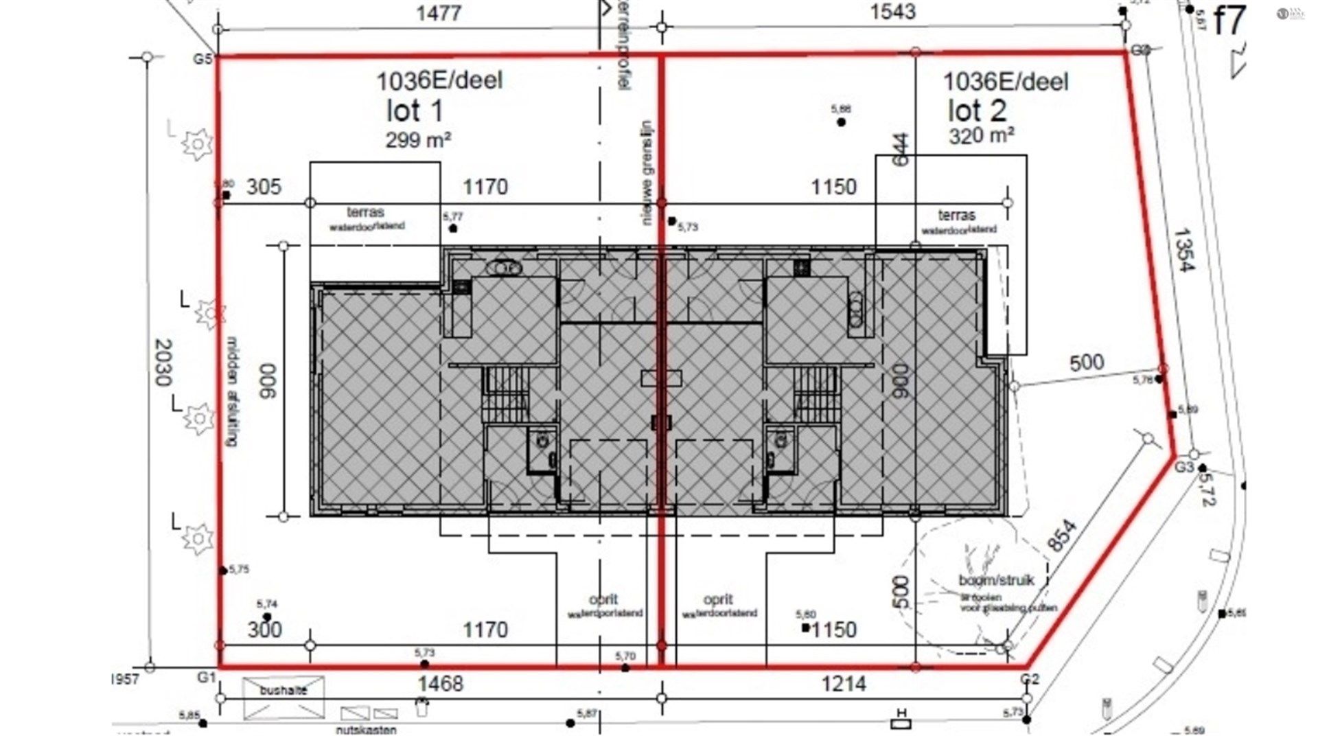
- 320 m² grond
- 3 Slaapkamer(s)
- 1 Badkamer(s)
- 2 Toilet(ten)
- 1 Tuin
- 1 Garage(s)
Beschrijving
Deze woning is onderdeel van een kleinschalig nieuwbouwproject, gelegen in een rustige wijk, omringd door velden en nabij het centrum van Stekene, met eenvoudige verbinding tot E34 (Antwerpen-Knokke) en Waaslandhaven en toch op een rustige locatie in een groene omgeving.
De woning wordt verkocht aan 443.000 euro (excl), in winddichte situatie. De afwerking (badkamer, keuken, vloeren, ...) kunnen dus nog naar eigen keuze worden geïnstalleerd. Volledig afgewerkt door de bouwheer is ook mogelijk.
INDELING:
Gelijkvloers: inkomhal met gastentoilet met handenwasser, doorzon-leefruimte (42m²) met veel lichtinval door de grote raampartijen die tevens uitzicht bieden op de gezellige zuid-gerichte, afgesloten tuin. Aansluitend aan de woonkamer vinden we de moderne, open leefkeuken. Inpandige garage met automatische sectionaalpoort, geïntegreerde wasplaats met ruime bergruimte.
Verdieping: bereikbaar via prachtige bordestrap op tegel, die doorgang biedt tot de lichtrijke nachthal met vide voor extra ruimtelijk gevoel. 3 slaapkamers (9, 13, 14 m²) en ruime badkamer.
EXTRA:
BEN woning: een geschat e-peil van < 10, dit resulteert niet alleen in een lagere energiefactuur maar ook in een korting op de onroerende voorheffing!
Dit E-peil wordt bereikt door de zonnepanelen (3450kWh/jaar) die op het plat dak liggen en door de warmtepomp (Panasonic high performance lucht/water) met vloerverwarming. Daarnaast beschikt de woning ook over ventilatiesysteem D met warmteterugwinning om er voor te zorgen dat er geen warmte verloren gaat! Beglazing: dubbel HR/PVC.
samengevat :
Deze woning wordt aangeboden aan 443.000 euro excl BTW en kosten. In deze prijs zijn keuken, badkamer, binnendeuren en vloer niet inbegrepen, deze zaken kunnen dus nog naar eigen keuze worden geïnstalleerd. De projectontwikkelaars hebben gekozen voor deze aanpak om de eigenaar de kans te geven de woning zelf naar eigen smaak en behoeften uit te rusten om hen meer vrijheid te bieden en er voor te zorgen dat ze een waar droomhuis kunnen aanbieden, op maat van de klant. Dit bedrag resulteert in een totaalbedrag van 536.030 EUR Incl. btw.
Voor info, lastenboek, budgetten en plannen maken wij graag een afspraak bij ons op kantoor met aansluitend plaatsbezoek: 0470/30.20.10 of martine@vanhoyevastgoed.be
Energie
![]() |
- E-peil: E0
- Beglazing: Standaard dubbel
Op de kaart

Financieel
| Prijs | |
|---|---|
| Kadastraal inkomen (niet geïndexeerd) | € 0 |
| Kadastraal inkomen (geïndexeerd) | € 0 |
Berekening kosten
Je aankoopkosten? Die heb je snel berekent via de knop hieronder.
Bijkomende info
Gebouw
| Bouwjaar | 2024 |
|---|---|
| Staat | Nieuw |
| Bouwcertificaat | Nee |
| Bewoonbaar (m²) | 170 |
| Verdieping | 0 |
| Gevelbreedte | 11.5 |
| Badkamers | 1 |
| Slaapkamers | 3 |
| Verdiepingen | 0 |
| Garages | 1 |
| Parkeerplaatsen | 0 |
| Doucheruimtes | 0 |
| Toiletten | 2 |
Faciliteiten
| Keuken uitrusting | Basis |
|---|---|
| Materiaal ramenomlijstingen | PVC |
| Beglazing | Standaard dubbel |
| Elektrisch keuringsattest | Ja |
Perceel
| Overstromingsgevoelig | Geen |
|---|---|
| P-score | A |
| Voorkeurrecht | Nee |
| Totale oppervlakte (m²) | 320 |
| Bebouwde oppervlakte (m²) | 100 |
| Tuin oppervlakte (m²) | 220 |
| Oppervlakte terras (m²) | 0 |
| Oriëntatie tuin | Zuid |
Vergunning
| Vergunning | Vergunning beschikbaar |
|---|---|
| Verkavelingsvergunning | Vergunning beschikbaar |
Uitrusting
| Investeringspand | Nee |
|---|---|
| Geschikt voor praktijk | Nee |
| Parking | Nee |
| Garage | Ja |
| Thuiskantoor | Nee |
| Kelder | Nee |
| Zolder | Nee |
| Tuin | Ja |
| Terras | Ja |
| Lift | Nee |
| Rioolaansluiting | Nee |
| Gasaansluiting | Nee |
| Wateraansluiting | Nee |
| Elektriciteitsaansluiting | Nee |
| TV aansluiting | Nee |
| Internetaansluiting | Nee |
| Telefoonaansluiting | Nee |
