Half open BEN woning met 3 slaapkamers op perceel 300m² (LOT1)
€ 450.000
Een pand van Van Hoye Vastgoed
Overzicht
- 170 m² bewoonbaar
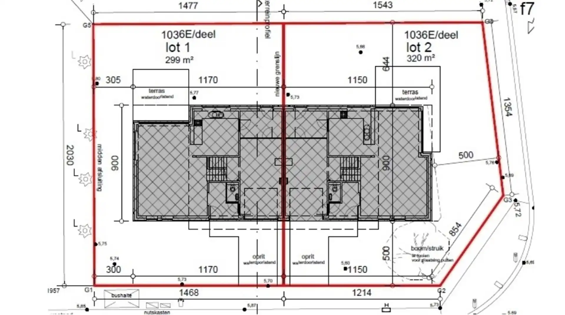
- 300 m² grond
- 3 Slaapkamer(s)
- 1 Badkamer(s)
- 2 Toilet(ten)
- 1 Tuin
- 1 Garage(s)
Beschrijving
Stekene, 2 moderne nieuwbouwwoningen
Voor info, lastenboek, budgetten en plannen maken wij graag een afspraak op kantoor met aansluitend plaatsbezoek : 0497/62.96.05. of martine@vanhoyevastgoed.be
Netto prijzen zonder kosten vanaf 450.000 euro.
LIGGING : op een gunstige locatie, met eenvoudige verbinding tot E34 (Antwerpen-Knokke) en Waaslandhaven.
INDELING:
Gelijkvloers: inkomhal met vestiarehoek, gastentoilet, doorzon-leefruimte (42m²) met veel lichtinval door de grote raampartijen die tevens uitzicht bieden op de gezellige zuid-gerichte, afgesloten tuin met deels overdekt terras. Aansluitend aan de woonkamer vinden we de moderne, open leefkeuken (spoelbak, oven, kookplaat met ingebouwde afzuiging) met ontbijthoek. Inpandige grote garage met automatische sectionaalpoort, geïntegreerde wasplaats met ruime bergruimte. Verdieping: bereikbaar via prachtige bordestrap op tegel, die doorgang biedt tot de lichtrijke nachthal met vide voor extra ruimtelijk gevoel. 3 slaapkamers (9, 13, 14 m²). Badkamer (2de toilet, dubbel wasmeubel, inloopdouche). De voortuin biedt extra parkeergelegenheid.
EXTRA:
BEN woningen: de woningen beschikken over een geschat E-peil van < 10, dit resulteert niet alleen in een lagere energiefactuur maar ook in een korting op de onroerende voorheffing!
Dit e-peil wordt bereikt door de zonnepanelen (3450kWh/jaar) die op het plat dak liggen en door de warmtepomp (Panasonic high performance lucht/water) met vloerverwarming. Daarnaast beschikken de woningen ook over ventilatiesystemen D met warmteterugwinning om er voor te zorgen dat er geen warmte verloren gaat! Beglazing: dubbel HR/PVC.
LOT 1 (links) deze woning is al afgewerkt en wordt verkocht, dit pand beschikt over keuken en sanitair van hogere kwaliteit.
LOT 2 (rechts) wordt eveneens afgewerkt aangeboden aan 450.000 euro, keuken, badkamer, binnendeuren en vloer volgens eigen keuze. Wenst u de woning zelf af te werken, dan is dit bespreekbaar.
Energie
![]() |
- Energieverbruik: 50 kWh/m²/jaar
- E-peil: E0
- Beglazing: Onbekend
Op de kaart

Downloads
Financieel
| Prijs | |
|---|---|
| Kadastraal inkomen (niet geïndexeerd) | € 0 |
| Kadastraal inkomen (geïndexeerd) | € 0 |
Bijkomende info
Gebouw
| Bouwjaar | 2024 |
|---|---|
| Staat | Nieuw |
| Bouwcertificaat | Nee |
| Bewoonbaar (m²) | 170 |
| Verdieping | 0 |
| Badkamers | 1 |
| Slaapkamers | 3 |
| Verdiepingen | 0 |
| Garages | 1 |
| Parkeerplaatsen | 0 |
| Doucheruimtes | 0 |
| Toiletten | 2 |
Faciliteiten
| Keuken uitrusting | Luxueus uitgerust |
|---|---|
| Elektrisch keuringsattest | Ja |
Perceel
| Overstromingsgevoelig | Geen |
|---|---|
| P-score | A |
| G-score | A |
| Voorkeurrecht | Nee |
| Totale oppervlakte (m²) | 300 |
| Bebouwde oppervlakte (m²) | 0 |
| Tuin oppervlakte (m²) | 0 |
| Oppervlakte terras (m²) | 0 |
Vergunning
| Vergunning | Vergunning beschikbaar |
|---|---|
| Verkavelingsvergunning | Vergunning beschikbaar |
Uitrusting
| Investeringspand | Nee |
|---|---|
| Geschikt voor praktijk | Nee |
| Parking | Nee |
| Garage | Ja |
| Thuiskantoor | Nee |
| Kelder | Nee |
| Zolder | Nee |
| Tuin | Ja |
| Terras | Ja |
| Lift | Nee |
| Rioolaansluiting | Nee |
| Gasaansluiting | Nee |
| Wateraansluiting | Nee |
| Elektriciteitsaansluiting | Nee |
| TV aansluiting | Nee |
| Internetaansluiting | Nee |
| Telefoonaansluiting | Nee |
